Kongsskogen 60Asker
- Asker
- Kongsskogen 60
- Prisantydning
- 11 750 000,-
- Kommunale avg.
- 31 092,- per år
- BRA-i
- 260 m2
Vardåsen/Kongsskogen
Tiltalende og innholdsrik enebolig - Solrike uteplasser - Barnevennlig i blindvei - Kort vei til butikk, buss og marka
Velkommen til Kongsskogen 60, presentert av Håkon Espeseth i Nordvik Asker. Her får du en innholdsrik og velholdt enebolig med gode solforhold, romslige oppholdsarealer og flere uteplasser. Boligen har gjennomgående god standard, tre stuer, spisestue og ildsteder som gir en lun og hyggelig ramme for hverdagen. Pent opparbeidet tomt, vestvendt terrasse med adkomst til romslig hage med god plass til lek og moro. Høydepunkter: - Løpende oppgradert - Nye vinduer og balkongdører (2022) - Dobbelgarasje m/lader - Godt med lagringsplass i boder - Idyllisk og barnevennlig boligområde - Umiddelbar nærhet til marka med fine turmuligheter - Reisetid til Nationaltheatret er ca. 33 min med kollektivtrafikk - Nær skole og barnehage - Kort vei til Asker sentrum
Nøkkelinformasjon
- Boligtype:
- Enebolig
- Byggeår:
- 1986
- Etasje:
- 3
- Soverom:
- 3
- Prisantydning:
- 11 750 000,-
- Omkostninger:
- 295 130,-
- Totalpris:
- 12 045 130,-
- Kommunale avgifter:
- 31 092,- per år
- Totalt BRA:
- 324 m2
- Tomteareal:
- 1 136,6 m2 (eiet)
- Energimerking:
- D - gul
Presenteres av
Har du finanseringsbevis på plass?
I samarbeid med
En personlig rådgiver fra vår samarbeidspartner Storebrand Bank vil hjelpe deg å gjøre deg klar til budrunden.

Nøkkelinformasjon
Oppdragsnummer
33-0255/25
Boligtype og eieform
Enebolig (Eiet)
Adresse og betegnelse
Kongsskogen 60, 1385 Asker
Gnr. 7, bnr. 314 (ideell andel 1/1) i Asker kommune.
Kjøpesum og omkostninger
11 750 000,- (Prisantydning) Omkostninger: 293 750,- (Dokumentavgift) 290,- (Pantattest kjøper) 545,- (Tinglyst pantedokument) 545,- (Tinglyst skjøte) 19 200,- (Boligkjøperpakke* (valgfritt)) -------------------------------------------------------- 295 130,- (Omkostninger totalt (uten Boligkjøperpakke)) 314 330,- (Omkostninger totalt (med Boligkjøperpakke)) -------------------------------------------------------- 12 045 130,- (Totalpris inkl. omkostninger (uten Boligkjøperpakke)) 12 064 330,- (Totalpris inkl. omkostninger (med Boligkjøperpakke)) -------------------------------------------------------- NB: Regnestykket forutsetter at det kun tinglyses ett pantedokument og at eiendommen selges til prisantydning. Dokumentavgiften er 2,5% av salgssummen, inkl. evt. fellesgjeld. Det tas forbehold om endringer i offentlige avgifter/gebyrer.
Om boligen
Byggeår
1986
Arealer
BRA-i: 260 kvm
BRA-e: 64 kvm
Totalt BRA: 324 kvm
TBA: 43 kvm
Beskrivelse:
Enebolig
Underetasje:
BRA-i: 91 kvm. Entré, gang, hobbyrom og 2 boder. Disponible rom i hybeldelen brukes idag til kjøkken/stue, soverom og bad/vaskerom.
Totalt BRA: 91 kvm
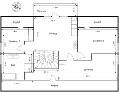
1. etasje:
BRA-i: 106 kvm. Entré, gang, 2 stuer, spisestue, kjøkken, bad og vaskerom.
Totalt BRA: 106 kvm
TBA 1: 32 kvm. Terrasse med tilgang fra stue.
TBA 2: 5 kvm. Balkong med tilgang fra vaskerom.
Totalt TBA: 37 kvm.
2. etasje:
BRA-i: 63 kvm. Stue, 3 soverom og bad.
Totalt BRA: 63 kvm
TBA: 6 kvm. Veranda med utgang fra TV-stue.
Garasje
Underetasje:
BRA-e: 30 kvm. Boder.
Totalt BRA: 30 kvm
1. etasje:
BRA-e: 34 kvm. Frittstående dobbelgarasje.
Totalt BRA: 34 kvm
Antall soverom
3
Innhold
Totalt bruksareal: 324 kvm Internt bruksareal (BRA-I): 260 kvm Eksternt bruksareal (BRA-E): 64 kvm. Totalt TBA (Terrasse- og balkongareal): 43 kvm Enebolig Internt bruksareal (BRA-I): Underetasje, 91 kvm: Entré, gang, hobbyrom og 2 boder. Disponible rom i hybeldelen brukes i dag til kjøkken/stue, soverom og bad/vaskerom. 1. etasje, 106 kvm: Entré, gang, 2 stuer, spisestue, kjøkken, bad og vaskerom. 2. etasje, 63 kvm: Stue, 3 soverom og bad. Terrasse- og balkongareal (TBA): 1. etasje, 32 kvm: Terrasse med tilgang fra stue. 1. etasje, 5 kvm: Balkong med tilgang fra vaskerom. 2. etasje, 6 kvm: Veranda med utgang fra TV-stue. Garasje Eksternt bruksareal (BRA-E): Underetasje, 30 kvm: Boder. Første etasje, 34 kvm: Frittstående dobbelgarasje. Forklaring areal: Internt bruksareal (BRA-I): Dette refererer til arealet innenfor boenhetens yttervegger. Eksternt bruksareal (BRA-E): Dette inkluderer arealet utenfor boenheten, som kan nås via fellesarealer eller utvendig adkomst. TBA (Terrasse- og balkongareal), som dekker områder som balkonger, altaner og verandaer. Dette arealet vil ikke bli inkludert i boligens bruksareal. Vedlagte plantegninger er ikke målbare. De oppgitte arealer er hentet fra tilstandsrapport datert 19.12.2025, utført av Johannes Barbantonis. Arealene er beregnet og rom er definert etter dagens faktiske bruk, uavhengig av hva som er godkjent av bygningsmyndighetene.
Standard
Entré Entréen gir et godt førsteinntrykk med god plass til yttertøy og sko. Tidligere bod er innlemmet i entréen og benyttes i dag som garderobeløsning. Dette er ikke omsøkt hos kommunen, se pkt. om ferdigattet. Entréen fungerer som et naturlig bindeledd til boligens øvrige rom. Stue og spisestue Boligen holder gjennomgående god standard på innredninger, overflater og utstyr, med lyse og tidsriktige fargevalg på vegg- og himlingsflater. Store vindusflater slipper inn rikelig med naturlig lys og bidrar til en lys og trivelig romfølelse. Stueløsningen er romslig og gjennomtenkt, med to stuer og spisestue i naturlig sammenheng. Stue 1 fungerer som hovedoppholdsrom og er utstyrt med vedovn som gir god varme og et hyggelig preg. Stue 2 har plassbygd peisovn og utgang til terrasse, noe som gir en naturlig forlengelse av oppholdsarealet i sommerhalvåret. Spisestuen er sentralt plassert med god plass til større spisebord og sosiale sammenkomster. Downlights i himling sørger for jevn og behagelig belysning i hele oppholdsarealet. TV-stue I 2. etasje er det etablert en trivelig loftstune med plassbygde skap som er tegnet av interiør arkitekt Ida Harr og bygget på vestlandet av Nesje i Heltre Eik og utgang til veranda. Rommet egner seg godt som ekstra oppholdsrom og gir en fin adskillelse mellom oppholds- og sone for soverom. Kjøkken Stilrent kjøkken med praktisk utforming. Kjøkkeninnredning fra 2010 med hvite, glatte fronter, bestående av både over- og underskap samt belysning under overskap. Benkeplate er i laminat, nedfelt oppvaskkum med ettgreps svingbare blandingsbatteri i krom med dusj. Kjøkkenet er utstyrt med integrerte hvitevarer bestående av induksjonsplatetopp, stekeovn, oppvaskmaskin og kjøleskap. Kjøkkenet ligger i naturlig tilknytning til spisestuen og gir en sosial planløsning. Soverom Boligen har tre soverom samlet i 2. etasje, alle med gode planløsninger og integrerte oppbevaringsløsninger. Hovedsoverommet har plassbygd garderobe- og skuffesystem samt tilgang til kneloft. De øvrige soverommene har plassbygde garderober og tilgang til kneloft, og egner seg godt som barnerom, gjesterom eller kontor. Baderom Boligen har to baderom. Baderommet i 1. etasje er innredet med servantskap med nedfelt servant, veggskap med speil og belysning, gulvmontert toalett og dusjkabinett. Varmekabler i gulv gir god komfort, og nedsenket himling med downlights sørger for behagelig belysning. Baderommet i 2. etasje er romslig og moderne utformet, og inneholder servantskap med dobbel servant, speil med innebygd belysning, vegghengt toalett med innebygd sisterne, dusjnisje med glass-skyvedør samt frittstående badekar. Varmekabler i gulv og downlights i nedsenket himling bidrar til et helhetlig og komfortabelt uttrykk. Vaskerom Separat vaskerom i 1. etasje med praktisk adkomst til overdekket balkong. Rommet er utstyrt med vaskekum, veggskap og opplegg for vaskemaskin, og fungerer godt som en funksjonell støttefunksjon i hverdagen. Underetasje - boligdel Underetasjen har felles entré med adkomst til både boligdel og hybel. Det gjøres oppmerksom på at alle rom i underetasjen, både hoveddel og hybel, er byggemeldt som disponible rom/hobbyrom/boder og ikke er godkjent for varig opphold, se pkt. om ferdigattest. Opprinnelig hobbyrom er innredet som kjellerstue/soverom. Dette er ikke omsøkt hos kommunen, se pkt. om ferdigattest. Det er videre to boder med gode lagringsmuligheter, hvorav den ene inneholder radonavtrekk og den andre rommer varmtvannsbereder, vannmåler og hovedstoppekran. Hybel Hybelen i underetasjen er innredet med stue, kjøkken, soverom samt bad/vaskerom. Dette er ikke omsøkt hos kommunen, se pkt. om ferdigattest. Stuen har god plass til både sofa og spisebord, mens kjøkkenet er utstyrt med hvit kjøkkeninnredning med profilerte fronter, over- og underskap og belysning under overskap. Soverommet har garderobeskap, og bad/vaskerommet inneholder servantskap, speil med belysning, gulvmontert toalett, dusjkabinett og opplegg for vaskemaskin. Selger har leid ut hybelen i sin eiertid.
Parkering
Frittstående dobbelgarasje på ca. 34 kvm med motorisert port, elbillader og underetasje på ca. 30 kvm med boder, samt gode parkeringsmuligheter på egen tomt.
Moderniseringer og påkostninger
2025:
-Eier opplyser om en mindre vannlekkasje fra avløpsrør under bad i 2. etasje. Forholdet ble utredet med blant annet kamerainspeksjon, og årsaken ble avklart til tett avløp lenger ned på stammen. Forholdet er utbedret og har ikke gjentatt seg ved normal bruk.
2024:
- Radonsug installert i bod
2023:
- Nytt panel på karnapper
2022:
- Ny varmtvannsbereder
- Nytt badekar
- Vinduer og balkongdører skiftet
- Plassbygde garderobeskap i loftstue og soverom
- Integrert kjøleskap med tilpassede fronter
2021:
- Yttervegger malt
- Gjerde etablert foran og bak huset
- Opprinnelig terrasse fornyet/erstattet med nytt matriale.
2019:
- Elbillader installert i garasje
- Nytt parkettgulv i tre soverom, hobbyrom og kjellergang/-rom
- Nytt tak og oppmalte overflater i tre soverom
- Solskjerming i hovedetasje
- Ny markisemotor på terrasse
- Nye markiser og rullegardiner på soverom
- Dør etablert til garasjekjeller
- Tregulv lagt i garasjekjeller
- Vegger i garasjekjeller behandlet med fuktsperrende maling
- Epoxygulv lagt på garasjegulv
2012:
- Nytt tak på bolig og garasje ifølge tidligere salgsoppgave
2011:
Ifølge tidligere salgsoppgave ble følgende gjennomført:
- Bad i 2. etasje totalrenovert
- Ny peisovn montert
- Gårdsplass oppgradert med belegningsstein og asfalt
- Drenering utbedret med riktig fall og nye avløpskummer
2010:
- Ifølge tidligere salgsoppgave ble bad i 1.etasje overflatepusset i 2010 (nye fliser på gulv, nye baderomsplater på vegger, nytt tak med spotter, ny vifte og innredning).
Sammendrag selgers egenerklæringsskjema
Selgers egenerklæringsskjema følger vedlagt salgsoppgaven. Interessenter oppfordres til å gjennomgå dette nøye. Følgende opplysninger er spesielt viktig å merke seg: 1. Vet du om det har det blitt utført arbeid på bad/våtrom, enten i din eller tidligere eiertid? Ja, faglært. Firmaets navn og beskrivelse av arbeidet: Vår eiertid: Ny varmtvannsbereder og badekar. Arbeid utført februar 2022 av Bærum Rør og Varme AS. Tidligere eier: Bad i 2.etasje totalrenovert i 2011. Bad i 1.etasje overflatepusset i 2010 (nye fliser på gulv, nye baderomsplater på vegger, nytt tak med spotter, ny vifte og innredning). Arbeid utført av Rørkompaniet AS. 1.1 Vet du om tettesjikt, membran eller sluk ble fornyet eller oppgradert? Ja, faglært. Firmaets navn og beskrivelse av arbeidet: Arbeid utført i 2011 av Rørkompaniet AS ( se punkt 1, tidligere eier). 2. Vet du om det er gjort endringer eller reparasjoner på tak, fasade, pipe/ildsted, terrasse, garasje, bod eller lignende, enten i din eller tidligere eiertid? Ja, faglært. Firmaets navn og beskrivelse av arbeidet: Nytt tak på garasje og hus lagt av Sigurd Fossli A/S i 2012. Peisovn ny i 2011. 3. Vet du om det er gjort arbeid med drenering, enten i din eller tidligere eiertid? Ja, faglært. Firmaets navn og beskrivelse av arbeidet: Tidligere eier: Ny gårdsplass med belegningsstein og asfalt herunder drenering med to avløpskummer opparbeidet i 2011. (Tekst hentet fra prospekt 2019). 4. Vet du om det er gjort arbeid på det elektriske anlegget, enten i din eller tidligere eiertid? Nei. Eventuell kommentar: Installert el-billader i garasje mai 2019. Arbeid utført av Centrum Elektriske AS. Flyttet stikk for kjøleskap, komfyr, kjøkken i hybel 2023 Bergerud elektro AS. 5. Vet du om det er gjort arbeid på vann og avløp, enten i din eller tidligere eiertid? Nei. Eventuell kommentar: Ny varmtvannsbereder og badekar. Arbeid utført februar 20222 av Bærum Rør og Varme AS. 9. Vet du om det er gjort arbeid på eiendommen som ikke er nevnt i de andre spørsmålene? Ja, både faglært og ufaglært. Firmaets navn og beskrivelse av arbeidet: Byttet vinduer 2022, lagt nytt panel på karnapper 2023, Tømrer Kjartansson AS. Malt yttervegger 2021. Gjerde foran og bak huset, egeninnsats. Bygget ny terrasse som erstatning for den gamle med adkomst ned til hagen, Håndverk Matthiesen Orgnr 920485855 Flyttet stikkontakter til kjøleskap og stekeovn i hybel, Bergerud elektro AS Installering av radonsug, Winge Bygg AS juni 2024, Lagt nytt parkettgulv i tre soverom, hobbyrom, kjellergang-rom, nytt tak og maling i tre soverom, El Greco Bygg AS Orgnr 914 492 157, Solskjerming i hovedetasje, ny markisemotor terrasse, nye markiser og rullegardiner i soverom, Brudd i varmekabler bad 2.etg, utbedret av M-TEK AS feburar 2020. Plassbygde garderobeskap loftstue og soverom, Interiørarkitekt Ida Harr og Nesje Møbelsnekkeri. Installert integrert Bosch-kjøleskap m/IKEA-fronter. Elkjøpinnstallatør, august 2022. Satt inn dør i garasjekjeller og lagt tregulv i garasjekjeller. Malt vegger i garasjekjeller med Hey di K11 Xtra. Lagt epoxygulv på garasjegulv. Egeninnsats. 10. Vet du om det er gjort radonmåling på eiendommen, enten i din eller tidligere eiertid? Ja. Når ble målingen gjennomført og foreligger det dokumentasjon? Målinger gjort med Airthings radonsensor siden januar 2024. Foreligger ingen ekstern dokumentasjon. Årsgjennomsnitt= 90Bq/m3. Installert radonsug mai 2024. 11. Vet du om det er eller har vært feil ved bad/vaskerommet, f.eks sprekker, lekkasje, råte, lukt eller soppskader? Ja. Beskriv: Liten vannlekkasje fra avløpsrør under bad i 2.etg rett over døren til kjøkkenet. Kun engangs hendelse som aldri gjentok seg på tross av normalt bruk av badet. Grundig utredet inkl kamera i rør. Anbefalt bytte av 90 gr rør bend til 45 gr som er utført. Rørbend byttes av rørlegger Finn´s Vvs AS.(Foreligger rapport). 18. Vet du om det er, eller har vært, insekter eller skadedyr i boligen, eller i tilhørende bygninger? For eksempel skjeggkre, maur, biller, mus, rotter eller lignende. Ja. Beskriv: Funnet skjeggkre etter overtagelse i 2019. Behandling gjennomført av Anticimex etter standard prosedyre. Ingen tegn til kre siden (foreligger rapport). 20. Vet du om det er eller har vært feil på tilbehøret som følger med eiendommen? Ja. Beskriv: Løs rille i stekeovn på venstre side, håndtak på oppvaskmaskin mangler, panelovn hovedstue fungerer ikke, håndtak på armatur venstre side bad i 2.etg kan løsne. Venstre dør dusjkabinett i hovedetasje er løs i overkant. Festet til dusjhode i hybeldusj er festet med strikk til stammen. 21. Selges boligen med utleiedel/leilighet eller hybel? Ja. Er rommene som benyttes til utleiedel/leilighet/hybel godkjent til beboelse (rom til varig opphold) av bygningsmyndighetene? Nei. Eventuell kommentar: Ikke samsvar mellom Matrikkel og Asker kommune. Sendt mail til Asker kommune og avventer svar. 21.1 Er utleiedelen godkjent som egen boenhet hos bygningsmyndighetene? Ja. Beskriv: Eget bruksnummer og betaler faste avgifter til Asker kommune for dette. 22. Vet du om det foreligger skaderapporter eller tilstandsvurderinger etc. om boligen? Ja. Oppgi type rapport og årstall: Rapport hos Fremtind Forsikring i forbindelse med vannlekkasje vår´25. 23. Vet du om det er utført tidligere arealoppmålinger av boligen, eller om boligens areal er oppgitt i dokumenter som salgsoppgave, takstrapport, tilstandsrapport, byggesøknad eller lignende? Ja. Hvilket dokument og når er målingen foretatt? Matrikkelutskrift foreligger fra kjøp/salg 2019. 32. Vet du om det er noe annet ved eiendommen som det kan være viktig for kjøperen å vite om? Nei. Eventuell kommentar: Det danner seg en liten dam over kummen utenfor inngangspartiet ved store regnskyll. Anbefaler at sluket holdes rent for slam.
Bygningssakkyndig
Johannes Barbantonis
Byggemåte
Asfaltert innkjørsel, steinbelagt foran boligen. Grunnmuren er oppført i betong og lecablokker. Veggkonstruksjonen er oppført i lecablokker og tre, utvendig kledd med murpuss og liggende panel. Taket har saltaksform tekket med glaserte takstein. Etasjeskille er et trebjelkelag. Vindu og balkongdører med 3-lags isolerglass. Selger har fått utarbeidet en tilstandsrapport, en teknisk gjennomgang av boligen som kartlegger eventuelle avvik, risiko for kjøper og gir prisoverslag på nødvendige oppgraderinger. Rapporten og selgers egenerklæring er en del av salgsoppgaven og må leses nøye før bud inngis. Kjøper overtar ansvaret for de opplysninger som fremkommer i dokumentasjonen og kan ikke gjøre gjeldende som mangel noe som burde vært kjent eller ikke kan anses å ha betydning for avtalen. Tilstandsgraden (TG) gir en vurdering av boligens tilstand. TG2 indikerer vesentlige avvik som krever vedlikehold eller tiltak på sikt, mens TG3 viser alvorlige avvik som må utbedres umiddelbart. Ingen bygningsdeler er kommentert med TG3. Følgende er kommentert med TG2: - Drenering: Drenering/fuktsikring har nådd en alder som gir usikker tetthet fremover. - Rom under terreng: Mineralutslag i Leca-overflater, som indikerer fuktvandring gjennom grunnmur. - Vinduer og dører, utvendige karmer/lister: Stedvis liten spalte mellom vinduskarm og vannbrettbeslag. - Yttervegger: Bruk av klosser som musesperre har medført stedvis redusert lufting bak kledning. - Trapp: Åpninger i rekkverk overstiger 10 cm og tilfredsstiller ikke dagens sikkerhetskrav. - Avløpsrør: Innvendige rør fra byggeår har nådd alder med økt risiko for skader. - Vannledninger: Vannrør fra byggeår med økt risiko for lekkasjer over tid. - Varmtvannsbereder: Ikke forskriftsmessig fast tilkoblet strøm. - Bad 1. etasje, overflater: For liten høydeforskjell mellom sluk og dørterskel. - Bad 1. etasje, membran/tettesjikt/sluk: Alder over 10 år gir usikker restlevetid. - Vaskerom, overflater: For liten høydeforskjell mellom sluk og dørterskel. - Vaskerom, membran/tettesjikt/sluk: Alder gir usikker restlevetid. - Vaskerom, ventilasjon: Kun naturlig avtrekk, begrenset effekt. - Bad 2. etasje, membran/tettesjikt/sluk: Alder gir usikker restlevetid. - Bad/vaskerom i underetasje, overflater: For liten høydeforskjell ved sluk. - Bad/vaskerom i underetasje, membran/tettesjikt/sluk: Alder gir usikker restlevetid. - Bad/vaskerom i underetasje, sanitærutstyr: Eldre sanitærutstyr. Se supplerende tekst i tilstandsrapporten om overnevnte bygningsdeler. Kjøper overtar ansvar og risiko for dette. Les for øvrig mer om byggemåte og den tekniske tilstanden i rapporten. Se vedlagt dokument til salgsoppgaven med selgers egenerklæring for tilleggsinformasjon til tilstandsrapporten.
Innbo og løsøre
Medfølger handelen:
- Kjøleskap (hoveddel)
- Oppvaskmaskin (hoveddel)
- Komfyr (hoveddel)
- Steketopp (hoveddel)
Hybel:
- Stekeovn
- Kjøleskap
Medfølger ikke handelen:
- Vaskemaskin i hybel
- Vaskemaskin og tørketrommel på vaskerom
- Fryser og kjøleskap fra bodene
- Speil på hovedsoverom
- Hageslange
Følgende løsøre og tilbehør følger ikke med:
Kjøkken:
- Taklampe
- Hylle ved komfyr
Spisestue:
- Hylle mellom stue og spisestue
Bibliotek:
- Stringhylle på vegg mot terrassen
Stue:
- TV-benk
- Gardiner
Gang:
- Speil
Stort soverom:
- Nattbord (2 stk.)
- Hylle
- Lamper
- Spotskinne
- Stor kommode
Lite soverom mot terrasse:
- Lamper
Lite soverom ved siden av bad:
- Alle hyller
- Alle lamper
Soverom i underetasje:
- Lamper
- Hyller
Hybel:
- Lamper
Hage:
- Det vil bli tatt med diverse vekster fra hagen. Kan spesifiseres nærmere ved forespørsel.
- Skiferheller som ikke er fast montert, og som i dag ligger løst på grus på hagesiden av huset.
For øvrig gjelder NEF sin standardliste "Oversikt over løsøre og tilbehør" med mindre annet fremkommer av salgsoppgaven. Listen er vedlagt.
Dersom det er noe i overnevnte liste som ikke finnes på eiendommen, vil det heller ikke medfølge. Produkter og installasjoner som medfølger overdras uten noen form for garantier, utover eventuell gjenværende leverandørgaranti. Hull og merker etter feste av innredning og utstyr som ikke følger med, aksepteres av kjøper.
Adgang til utleie
Rom kan bare leies ut til den bruk de er godkjent for. Rom som ikke er godkjent for varig opphold, men leies ut som rom til varig opphold, kan ikke lovlig leies ut uten godkjent bruksendring fra kommunen. Samtlige rom i underetasjen er byggemeldt som disponible rom, hobbyrom eller boder, og er dermed ikke godkjent som rom for varig opphold. Dette omfatter bl.a. rommene i hybel (stue, soverom og kjøkken). Rommene har vært benyttet og leid ut til varig opphold. Bruksendring til varig opphold er søknadspliktig, og det foreligger ikke dokumentasjon på at slik bruksendring er godkjent av kommunen. Boligen er registret med hybel i matrikkelbrevet, dette har vært en feilregistrering fra kommunens side da rommene ikke er godkjent for varig opphold. Selger har fått et brev fra kommunen om feilregistreringen og hva som skal til for å få det godkjent. Selger har ikke søkt om bruksendring og bærer ingen risiko/ansvar for at slik godkjennelse gis
Energi og oppvarming
Energimerking
D - gul
Se fullstendig energiattest fra selger som vedlegg til salgsoppgave. Megler har intet ansvar for informasjon som følger av energiattesten.
Alle eiendommer som selges/leies ut skal ha energiattest. Unntak gjelder blant annet for frittstående bygninger med bruksareal mindre enn 50 m². Det er eier som plikter å fremlegge energiattest og er selv ansvarlig for at opplysningene er riktig.
Dersom eier ikke har lagt frem energiattest, og eier etter skriftlig anmodning fra kjøper ikke har lagt frem energiattest før avtale om salg er inngått, kan kjøper få laget en energiattest ved hjelp av ekspert for selgers regning, innen ett år etter at avtale om salg er inngått. Dette følger av forskrift om energimerking av bygninger og tekniske anlegg § 5 (3).
Energiattest er basert på nåværende eiers/ husstands senere års forbruk og utgifter. Dette vil kunne variere avhengig av antall familiemedlemmer i husstanden, ønsket innetemperatur, egne fordelsavtale mv. Megler har intet ansvar for informasjon som fremgår av energiattesten.
Oppvarming
Boligen har følgende oppvarmingskilder: - Vedovn i stue 1 og peis ovn i stue 2. - Varmekabler i hele U-etg (utenom boder) og på våtrommene (ikke på vaskerom). - Ellers elektrisk oppvarming med panelovner. Dersom rom mangler fast installert oppvarmingskilde på visning, følger ikke dette med i handelen.
Informasjon om strømforbruk
Selger opplyser å ha et årlig strømforbruk på ca. 35 000 kWh. Energiforbruket vil variere fra husstand til husstand. Selger har ikke inngått avtale om Norgespris.
Økonomi
Kommunale avgifter
Kr. 31 092,- pr. 2024
Kommunale avgifter inkluderer vann, avløp, renovasjon og feiing.
Det er installert vannmåler på eiendommen. Oppgitt beløp er et estimat basert på selgers forbruk foregående år. Forbruk vil variere fra husstand til husstand og endelig fakturert beløp kan derfor avvike. Fakturering skjer kvartalsvis.
Andre utgifter
Selger opplyser å ha følgende kostnader knyttet til boligen: - Fremtind Forsikring: Årlig premie utgjør ca. kr 20 500 og gjelder husforsikring (polisenummer 00021471729). - Vedfyring utgjør ca. kr 5 000 per år. - Leverandør av kabel-TV og bredbånd er i dag Telia, med en månedlig kostnad på kr 699. - Kostnad til velforening utgjør kr 500 per år. Det er opp til kjøper å ev. inngå nye avtaler med ønskede tjenesteytere.
Formuesverdi
Formuesverdi for inntektsåret 2024: Som primærbolig: kr 2 672 199,- Som sekundærbolig: kr 10 245 999,- Skatteetaten beregner en boligverdi (beregnet markedsverdi for bolig) basert på SSBs statistiske opplysninger om omsatte boliger. I beregningen tas det hensyn til din boligs beliggenhet, areal, byggeår og type bolig. Formuesverdien er en prosentandeldel av denne boligverdien. For mer informasjon om formuesverdi, se Skatteetatens nettsider.
Tomt
Beskrivelse av tomt
Tomtestørrelse: 1 136,6 kvm (eiet)
Eiendommen har en pent opparbeidet hage med plen, busker og trær som danner et grønt og trivelig uteområde. Asfaltert innkjørsel og steinbelagt areal foran huset gir en ryddig og praktisk adkomst til boligen.
Boligen har flere varierte og solrike uteplasser som gir gode bruksmuligheter gjennom hele dagen. Fra stuen i 1. etasje er det utgang til en vestvendt terrasse på ca. 32 kvm, med god plass til både spisegruppe og sittegrupper, samt trapp ned til hagen. I 2. etasje er det utgang til en sydvendt veranda på ca. 5,8 kvm fra TV-stuen, samt en overbygget balkong på ca. 4,9 kvm med adkomst fra vaskerom.
Tomten oppleves som svært solrik. Det er ikke direkte sol på huset i desember og januar, men fra februar får balkongen på forsiden morgensol. I vår- og sommermånedene har eiendommen sol store deler av dagen, med kveldssol helt frem til ca. kl. 22 på den store terrassen.
Adkomst
Se vedlagt kartskisse på høyre side i annonsen. Ved å trykke på kartet får du enkelt tilgang til en spesifisert reiserute fra din startdestinasjon til boligen. På visningsdagen vil det bli skiltet med Nordvik Eiendomsmegling visningsskilt. Velkommen til visning!
Radonmåling
Det ble utført radonmåling i januar 2024. Målingen viser at det er registrert 90 becquerel per kubikkmeter. Verdien er lavere enn tiltaksgrensen på 100 becquerel per kubikkmeter. Radonsug ble installert i mai 2024. For mer informasjon se https://www.dsa.no/radon.
Områdebeskrivelse
Beskrivelse av nærområdet
Kongsskogen 60 ligger i et ettertraktet boligområde i Asker, kjent for å være spesielt godt tilrettelagt for barnefamilier. Området byr på grønne og solrike omgivelser, rolige gater og nærhet til skog og natur. Bebyggelsen består i hovedsak av eneboliger, og området preges av begrenset gjennomgangstrafikk, etablerte bomiljøer og trygge oppvekstvilkår. Fra eiendommen er det ca. 7–10 minutters gange til både barnehage, Vardåsen barneskole og bussholdeplass. Bussforbindelsen er hyppig, med avganger hvert 10. minutt i rushtiden og hvert 20. minutt ellers. Reisetiden med buss til Asker sentrum er rundt 9 minutter. Herfra er det gode videre forbindelser med tog, flytog og ekspressbuss til blant annet Oslo, Drammen og Gardermoen. Til Nationaltheatret tar reisen samlet ca. 33 minutter. Daglige innkjøp kan enkelt gjøres på Coop Extra på Vardåsen, som ligger i kort avstand fra boligen. For et større handelstilbud er det ca. 3,5 km til Asker sentrum med et bredt utvalg av butikker, kaféer og servicetilbud. Trekanten kjøpesenter er et sentralt møtested i området og rommer rundt 75 butikker samt gode parkeringsmuligheter. I tillegg nås både Sandvika Storsenter og Liertoppen kjøpesenter enkelt med bil eller kollektivtransport. Området rundt Kongsskogen har direkte tilgang til attraktive friluftsområder i Kjekstadmarka og Vestmarka. Her finnes et omfattende nettverk av turstier og lysløyper, samt gode muligheter for sopp- og bærplukking. Flere populære badevann som Oppsjø, Svartpytt, Ulvenvannet og Dikemarksvannene ligger innen gangavstand. I nærområdet finner du også Dikemark Rideklubb, ballbinge, fotballbaner og flere lekeplasser – noe som gjør området svært godt egnet for aktive familier med barn.
Bebyggelse
Nabolaget består hovedsakelig av frittliggende eneboligbebyggelse.
Skoler og barnehager
Vardåsen Barnehage SA
Trollstua barnehage
Brendsrud barnehage
Vardåsen barneskole
Borgen ungdomsskole
Asker International school
Informasjon om tilhørende skolekretser er hentet fra Askerkart som dataleverandør og tilhørigheten kan årlig endres av kommunen. Dersom skole- og barnehagetilbud er av betydning for kjøpet, ber vi om at det rettes en særskilt henvendelse til kommunen for oppdatert informasjon.
Offentlige forhold
Ferdigattest / brukstillatelse
Det foreligger midlertidig brukstillatelse for eiendommen datert 10.11.1986. Midlertidig brukstillatelse dokumenterer at boligen lovlig kan brukes, men at det gjenstår arbeider før ferdigattest kan utstedes. For å kunne søke om ferdigattest må det gjennomføres følgende tiltak på eiendommen: - Gjenstående arbeid i kjeller/underetg. må gjøres ferdig. - Planering rundt huset med fall ut fra grunnmuren. - Brannstige henges opp utvendig på egnet sted. Om disse forholdene er ferdigstilt tilfredsstillende er ikke undersøkt nærmere av megler. Det foreligger ikke midlertidig brukstillatelse eller ferdigattest for garasje. Det ble gitt byggetillatelse for nybygg garasje den 02.12.1987. Det foreligger godkjente stemplede tegninger, datert 26.05.1987. Det gjøres oppmerksom på at det ikke utstedes ferdigattest for ikke-avsluttede byggesaker/ byggemeldinger som er fra før 1998. Kjøper påtar seg risikoen for fremtidig fortsatt bruk, og eventuelle pålegg fra det offentlige. Byggetegninger: Det foreligger byggetegninger, datert 06.08.1985. Det er avvik fra opprinnelige tegninger og dagens bruk. Tilleggsdel, bod er innlemmet i entré i første etasjel. Innredning av rommet til bruk for varig opphold er ikke bruksendret/omsøkt og er heller ikke godkjent av kommunen. Alle rom i underetasjen, både hoveddel og hybel, er byggemeldt som disponible rom/hobbyrom/boder og ikke er godkjent for varig opphold. Innredning av rom til bruk for varig opphold er ikke bruksendret/omsøkt og er heller ikke godkjent av kommunen. Konsekvensen ved søknad kan være at rommet ikke godkjennes som varig opphold og at rommet da må brukes som bod(er). Kjøper overtar alt ansvar, kostnad og risiko for dette videre. Kjøper overtar eiendommen slik den fremstår på visning.
Vei, vann og avløp
Eiendommen er tilknyttet offentlig vann og avløp. Stikkledninger fra eiendommen og ut til kommunalt nett er private, vedlikeholdsansvaret påhviler eier. Adkomst via offentlig vei.
Regulerings- og arealplaner
Eiendommen er regulert til frittliggende småhusbebyggelse (enebolig) i henhold til eldre reguleringsplan Drengsrud V (plan-ID 022030D), vedtatt 06.10.1983. I tillegg er eiendommen omfattet av Kommuneplan for Asker 2023–2035 (plan-ID 2020100), hvor området er avsatt til boligbebyggelse. Planene fastsetter rammer for bebyggelsens plassering, volum og utnyttelse. Eiendommen ligger innenfor boligområder angitt som boligkategori spesielle boligområder (SB) i kommuneplanen. Kommuneplanen kan fås ved forespørsel til megler. Resten av kommunale opplysninger ligger vedlagt i salgsoppgaven
Konsesjon
Kjøp av eiendommen er ikke konsesjonspliktig.
Tinglyste heftelser og forpliktelser
Eiendommen overdras fri for pengeheftelser. Det er tinglyst følgende servitutter på eiendommen. 11.06.1985 - Dokumentnr: 16671 - Bestemmelse om gjerde Rett for kommunen til å anlegge og vedlikeholde ledninger m.m. Med flere bestemmelser Meglers kommentar: Tomten er fradelt med bestemmelser om at bebyggelsen kun kan oppføres som enebolig. Virksomhet som kan virke sjenerende for området, herunder næringsdrift eller annen støyende aktivitet, er ikke tillatt. Det foreligger gjerdeplikt mot naboeiendom. Asker kommune har rett til å anlegge, drifte og vedlikeholde vann-, avløps-, telefon- og elektriske ledninger over eiendommen. 11.10.1985 - Dokumentnr: 32657 - Erklæring/avtale Vedr. privat felles vann- og spillvannsledning Meglers kommentar: Det foreligger tinglyst erklæring om private, felles vann- og avløpsledninger. Eiendommen er tilknyttet felles VA-anlegg sammen med nærliggende eiendommer, med delt ansvar for drift og vedlikehold. Kommunen har rett til avstengning ved behov. Servituttene vil følge eiendommen. Kjøpers bank vil få pant etter ovennevnte heftelser og servitutter.
Legalpant
Kommunen har legalpant som sikkerhet for betaling av kommunale avgifter og eventuell eiendomsskatt. Legalpant er pant som ikke kommer frem av grunnboksutskriften, og har bedre prioritet enn for eksempel lån til bank som er tinglyst på eiendommen.
Øvrige kjøpsforhold
Diverse
Kjøper og selger er forpliktet til å undertegne standard kjøpekontrakt utarbeidet av Nordvik i forbindelse med eiendomstransaksjonen. Kjøpekontrakt kan besiktiges hos eiendomsmegler før bud inngis. Kontakt eiendomsmegler for spørsmål. Selger leverer eiendommen i ryddig og rengjort stand.
Overtagelse
Overtakelse skjer etter avtale med selger. Før boligen overleveres kjøper, skal fullt oppgjør og omkostninger være mottatt på meglers klientkonto.
Sentrale lover
Eiendommen selges etter reglene i avhendingsloven. Generelle bestemmelser: Alle innvendige og utvendige arealangivelser, samt beskrivelser av bygningen er hentet fra vedlagte tilstandsrapport/boligsalgsrapport. Salgsoppgaven er basert på de opplysningene selger har gitt til megler, den bygningssakkyndiges tilstandsrapport, samt opplysninger innhentet fra kommunen, Kartverket og andre tilgjengelige kilder. Det er viktig at kjøper setter seg grundig inn i alle salgsdokumentene, herunder salgsoppgave, tilstandsrapport og selgers egenerklæring. Kjøper anses kjent med forhold som er tydelig beskrevet i salgsdokumentene, og slike forhold kan ikke påberopes som mangler. Dette gjelder uavhengig av om kjøper har lest dokumentene. Det kan være avvik fra dagens rombruk/rombenevnelser sammenlignet med det som er byggemeldt/godkjent. Alle interessenter oppfordres til å undersøke eiendommen nøye, gjerne sammen med fagkyndig før bud inngis. Kjøper som velger å kjøpe usett kan ikke gjøre gjeldende som mangel noe han burde blitt kjent med ved undersøkelsen. Dersom det er behov for avklaringer, anbefaler vi at interessenter rådfører seg med eiendomsmegler eller egne rådgivere før det legges inn bud. En bolig som har blitt brukt i en viss tid, har vanligvis blitt utsatt for slitasje og skader kan ha oppstått. Slik bruksslitasje må kjøper regne med, og det kan avdekkes enkelte forhold etter overtakelse som nødvendiggjør utbedringer. Normal slitasje og skader som nødvendiggjør utbedring, er innenfor hva kjøper må forvente og vil ikke utgjøre en mangel. Kjøper og selgers rettigheter og plikter reguleres av avtalen mellom partene, samt informasjonen som har vært tilgjengelig for kjøperen i forbindelse med handelen. Avtalen utfylles av avhendingsloven, og det gjelder ulike avtalevilkår avhengig av om kjøper er forbrukerkjøper eller ikke. Dette er nærmere beskrevet nedenfor. På grunn av ulike avtalevilkår kan selger vurdere bud fra en som ikke er forbruker, ulikt fra en forbrukers bud. Dersom kjøper ikke er forbruker, er selger sitt mulige mangelsansvar begrenset fordi eiendommen selges "som den er". Selger kan ikke ta «som den er» forbehold ovenfor en forbrukerkjøper. Selv et lavere bud fra en som ikke er forbruker kan foretrekkes fordi begrensningen i mulig mangelsansvar kan ha egenverdi for selger. Selger står fritt til å forkaste eller akseptere ethvert bud, og er for eksempel ikke forpliktet til å akseptere høyeste bud. Budgiver skal i budskjema avgi egenerklæring om budgiver er forbruker eller næringsdrivende/ person som hovedsakelig handler som ledd i næringsvirksomhet. Budgivere får informasjon dersom andre bud er inngitt av en som ikke er forbruker. Forbrukerkjøp - definisjon: Med forbrukerkjøp menes kjøp av eiendom når kjøperen er en fysisk person som ikke hovedsakelig handler som ledd i næringsvirksomhet. Forbruker – avtalevilkår: Eiendommen har en mangel dersom den ikke er i samsvar med kravene som følger av avtalen, eller det foreligger brudd på bestemmelsene i avhendingsloven §§ 3-2 til 3-8. Hvis eiendommen ikke er i samsvar med det kjøperen må kunne forvente ut ifra alder, type og synlig tilstand, kan det være grunnlag for mangelskrav. Det samme gjelder hvis det er holdt tilbake eller gitt uriktige opplysninger om eiendommen. Dette gjelder likevel bare dersom man kan gå ut ifra at det virket inn på avtalen at opplysningen ikke ble gitt eller at feil uriktige opplysninger ikke blir rettet i tide på en tydelig måte. Boligen kan ha en mangel etter avhendingsloven § 3-3 dersom det er avvik mellom opplyst og faktisk innvendig areal, forutsatt at avviket er på 2% eller mer og minimum 1 kvm. Ved beregning av et eventuelt prisavslag eller erstatning må kjøper selv dekke tap/kostnader opptil et beløp på kr 10 000 (egenandel). Ikke-forbruker (næringsdrivende) – definisjon: Hvis kjøper er en juridisk person, eller en fysisk person som hovedsakelig handler som ledd i næringsvirksomhet, vil kjøpet ikke anses som et forbrukerkjøp. Ikke-forbruker – avtalevilkår: Eiendommen har en mangel dersom den ikke er i samsvar med kravene som følger av avtalen. Eiendommen selges «som den er», og selgers ansvar utover det konkret avtalte er da begrenset etter avhendingsloven § 3-9, første ledd andre setning. Avhendingsloven § 3-3 andre ledd fravikes, og hvorvidt boligens arealsvikt utgjør en mangel vurderes etter avhendingsloven § 3-8. Informasjon om kjøpers undersøkelsesplikt, herunder oppfordringen om å undersøke eiendommen nøye, gjelder også for kjøpere som ikke anses som forbrukere.
Boligselgerforsikring
Selger har tegnet boligselgerforsikring. Se selgers egenerklæringsskjema vedlagt salgsoppgaven.
Boligkjøperforsikring
I samarbeid med Storebrand og HELP tilbyr Nordvik Boligkjøperpakke til våre boligkjøpere. Boligkjøperpakken er et gunstig forsikringskonsept som inneholder alle de forsikringene du trenger til den nye boligen din. Boligkjøperpakke Hus inneholder: Boligkjøperforsikring fra HELP, flytteforsikring, innboforsikring Super og husforsikring Super fra Storebrand. Boligkjøperforsikring er en rettshjelpsforsikring som gir trygghet og profesjonell juridisk hjelp dersom det oppdages uventede feil eller mangler ved boligen. Forsikringen gjelder i 5 år fra overtakelsen. Flytteforsikring dekker skade på eiendeler under flytting ved plutselig og uforutsett hendelse som oppstår under transport eller i forbindelse med bæring mellom bolig, bil eller lagringssted. Forsikringen varer i 1 år fra budaksept. Innboforsikring Super dekker tingene dine ved blant annet tyveri, brann eller vannskader. Vår beste innboforsikring Super inkluderer blant annet uflaksforsikring, bistand ved ID-tyveri og psykologhjelp ved alvorlige hendelser hjemme. Forsikringen gjelder i 3 måneder fra overtakelsesdatoen av ny bolig. Husforsikring Super dekker alt fra brann og vannskader til naturskader og bekjempelse av rotter og mus. I tillegg inkluderer Super-dekningen vannskader fra våtrom, sopp- og råteskader, og følgeskader på bygningen som skyldes håndverkerfeil. Forsikringen gjelder i 3 måneder fra overtakelsesdatoen av ny bolig. Velger du Boligkjøperpakke Hus+ får du i tillegg renteforsikring: Renteforsikringen kan hjelpe deg med rentekostnaden og forsikringspremien på din primærbolig som skal selges, hvis salgsprosessen fører til at du må betale rentekostnader på to lån. Forsikringen gjelder i 9 måneder (3 måneder karenstid) og dekker inntil 15 000 kroner i måneden. Boligkjøperforsikring fra HELP kan også kjøpes separat og inkluderer da flytteforsikring fra Storebrand. Boligkjøperpakke/Boligkjøperforsikring må tegnes senest ved kontraktsignering og gjelder fra overtakelsen. Kjøper blir kontaktet av Storebrand med et tilbud på videre forsikring av hus og innbo. Se pris og mer informasjon om forsikringene i produktarket vedlagt salgsoppgaven, eller ta kontakt med megler.
Betalingsbetingelser
Oppgjør skal betales i en samlet innbetaling fra norsk bank. Betaling fra utlandet tillates kun i unntakstilfeller og dersom det er avklart med megler i anledning avtaleinngåelse (budaksept).
Viktig informasjon om budgivning
Alle bud skal inngis skriftlig til megler, som formidler disse videre til selger. Kravet til skriftlighet gjelder også budforhøyelser og motbud, aksept eller avslag fra selger. Bud kan legges inn på eiendommens finn-annonse ved å trykke på knappen «gi bud» eller via vår hjemmeside. Bud kan legges inn på eiendommens annonse på hjem.no/finn.no ved å trykke på knappen «gi bud» eller via vår hjemmeside. Ved elektronisk budgivning legges bud inn ved å benytte BankID. Bud kan også inngis på budskjema vedlagt i salgsoppgaven. Før megler formidler bud til selger, skal megler innhente gyldig legitimasjon og signatur fra budgiver. Kravet til legitimasjon og signatur er oppfylt for budgivere som benytter e-signatur, eksempelvis BankID eller MinID. Senere bud kan inngis per e-post eller SMS til megler. Dersom budgiver skal by på eiendommen i henhold til kjøpsfullmakt må megler kontaktes i forkant av budgivning. Ved bruk av kjøpsfullmakt, må fullmakten oversendes til megler i forkant av budgivning. Kjøper kan ikke kreve at eiendommen tinglyses på andre enn kjøper. Om kjøper ønsker at noen andre skal stå som hjemmelshaver, må det tas forbehold om dette i budet. Selger kan velge å ikke akseptere dette. Et bud bør inneholde eiendommens adresse (eventuelt gnr/bnr), kjøpesum, budgivers kontaktinformasjon, finansieringsplan, akseptfrist, overtakelsesdato og eventuelle forbehold som for eksempel usikker finansiering, salg av nåværende bolig ol. Normalt vil ikke et bud med forbehold bli akseptert før forbeholdet er avklart. Konferer gjerne med megler før bud avgis. Et bud bør inneholde eiendommens adresse (eventuelt gnr/bnr), kjøpesum, budgivers kontaktinformasjon, finansieringsplan, akseptfrist, overtakelsesdato og eventuelle forbehold. Megler skal legge til rette for en forsvarlig avvikling av budrunden. I forbrukerforhold (dvs. der selger er forbruker) skal megleren ikke formidle bud med kortere akseptfrist enn kl. 12.00 første virkedag etter siste annonserte visning. Senere bud må ha en tilstrekkelig lang akseptfrist til at megler, så langt det er nødvendig og mulig, kan videreformidle budet og eventuelle forbehold til alle involverte parter og legge til rette for at disse får tid til å områ seg, jf. forskrift om eiendomsmegling § 6-3. Akseptfrist bør derfor være på minimum 30 minutter, og budforhøyelser bør skje senest 10 minutter før fristens utløp. Dersom bud inngis med en frist som åpenbart er for kort til at megleren kan avvikle budrunden på en forsvarlig måte, vil megler fraråde budgiver å stille slik frist. Megleren vil uoppfordret gi sin vurdering av det enkelte bud overfor selgeren, når budet er gitt innenfor akseptfristene ovenfor. Megler skal så snart som mulig bekrefte skriftlig overfor budgivere at budene deres er mottatt. Megler kan ikke formidle bud med forbehold om at budet eller forbehold i budet skal holdes skjult (hemmelig) for andre budgivere og interessenter. Etter at handel har kommet i stand, eller dersom en budrunde avsluttes uten at handel er kommet i stand, kan en budgiver kreve kopi av budjournalen i anonymisert form. Kopi av budjournal skal gis til kjøper og selger uten ugrunnet opphold etter at handel er kommet i stand. Dersom det er viktig for budgiver å bevare sin anonymitet, bør budet fremmes gjennom fullmektig. For mer informasjon om budgivningsprosessen, se «Forbrukerinformasjon om budgivning», som er vedlagt salgsoppgaven, eller ta kontakt med megler.
Tilbud på finansiering
Du kan søke om boliglån hos vår samarbeidspartner Storebrand, og få svar på dagen. Med boliglån i Storebrand kan du være trygg på at du til enhver tid har blant markedets mest konkurransedyktige renter. Du vil bli tatt godt vare på av et av Norges beste servicemiljøer innen bank. Som kunde i Storebrand Bank får du en fast kontaktperson å forholde deg til, som vil gi deg gode råd og god hjelp med kort svartid. Søk om boliglån i Storebrand og få • Enkel søknad - og etableringsprosess • Svar på dagen • Fast kontaktperson å forholde deg til • Trygghet for at du alltid har konkurransedyktige betingelser Ta kontakt på telefon 22 31 22 21 eller nordvik@storebrand.no. Les mer på storebrand.no/nordvik. Meglerforetaket kan motta provisjon ved formidling av finansielle tjenester.
Hvitvasking
Eiendomsmeglere er underlagt lov om hvitvasking og tilhørende forskrift. Etter hvitvaskingsloven er eiendomsmegler pålagt å gjennomføre kundetiltak av både selger og kjøper. Hvis kjøper ikke bidrar til at megler får gjennomført kundetiltak, og dette fører til at transaksjonen ikke kan gjennomføres eller blir forsinket, misligholder kjøper avtalen. Etter 30 dager anses misligholdet vesentlig, og selger har rett til å heve avtalen og gjennomføre dekningssalg for kjøpers regning. Dersom det er selger som ikke bidrar til at megler får gjennomført løpende kundetiltak underveis i oppdraget må eiendomsmegler stanse gjennomføringen av transaksjonen. Selger vil i et slikt tilfelle ha misligholdt sine forpliktelser, og kjøper vil kunne ha et krav mot selger etter avhendingsloven. Hvis kundetiltak ikke lar seg gjennomføre, vil Nordvik Eiendomsmegling ikke kunne bistå med handelen eller foreta oppgjør.
Personopplysningsloven
Personopplysninger vil bli behandlet i samsvar med personopplysningsloven. Ved å registrere deg som interessent og/eller budgiver eller kjøpe vil vi innhente, behandle og registrere personopplysninger om deg. Eiendomsmeglingsforetak har plikt til å oppbevare kontrakter og dokumenter i 10 år, jf. eiendomsmeglingsforskriften § 3-7 (3). Denne oppbevaringsplikten begrenser muligheten for å få slettet personopplysninger. Du kan lese mer om Nordviks behandling av personopplysninger i vår personvernerklæring på nordvikbolig.no/personvern.
Om oppdraget
Eiendomsmeglers vederlag
Provisjon: 0,70% av salgssum Grunnpakke Hus kr. 15 900,- Markedspakke inkl. trykket salgsoppgave kr. 29 900,- Oppgjørshonorar** kr. 8 500,- Tilrettelegging kr. 16 900,- Visningshonorar/overtagelseshonorar per stk. kr. 3 900,- Dersom oppdraget utløper eller blir sagt opp, uten at handel er kommet i stand, har megler krav på et rimelig vederlag for medgått tid/utført arbeid og avtalte utgifter (tilrettelegging, markedsføring og avholdte visninger) samt eventuelle utlegg. Ved beregningen av vederlaget skal det tas utgangspunkt i timeprisen som er kr. 3 900,-.
Vedlegg til salgsoppgaven
Vedleggene er en del av den komplette salgsoppgaven. Det er viktig at interessenter setter seg godt inn i vedleggene og kontakter megler med eventuelle spørsmål før bud inngis.
Ansvarlig megler
Håkon Borgund Espeseth, Eiendomsmegler / Partner
452 71 262
h.espeseth@nordvikbolig.no
Meglerforetaket
Juridisk navn: Asker Eiendomsmegling AS
Org. nr.: 930177849
Smuget 1, 1383 ASKER
Samarbeidspartnere og foretak med tilknytning til Nordvik
Meglerforetaket og Nordvik-kjeden samarbeider med en rekke foretak som tilbyr produkter eller tjenester i forbindelse med megleroppdraget. - Storebrand leverer boligselgerforsikring, finansieringsløsninger og forsikringer til kjøper - Help forsikring leverer boligkjøperforsikring - Flytte- og lagringstjenester gjennom Loyalty, oppussing gjennom Steddy, brebånd levert av Telenor, alarm levert av Sector alarm, strøm levert av Fjordkraft og Fortum og utleietjenester levert av Utleiemegleren. Hvilke tilbud kjøper og selger får i forbindelse med oppdraget kan variere ut fra hvor i landet eiendommen ligger. Nordvik bolig AS, som er franchisegiver for Nordvik-kjeden, eier aksjer i Bomega AS (Hjem.no).
Trygg bolighandel med Nordvik
Forsikringer
Hos oss i Nordvik har vi for gode forsikringer til både deg som skal selge og deg som skal kjøpe.
Boligforsikring
Bilder






Ingen kjenner nabolaget bedre!
Hva sier innbyggerne om Asker?
Nordvikundersøkelsen gjør deg litt bedre kjent med området boligen ligger i, og får frem fakta, funn og innsikt som vi tror kan være nyttig ved valg av ny bolig.
Hele undersøkelsen finner du her.
Trivsel
91%Vil bli boende i Asker dersom de skulle flyttet.
Søndagsaktivitet
- Er ute, på tur, ski, trening (70%)
- Venner, familie, besøk, middag (8%)
- Slapper av, ser på TV, leser (18%)
- Jobber i hage/hus (25%)
Hva er innbyggene mest stolt av i nabolaget?
Vennlig og hjelpsomme naboer
77%Av alle innbyggene beskriver naboene sine som vennlige og hjelpsomme.
All data er hentet fra Nordvikundersøkelsen gjennomført våren 2025 i samarbeid med Norstat.
Håkon Borgund Espeseth
Eiendomsmegler / Partner
Asker
Selge bolig?
Slik hjelper jeg deg til
et godt salg
Er du klar til budrunde?

























































