Laster salgsoppgave...

Arnebråtveien 137Holmenkollen

Alle bilder (21)

1/21

Utvalgte bilder

Holmenkollen
Arnebråtveien 137
Priser i prosjektet:
kr. 17 900 000 - kr. 18 900 000
Totalpris inkl. omkostninger:
kr. 18 028 030 - kr. 19 028 030
BRA-i:
174.5 - 183 m2

Ved Voksen skole - 1 av 3 solgt

Villa Voksen - Klassiske eneboliger under oppføring - Hage - Underjordisk garasje - Peis - Barnevennlig - Byggestart!

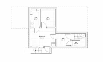
Villa Voksen er et eksklusivt boligprosjekt bestående av tre innholdsrike eneboliger med moderne og særpreget arkitektur, tegnet av anerkjente Gedde Dahl Arkitekter. Prosjektet er beliggende i et veletablert område på Voksen, kjent for sin sjeldne kombinasjon av naturskjønne omgivelser og nærhet til byens beste fasiliteter. Her bor du med kort vei til kollektivtransport, gode skoler og et variert servicetilbud, samtidig som området oppleves rolig og grønt. Se ellers prosjektets hjemmeside: https://bomer.no/prosjekt/villa-voksen/ Boligene kombinerer et klassisk uttrykk med moderne komfort. Store vindusflater gir rikelig med naturlig lys og skaper en sømløs overgang mellom inne og ute. Hver bolig har flere innbydende uteplasser som er naturlig integrert i arkitekturen, med skjermede hager og terrasser som gir gode solforhold, utsikt og privatliv. Prosjektet kjennetegnes av gjennomgående materialvalg og løsninger av høy kvalitet, med fokus på funksjonalitet, varighet og hverdagskomfort. Innendørs garasjeanlegg, enkelte med direkte adkomst til bolig, optimal plassering i terrenget samt master soverom med walk-in garderobe og en-suite baderom bidrar til et helhetlig og kvalitetsfullt bomiljø. Høydepunkter: - Klassiske og stilfulle eneboliger av god kvalitet. - Underjordisk garasjeanlegg. - Dokumentavgift av tomteverdi. - Eksklusive detaljer og løsninger. - Beliggenheten er ideell for barnefamilier som ønsker kort vei til naturen, samtidig som Oslo sentrum er lett tilgjengelig. - Mulighet for tilvalg*. - Familievennlig. Velkommen til Villa Voksen - et hjem for deg som verdsetter arkitektur, komfort og beliggenhet. Hvorfor kjøpe nytt? - Boligen er i forskriftsmessig stand med mange års reklamasjonsfrist. - Utbygger stiller med garantier i inntil fem år. - Lavere dokumentavgift. - Energiøkonomiske og klimavennlige løsninger. - Tidsriktige materialer og høy bokomfort. - Innflyttingsklar uten tanke på å måtte pusse opp først. - Det er svært lite vedlikeholdskostnader i nær framtid. Uteområde Området er etablert og barnevennlig, med kort vei til flotte tur- og friluftsmuligheter i marka. Sameiet vil bestå av tre eneboliger i klassisk uttrykk. Boligene oppføres i spennende arkitektur, med store vinduer og sorte karmer for et gjennomført uttrykk. Uteområdet blir opparbeidet og vil hovedsakelig bestå av grusede internveier og ferdigplen. Tilvalg De fleste ønsker å sette sitt personlige preg på boligen, og avhengig av hvor langt vi har kommet i byggeprosessen når avtale om kjøp inngås, er det muligheter for å endre, oppgradere eller påvirke materialvalg. Disse boligene har alle mulighet for hybel i første etasje – mot pristillegg under tilvalgsrundene. Ta gjerne kontakt med megler for en hyggelig prat og ytterligere informasjon. Selger/Utbygger: Arnebråtveien 137 AS, Org.nr: 929 642 112. Selskapet er opprettet med det formål å utvikle og bygge boligene i prosjektet Villa Voksen. Selskapet er heleid av BoMer AS, Org.nr: 919 041 285. Om BoMer: BoMer AS ble etablert av Marcus Engebretsen i 2017 med visjonen om å tenke utenfor boksen og utfordre tradisjonelle måter å tenke på. Vi utvikler boliger og boligområder fra uregulert tomt til nøkkelferdige hjem, med et sterkt fokus på kvalitet og stolthet - både for oss selv og for våre kunder. Eierstruktur BoMer eies 42,3 % av Cassinis AS, som igjen er eid av JMT Holdco AS - et selskap tilhørende Marcus Engebretsen og hans familie. Wilhelmsen-familien er også en sentral partner, med en eierandel på 57,74 % gjennom Skips AS Tudor, og bidrar med en solid kapitalbase. Innhold: Arealer: Hus 2: Kjellerplan: 30,1 m² (Bod, vaskerom/teknisk, kott og sluse). 1. etasje: BRA-i: 72,2 m² (Stue/Kjøkken/Spisestue, WC, Entré). 2. etasje: BRA-i: 72,2 m²(Fire soverom, to bad, gang). Sum: BRA-i: 174,5 m². Hus 3: Kjellerplan: 38,8 m². (2 boder, bad, kott og hall). 1. etasje: BRA-i: 72,1m² (Stue/Kjøkken/Spisestue, WC og entré) 2. etasje: BRA-i: 72,1 m² (Tre soverom, TV-stue og to bad). Sum: BRA-i: 183 m² Entré: Boligene får en innbydende og funksjonell entré med lyse fliser i størrelsen 60x60 cm, kombinert med varmekabler som gir en lun og velkommende atmosfære. Ytterdøren leveres i svart med ett glass, i slett og glatt finish, og er utstyrt med en FG-godkjent lås. Vegger, tak og vinduer får en elegant, listefri overgang. Hver bolig vil være utstyrt med Futurehome Smarthub II - hjernen og hjertet i fremtidens hjem. Boligen får også 15 Futurehome-dimmere, og alle rom utenom badet vil ha ett takpunkt som er klargjort for montering. Foruten entré, toalett og bad, får alle rom gulv i 1-stavs børstet, mattlakkert eikeparkett. Trappen leveres med åpne trinn i hvitlasert eik og hvitmalt rekkverk, håndløper og spiler. Stue og kjøkken: Hver bolig er utformet med nøye gjennomtenkte løsninger som fremhever det aller beste. Kjøkken og stue er plassert i en åpen og sosial løsning som strekker seg over store deler av 1. etasje. Dette gir mulighet for fleksibel møblering i flere soner, samtidig som den åpne løsningen skaper en luftig og romslig følelse. I stuen vil det også bli plassert en klassisk av typen Visionline s40-1 med sort glass i dør, som bidrar til en lun og hyggelig stemning. Fra allrommet er det utgang til utearealene, noe som gjør det enkelt å nyte måltider utendørs i sommerhalvåret. I husets hjerte vil det ikke spares på detaljer eller kvalitet. Kjøkkenet leveres av JKE Design til en verdi av kr. 200 000,-. Kjøperen får muligheten til å tegne sitt eget kjøkken og kan velge å justere innenfor den fastsatte rammen, for egen regning. Kjøkkenet leveres med kvalitetshvitevarer fra Siemens, samt kjøkkenkran av Tapwell, et navn som er synonymt med både kvalitet og design. Bad og WC: Boligene inneholder to bad i andre etasje og et toalett i første etasje, begge badene er utformet med fokus på kvalitet og tidløs estetikk. Flisene er av typen Azuma UP, og leveres i størrelsen 60x60 på både vegg- og gulvflater. I dusjsonen leveres mosaikkfliser i samme serie. Som standard leveres armaturer fra Oras Safira, samt dusjbatteri fra Vikingbad med rainshower Tiril for en ekstra behagelig dusjopplevelse. Tidløs baderomsmøbler type Linn Hilde hvit matt med skuffer og heldekkende vask inngår, med mulighet for oppgradering til en annen farge som tilvalg for de som ønsker det lille ekstra. I hus 3 leveres det badekar med armatur fra Tapwell for ekstra luksus og velvære. Soverom: I andre etasje finner man boligens soverom, inkludert hovedsoverommet som har en-suite løsning med eget bad.

Nøkkelinformasjon

Boligtype:
Enebolig (Eierseksjon)
Eieform:
Eierseksjon
Priser:
kr. 17 900 000 - kr. 18 900 000
Omkostninger:
kr. 128 030 - kr. 128 030
BRA-i:
174.5 - 183 m2
Totalt BRA:
174.5 - 183 m2
Tomteareal:
1 421,6 m2 (eiet)

Visninger

Gi bud

Har du finanseringsbevis på plass?

I samarbeid med

En personlig rådgiver fra vår samarbeidspartner Storebrand Bank vil hjelpe deg å gjøre deg klar til budrunden.

Boliger

BoligSoveromBRA-iBRA-eTotalt BRAPrisOmk.Totalpris
Hus 24174.5 m20 m2174.5 m217 900 000,-128 030,-18 028 030,-
Hus 33183 m20 m2183 m218 900 000,-128 030,-19 028 030,-

Trygg bolighandel med Nordvik

Forsikringer

Hos oss i Nordvik har vi for gode forsikringer til både deg som skal selge og deg som skal kjøpe.

Boligforsikring

Ingen kjenner nabolaget bedre!

Hva sier innbyggerne om Vestre Aker?

Nordvikundersøkelsen gjør deg litt bedre kjent med området boligen ligger i, og får frem fakta, funn og innsikt som vi tror kan være nyttig ved valg av ny bolig.

Hele undersøkelsen finner du her.

Trivsel

88%

Vil bli boende i bydelen dersom de skulle flyttet i dag.

Søndagsaktivitet

  • Er ute, på tur, ski, trening (73%)
  • Venner, familie, besøk, middag (14%)
  • Slapper av, ser på TV, leser (15%)
  • Jobber i hage/hus (13%)

Hva er innbyggene mest stolt av i nabolaget?

Vennlig og hjelpsomme naboer

70%

Av alle innbyggene beskriver naboene sine som vennlige og hjelpsomme.

All data er hentet fra Nordvikundersøkelsen gjennomført våren 2025 i samarbeid med Norstat.