Skåreråsen 12Lørenskog
LØRENSKOG
Oppussingsobjekt - Romslig 3-roms med fint utsyn! - Bad 2019 - Balkong på 13 m² - Garasje - Heis - Vvann/fyr inkl.
Velkommen til Skåreråsen 12, presentert av Sebastian Chodkowski i Nordvik Bolig! Dette er en lys og gjennomgående leilighet med god planløsning bestående av entré, stue, kjøkken, baderom og to soverom. Fra stuen er det utgang til en vestvendt balkong på 13 m² med fin utsikt og gode solforhold. I tillegg disponeres en parkeringsplass og ekstern kjellerbod. Leiligheten ligger i et attraktivt område med gangavstand til alle servicefunksjoner, kjøpesentre, skoler, barnehager og gode kollektivtilbud. Verdt å merke seg: - Lys og gjennomgående 3-roms i høy 1. etasje - Vestvendt balkong på 13 m² - Fin utsikt fra balkongen - Disponerer kjellerbod - Bad oppusset 2019 - Parkeringsplass - Heis i bygget - Kort vei til alt!
Nøkkelinformasjon
- Boligtype:
- Andelsleilighet
- Byggeår:
- 1972
- Etasje:
- 1
- Soverom:
- 2
- Prisantydning:
- 2 490 000,-
- Omkostninger:
- 9 786,-
- Fellesgjeld:
- 426 244,-
- Totalpris:
- 2 926 030,-
- Felleskost/mnd:
- 8 712,-
- Fellesformue:
- 30 339,-
- Totalt BRA:
- 73 m2
- Tomteareal:
- 25 474 m2 (eiet)
- Energimerking:
- D - gul
- Garasje:
- Ja
- Heis:
- Ja
- Veranda:
- Ja
Presenteres av
Har du finanseringsbevis på plass?
I samarbeid med
En personlig rådgiver fra vår samarbeidspartner Storebrand Bank vil hjelpe deg å gjøre deg klar til budrunden.

Nøkkelinformasjon
Oppdragsnummer
65-0014/26
Boligtype og eieform
Andelsleilighet (Andel)
Adresse og betegnelse
Skåreråsen 12, 1473 Lørenskog
Gnr. 101, bnr. 42 (ideell andel 1/1) i Lørenskog kommune.
Andelsnr. 13 i Skårertoppen 2 Borettslag, orgnr. 950581239
Kjøpesum og omkostninger
2 490 000,- (Prisantydning) 426 244,- (Andel av fellesgjeld) -------------------------------------------------------- 2 916 244,- (Pris inkl. fellesgjeld) Omkostninger: 8 406,- (Gebyr forhåndsavklaring forkjøpsrett) 290,- (Pantattest kjøper) 545,- (Tinglyst hjemmelsoverføring) 545,- (Tinglyst pantedokument) 9 500,- (Boligkjøperpakke* (valgfritt)) -------------------------------------------------------- 9 786,- (Omkostninger totalt (uten Boligkjøperpakke)) 19 286,- (Omkostninger totalt (med Boligkjøperpakke)) -------------------------------------------------------- 2 926 030,- (Totalpris inkl. omkostninger (uten Boligkjøperpakke)) 2 935 530,- (Totalpris inkl. omkostninger (med Boligkjøperpakke)) -------------------------------------------------------- NB: Regnestykket forutsetter at det kun tinglyses et pantedokument og at eiendommen selges til prisantydning. Det tas forbehold om endringer i offentlige avgifter/gebyrer. Andel fellesgjeld / Andel formue overtas av kjøper.
Om boligen
Byggeår
1972
Etasje
1
Arealer
BRA-i: 73 kvm
Totalt BRA: 73 kvm
TBA: 13 kvm
Beskrivelse:
1. etasje:
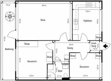
BRA-i: 73 kvm. Vindfang, gang, to soverom, kjøkken og bad.
Totalt BRA: 73 kvm
TBA: 13 kvm.
Antall soverom
2
Innhold
Boligen har alt på ett plan og inneholder: 1. etasje BRA-i 73 m²: Vindfang, gang, to soverom, kjøkken og bad. I tillegg disponeres: - Kjellerbod - Heis i bygget - Parkeringsplass
Standard
Entré: Velkommen! Boligen har en lys entré. Her er det plass til å henge fra seg yttertøy. Stue: I stuen er det god plass til sofa, tv-møbel og spisegruppe. Rommet har store vindusflater med uhindret utsikt. I tillegg er det utgang til en vestvendt balkong på 13 m². Her ute er det god plass til utemøbler, samt gass-/elektrisk grill. Fra balkongen er det gode solforhold. Kjøkken: Leiligheten har et eldre kjøkken med profilerte fronter og fronter med glass. Det er montert laminert benkeplate med dobbel oppvaskkum med svingbart blandebatteri. Videre er det plass til frittstående oppvaskmaskin, kjøl/fryseskap og komfyr med platetopp kullfiltervifte over stekesonen. Det er komfyrvakt og vannstopper under oppvaskkummen. Bad: Badet har flis på gulv og flis på vegger, samt gulvvarme. Badet er utstyrt med dusjhjørne med innfellbare dusjdører med blandebatteri. I tillegg er det opplegg for vaskemaskin, veggmontert toalett, servantskap med hvit servant og blandebatteri. På badet er det også fordelerskap med stoppekran, samt felles mekanisk avtrekk. To soverom: Boligen har to soverom. Hovedsoverommet har plass til dobbeltseng med tilhørende nattbord. Videre er det plass til klær i garderobeløsning. Soverom nr. 2 fungerer ypperlig som barnerom, gjesterom eller kontor - her er mulighetene mange. Rommet har plass til seng, nattbord, garderobeløsning og evt. skrivebord. Også dette rommet har garderobeskap. For full oversikt over tilstandsgrader, se punktet Byggemåte eller se vedlagt tilstandsrapport.
Parkering
Alle boenheter disponerer 1 parkeringsplass i parkeringshus. Borettslaget har parkeringsplasser og garasjeanlegg. Det er mulighet for motorvarmer i garasjeanlegget. 208 Parkeringsplasser inne (1 pr leilighet) 27 gjesteparkeringsplasser 40 utleieplasser ute 4 parkeringsplasser reservert for funksjonshemmede 1 gjesteparkering for funksjonshemmede Det er tilrettelagt for el-bil lading i garasjehuset og noen uteparkeringer. Kontakt styret ved behov. For øvrig gateparkering etter områdets gjeldende bestemmelser.
Sammendrag selgers egenerklæringsskjema
- Vet du om det har det blitt utført arbeid på bad/våtrom, enten i din eller tidligere eiertid? Ja, faglært. Firmaets navn og beskrivelse av arbeidet: Utført i regi av borettslag Utført i 2019 - Vet du om tettesjikt, membran eller sluk ble fornyet eller oppgradert? Ja, faglært. Firmaets navn og beskrivelse av arbeidet: Utført i regi av borettslag Utført i 2019 - Vet du om det finnes dokumentasjon på hvordan bad eller vaskerom er bygget opp? Nei. Eventuell kommentar: Utført i regi av borettslag. Utført i 2019. - Vet du om det er gjort arbeid på det elektriske anlegget, enten i din eller tidligere eiertid? Ja. Foreligger det en samsvarserklæring? Ja. Firmaets navn og beskrivelse av arbeidet: Partner Elektro. Utskiftning av automatsikringer i sikringsskap til jordfeilautomater. Ny kurs til vaskemaskin bad. Ny belysning og varmekabel bad. Utført i regi av borettslag 2018/2019. - Vet du om det er gjort arbeid på vann og avløp, enten i din eller tidligere eiertid? Ja, faglært. Firmaets navn og beskrivelse av arbeidet: Oppgradering av soilrør kjøkken og bad. Usikker når dette ble utført i regi av borettslag. - Vet du om det er gjort arbeid på eiendommen som ikke er nevnt i de andre spørsmålene? Ja, både faglært og ufaglært. Firmaets navn og beskrivelse av arbeidet: Kjøkken har blitt oppgradert siden byggeår. Dette er utført av egen innsats. Ukjent når dette ble gjort. Rørlegger har montert vask. Ukjent firma. - Vet du om det er eller har vært feil ved bad/vaskerommet, f.eks sprekker, lekkasje, råte, lukt eller soppskader? Nei. Eventuell kommentar: Ikke utenom det som er blitt opplyst i takstrapporten - Vet du om det er eller har vært problemer med mur/pipe/ilsted, for eksempel dårlig trekk, sprekker, pålegg, fyringsforbud eller liknende? Nei. Eventuell kommentar: Ikke aktuelt
Bygningssakkyndig
Kristoffer Messel
Byggemåte
Informasjon er hentet fra vedlagte tilstandsrapport, datert 02.02.2026 Bygning: Leilighet er oppført i én etasje. Grunnmur er oppført i støpt betong. Veggkonstruksjon er oppført i betong, og er kledd med metallplater og fasadeplater. Taket er et flatt tak og er tekket med papp. Etasjeskille er et betongdekke. Vinduer og dører: Vinduer og balkongdør med treramme og 2-lags glass. Entrédør med malt overflate. Innvendig dører med malt overflate. Balkong/terrasse: Det er etablert en vestvendt balkong på 13 m². VVS-installasjoner: Leiligheten har synlig avløpsrør i plast. Rør i rør system, Plast Deler av innvendige avløps- og vannrør er skiftet i forbindelse med oppgradering av kjøkken og bad. Ukjent omfang. Radiator er montert på kjøkken, to soverom og stue. Luftbehandling: Naturlig ventilasjon med klaffventiler på yttervegg og spalteventiler i vindu. Elkraft: Automatsikringer. Sikringsskap er montert på vegg i vindfanget. Nedenfor gjengis en kort oppsummering der den bygningssakyndige har beskrevet avvik ved boligen som har fått tilstandsgrad 2 (TG2) eller 3 (TG3). TG2 med avvik som kan kreve tiltak: Balkong, terrasse, platting Manglende vedlikehold av balkong. Det registreres skade/sprekk i betongen og fasadeplate. Vinduer og dører Mer enn halve levetiden er oppbrukt for isolerglassvinduene, slitasje på utsiden og dørhåndtak som sitter løst. Kjøkken - Overflater og innredning Eldre kjøkken med fuktmerker og slitasje. Kjøkken - Avtrekk Kjøkkenventilator med omluftfunksjon/kullfilter. Avløpsrør Mer enn halvparten av forventet brukstid for skjulte røranlegg er oppbrukt Vannledninger Mer enn halvparten av forventet brukstid for skjulte røranlegg er oppbrukt Vannbåren varme Radiatorer og/ eller eldre deler har nådd en alder der skader/ lekkasjer er mer påregnelig i tiden som kommer. Våtrom: Bad - Overflater Riss / sprekker i flisfuger på vegg. Sprekt silikonfug. Våtrom: Bad - Sanitærutstyr Det registreres mindre fuktsvellinger i bunn på servantskapet. TGIU - Konstruksjoner som ikke er undersøkt: Varmesentral Leiligheten er tilknyttet felles varmesentral som er plassert i fellesarealet. Anlegget er ikke tilgjengelig på befaringsdagen og er derfor ikke vurdert. Varmtvannsbereder Det blir ikke registrert noen bereder i boligen og plassering av denne er ukjent. Tilstandsrapport ligger vedlagt i salgsoppgaven. Interessenter anbefales å sette seg inn i denne.
Innbo og løsøre
Hvitevarer på kjøkken medfølger.
Vedlagt salgsoppgaven følger NEF sin standardliste "Oversikt over løsøre og tilbehør". Med mindre annet fremkommer av salgsoppgaven gjelder denne listen.
Dersom det er noe i overnevnte liste som ikke finnes på eiendommen, vil det heller ikke medfølge. Produkter og installasjoner som medfølger overdras uten noen form for garantier, utover eventuell gjenværende leverandørgaranti. Hull og merker etter feste av innredning og utstyr som ikke følger med, aksepteres av kjøper.
Adgang til utleie
Det er begrenset adgang til å leie ut bolig i borettslag. Med styrets godkjenning og på visse vilkår kan boligen leies ut for inntil 3, år. jf. borettslagsloven § 5-3 til § 5-10. Andelseier som bor i boligen selv, kan leie ut deler av boligen til andre uten godkjenning, jf. borettslagsloven § 5-4. Kortidsutleie er tillatt i opptil 30 døgn i året, uten samtykke fra styret.
Energi og oppvarming
Energimerking
D - gul
Alle eiendommer som selges/leies ut skal ha energiattest. Unntak gjelder blant annet for frittstående bygninger med bruksareal mindre enn 50 m². Det er eier som plikter å fremlegge energiattest og er selv ansvarlig for at opplysningene er riktig.
Dersom eier ikke har lagt frem energiattest, og eier etter skriftlig anmodning fra kjøper ikke har lagt frem energiattest før avtale om salg er inngått, kan kjøper få laget en energiattest ved hjelp av ekspert for selgers regning, innen ett år etter at avtale om salg er inngått. Dette følger av forskrift om energimerking av bygninger og tekniske anlegg § 5 (3).
Energiattest er basert på nåværende eiers/ husstands senere års forbruk og utgifter. Dette vil kunne variere avhengig av antall familiemedlemmer i husstanden, ønsket innetemperatur, egne fordelsavtale mv. Megler har intet ansvar for informasjon som fremgår av energiattesten.
Oppvarming
Oppvarming via radiatorer. Gulvvarme på bad.
Informasjon om strømforbruk
Selger har ikke opplyst om strømforbruk. Forbruk vil variere fra husstand til husstand. Det er ikke kjent om leiligheten er tilknyttet Norgespris.
Økonomi
Felleskostnader
Kr. 8 712,- pr. mnd
Inkluderer: Felleskostnadene inkluderer oppvarming, renovasjon, tele og data, vaktmester, betjening av lån, kommunale avgifter.
Felleskostnadene fordeles slik:
- Felleskostnader: kr. 5 731,-
- Garasje og vedlikehold: kr. 400,-
- Søppelhåndtering: kr. 100,-
- Stipulerte avdrag: kr. 739,-
- Stipulerte renter: kr. 1 745,-
Det pågår prosjekt om fasaderehabilitering i borettslaget, dette vil på sikt øke felleskostnader og fellesgjeld. Per dags dato er det uvisst hvor stor denne økningen vil bli. Styret er innstilt på en rolig opptrapping av felleskostnader.
Kommunale avgifter
Inkl. i de månedlige felleskostnadene.
Eiendomsskatt
Fra og med 2026 innføres det eiendomsskatt på boliger i Lørenskog kommune. Eiendomsskatten for 2026 er på 1 promille. Eiendomsskatten kan økes med 1 promille per år, til totalt 4 promille. Eiendomsskatten beregnes av 70% av boligverdien og det blir også fratrukket et bunnfradrag på kr 100.000. Boligverdien som legges til grunn for beregningen er markedsverdi fra Skatteetaten. For mer informasjon rundt beregningsgrunnlaget for eiendommen, se https://www.lorenskog.kommune.no/tjenester/skatt-naring-og-landbruk/eiendomsskatt/beregning-av-eiendomsskatt/
Formuesverdi
Primærbolig: Kr. 1 068 295,- pr. 2024
Sekundærbolig: Kr. 4 273 181,- pr. 2024
Skatteetaten beregner en boligverdi (beregnet markedsverdi for bolig) basert på SSBs statistiske opplysninger om omsatte boliger. I beregningen tas det hensyn til din boligs beliggenhet, areal, byggeår og type bolig. Formuesverdien er en prosentandeldel av denne boligverdien.
For mer informasjon om formuesverdi, se Skatteetatens nettsider.
Borettslaget
Om borettslaget
Diverse opplysninger om borettslaget: - Borettslaget består av 108 andelsboliger, fordelt på 5 bygninger med adressene Skårerlia 16-18, Skårerlia 20-22 og Skårer Terrasse 6-10, Skårer Terrasse 12-16 og Skårer Terrasse 18-22. - Skåreråsen II Borettslag ble stiftet 07.12.1965. - Hjemmeside:www.skarerasen2.no - Styret kan kontaktes på e-post: styret.skarertoppen2@gmail.com - Små daglige saker følges opp via facebook «Skåreråsen 2 borettslag - for våre beboere» og på fellesgruppen «Skåreråsen - vi som bor her». - Borettslaget har avtale med Vaktmesterkompaniet om sommer-vaktmestertjeneste. - Borettslaget har avtale med Iver Hammerud om vinter-vaktmestertjeneste. - Borettslaget har avtale med P-service om parkeringstjeneste. - Borettslaget har eget trimrom og mulighet for leie av selskapslokale Det ble vedtatt på tidligere generalforsamlingen at borettslaget skal igangsette rehabilitering av byggenes fasade. Prosjektet er ikke vedtatt pt. Prosjektet er i planleggingsfasen, detaljer eller økonomien i prosjektet er ikke ferdigstilt. Prosjektet ble vedtatt utsatt på generalforsamling 18.06.2025. I forslaget ble det estimert en økning i månedlige felleskostnader per andel fra mellom kr. 4 750,- og 5 662,- avhengig av hvor mye lån som ble tatt opp og hvilke arbeider som ble prioritert. Styret opplyser per e-post at det er en felles forståelse innad i borettslaget at det er naturlig for styret å jobbe videre med løsninger rundt prosjektet, selv om forslag om finansiering ble nedstemt under årets generalforsamling. Hentet fra innkalling til generalforsamling 2025: Fasaderehabilitering: Betongfasadene med svalganger og balkonger i Skårertoppen 2 borettslag bærer preg av elde, slitasje og manglende vedlikehold. Det er påvist mye skader og det er helt nødvendig å gjøre tiltak for å bevare byggene. Byggene er fra 1972 med datidens standard. Leilighetene er dårlig isolert og trekkfulle. Det ble for 2 år siden hugget ned over 150kg. løs betong, og vi ser at betongen har blitt mye dårligere bare på de siste 2 årene. Styret har derfor de siste årene jobbet mot en fasaderehabilitering. Dette har det vært informert om på beboermøter og generalforsamlinger, og det har blitt vedtatt at styret skulle jobbe videre med dette. Styret har engasjert USBL Prosjekt til å bistå borettslaget med dette. Ødegaard & Lund har vært engasjert for å vurdere hvilke tiltak som må iverksettes for å bevare betongkonstruksjonen. Kort oppsummert er tiltakene følgende: - Bytte ut alle betongrekkverk - Utbedre skadet betong på søyler og gulv på balkonger og svalganger - Spesialmaling på betong - Nytt belegg balkong og svalgang. Ekstra sklisikring på svalganger. - Etterisolere og tette leilighetsvegger. - Bytte vinduer og dører - Etterisolere mot loft - Etterisolere gavlvegger (endevegger på blokkene) Kostnader – anleggsbudsjett januar 2025, det må nå tas høyde for økte kostnader i form av: - Prisindeksregulering ca. 4% - Reviderte tilbud fra konsulenter - Rabatt gitt fra entreprenør kan bortfalle - ENOVA tilskudd (10 000 000) varer med frist for innsendelse av sluttrapport 20.04.2028 - Offentlige forhold kan ha endret seg Alternativ 1 fult prosjekt: Det er satt opp et totalbudsjett for arbeidene basert på forhandlet kontraktsum av januar 2025 etter tilbudskonkurranse på kr. 195.502.721, - inkl mva. I dette budsjettet er det medtatt: - Entreprisekostnad - Uforutsett - Prosjektledelse og konsulenter - Styrets kostnader - Finansiering - Kommunale avgifter / gebyrer - Møtehonorarer m.m Totalkostnad: kr. 210 000 000,- Per leilighet: kr. 1 009 615,- Ved dette forslaget ville felleskostnader ca. økt per måned: kr. 5 662,- (kr. 5 889,- prisindeks januar 2026). Styret har søkt om økonomisk støtte til arbeidet gjennom Enova til energitiltak. Det er ikke tatt høyde for energibesparing i forbindelse med etterisolering av bygget, dette er estimert til – 800 kr pr måned (pr andel). Husleien vil øke gradvis og vil ved ferdigstillelse havne med en økning på ca 5100,-kr, så lenge det ikke skjer noe uforutsett. Lørenskog kommune gir ikke tilskudd. Alternativ 2 kun betong: Det er satt opp et totalbudsjett for arbeidene basert på forhandlet kontraktsum av januar 2025 etter tilbudskonkurranse på kr. 170.000.000, - inkl mva. I dette budsjettet er det medtatt: - Entreprisekostnad - Uforutsett - Prosjektledelse og konsulenter - Styrets kostnader - Finansiering - Kommunale avgifter / gebyrer - Møtehonorarer m.m Totalkostnad: kr. 170 000 000,- Per leilighet: kr. 817 308,- Ved dette forslaget ville felleskostnader ca. økt per måned: kr. 4 750,- (kr. 4 942,- prisindeks januar 2026). Lørenskog kommune gir ikke tilskudd. Med denne løsningen får vi ikke ENOVA støtte (10 000 000,-) og det vil ikke komme noen besparelser på energiforbruket. Prisbesparelsen mellom forslag nr 1 og nr 2 er i praksis ca 200,- pr måned (pr andel). Under selve møtet ble det fremmet et benkeforslag, presentert som Alternativ 3, som følge av: Saken utsettes for nærmere utredning. Generalforsamlingen mener at det trengs mer utfyllende og grundig informasjon før det tas stilling til et så omfattende prosjekt. Saken utsettes derfor inntil prosjektleder og styret legger frem en mer helhetlig og detaljert fremstilling av prosjektet. Styret opplyser per e-post datert 04.02.2026: Vi er en fase det vi jobber med å ferdigstille anbudet i forbindelse med fasaderehabiliteringen. Prosjektet vil resultere i økning. Hvor mye eksakt er enda uvisst, styrets holdning er å få til en fornuftig opptrapping. Treningsrom og borettslagets utleielokale er nylig forbedret, dette er verdt å notere seg.
Forretningsfører
Bori BBL
Forkjøpsrett
Borettslaget og boligbyggelagets medlemmer har forkjøpsrett.
Ta kontakt med megler for å høre om forkjøpsretten.
Gebyr forkjøpsrett: Kr. 8 406,-
Styregodkjennelse
Overdragelse av borettslagsandelen til ny andelseier må godkjennes av styret i borettslaget. Godkjenning kan bare nektes dersom det foreligger saklig grunn. Eiendomsmegler bistår med innsending av søknad om styregodkjennelse. Kjøper bærer risikoen for å bli godkjent som ny andelseier i borettslaget, og kjøper er forpliktet til å gjennomføre handelen uavhengig av om kjøper på overtakelsestidspunktet er godkjent som ny eier. Kjøper gjøres oppmerksom på at boligen ikke kan tas i bruk før styrets godkjenning foreligger. Dersom styregodkjennelse ikke gis må kjøper videreselge boligen for egen regning og risiko.
Informasjon om fellesgjeld
Andel fellesgjeld: Kr. 426 244,- pr. 31.01.2026
Borettslaget har ett felles lån:
Långiver: HANDELSBANKEN
Rente: 4,95%
Type: Annuitetslån
Terminer: 12
Saldo: 88 658 905,-
Løpetid: 09.08.24 -30.12.50
Borettslaget er medlem av sikringsordning.
Borettslag som har tegnet seg for sikring kan si opp avtalen innen 1. desember med virkning fra kommende årsskifte. Etter borettslagslovens bestemmelser skal vedtak om oppsigelse av forsikringen gjøres av borettslagets generalforsamling.
Forsikringsselskapet kan til enhver tid si opp en avtale med forsikringstaker dersom forsikrede ikke oppfyller de krav som er lagt til grunn ved første gangs forsikring. For øvrig gjelder forsikringsavtalelovens regler.
Fellesgjelden kan bli besluttet økt etter utarbeidelse av salgsoppgaven.
Fellesformue
Kr. 30 339,- pr. 31.12.2025
Regnskap/budsjett/Kostnadsøkninger
Regnskap for 2024 viste er overskudd på kroner 1 620 861,-. I 2025 var det budsjettert med et underskudd på kroner 146 875 313,-. Dette skyldes en signifikant økning i posten Rep og Vedlikehold, og kan sees i sammenheng med de vedlikeholdsprosjektene som borettslaget planlegger. Regnskap for 2025 og budsjett for 2026 er ikke klart per februar 2026.
Vedtekter og husordensregler
Vedlagt følger husordensregler og vedtekter.
Beboernes forpliktelser og dugnader
Dugnad må påregnes.
Dyrehold
Dyrehold er etter søknad til styret tillatt i borettslaget etter følgende regler: - Hund/katt skal føres i bånd innenfor borettslagets område. - Lufting av dyr kan foretas av barn, men bare hvis de har full kontroll over dyret og i alle fall på eiers ansvar. - Lufting er ikke tillatt på lekeplasser, sandkasser og parkanlegg. - Området mellom blokkene er forbudt område for dyr. - Vaksinasjonspapirer på hunder leveres hvert år innen 1. mai. - Etter Ordinær Generalforsamling i 2013 ble det bestemt at nye hunder ikke tillates i en periode på 2 – 3 år. - Unntaket gjelder ikke førerhund.
Borettslagets forsikringsselskap
IF
Polisenr. SP1844502
Tomt
Beskrivelse av tomt
Tomtestørrelse: 25 474 kvm (eiet)
Tomten er delvis inngjerdet og bebygd med to høyblokker, beliggende på en kolle med hovedfasader vendt mot øst og vest. Uteområdet er opparbeidet med plen, prydbusker og noen områder med naturtomt som har større trær og naturlig vegetasjon. Det er også etablert lekeområder på tomten.
Tomten er fellesareal. At tomten er fellesareal innebærer at borettslaget eier og disponerer over de aktuelle områdene i fellesskap. Dette gir ikke hver enkelt andel en eksklusiv rett til bruk eller å disponere arealene, med mindre annet er uttrykkelig avtalt i avtale eller at det følger av vedtektene.
Adkomst
Se vedlagt kartskisse i annonsen. Ved å trykke på kartet får du enkelt tilgang til en spesifisert reiserute fra din startdestinasjon til boligen. På visningsdagen vil det bli skiltet med visningsskilter fra Nordvik Eiendom. Velkommen til visning!
Radonmåling
Selger har ikke utført radonmåling. Det er ikke krav om dette med mindre boligen er helt eller delvis utleid.
Områdebeskrivelse
Beskrivelse av nærområdet
Eiendommen ligger i et sentralt, attraktivt og familievennlig boligområde på Skårer i Lørenskog kommune. Området har nærhet til skoler, barnehager, kollektivtransport, samt et rikt utvalg av fasiliteter og servicetilbud. Fra eiendommen er det kort vei til Åsen skole og Løkenåsen skole. Det finnes flere videregående skoler i nærliggende områder, blant annet Lørenskog og Mailand vgs., i tillegg til et godt utvalg av barnehager. OsloMet- storbyuniversitetet har avdeling på Kjeller. Området gir mulighet for offentlig kommunikasjon via buss, hvorav nærmeste holdeplass er Skåreråsen og ligger ca. 400 meter fra boligen. Lørenskog sentrum har bussterminal, og fremstår som et kollektivt knutepunkt med hyppige avganger mot Oslo Bussterminal og Lillestrøm. Med bil fra Rasta tar det ca. 8 min til Strømmen Storsenter, 10 min til Lillestrøm, 17 min til Oslo S og 29 min til Oslo lufthavn. Dagligvarehandelen kan blant annet gjøres på Bunnpris eller Rema 1000, som ligger kun noen minutter gange fra leiligheten. Du finner i tillegg Meny og Coop Extra samt en rekke andre servicetilbud på Triaden storsenter. Ønsker du ytterligere servicetilbud er det kort vei til blant annet Metro og Strømmen Storsenter med over 200 butikker og tilknyttede virksomheter. Lillestrøm og Oslo sentrum ligger også godt innen rekkevidde. Fra Vallerud kan du ta deg ut i lysløypenett mot Mariholtet, og fra Sørlihavna går det lysløype mot Losby. Østmarka byr i tillegg på flere bade-/fiskevann og flott turterreng. Lørenskog kommune driver Losby besøksgård og kafé, hvor de besøkende kan oppleve ulike husdyr på nært hold. Losby Golfklubb har et meget flott golfanlegg med bl.a. 9 og 18-hulls golfbane, driving range, putting green og nærspillsområde. Det er et godt utbygd nett av gang-/sykkelveier i Lørenskog og omegn, og et aktivt idrettsmiljø med anlegg innen de fleste grener. Det er blant annet flere ballplasser, ishall bak Metro senter, golfbane på Losby, flerbrukshall på Fjellsrud, svømmehall og tennisbane ved Kjenn. Ved Lørenskog stasjon ligger verdens råeste helårsarena for snøopplevelser – SNØ. Parken vil har et areal på totalt 50 000 kvm, fire alpine nedfarter, stolheis, koppheis og bånd, blåpark med bigjump, samt langrennsspor på rundt 2 km og et fantastisk lekeområde. Anlegget er åpent hver dag, hele året, alltid nypreppet, alltid gøy!
Offentlige forhold
Ferdigattest / brukstillatelse
Det foreligger brukstillatelse for to stk. høyblokker på eiendommen datert 28.05.1971. Brukstillatelse dokumenterer at boligen lovlig kan brukes, og det fremkommer av attesten at det ikke gjensto arbeider for tiltaket. Det foreligger brukstillatelse for parkeringshus på eiendommen datert 20.12.197 (siste tall i dokumentet er ikke synlig). Brukstillatelse dokumenterer at boligen lovlig kan brukes, men at det gjenstår arbeider før ferdigattest kan utstedes. Det ble ikke nevnt gjenstående arbeider. Det gjøres oppmerksom på at det ikke utstedes ferdigattest for ikke-avsluttede byggesaker/ byggemeldinger som er fra før 1998. Kjøper påtar seg risikoen for fremtidig fortsatt bruk, og eventuelle pålegg fra det offentlige. Det foreligger ferdigattest for våtromsmodernisering og rørfornyelse på eiendommen datert 05.12.2019. Ferdigattest utstedes av bygningsmyndighetene på grunnlag av mottatt dokumentasjon fra kontrollansvarlige når et søknadspliktig tiltak er utført i samsvar med tillatelsen og øvrige krav etter plan- og bygningslovgivningen. At ferdigattest eksisterer, gir ingen garanti for bygget er oppført i henhold til tillatelsen og gjeldende regelverk eller at det senere er utført arbeid på bygget som ikke er byggemeldt eller godkjent.
Vei, vann og avløp
Eiendommen er tilknyttet offentlig vann og avløp. Stikkledninger fra eiendommen og ut til kommunalt nett er private, vedlikeholdsansvaret påhviler borettslaget. Adkomst via offentlig vei, interne veier er private og vedlikeholdes av borettslaget.
Regulerings- og arealplaner
Eiendommen er regulert til boligformål. Reguleringsformål er blokker (blokker med tilhørende anlegg). Området rundt blokken er regulert til boligformål og lek / friområde. Nord for eiendommen ligger Lørenskog ishall. Reguleringsplaner: Skårertoppen - Delareal 1 441 m2. Formål: felles garasjeanlegg - Delareal 15 499 m2. Formål: felles grøntareal - Delareal 2 447 m2. Formål: kjørevei - Delareal 1 571 m2. Formål: blokkbebyggelse - Delareal 1 244 m2. Formål: felles gangareal - Delareal 2 646 m2. Formål: felles parkeringsplass - Delareal 432 m2. Formål: forretning - Delareal 103 m2. Formål: friluftsområde Skåreråsen barneskole - Delareal 83 m2. Formål: annet fellesareal. Utdyp. Annet fellesareal - Delareal 7 m2. Formål: parkeringsplass Reguleringsplaner over bakken: Åsen og Løkenåsen skoler - Delareal 2 m2. Formål: fortau. Feltnavn o_FO6 - Delareal 821 m2. Formål: annen veggrunn - grøntareal. Feltnavn o_AVG - Delareal 103 m2. Formål: fortau. Feltnavn o_FO7 - Delareal 1 129 m2. Formål: gatetun. Feltnavn GT3 - Delareal 249 m2. Formål: uteoppholdsareal. Feltnavn f_UTE - Delareal 2 540 m2. RP HensynsonenavnH190_1. RPSikring Andre sikringssoner - Delareal 734 m2. Formål: kjøreveg. Feltnavn o_KV3 - Delareal 2 941 m2. Formål: parkering. Feltnavn f_P2 Kommuneplan: Kommuneplan 2022003 - Delareal 24 m2. Arealbruk: grønnstruktur (utgått), nåværende - Delareal 25 450 m2. Arealbruk: boligbebyggelse, nåværende For mer informasjon om reguleringsforhold kontakt megler eller søk på saksnummer/adresse/gnr. bnr på plan- og bygningsetatens hjemmeside. Borettslaget ligger i et aktsomhetsområde for kvikkleire i grunn, og det er middels til lav aktsomhetsgrad for radon i grunnen.
Tinglyste heftelser og forpliktelser
På eiendommen er det tinglyst følgende servitutter/rettigheter som følger eiendommens matrikkel ved overskjøting til ny hjemmelshaver: 1971/4794-3/8 30.09.1971 RETTIGHETER IFLG. SKJØTE RETTIGHETSHAVER: KNR: 3222 GNR: 109 BNR: 2. Bestemmelse om kloakkledning. GJELDER DENNE REGISTERENHETEN MED FLERE. Overført fra: KNR: 0230 GNR: 109 BNR: 13 Kommentar: Skjøte for eiendommen gnr 109, bnr 2 i Lørenskog. Ved eventuelle endringer i avløpet fra det solgte areal skal Lørenskog kommune sørge for nødvendig utvidelse eller omlegging på den gjenværende eiendom. 1972/599-1/8 04.02.1972 BEST. OM VANN/KLOAKKLEDN. Bestemmelse om adkomstrett. Med flere bestemmelser. Rett for kommunen til å anlegge og vedlikeholde ledninger m.m. Kommentar: Eier av gnr. 101, bnr. 42 i Lørenskog gir kommunen rett til å anlegge og ha liggende offentlig vann- og kloakkledning med nødvendige kummer på nevnte eiendom. Lørenskog kommune skal ha fri og uhindret fremkomst til traséen både for personer og materiell såvel til selve anleggets utførelse som til senere ettersyn, vedlikehold og reparasjon av sin ledning. Grunneieren må ikke bygge eller foreta anlegg over ledningene eller benytte sin eiendom på sådan måte at ledningsnettet utsettes for fare eller skade.
Legalpant
Borettslaget har legalpant på inntil 2G som sikkerhet for betaling av felleskostnader. Legalpant er pant som ikke kommer frem av grunnboksutskriften, og har bedre prioritet enn for eksempel lån til bank som er tinglyst på andelen.
Verneklasse/SEFRAK
Eiendommen er registert i byantikvarens gule liste. Dette innebærer at eiendommen er helt eller delvis bevaringsverdig, og kan ha betydning for fremtidig ombygging/restaurering mv. Byantikvaren skal gi en rådgivende uttalelse i byggesaker som berører eiendommen. For en fullstendig oversikt over eiendommens status, se: http://riksantikvaren.maps.arcgis.com/apps/webappviewer/index.html?id=545b8e996b6e4e1fbcb65f69299a7167
Øvrige kjøpsforhold
Diverse
Borettslagsmodellen innebærer at borettslaget eier eiendommen, mens andelseierne eier andeler i borettslaget, som gir borett til en bestemt bolig. Andelseierne har ikke personlig ansvar for borettslagets fellesgjeld, men andelseierne må dekke borettslagets løpende utgifter. Manglende innbetaling av fellesutgiftene som følge av andre andelshaveres mislighold, eller der borettslaget sitter på fraflyttede og/eller usolgte andeler, må dekkes av de øvrige andelseierne. Borettslaget har legalpanterett i andelen for krav på dekning av felleskostnader og andre krav fra borettslaget på inntil 2 ganger folketrygdens grunnbeløp. Kjøper og selger er forpliktet til å undertegne standard kjøpekontrakt utarbeidet av Nordvik i forbindelse med eiendomstransaksjonen. Kjøpekontrakt kan besiktiges hos eiendomsmegler før bud inngis. Kontakt eiendomsmegler for spørsmål. Selger leverer eiendommen i ryddig og rengjort stand.
Overtagelse
Overtakelse skjer etter avtale med selger. Før boligen overleveres kjøper, skal fullt oppgjør og omkostninger være mottatt på meglers klientkonto.
Sentrale lover
Eiendommen selges etter reglene i avhendingsloven. Generelle bestemmelser: Alle innvendige og utvendige arealangivelser, samt beskrivelser av bygningen er hentet fra vedlagte tilstandsrapport/boligsalgsrapport. Salgsoppgaven er basert på de opplysningene selger har gitt til megler, den bygningssakkyndiges tilstandsrapport, samt opplysninger innhentet fra kommunen, Kartverket og andre tilgjengelige kilder. Det er viktig at kjøper setter seg grundig inn i alle salgsdokumentene, herunder salgsoppgave, tilstandsrapport og selgers egenerklæring. Kjøper anses kjent med forhold som er tydelig beskrevet i salgsdokumentene, og slike forhold kan ikke påberopes som mangler. Dette gjelder uavhengig av om kjøper har lest dokumentene. Det kan være avvik fra dagens rombruk/rombenevnelser sammenlignet med det som er byggemeldt/godkjent. Alle interessenter oppfordres til å undersøke eiendommen nøye, gjerne sammen med fagkyndig før bud inngis. Kjøper som velger å kjøpe usett kan ikke gjøre gjeldende som mangel noe han burde blitt kjent med ved undersøkelsen. Dersom det er behov for avklaringer, anbefaler vi at interessenter rådfører seg med eiendomsmegler eller egne rådgivere før det legges inn bud. En bolig som har blitt brukt i en viss tid, har vanligvis blitt utsatt for slitasje og skader kan ha oppstått. Slik bruksslitasje må kjøper regne med, og det kan avdekkes enkelte forhold etter overtakelse som nødvendiggjør utbedringer. Normal slitasje og skader som nødvendiggjør utbedring, er innenfor hva kjøper må forvente og vil ikke utgjøre en mangel. Kjøper og selgers rettigheter og plikter reguleres av avtalen mellom partene, samt informasjonen som har vært tilgjengelig for kjøperen i forbindelse med handelen. Avtalen utfylles av avhendingsloven, og det gjelder ulike avtalevilkår avhengig av om kjøper er forbrukerkjøper eller ikke. Dette er nærmere beskrevet nedenfor. På grunn av ulike avtalevilkår kan selger vurdere bud fra en som ikke er forbruker, ulikt fra en forbrukers bud. Dersom kjøper ikke er forbruker, er selger sitt mulige mangelsansvar begrenset fordi eiendommen selges "som den er". Selger kan ikke ta «som den er» forbehold ovenfor en forbrukerkjøper. Selv et lavere bud fra en som ikke er forbruker kan foretrekkes fordi begrensningen i mulig mangelsansvar kan ha egenverdi for selger. Selger står fritt til å forkaste eller akseptere ethvert bud, og er for eksempel ikke forpliktet til å akseptere høyeste bud. Budgiver skal i budskjema avgi egenerklæring om budgiver er forbruker eller næringsdrivende/ person som hovedsakelig handler som ledd i næringsvirksomhet. Budgivere får informasjon dersom andre bud er inngitt av en som ikke er forbruker. Forbrukerkjøp - definisjon: Med forbrukerkjøp menes kjøp av eiendom når kjøperen er en fysisk person som ikke hovedsakelig handler som ledd i næringsvirksomhet. Forbruker – avtalevilkår: Eiendommen har en mangel dersom den ikke er i samsvar med kravene som følger av avtalen, eller det foreligger brudd på bestemmelsene i avhendingsloven §§ 3-2 til 3-8. Hvis eiendommen ikke er i samsvar med det kjøperen må kunne forvente ut ifra alder, type og synlig tilstand, kan det være grunnlag for mangelskrav. Det samme gjelder hvis det er holdt tilbake eller gitt uriktige opplysninger om eiendommen. Dette gjelder likevel bare dersom man kan gå ut ifra at det virket inn på avtalen at opplysningen ikke ble gitt eller at feil uriktige opplysninger ikke blir rettet i tide på en tydelig måte. Boligen kan ha en mangel etter avhendingsloven § 3-3 dersom det er avvik mellom opplyst og faktisk innvendig areal, forutsatt at avviket er på 2% eller mer og minimum 1 kvm. Ved beregning av et eventuelt prisavslag eller erstatning må kjøper selv dekke tap/kostnader opptil et beløp på kr 10 000 (egenandel). Ikke-forbruker (næringsdrivende) – definisjon: Hvis kjøper er en juridisk person, eller en fysisk person som hovedsakelig handler som ledd i næringsvirksomhet, vil kjøpet ikke anses som et forbrukerkjøp. Ikke-forbruker – avtalevilkår: Eiendommen har en mangel dersom den ikke er i samsvar med kravene som følger av avtalen. Eiendommen selges «som den er», og selgers ansvar utover det konkret avtalte er da begrenset etter avhendingsloven § 3-9, første ledd andre setning. Avhendingsloven § 3-3 andre ledd fravikes, og hvorvidt boligens arealsvikt utgjør en mangel vurderes etter avhendingsloven § 3-8. Informasjon om kjøpers undersøkelsesplikt, herunder oppfordringen om å undersøke eiendommen nøye, gjelder også for kjøpere som ikke anses som forbrukere. Eiendommen overdras med innredning og utstyr som etter lov, forskrift eller annet offentlig vedtak skal være der, jf. avhendingsloven § 3-4. Varig innredning og utstyr, som enten er fastmontert eller særskilt tilpasset boligen medfølger, med mindre annet er avtalt mellom kjøper og selger, jf. avhendingsloven § 3-5. Tilbehørsliste utarbeidet av Norges Eiendomsmeglerforbund (NEF) er vedlagt salgsoppgaven, og gjelder dersom ikke annet er særskilt avtalt.
Boligselgerforsikring
Selger har tegnet boligselgerforsikring. Se selgers egenerklæringsskjema vedlagt salgsoppgaven.
Boligkjøperforsikring
I samarbeid med Storebrand og HELP tilbyr Nordvik Boligkjøperpakke til våre boligkjøpere. Boligkjøperpakken er et gunstig forsikringskonsept som inneholder alle de forsikringene du trenger til den nye boligen din. Boligkjøperpakke Leilighet inneholder: Boligkjøperforsikring fra HELP, flytteforsikring og innboforsikring Super. Boligkjøperforsikring er en rettshjelpsforsikring som gir trygghet og profesjonell juridisk hjelp dersom det oppdages uventede feil eller mangler ved boligen. Forsikringen gjelder i 5 år fra overtakelsen. Flytteforsikring dekker skade på eiendeler under flytting ved plutselig og uforutsett hendelse som oppstår under transport eller i forbindelse med bæring mellom bolig, bil eller lagringssted. Forsikringen varer i 1 år fra budaksept. Innboforsikring Super dekker tingene dine ved blant annet tyveri, brann eller vannskader. Vår beste innboforsikring Super inkluderer blant annet uflaksforsikring, bistand ved ID-tyveri og psykologhjelp ved alvorlige hendelser hjemme. Forsikringen gjelder i 3 måneder fra overtakelsesdatoen av ny bolig. Velger du Boligkjøperpakke Leilighet+ får du i tillegg renteforsikring: Renteforsikringen kan hjelpe deg med rentekostnaden og forsikringspremien på din primærbolig som skal selges, hvis salgsprosessen fører til at du må betale rentekostnader på to lån. Forsikringen gjelder i 9 måneder (3 måneder karenstid) og dekker inntil 15 000 kroner i måneden. Boligkjøperforsikring fra HELP kan også kjøpes separat og inkluderer da flytteforsikring fra Storebrand. Boligkjøperpakke/Boligkjøperforsikring må tegnes senest ved kontraktsignering og gjelder fra overtakelsen. Kjøper blir kontaktet av Storebrand med et tilbud på videre forsikring av innbo. Se pris og mer informasjon om forsikringene i produktarket vedlagt salgsoppgaven, eller ta kontakt med megler.
Betalingsbetingelser
Oppgjør skal betales i en samlet innbetaling fra norsk bank. Betaling fra utlandet tillates kun i unntakstilfeller og dersom det er avklart med megler i anledning avtaleinngåelse (budaksept).
Viktig informasjon om budgivning
Alle bud skal inngis skriftlig til megler, som formidler disse videre til selger. Kravet til skriftlighet gjelder også budforhøyelser og motbud, aksept eller avslag fra selger. Bud kan legges inn på eiendommens finn-annonse ved å trykke på knappen «gi bud» eller via vår hjemmeside. Bud kan legges inn på eiendommens annonse på hjem.no/finn.no ved å trykke på knappen «gi bud» eller via vår hjemmeside. Ved elektronisk budgivning legges bud inn ved å benytte BankID. Bud kan også inngis på budskjema vedlagt i salgsoppgaven. Før megler formidler bud til selger, skal megler innhente gyldig legitimasjon og signatur fra budgiver. Kravet til legitimasjon og signatur er oppfylt for budgivere som benytter e-signatur, eksempelvis BankID eller MinID. Senere bud kan inngis per e-post eller SMS til megler. Dersom budgiver skal by på eiendommen i henhold til kjøpsfullmakt må megler kontaktes i forkant av budgivning. Ved bruk av kjøpsfullmakt, må fullmakten oversendes til megler i forkant av budgivning. Kjøper kan ikke kreve at eiendommen tinglyses på andre enn kjøper. Om kjøper ønsker at noen andre skal stå som hjemmelshaver, må det tas forbehold om dette i budet. Selger kan velge å ikke akseptere dette. Et bud bør inneholde eiendommens adresse (eventuelt gnr/bnr), kjøpesum, budgivers kontaktinformasjon, finansieringsplan, akseptfrist, overtakelsesdato og eventuelle forbehold som for eksempel usikker finansiering, salg av nåværende bolig ol. Normalt vil ikke et bud med forbehold bli akseptert før forbeholdet er avklart. Konferer gjerne med megler før bud avgis. Megler skal legge til rette for en forsvarlig avvikling av budrunden. I forbrukerforhold (dvs. der selger er forbruker) skal megleren ikke formidle bud med kortere akseptfrist enn kl. 12.00 første virkedag etter siste annonserte visning. Senere bud må ha en tilstrekkelig lang akseptfrist til at megler, så langt det er nødvendig og mulig, kan videreformidle budet og eventuelle forbehold til alle involverte parter og legge til rette for at disse får tid til å områ seg, jf. forskrift om eiendomsmegling § 6-3. Akseptfrist bør derfor være på minimum 30 minutter, og budforhøyelser bør skje senest 10 minutter før fristens utløp. Dersom bud inngis med en frist som åpenbart er for kort til at megleren kan avvikle budrunden på en forsvarlig måte, vil megler fraråde budgiver å stille slik frist. Megleren vil uoppfordret gi sin vurdering av det enkelte bud overfor selgeren, når budet er gitt innenfor akseptfristene ovenfor. Megler skal så snart som mulig bekrefte skriftlig overfor budgivere at budene deres er mottatt. Megler kan ikke formidle bud med forbehold om at budet eller forbehold i budet skal holdes skjult (hemmelig) for andre budgivere og interessenter. Etter at handel har kommet i stand, eller dersom en budrunde avsluttes uten at handel er kommet i stand, kan en budgiver kreve kopi av budjournalen i anonymisert form. Kopi av budjournal skal gis til kjøper og selger uten ugrunnet opphold etter at handel er kommet i stand. Dersom det er viktig for budgiver å bevare sin anonymitet, bør budet fremmes gjennom fullmektig. For mer informasjon om budgivningsprosessen, se «Forbrukerinformasjon om budgivning», som er vedlagt salgsoppgaven, eller ta kontakt med megler.
Tilbud på finansiering
Du kan søke om boliglån hos vår samarbeidspartner Storebrand, og få svar på dagen. Med boliglån i Storebrand kan du være trygg på at du til enhver tid har blant markedets mest konkurransedyktige renter. Du vil bli tatt godt vare på av et av Norges beste servicemiljøer innen bank. Som kunde i Storebrand Bank får du en fast kontaktperson å forholde deg til, som vil gi deg gode råd og god hjelp med kort svartid. Søk om boliglån i Storebrand og få: • Enkel søknad - og etableringsprosess • Svar på dagen • Fast kontaktperson å forholde deg til • Trygghet for at du alltid har konkurransedyktige betingelser Ta kontakt på telefon 22 31 22 21 eller nordvik@storebrand.no. Les mer på storebrand.no/nordvik. Meglerforetaket kan motta provisjon ved formidling av finansielle tjenester.
Hvitvasking
Eiendomsmeglere er underlagt lov om hvitvasking og tilhørende forskrift. Etter hvitvaskingsloven er eiendomsmegler pålagt å gjennomføre kundetiltak av både selger og kjøper. Hvis kjøper ikke bidrar til at megler får gjennomført kundetiltak, og dette fører til at transaksjonen ikke kan gjennomføres eller blir forsinket, misligholder kjøper avtalen. Etter 30 dager anses misligholdet vesentlig, og selger har rett til å heve avtalen og gjennomføre dekningssalg for kjøpers regning. Dersom det er selger som ikke bidrar til at megler får gjennomført løpende kundetiltak underveis i oppdraget må eiendomsmegler stanse gjennomføringen av transaksjonen. Selger vil i et slikt tilfelle ha misligholdt sine forpliktelser, og kjøper vil kunne ha et krav mot selger etter avhendingsloven. Hvis kundetiltak ikke lar seg gjennomføre, vil Nordvik Eiendomsmegling ikke kunne bistå med handelen eller foreta oppgjør.
Personopplysningsloven
Personopplysninger vil bli behandlet i samsvar med personopplysningsloven. Ved å registrere deg som interessent og/eller budgiver eller kjøpe vil vi innhente, behandle og registrere personopplysninger om deg. Eiendomsmeglingsforetak har plikt til å oppbevare kontrakter og dokumenter i 10 år, jf. eiendomsmeglingsforskriften § 3-7 (3). Denne oppbevaringsplikten begrenser muligheten for å få slettet personopplysninger. Du kan lese mer om Nordviks behandling av personopplysninger i vår personvernerklæring på nordvikbolig.no/personvern.
Om oppdraget
Eiendomsmeglers vederlag
Vederlag: Fast provisjon: kr. 30 000,- Kostnad for utsatt betaling*** kr. 3 500,- Grunnpakke Leilighet/tomt kr. 11 900,- Markedspakke med bolighefte kr. 23 500,- Oppgjørshonorar** kr. 8 500,- Tilrettelegging kr. 9 900,- Visningshonorar/overtagelseshonorar per stk. 2500,- (3 visninger gratis) kr. 0,- Utlegg: Eierskiftegebyr kr. 6 725,- Infoland - Informasjon forretningsfører ca. kr. 4 750,- Utlegg foto - Interiør og fasade ca. kr. 4 300,- Utlegg tilstandsrapport ca. kr. 9 500,- Samlet skal selger betale kr. 112 575,- for vederlag og utlegg ved salg til prisantydning. Dersom oppdraget utløper eller blir sagt opp, uten at handel er kommet i stand, har megler krav på et rimelig vederlag for medgått tid/utført arbeid og avtalte utgifter (tilrettelegging, markedsføring og avholdte visninger) samt eventuelle utlegg. Ved beregningen av vederlaget skal det tas utgangspunkt i timeprisen som er kr. 3 900,-.
Vedlegg til salgsoppgaven
- Selgers egenerklæring, datert 05.02.2026 - Tilstandsrapport, datert 02.02.2026 - Energiattest, datert 06.02.2026 - Brev fra forretningsfører, datert 02.02.2026 - Innkalling og protokoll fra årsmøte 2024, datert 11.06.2024 - Vedtekter og husordensregler - Reguleringsplankart, datert 07.03.2025 - Kommuneplankart, datert 07.03.2025 - Ferdigattester - Byggemeldte tegninger Vedleggene er en del av den komplette salgsoppgaven. Det er viktig at interessenter setter seg godt inn i vedleggene og kontakter megler med eventuelle spørsmål før bud inngis.
Ansvarlig megler
Sebastian Chodkowski, Eiendomsmegler / Partner
412 34 540
s.chodkowski@nordvikbolig.no
Megler
Kordian Zuraw, Eiendomsmeglerfullmektig
463 49 101
k.zuraw@nordvikbolig.no
Meglerforetaket
Juridisk navn: BG30 Eiendomsmegling AS
Org. nr.: 919945958
Haneborgveien 103, 1463 FJELLHAMAR
Samarbeidspartnere og foretak med tilknytning til Nordvik
Meglerforetaket og Nordvik-kjeden samarbeider med en rekke foretak som tilbyr produkter eller tjenester i forbindelse med megleroppdraget. - Storebrand leverer boligselgerforsikring, finansieringsløsninger og forsikringer til kjøper - Help forsikring leverer boligkjøperforsikring - Flytte- og lagringstjenester gjennom Loyalty, oppussing gjennom Steddy, brebånd levert av Telenor, alarm levert av Sector alarm, strøm levert av Fjordkraft og Fortum og utleietjenester levert av Utleiemegleren. Hvilke tilbud kjøper og selger får i forbindelse med oppdraget kan variere ut fra hvor i landet eiendommen ligger. Nordvik bolig AS, som er franchisegiver for Nordvik-kjeden, eier aksjer i Bomega AS (Hjem.no). BG30 Eiendomsmegling AS har indirekte eierskap i Bomega AS.
Trygg bolighandel med Nordvik
Forsikringer
Hos oss i Nordvik har vi for gode forsikringer til både deg som skal selge og deg som skal kjøpe.
Boligforsikring
Bilder






Ingen kjenner nabolaget bedre!
Hva sier innbyggerne om Lørenskog?
Nordvikundersøkelsen gjør deg litt bedre kjent med området boligen ligger i, og får frem fakta, funn og innsikt som vi tror kan være nyttig ved valg av ny bolig.
Hele undersøkelsen finner du her.
Trivsel
89%Vil bli boende i Lørenskog dersom de skulle flyttet.
Søndagsaktivitet
- Er ute, på tur, ski, trening (72%)
- Venner, familie, besøk, middag (20%)
- Slapper av, ser på TV, leser (23%)
- Jobber i hage/hus (6%)
Hva er innbyggene mest stolt av i nabolaget?
Vennlig og hjelpsomme naboer
73%Av alle innbyggene beskriver naboene sine som vennlige og hjelpsomme.
All data er hentet fra Nordvikundersøkelsen gjennomført våren 2025 i samarbeid med Norstat.
Sebastian Chodkowski
Eiendomsmegler / Partner
Lørenskog
Selge bolig?
Slik hjelper jeg deg til
et godt salg
Er du klar til budrunde?
Hva er din bolig verdt?
Kordian Zuraw
Eiendomsmeglerfullmektig
Lørenskog
Selge bolig?
Slik hjelper jeg deg til
et godt salg
Er du klar til budrunde?































