Øvre Haugerød 10
- Øvre Haugerød 10
- Prisantydning
- 4 990 000,-
- Totalpris
- 5 116 130,-
- Kommunale avg.
- 16 782,- per år
- BRA-i
- 184 m2
Øvre Haugerød/ Bjorbekk
Stor og innholdsrik enebolig - Nydelig utsikt over Nidelva - Stor tomt på ca. 2 mål - Dobbeltgarasje - fine uteområder
Kristoffer Eastwood i Nordvik presenterer Øvre Haugerød 10! Stor og innbydende enebolig beliggende i rolige og idylliske omgivelser på Øvre Haugerød. Boligen har en luftig og fin beliggenhet med flott utsikt over Nidelva, samt kort gangavstand til bademuligheter. Stor og romslig tomt på ca. 2 mål med hyggelige uteområder, romslig innkjørsel og god biloppstillingsplass. Boligen holder en fin standard og er godt vedlikeholdt gjennom årene. Gjennomtenkt og fleksibel planløsning med store vindusflater som slipper inn rikelig med dagslys og gir et vakkert blikk mot vannet. Fin hagestue og veranda tilknyttet oppholdsrommet.
Nøkkelinformasjon
- Boligtype:
- Enebolig
- Byggeår:
- 1980
- Etasje:
- 2
- Soverom:
- 3
- Prisantydning:
- 4 990 000,-
- Omkostninger:
- 126 130,-
- Totalpris:
- 5 116 130,-
- Kommunale avgifter:
- 16 782,- per år
- Totalt BRA:
- 220 m2
- Tomteareal:
- 2 093,4 m2 (eiet)
- Energimerking:
- F - oransje
- Garasje:
- Ja
- Veranda:
- Ja
Visninger
Alle våre visninger har påmelding. Passer ikke tidspunktet, send megler en e-post og avtal tid for privatvisning.
Presenteres av
Har du finanseringsbevis på plass?
I samarbeid med
En personlig rådgiver fra vår samarbeidspartner Storebrand Bank vil hjelpe deg å gjøre deg klar til budrunden.

Nøkkelinformasjon
Oppdragsnummer
39-0209/25
Boligtype og eieform
Enebolig (Eiet)
Adresse og betegnelse
Øvre Haugerød 10, 4824 Bjorbekk
Gnr. 436, bnr. 128 i Arendal kommune.
Selger(e)
Sigfred Johan Nilsen
Kjøpesum og omkostninger
4 990 000,- (Prisantydning) Omkostninger: 124 750,- (Dokumentavgift) 290,- (Pantattest kjøper) 545,- (Tinglyst pantedokument) 545,- (Tinglyst skjøte) 19 200,- (Boligkjøperpakke* (valgfritt)) -------------------------------------------------------- 126 130,- (Omkostninger totalt (uten Boligkjøperpakke)) 145 330,- (Omkostninger totalt (med Boligkjøperpakke)) -------------------------------------------------------- 5 116 130,- (Totalpris inkl. omkostninger (uten Boligkjøperpakke)) 5 135 330,- (Totalpris inkl. omkostninger (med Boligkjøperpakke)) -------------------------------------------------------- NB: Regnestykket forutsetter at det kun tinglyses ett pantedokument og at eiendommen selges til prisantydning. Dokumentavgiften er 2,5% av salgssummen, inkl. evt. fellesgjeld. Det tas forbehold om endringer i offentlige avgifter/gebyrer.
Om boligen
Byggeår
1980
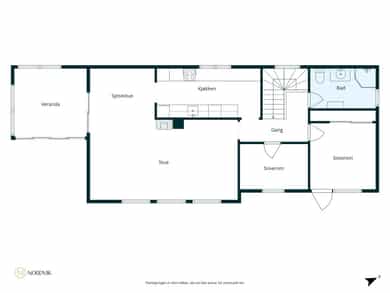
Arealer
BRA-i: 184 kvm
BRA-e: 18 kvm
BRA-b: 18 kvm
Totalt BRA: 220 kvm
Beskrivelse:
1. etasje:
BRA-i: 99 kvm. Vindfang, gang, bad, vaskerom, stue, 2 soverom, garasje, bod og gang/bod
BRA-e: 18 kvm. Garasje
Totalt BRA: 117 kvm
2. etasje:
BRA-i: 85 kvm. Gang, 2 soverom, stue, kjøkken og bad
BRA-b: 18 kvm. Innglasset balkong
Totalt BRA: 103 kvm
Takstmannens kommentar til arealoppmåling:
Enebolig:
I hovedsak er det bruken av rommene ved befaringen som avgjør hva rommet defineres som.
Trapp er medregnet i sin helhet for alle etasjer.
Det er ikke foretatt kontroll om innredet rom er byggemeldt eller godkjent slik de benyttes idag.
Det er ikke utført undersøkelse av lovligheten av TBA som er anlagt.
Utført enkel måling av TBA og kan avvike fra faktiske mål, det er ikke foretatt målinger av gangveier etc.
Sommerstue er tatt med som innglasset balkong.
Antall soverom
3
Innhold
1. etasje: Vindfang, gang, bad, vaskerom, stue, soverom, garasje, bod og gang/bod 2. etasje: Gang, 2 soverom, stue, kjøkken og bad
Standard
1. etasje: Vindfang Vindfang som ønsker deg velkommen inn i boligen. Gang Lys og romslig gang som gir et godt førsteinntrykk av boligen. Bad Funksjonelt bad med fliser på gulv og vegger. Badet er utstyrt med dusjnisje, vask med innredning og toalett. Vaskerom Romslig og praktisk vaskerom med belegg på gulv, plater på vegger og avtrekk. Her finner du utslagsvask samt opplegg for vaskemaskin, med god plass til daglige gjøremål. Stue Koselig peisestue med plass til både sofagruppe og TV-møbler. Soverom Trivelig soverom med god plass til dobbeltseng og øvrig møblement. Garasje Garasje som gir trygg parkering og ekstra oppbevaringsmuligheter. Bod Praktisk bod med gode lagringsmuligheter for sesongutstyr og annet du ønsker å oppbevare. Gang/bod Praktisk for oppbevaring. 2. etasje: Gang Praktisk gang som binder etasjen sammen på en fin måte. Soverom Etasjen byr på 2 soverom. Begge med plass til seng og oppbevaring. Stue Lys og romslig stue med åpen løsning mot spisestuen, noe som gir en luftig romfølelse og en hyggelig atmosfære. Store vindusflater slipper inn rikelig med naturlig lys og byr på flott utsikt, samtidig som rommet har god plass til både sofagruppe og spisebord. Kjøkken Praktisk og elegant kjøkken med rikelig skap- og benkeplass. Kjøkkenet har profilerte fronter og laminat benkeplate, og er godt utstyrt med kjøleskap, komfyr, platetopp, oppvaskmaskin og kjøkkenventilator - et funksjonelt og trivelig kjøkken for både hverdag og selskap. Bad Her er det belegg på gulv og våtromsplater på veggene. Det er innredning med nedfelt servant, toalett, dusjkabinett og avtrekk. Diverse: Naturlig ventilering. Varmepumper fra 2022 og 2016. Ca. 200 liters varmtvannstank
Parkering
Parkering på egen tomt.
Moderniseringer og påkostninger
Informasjon fra selger:
2025:
Tettet liten lekkasje fra terrasse til bod/ liten garasje. Utbedret av Blikkenslager Rukon i Arnedal.
Sommeren 2017:
Nye dører innvendig i hele huset.
Nye gulv i hovedetasje og sokkeletasje, unntatt tre soverom som fikk nye gulv i 2014/15.
Trappen mellom 1. og 2. etasje er utbedret.
Inngangsparti, hall, trapperom og gang i hovedetasje til soverom, bad og kjøkken er panelt.
Tapetisering i stue og kjøkken.
Nytt kjøkken og oppgradering av bad i hovedetasjen
Nytt sikringsskap og nytt elnett i kjøkken og deler av hovedetasjen.
Montert varmepumpe i september 2017.
2018/19:
Totalrenovering av garasjen med nytt gulv, innkjøringsrampe og garasjeport.
2020:
Bygget isolert hagestue på 12 m² på garasjetaket, med 5-dørs skyvedørsvegg i glass (vår/sommer/høst-standard).
Hagestuen brukes fra februar til november.
2021/22:
Skiftet vinduer i stuen i sokkeletasjen.
Bygget ny garasje tilknyttet eksisterende garasje, med garasjeport.
2023:
Bygget terrasse på ca. 33 m² over gammel og ny garasje i tilknytning til hagestuen.
Ny kabel fra sikringsskap til nytt skap i garasjen for elbil.
2024:
Bygget trapp fra hagenivå til terrassen og rekkverk rundt hele terrassen.
Skiftet vinduer i stuen, samt vindu og dør til lufteveranda på soverommet i 2. etasje.
Montert varmepumpe i stuen i 1. etasje.
2025:
Skiftet hele lufteverandaen.
Malt hagestuen, veggarealet ved terrassen og det meste av fasaden mot innkjøringen
Sammendrag selgers egenerklæringsskjema
Selgers egenerklæringsskjema følger vedlagt salgsoppgaven. Interessenter oppfordres til å gjennomgå dette nøye. Følgende opplysninger er spesielt viktig å merke seg: Når ble boligen overtatt av nåværende eier(e)? 1. september 2017 Har du kjennskap til eiendommen? Ja Har du brukt eller vedlikeholdt boligen siste 12 måneder? Ja Er boligen forsikret med hus- eller annen bygningsforsikring? Ja Polisenummer: 142247 Forsikret i: Frende Utført arbeid 1. Vet du om det har det blitt utført arbeid på bad/våtrom, enten i din eller tidligere eiertid? Ja, faglært Firmaets navn og beskrivelse av arbeidet: Det ble utført forbedring av tetning av våtromsbelegg mot sluk på bad 2.etg. Alt baderomsinventar ble også skiftet ut. Arbeider ble gjort i August 2017. Tidligere eier opplyser at våtromsbelegg og våtromsplater på vegg ble modernisert i 2016. 1.1 Vet du om tettesjikt, membran eller sluk ble fornyet eller oppgradert? Ja, faglært Firmaets navn og beskrivelse av arbeidet: Ref over så ble våtromsbelegg oppgradert. 1.2 Vet du om det finnes dokumentasjon på hvordan bad eller vaskerom er bygget opp? Nei Eventuell kommentar: Gjort av tidligere eiere. 2. Vet du om det er gjort endringer eller reparasjoner på tak, fasade, pipe/ildsted, terrasse, garasje, bod eller lignende, enten i din eller tidligere eiertid? Ja, faglært Firmaets navn og beskrivelse av arbeidet: Gulvdekke i den eldste garasjen ble pigget opp og det ble støpt nytt gulv. Det ble også etablert en ny garasje under terrasse. Etablert porter på begge garasjer samt støpt innkjøringsrampe. Arbeider gjort ca. 2018/19. Utvidet terrassse over ny garasje samt etablert hagestue. Arbeider gjort av ARTUR BYGG OG ART 4. Vet du om det er gjort arbeid på det elektriske anlegget, enten i din eller tidligere eiertid? Ja Foreligger det en samsvarserklæring? Ja Firmaets navn og beskrivelse av arbeidet: Det er gjort diverse elektrisk av Richard Andersen, herunder ny kurs til ny garasje, oppgradert el til kjøkken, nytt sikringsskap, strøm til hagestue og uteområde. Gjort i 2017. 5. Vet du om det er gjort arbeid på vann og avløp, enten i din eller tidligere eiertid? Ja, faglært Firmaets navn og beskrivelse av arbeidet: Små endringer på røropplegg på vaskerom. Vannmåler. Gjort i 2017. 6. Vet du om boligen eller eiendommen har blitt endret eller bygget ut etter opprinnelig byggeår, enten av deg eller tidligere eiere, herunder bruksendringer kjeller/loft etc.? Nei Eventuell kommentar: Bygd ut garasje ved siden av eksisterende samt utvidet terrasse. Feil og mangler 11. Vet du om det er eller har vært feil ved bad/vaskerommet, f.eks sprekker, lekkasje, råte, lukt eller soppskader? Nei Eventuell kommentar: Avløp fra dusj 2.etg. kan tette seg og ha behov for avløpsmiddel 16. Vet du om det er eller har vært sprekker i mur/skjeve gulv/setningsskader eller liknende? Ja Beskriv: Liten sprekk i leca mur foran ved vinduer til kjellerstue. Vært uendret i 8 år. Offentlige og private forhold 23. Vet du om det er utført tidligere arealoppmålinger av boligen, eller om boligens areal er oppgitt i dokumenter som salgsoppgave, takstrapport, tilstandsrapport, byggesøknad eller lignende? Ja Hvilket dokument og når er målingen foretatt? Boligen er oppgitt med et areal da den ble kjøpt i 2017. 29. Vet du om andre forhold av betydning for kjøper å vite om; for eksempel flom-, ras- og skredfare, grunnforhold, tinglyste forhold, private avtaler og liknende? Ja Beskriv: Eiendommen ble kjøpt med opplysning om en båtplass like nedenfor som fulgte på hevd. Det har vært en tvist mellom beboere i området hvor båtplassen befinner seg og kommunen om hvorvidt disse båtplassene faktisk dsponeres av de aktuelle eiendommene. Saken ble tatt i jordskifteretten og det ble avgjort at hevden var gjeldende. Vi klagde ikke underveis i saken og ble ikke nevnt som en av eiendommene som disponerer båtplass. Det ble nevnt at trolig 2-3 eiendommer til (bl.a. oss) har slik rett. Vi tar kontakt med kommunen for å forsøke og få avklart dette.
Bygningssakkyndig
His Bygg AS
Byggemåte
Det er i forbindelse med salget utarbeidet en tilstandsrapport fra bygningssakkyndig. Tilstandsrapporten er en teknisk gjennomgang av boligen med oppdagede avvik. Vedlagt salgsoppgaven følger tilstandsrapporten og selgers egenerklæring. Disse må leses nøye av interessenter før bud inngis. Opplysninger gitt i tilstandsrapporten anses å være kjent for kjøper, og det kan derfor ikke reklameres på forhold som fremkommer av tilstandsrapporten. Forhold som har fått TG2 og TG3 må gjennomgås spesielt nøye, da disse indikerer avvik fra normal slitasje og/eller høy alder, med mulig behov for utbedring. Bygningsdeler som har fått TGIU er ikke undersøkt av takstmann. Beskrivelsen av boligen som følger er hentet fra tilstandsrapporten: Byggemåte Boligen er utført på ett plan uten kjeller/underetasje. Bindingsverkskonstruksjon med utvendig stående bordkledning. Saltak med sperrekonstruksjon. Utvendig taktekking med sementtakstein og renner og nedløp av plast. Røranlegg til vann av kobber. Enebolig Utvendig Taktekking,TG2 Utvendig taktekking med sementtakstein. Siden taket (takkonstruksjon, taktekking og skorstein) kun er observert fra bakkenivå, er vurderingen begrenset av dette. Det er ikke sikkerhetsmessig forsvarlig å bevege seg ut på taket eller observere fra stige. Selv om det ikke er avdekket skader under befaringen, betyr ikke dette at det ikke foreligger skader som en besiktigelse på taket kan avdekke. Vær oppmerksom på denne risikoen. En undersøkelse av taket kan utføres av en fagperson under tilstrekkelige sikkerhetsforhold. Vurdering av avvik: - Mer enn halvparten av forventet brukstid er passert på taktekkingen. - Mer enn halvparten av forventet brukstid er passert på undertak. Tiltak - Når taktekking og undertak begynner å bli gamle, øker risikoen for lekkasjer, noe som kan føre til omfattende og kostbare reparasjoner av underliggende konstruksjoner dersom en ikke foretar tiltak på konstruksjonene før dette oppstår. - Overvåk tilstanden jevnlig. For å få tilstandsgrad 0 eller 1 må tekkingen skiftes ut, men tidspunktet for når dette er nødvendig er vanskelig å si noe om. Nedløp og beslag,TG2 Renner og nedløp av plast, besiktelse fra bakkenivå pga. sikkerhet for for undertegnede. Vurdering av avvik: - Mer enn halvparten av forventet brukstid er passert på renner/nedløp/beslag. Tiltak - Overvåk tilstanden jevnlig. For å få tilstandsgrad 0 eller 1 må beslag/renner/nedløp skiftes ut, men tidspunktet for når dette er nødvendig er vanskelig å si noe om. Snøfangere,TG3 Det er manglende snøfangere på taktekking utfra årstall og gjeldende teknisk forskrift. Befaring utført fra bakkenivå Vurdering av avvik: - Det mangler snøfangere på hele eller deler av taket, noe som var krav på byggemeldingstidspunktet. Tiltak - Det må monteres snøfangere for å oppfylle byggeårets krav. Kostnadsestimat : 20 000 - 100 000 Veggkonstruksjon,TG2 Bindingsverkskonstruksjon med utvendig stående bordkledning. Siden veggene kun er observert fra bakkenivå, er vurderingen begrenset av dette. Det er ikke sikkerhetsmessig forsvarlig å bevege seg opp i stige. Selv om det ikke er avdekket skader under befaringen, betyr ikke dette at det ikke foreligger skader som en besiktigelse i stige kan avdekke. Vær oppmerksom på denne risikoen. En undersøkelse av høye vegger med lift eller annet kan utføres av en fagperson under tilstrekkelige sikkerhetsforhold. Vurdering av avvik: - Det er påvist spredte råteskader i bordkledningen. Tiltak - Råteskader i bordkledningen kan fortsette å utvikle seg både i tilliggende bordkledning og til bakenforliggende veggkonstruksjon, dersom en ikke foretar tiltak. Takkonstruksjon/Loft,TG2 Saltak med sperrekonstruksjon. Begrenset besiktelse fra luker. Vurdering av avvik: - Det er begrenset/dårlig ventilering av takkonstruksjonen. - Det er fra loft/kryploft påvist indikasjoner på at det er punktering av dampsperre, som medfører svekket effekt av dampsperrefunksjonen. - Det er registrert symptom på aktivitet fra skadedyr. Tiltak - Lokal utbedring bør utføres. - Lufting/ventilering bør forbedres. - Store og ikke lett tilgjengelige utettheter i dampsperra er ofte vanskelige å utbedre lokalt. Et eksempel er der folien er montert på tvers av takstolene uten klemte omleggsskjøter, eller der det mangler dampsperre i større deler av himlingen. Løsningen kan være å demontere deler av tak- eller himlingskonstruksjon og utbedre klemmingen av dampsperra, eller montere ny og tett dampsperre. Man må sørge for gode tetteløsninger i alle overganger og rundt alle gjennomføringer. Lett tilgjengelige utettheter i dampsperre, som ved gjennomføringer av ventilasjonskanaler o.l., kan tettes med fugemasse. Uttettheter ved overganger mot yttervegg kan tettes med fugemasse eller med remser av plast som limes og klemmes i omleggene. Der det er tilgjengelig fra loftet, kan man fjerne isolasjonen og tette fra oversiden. Man tetter ved å lime/klemme ny plastfolie til den opprinnelige slik at det blir lufttett. Limet som brukes, må kunne hefte til dampsperra. Alternativt kan tetting utføres med tape. Vinduer,TG2 Det ble foretatt kontroll på tilfeldig valgte åpne og lukke mekanismer, vurderes å være i normal stand. Vinduer er vurdert ved stikkprøvekontroller. Ikke alle vinduer er kontrollert eller åpnet, og skjulte feil eller mangler kan derfor forekomme uten at dette er avdekket ved befaringen. Tilstanden er basert på de kontrollerte enhetene og kan ikke uten videre overføres til samtlige vinduer i boligen Det er ikke utført inngrep i konstruksjoner rundt vinduer og ukjent tetting med hensyn til isolering/vindtetting/taping Vurdering av avvik: - Det er påvist at enkelte vinduer er vanskelig å åpne/lukke. - Vinduer er byttet ut etter behov. Noen eldre vinduer med noe tregheter Eldre vinduer der mer enn halvparten forventet levetid på isolerglass er passert. Påregnelig med nedsatt funksjon pga. tetningslister som er eldre og harde som ikke tetter. Tregheter i vinduer og punkteringer av eldre vinduer vil utfra alder kunne oppstå som en konsekvens Tiltak må detaljevurderes på det enkelte vindu som ikke er utført men tilfeldig valgte vinduer. Tiltak - Vinduer må justeres. Dører,TG2 Enkel funksjonstest av dører, det er ikke utført vurderinger av vindtetting/tetthet da dette innebærer inngrep i konstruksjoner. Vurdering av avvik: - Det er påvist avvik rundt innsettingsdetaljer. - Manglende terskelbeslag og tettinger under enkel skyvedør, vurderes årsaksammenheng med lekkasje ned i garasjedel Tiltak - Det bør gjøres tiltak for å lukke avviket. Balkonger, terrasser og rom under balkonger,TG3 Veranda over garasjer, balkong Vurdering av avvik: - Rekkverket er for lavt i forhold til dagens krav til rekkverkshøyder. - Tekkingen på balkong/terrasse har utettheter. - Det er ikke montert beslag mellom yttervegg og balkong/terrasse. - Glassfibertekking er sårbar for bevegelser i konstruksjonene, som resulterer i rissdannelser og utettheter. - Ved gange på glassfibertekkingen ble det registrert mykheter i selve tekkingen. Tiltak - Beslag må skiftes ut/monteres. - Lokal utbedring må utføres. Kostnadsestimat : 20 000 - 100 000 Andre utvendige forhold,TG2 Sommerstue Tilleggs bygninger er vurdert på generelt grunnlag. Det settes ikke tilstands grader på enkelte bygningsdeler eller installasjoner men en helhetlig tilstandsgrad. Tilleggs bygninger vurderes ut fra følgende kriterier: Alder og slitasje, skade symptomer, bygningsmessige avvik og det visuelle inntrykket. Vurdering av avvik: - Det er avvik: - Manglende åpen lufting i takkonstruksjon, ikke åpent ute i takfot. Anlagt oppå betongkonstruksjon som er synlig på siden, ikke utvendig isolert og vurderes som en risikokonstruksjon med hensyn til kondensproblematikk. Tiltak - Tiltak: - Konsekvens uten åpen lufting i takkonstruksjone kan resultere i fuktskader og kondensproblematikk. Anbefales utvendig isolering av betongkonstruksjon slik at ikke kondensproblematikk oppstår. Garasje,TG2 Tilleggs bygninger er vurdert på generelt grunnlag. Det settes ikke tilstands grader på enkelte bygningsdeler eller installasjoner men en helhetlig tilstandsgrad. Tilleggs bygninger vurderes ut fra følgende kriterier: Alder og slitasje, skade symptomer, bygningsmessige avvik og det visuelle inntrykket. Garasje med inngang fra bolig samt påbygd garasje. Betongsåle, murpusset blokker grunnmur. Bindingsverk konstruksjon med stående bordkledning. Leddet garasjeporter, fungerende. Vurdering av avvik: - Det er avvik: - Anlagt terrasse over samt sommerstue Besiktelsen viser lokal lekkasje som antas å være utettheter ved skyvedør men må utføres videre undersøkelser for lokalisere og videre tette. Eier opplyser om at det er isolert over betongkonstruksjon og kan være underliggende skader pga. lekkasje/kondens som innebærer man må utføre inngrep for utbedringstiltak. Tiltak - Tiltak: - Videre inngrep i konstruksjoner og utbedringstiltak pga. lekkasjer anbefales. Innvendig Etasjeskille/gulv mot grunn,TG2 Undersøkelsen er gjennomført som en stikkprøvebasert visuell kontroll med enkel nivellering på tilfeldig valgte steder. Metoden innebærer at ikke alle rom, flater eller konstruksjoner er undersøkt, og skjulte konstruksjoner er ikke åpnet. Vurderingen gjelder kun forhold som var tilgjengelige og synlige på befaringstidspunktet. Det kan derfor forekomme avvik, feil eller skader som ikke lar seg avdekke gjennom denne typen undersøkelse. T Vurdering av avvik: - Det er målt høydeforskjell på mellom 15-30 mm gjennom hele rommet. Tilstandsgrad 2 gis med bakgrunn i standardens krav til godkjente måleavvik. - Eier opplyser om rettet opp gulver i stue pga. skjevheter. Skjevheter vil da forekomme i himlinger da disse ikke er rettet opp. Tiltak - For å få tilstandsgrad 0 eller 1 må høydeforskjeller rettes opp. Det vil imidlertid sjelden være økonomisk rasjonelt som et enkeltstående tiltak i en bolig som dette. Dersom boligen en gang skal renoveres, kan man vurdere slike tiltak. Radon,TG2 Bygget er opplyst utført med radonsperre, ferdigattest foreligger og utbygger har gjennom søknad om ferdigattest bekreftet at alle kontrollerklæringer foreligger og at bygget er oppført iht gitte tillatelser og gjeldende forskrifter. Vurdering av avvik: - Det er ikke foretatt radonmålinger, og bygget er heller ikke utført med radonsperre. - Radonmålinger er ikke foretatt, heller ikke andre tiltak mot radon, eiendommen ligger i et område som i NGU Radon aktsomhetskart er definert med "moderat til lav" aktsomhetsgrad - Kartet kan ikke benyttes til å forutsi radonkonsentrasjonen i enkeltbygninger. Den eneste måten å få sikker kunnskap om radon i en bygning, er å gjennomføre en måling. Radon i inneluft avhenger ikke bare av geologiske forhold, men også av bygningens konstruksjon og drift, samt kvaliteten av radonforebyggende tiltak Tiltak - Det bør gjennomføres radonmålinger. - Ved eventuelle forhøyede verdier må det eventuelt utføres sikring mot radon. Innvendige trapper,TG2 Tretrapp. Utført enkel visuell undersøkelse av rekkverkshøyde, lysåpninger og gange i trappetrinn for stabilitet. Vurdering av avvik: - Åpninger i rekkverk er større enn dagens forskriftskrav til rekkverk i trapper. - Åpninger mellom trinn i innvendig trapp er større enn dagens forskriftskrav. - Det mangler håndløper på vegg i trappeløpet. - Rekkverkshøyder er under dagens forskriftskrav til rekkverk i trapper. Tiltak - Håndløper må monteres på vegg for å tilfredsstille krav på byggetidspunktet. - Rekkverkshøyde må endres for å tilfredsstille krav på byggemeldingstidspunktet. Våtrom 1. etasje > Bad Generell,TG3 Fliser på gulv, fliser på vegger. Utstyr: dusjnisje, vask med innredning, toalett. Vurdering av avvik: - Våtrommet må oppgraderes for å tåle normal bruk etter dagens krav. - Sprekker i fuger og fliser Ikke synlig membran ved besiktelse i sluk. Eldre teknisk anlegg der mer enn halvparten forventet levetid er passert. Tiltak - Våtrommet må totalrenoveres. Alle forhold med tettesjikt, våtsone, sluk m.m. må dokumenteres. - Manglende oppgradering av våtrommet medfører høy risiko for at konstruksjonene ikke vil tåle vanlig bruk av vann eller lekkasjer. Dette kan føre til fuktskader på tilstøtende konstruksjoner. Kostnadsestimat : 200 000 - 500 000 1. etasje > Bad Tilliggende konstruksjoner våtrom,TG2 Hullborring ble utført i tilstøtende trappegang. Vurdering av avvik: - Det er registrert symptom på fuktskader. - Ved inspeksjon av konstruksjon etter hulltaking mot våtsone registreres skade i veggen. - Synlig fuktmerker i vegg. Synlig også spor etter maurskader. Fuktsøk viser ikke høyere fuktverdier i veggen og kan relateres til eldre skade pga. manglende membraner og annet bruk før nåværende eier. Vurderes påregnelig med renovering av bad med utbytting av bakenforliggende konstruksjoner i sin helhet. Tiltak - Badet/våtsonen står foran utbedring 1. etasje > Vaskerom Overflater vegger og himling,TG2 Plater på vegger. Visuell befaring av tilgjengelige flater som ikke er tildekket viser ikke større avvik på befaringsdagen. Vurdering av avvik: - Det er vindu/dør med ikke fuktbestandige materialer i våtsonen (ved vask, dusj, badekar, osv.), løsningen eller byggematerialet er uegnet. Tiltak - Dersom det ikke gjøres tiltak, kan dette medføre oppfukting, oppsvelling og forringelse av materialer over tid og fuktskader på tilstøtende konstruksjoner. - Uegnede materialer må fuktbeskyttes/utskiftes. 1. etasje > Vaskerom Overflater Gulv,TG2 Belegg på gulv Vurdering av avvik: - Det er påvist at gulvoverflaten har sprekker. Tiltak - Sprekker i et vinylbelegg kan føre til at vann trekker ned i gulvkonstruksjonen med pålfølgende fukt/råteskader. 1. etasje > Vaskerom Sluk, membran og tettesjikt,TG3 Plastsluk, synlig belegg klemt til klemring. Vurdering av avvik: - Det er påvist tegn på utettheter på våtrommet. - Mer enn halvparten av forventet brukstid er passert på membranløsningen. - Mer enn halvparten av forventet brukstid er passert på slukløsningen. Tiltak - Våtrommets tettesjikt/membran står foran utbedring/utskiftning. - Det er viktig å merke seg at levetiden til en membran varierer basert på kvalitet, installasjon og bruk. Eldre membraner kan bli sprø og sprekke opp, noe som fører til at de mister sin vanntettende funksjon. Dette kan resultere i vannlekkasjer gjennom vegger og gulv og fuktskader. - Utettheter i tettesjiktet på våtrommet kan føre til fuktskader i bakenforliggende konstruksjoner dersom det ikke blir foretatt tiltak på våtrommets tettesjikt. Kostnadsestimat : 20 000 - 100 000 1. etasje > Vaskerom Ventilasjon,TG2 Avtrekk, fungerende på befaringsdagen. Vurdering av avvik: - Våtrommet mangler tilluftsventilering, f.eks. spalte/ventil ved dør. Tiltak - Det bør etableres tilfredsstillende tilluft til våtrom f.eks. luftespalte ved dør e.l. 2. etasje > Bad Overflater vegger og himling,TG2 Våtromsplater på vegger. Vurdering av avvik: - Det er vindu/dør med ikke fuktbestandige materialer i våtsonen (ved vask, dusj, badekar, osv.), løsningen eller byggematerialet er uegnet. - Våtromsplater er ikke montert fagmessig. - Det er ikke montert bunnbeslag hele veien rundt og skjevt kuttet. Belegg går ikke opp under plater. Tiltak - Badet/våtsonen står foran en full oppgradering. - Utbedringer tilsier utbytting av plater i sin helhet for fagmessig montering og fungerende våtsoner. 2. etasje > Bad Overflater Gulv,TG3 Belegg på gulv Vurdering av avvik: - Det er påvist at gulvoverflaten har sprekker. - Det er påvist at høydeforskjell fra topp slukrist til gulv/synlig topp membran ved dørterskel er mindre enn 25 mm. - Det er påvist avvik i fallforhold til sluk i forhold til krav i forskrift på byggetidspunktet. - Målinger viser at det ikke er fall til sluk (motfall). - Ved nivllering ble det registrert motfall mot sluk. Belegg er ikke oppover vegg der eier opplyser om fått lagt belegg oppå eldre belegg pga. utettheter rundt sluk Tiltak - Et bad med manglende/redusert fall til sluk blir mindre funksjonelt og sikkert for brukeren. Dette kan medføre stående vann på gulvet, vann som ikke ledes effektivt til sluket, økt risiko for at vann renner ut av rommet og redusert sklisikkerhet på gulvet. - Overflater må utbedres eller skiftes. - Estimatet er for punktet overflater gulv, ved utbedring av fallforhold vil normalt badet i sin helhet renoveres med et estimat mellom 200 000-500 000 Kostnadsestimat : 20 000 - 100 000 2. etasje > Bad Sluk, membran og tettesjikt,TG3 Vurdering av avvik: - Det er påvist mangelfull/feil utførelse rundt rørgjennomføringer e.l. som gir fare for fukt i konstruksjonen i våtsone. - Det er ikke tilfredsstillende membran/tettesjikt på våtrommet. - Membranen er avsluttet feil under plater og går ikke opp over beslag/plater. Tiltak - Uten membran/tettesjikt er det høy risiko for at vann trenger gjennom konstruksjonene og kan medføre fuktskader. - Konsekvensen er at det kan oppstå fuktskader i konstruksjonen bak overflatematerialet. Vann kan trenge inn gjennom utette rørgjennomføringer og forårsake fuktskader ved fukttilførsel gjennom enten bruksvann eller lekkasjevann. Kostnadsestimat : 20 000 - 100 000 Tekniske installasjoner Vannledninger,TG2 Røranlegg til vann av kobber Rør- og avløpsanlegget fungerte ved en enkel test av dette på stedet. Videre kontroll av anlegget krever avansert teknologi og må eventuelt rekvireres spesielt. Tilstandsgraden er derfor ikke vurdert på det skjulte anlegget Vurdering av avvik: - Mer enn halvparten av forventet brukstid er passert på innvendige vannledninger. Tiltak - Det er ikke behov for utbedringstiltak siden anlegget fungerer i dag, men ut ifra alder kan skader plutselig oppstå på eldre anlegg. - I forbindelse med oppgradering av våtrom vil det være naturlig med utskiftning av rør. - Anbefalt brukstid på sanitæranlegg er 40 år der påregnelig utbytting ved renovering av våtrom normalt utføres. Avløpsrør,TG2 Avløpsrør av plast som er synlig. Det fremkommer ikke opplysninger om problematikk med avløpsanlegget på befaringsdagen. Vurdering av avvik: - Mer enn halvparten av forventet brukstid er passert på innvendige avløpsledninger. Tiltak - Eldre avløpsrør har blant annet større sannsynlighet for lekkasjer, noe som kan føre til omfattende og kostbare vannskader i boliger. Ventilasjon,TG2 Naturlig ventilering. Lufteventiler på soverom, anbefales i tillegg lufteventiler i vegg på stue. Vurdering av avvik: - Det er påvist mangelfull ventilasjon på ett eller flere rom i boligen. Tiltak - Det bør etableres veggventiler/vindusventiler i alle oppholdsrom som ikke har det. - Boliger fra det aktuelle byggeåret vurderes utfra dagens forskrifter å være under ventilerte. Anbefales å anlegge vegg ventiler i tillegg til lufte spalter på vinduer i rom med bruks belastning for tilfredsstillende ventilering. Aktiv bruk av mekanisk ventilasjon på våtrom og kjøkken ved bruk anbefales slik at varm fuktig luft transporteres ut av bygningen. Varmtvannstank,TG2 Ca. 200 liters varmtvannstank. Vurdering av avvik: - Det er ikke påvist tilfredsstillende el-tilkobling av varmtvannstank iht. gjeldende forskrift. - Det er påvist at varmtvannstank er over 20 år Tiltak - Det bør etableres tilfredsstillende el-tilkobling etter gjeldende forskrift. - Det er ikke behov for utbedringstiltak siden tanken fungerer i dag, men ut ifra alder kan skader plutselig oppstå på eldre tanker. - Kravet har ikke tilbakevirkende kraft og er en anbefaling pga. relativt mange tilfeller av varmegang ifølge Elsikkerhetsportalen. Det er innført krav om at varmtvannsberedere med effekt over 1500 watt ikke skal være tilkoblet med vanlig stikkontakt, men være såkalt fast tilkoblet. Da vil du unngå risiko for varmgang og brann. Kravet ble opprinnelig innført i 2010 og gjaldt da varmtvannsberedere med effekt over 2000 watt, men ble endret til 1500 watt i 2014. Kravene til fast tilkobling av varmtvannsberedere fremgår av NEK 400. Elektrisk anlegg,TG2 Det elektriske anlegget er utført med automatsikringer. Tilstanden på det elektriske anlegget er ikke vurdert utover enkle visuelle observasjoner, da dette ligger utenfor oppdragets rammer. Det anbefales at tilstandsrapport fra registrert elektroinstallatør legges til grunn for en fullstendig vurdering av anlegget. 21.Foreligger det eltilsynsrapport de siste 5 år, og det er ikke foretatt arbeid på anlegget etter denne, utenom retting av eventuelle avvik i eltilsynsrapport (dvs en el-tilsynsrapport uten avvik)? Nei Kommentar: 1.Når ble det elektriske anlegget installert eller sist gang totalt rehabilitert (årstall)? Med totalt rehabilitert menes fullstendig utskiftet anlegg fra inntakssikring og videre. Kommentar: 2.Er alle elektriske arbeider/anlegg i boligen utført av en registrert elektroinstallasjonsvirksomhet? Ukjent Kommentar: 3.Er det elektriske anlegget utført eller er det foretatt tilleggsarbeider på det elektriske anlegget etter 1.1.1999? Ja Kommentar: Det er gjort diverse elektrisk av Richard Andersen, herunder ny kurs til ny garasje, oppgradert el til kjøkken, nytt sikringsskap, strøm til hagestue og uteområde. Gjort i 2017. 5.Foreligger det kontrollrapport fra offentlig myndighet – Det Lokale Eltilsyn (DLE) eller eventuelt andre tilsvarende kontrollinstanser med avvik som ikke er utbedret eller kontrollen er over 5 år? Nei Kommentar: 6.Forekommer det ofte at sikringene løses ut? Nei Kommentar: 7.Har det vært brann, branntilløp eller varmgang (for eksempel termiske skader på deksler, kontaktpunkter eller lignende) i boligens elektriske anlegg? Nei Kommentar: 8.Er det tegn til at det har vært termiske skader (tegn på varmgang) på kabler, brytere, downlights, stikkontakter og elektrisk utstyr? Sjekk samtidig tilstanden på elektrisk tilkobling av varmtvannsbereder, jamfør eget punkt under varmtvannstank Nei Kommentar: 10.Er der synlig defekter på kabler eller er disse ikke tilstrekkelig festet? Nei Kommentar: 14.Er det tegn på at kabelinnføringer og hull i inntak og sikringsskap ikke er tette, så langt dette er mulig å sjekke uten å fjerne kapslinger? Nei Kommentar: 15.Finnes det kursfortegnelse, og er den i samsvar med antall sikringer? Ja Kommentar: 16.Foreta en helhetsvurdering av det elektriske anlegget, dets alder, allmenne tilstand og fare for liv og helse. Bør det elektriske anlegget ha en utvidet el-kontroll? Ja Kommentar: Det er ikke fremlagt dokumentasjon på hele anlegget pga. alder. Utstyr for varsling og slukking av brann,TG3 Boligen skal ha minst én fungerende røykvarsler i hver etasje, plassert slik at alarmen tydelig høres på soverom, jf. Forskrift om brannforebygging . Røykvarslere skal testes jevnlig og batteri må skiftes ved behov. Det anbefales seriekoblede røykvarslere for økt sikkerhet. Boligen skal videre være utstyrt med minst ett manuelt slokkeutstyr, anbefalt 6 kg pulver-/skumapparat.. Det anbefales at slokkeutstyr plasseres lett tilgjengelig, og at det finnes slokkemiddel i hver etasje. Det anbefales i tillegg å ha komfyrvakt på kjøkkenet men ikke et krav på eldre boliger/leiligheter 17.Er det mangler for brannslukningsutstyr i boligen iht. forskriftskrav på søknadstidspunktet, men minst Byggeforskrift 1985? Nei Kommentar: 18.Er det skader på brannslokkingsutstyr eller er apparatet eldre enn 10 år? Ja Kommentar: 19.Er det mangler på røykvarsler i boligen iht. forskriftskrav på søknadstidspunktet, men minst Byggeforskrift 1985? Nei Kommentar: 20.Er det skader på røykvarslere? Nei Kommentar: Kostnadsestimat : Under 20 000 Tomteforhold Fuktsikring og drenering,TG2 Boligen er utført på ett plan uten kjeller/underetasje. Synlig fuktholdig masse og noe fuktopptak på grunnmur. Vurdering av avvik: - Det er avvik: - Anbefales tiltak med fuktsikring av grunnmur. Isolering av grunnmur utvendig anbefales med hensyn til kondensproblematikk Tiltak - Tiltak: - Vegger mot terreng skal utformes fuktsikre. Fuktsikre betyr i denne sammenhengen at veggen må ha et kapillærbrytende og vannavvisende sjikt på utvendig side som sikrer at vann som dreneres ned i massene på utsiden av veggen, ikke kan trenge inn til veggen. Utvendig isolering av veggen og god lufttetthet er også viktig med hensyn til veggens fuktsikkerhet. Grunnmur og fundamenter,TG2 Vurdering av avvik: - Grunnmuren har sprekkdannelser. Tiltak - Lokal utbedring må utføres. - Det er registrert riss/sprekker i grunnmuren. Grunnmuren er ikke utvendig isolert som er normal utførelse alder tatt i betraktning. Det anbefales å isolere utvendig grunnmur for både for forbedring av u-verdi og innvendig miljø. Dette vil i tillegg minske risikoen for frostsprengning slik at ikke videre eskaleringer av riss/sprekker oppstår. Forstøtningsmurer,TG2 Natursteinsmur Vurdering av avvik: - Det er påvist mindre sprekker og/eller skjevheter i muren. Tiltak - Lokal utbedring må utføres. Terrengforhold,TG2 Terreng rundt bolig med løsmasser. Vurdering av avvik: - Det er påvist områder på eiendommen med stående vann. Tiltak - Det må foretas terrengdrenering på eiendommen. - Terrenget rundt bygningen bør ha tilstrekkelig fall fra byggverket dersom ikke andre tiltak er utført for å lede bort overvann. Fallet ut fra bygningen bør være minst 1 : 50 over en avstand på minst 3 m fra veggen. Man må ta hensyn til at tilbakefyllingsmassene kan sette seg over tid og at angitt minimumsfall må etableres etter at massene har stabilisert seg. Hvis det ikke er mulig å etablere fall ut fra bygningen, kan man etablere fall langs veggen til lavereliggende terreng dersom forholdene ligger til rette for det. Fallet bør være minst 1 : 50. Utvendige vann- og avløpsledninger,TG2 I henhold til kommunale dokumenter fremlagt er boligen tilkoblet offentlig vann og avløp via private stikkledninger. Det fremkommer ikke opplysninger om problematikk med vann og avløp på befaringsdagen. Vurdering av avvik: - Mer enn halvparten av forventet brukstid er passert på utvendige avløpsledninger. - Mer enn halvparten av forventet brukstid er passert på utvendige vannledninger. Tiltak - Det er ikke behov for utbedringstiltak siden anlegget fungerer i dag, men ut ifra alder kan skader plutselig oppstå på eldre anlegg. Enebolig Byggetegninger, brannceller og krav for rom til varig opphold Det foreligger godkjente og byggemeldte tegninger, men de stemmer ikke med dagens bruk Det opprinnelige hobbyrommet benyttes i dag som stue. På tegningene er det beskrevet eventuelt garasje, men det fremstår ferdig utbygd. Videre er det oppført garasje i forlengelse av opprinnelig garasje og en sommerstue som påbygg til eksisterende bolig. Disse tiltakene fremkommer ikke av kommunale dokumenter som er fremlagt. I matrikkelen er enkelte tiltak registrert som ikke-søknadspliktige, men de vurderes å være påbygg etter plan- og bygningsloven og dermed normalt søknadspliktige tiltak. Det anbefales å avklare forholdene med kommunal byggesaksavdeling for å få vurdert lovlighet og eventuelt behov for søknad i ettertid. Er det påvist synlige tegn på avvik i branncelleinndeling ut ifra dagens byggteknisk forskrift? Nei Er det ifølge eier utført håndverkstjenester på boligen siste 5 år? Ja Se egenerklæring Er det påvist avvik i forhold til rømningsvei, dagslysflate eller takhøyde? Nei Enebolig Standard : Normal standard alder og type bygning tatt i betraktning Vedlikehold : Videre oppgraderinger og vedlikehold utfra bygningsmessig beskrivelse.
Innbo og løsøre
Hvitevarer på kjøkkenet medfølger handelen.
Følgende løsøre og tilbehør følger ikke med:
-Lampe over spisebord medfølger ikke.
For øvrig gjelder NEF sin standardliste "Oversikt over løsøre og tilbehør" med mindre annet fremkommer av salgsoppgaven. Listen er vedlagt.
Dersom det er noe i overnevnte liste som ikke finnes på eiendommen, vil det heller ikke medfølge. Produkter og installasjoner som medfølger overdras uten noen form for garantier, utover eventuell gjenværende leverandørgaranti. Hull og merker etter feste av innredning og utstyr som ikke følger med, aksepteres av kjøper.
Adgang til utleie
Det er ikke kjent at det foreligger offentligrettslige regler som er til hinder for at eiendommen leies ut.
Energi og oppvarming
Energimerking
F - oransje
Se fullstendig energiattest fra selger som vedlegg til salgsoppgave. Megler har intet ansvar for informasjon som følger av energiattesten.
Oppvarming
Elektrisk, varmepumpe og ved.
Informasjon om strømforbruk
Selger opplyser å ha et årlig strømforbruk på ca.13.500 kWh for 2023 og ca. 14.000 kWh i 2024 og 2025. Energiforbruket vil variere fra husstand til husstand. Selger har inngått avtale om Norgespris på strøm. Avtalen følger målepunktet, og kjøper er derfor bundet av avtalen om Norgespris til og med 31.12.2026.
Økonomi
Kommunale avgifter
Kr. 16 782,- pr. 2025
Kommunale avgifter inkluderer: Renovasjon, vann og avløp.
Det er installert vannmåler på eiendommen. Oppgitt beløp er et estimat basert på selgers forbruk foregående år. Forbruk vil variere fra husstand til husstand og endelig fakturert beløp kan derfor avvike. Fakturering skjer månedlig/kvartalsvis.
Eiendomsskatt
Kr. 7 616,- pr. 2025
Informasjon om eiendomsskatt er innhentet fra Arendal kommune.
Formuesverdi
Primærbolig: Kr. 898 419,- pr. 2023
Sekundærbolig: Kr. 3 593 675,- pr. 2023
Skatteetaten beregner en boligverdi (beregnet markedsverdi for bolig) basert på SSBs statistiske opplysninger om omsatte boliger. I beregningen tas det hensyn til din boligs beliggenhet, areal, byggeår og type bolig. Formuesverdien er en prosentandeldel av denne boligverdien.
For mer informasjon om formuesverdi, se Skatteetatens nettsider.
Forsikring
Frende
Polisenr. 142247
Tomt
Beskrivelse av tomt
Tomtestørrelse: 2 093,4 kvm (eiet)
Eiet tomt. Ifølge matrikkelkart og grunnkart innehar eiendommen noen usikre eiendomsgrenser.
Adkomst
Det vil bli skiltet med visningsskilt fra Nordvik under annonserte visninger. Åpner du annonsen på hjem.no eller nordvikbolig.no, finnes kartskisse. Ved å trykke på kartet får du enkelt tilgang til reiserute fra din starts destinasjon til boligen. Velkommen til visning!
Radonmåling
Selger har ikke utført radonmåling. Det er ikke krav om dette med mindre boligen er helt eller delvis utleid.
Områdebeskrivelse
Offentlig kommunikasjon
Bausplass bussholdeplass - Linje 102, 120- ca. 6 minutter i gåavstand. Bråstad togstasjon - Linje R50 - ca. 7 minutter kjøring. Kristiansand Kjevik - 47 minutter kjøring.
Skoler og barnehager
Barnehager
Eplehagen Barnehagen (1-5 år) - ca. 7 minutter i gåavstand.
Alvehetta Fus barnehage (1-5 år) - ca. 13 minutter i gåavstand.
Asdal barnehage (1-5 år) - ca. 19 minutter i gåavstand.
Skoler
Asdal skole (1-10 kl.) - ca. 19 minutter i gåavstand.
Sam Eydes videregående skole - 11 minutter i kjøreavstand.
Arendal videregående - Mølleheia - 12 minutter i kjøreavstand.
Offentlige forhold
Ferdigattest / brukstillatelse
Det foreligger ferdigattest for eiendommen datert 12.01.1981. Ikke utført: Vindtetting rundt vinduer kjelleratasje. Feieluke må ikke komme nærmere br.bart materiale enn 300 mm Puss av grunnmur mot vest. Frist for utførelse 1.6.1981. Ferdigattest utstedes av bygningsmyndighetene på grunnlag av mottatt dokumentasjon fra kontrollansvarlige når et søknadspliktig tiltak er utført i samsvar med tillatelsen og øvrige krav etter plan- og bygningslovgivningen. At ferdigattest eksisterer, gir ingen garanti for bygget er oppført i henhold til tillatelsen og gjeldende regelverk eller at det senere er utført arbeid på bygget som ikke er byggemeldt eller godkjent. Det foreligger ferdigmelding for vann og avløp, 1976 og 1983. Det foreligger ferdigmelding fro vannmåler, 2017. Ifølge tegninger fra kommunen er dagens romløsning forskjellig fra det som har vært byggesøkt. 1. etasje: Det er satt inn stor skyvedør fra stuen og ut til den verandaen som er inn glasset. Det delvis åpnet opp mellom kjøkken, stue og gang i dag. Innglasset veranda/sommerstue: Veranda og trapp: Bygd veranda over begge garasjene. Det er i dag bygd trapp fra verandaen og ned. 2. etasje: Tidligere hobby rom er i dag i bruk som stue. Dagens gang ved trapp har i dag ett åpnet arealet. Evt garasje: Det er i dag garasje i dette arealet. Ny Garasje: Det foreligger ingen byggemeldte tegninger eller ferdigattest for den nye garasjen. Sommerstue: Det foreligger ingen byggemeldte tegninger eller ferdigattest for sommerstuen. Veranda og trapp: Det foreligger ingen byggemeldte tegninger eller ferdig attest for verandaen eller trappen. Fra tilstandsrapporten: Det foreligger godkjente og byggemeldte tegninger, men de stemmer ikke med dagens bruk. Det opprinnelige hobbyrommet benyttes i dag som stue. På tegningene er det beskrevet eventuelt garasje, men det fremstår ferdig utbygd. Videre er det oppført garasje i forlengelse av opprinnelig garasje og en sommerstue som påbygg til eksisterende bolig. Disse tiltakene fremkommer ikke av kommunale dokumenter som er fremlagt. I matrikkelen er enkelte tiltak registrert som ikke søknadspliktige, men de vurderes å være påbygg etter plan og bygningsloven og dermed normalt søknadspliktige tiltak. Det anbefales å avklare forholdene med kommunal byggesaksavdeling for å få vurdert lovlighet og eventuelt behov for søknad i ettertid. Kommunens svar vedrørende takstmannens uttalelser i tilstandsrapporten: Vedrørende forlengelse av garasjen og sommerstuen har vi mottatt følgende informasjon fra byggesak: Når det gjelder forlengelse av garasjen og sommerstuen, så er vel dette i utgangspunktet søknadspliktige tiltak, men ser at de ble meldt inn som ikke-søknadspliktige tiltak, og det er lagt følgene merknad til behandlingen av den meldingen: Ført i Matrikkelen 04.10.2023. Diskutert med byggesak om dette skal godtas, da skjema skal gjelde ett tiltak. Fant å kunne dele opp dette i flere tiltak, da byggesak ikke så dette som alvorlig avvik. Hobbyrom: Rombenevnelsen «hobbyrom» er omtalt som hoveddel i vår veiviser for bruksendring, og også som rom for varig opphold i en tolkningsuttalelse fra departementet (se fotnote). Hvorvidt det kan legges til grunn at hobbyrom er godkjent som rom for varig opphold i alle eldre boliger, må vurderes i den konkrete saken. Vi er for eksempel kjent med at det i noen eldre byggesaker ble godkjent hobbyrom eller peisestue i kjeller, men at det i approbasjonen/tillatelsen står at ingen rom i kjeller er tillatt brukt til varig opphold. Ofte må tegninger og tillatelse ses i sammenheng. Kommunen kan ikke se at det er noe i vedtaket som tilsier at det ikke er tillatt med varig opphold i kjeller. Endring fra hoveddel til hoveddel er ikke søknadspliktig. Endringer fra tilleggsdel til hoveddel er søknadspliktig. Ulovlige tiltak vil kommunen kunne forfølge og kreve omsøkt etter dagens regelverk. Kjøper overtar risiko og ansvar for eventuelle pålegg/søknader som følger av dette.
Vei, vann og avløp
Eiendommen er tilknyttet offentlig vann og avløp. Stikkledninger fra eiendommen og ut til kommunalt nett er private, vedlikeholdsansvaret påhviler eier. Adkomst via privat vei. Selger har ikke oppgitt kostnadsestimat for veien. Det må påregnes vedlikeholdskostnader for den private veien. I dag betaler selger ca. 5000,- for felles brøyteavtale fra toppen av nærmeste bakke og til huset. Prisen kan varierer pga snømengde og antall brøytinger gjennom sesongen. Selger opplyser at det er gammel septiktank på eiendommen som ikke er i bruk.
Regulerings- og arealplaner
Arealplaner under arbeid - Plannavn: Vrengen småbåtanlegg - Planid: 1609r3. Reguleringsplan - Plannavn: Vrengen- Planid: 1609r2 - Formål: Felles avkjørsel, Områder for boliger m/tilhørende anlegg. Reguleringsbestemmelser i tilknytning til reguleringsplan, Vrengen. Kommuneplan Arendal 2023-2033 - Planid: 42032022-8.
Bo- og driveplikt
Det er ikke boplikt for eiendommen.
Konsesjon
Kjøp av eiendommen er konsesjonspliktig.
Tinglyste heftelser og forpliktelser
På eiendommen er det tinglyst følgende heftelser og rettigheter som følger eiendommens matrikkel ved overskjøting til ny hjemmelshaver: 4203/436/128: 12.01.1954 - Dokumentnr: 106 - Rettigheter iflg. skjøte Rett til snuplass Rettighetshaver Arendal kommune. Overført fra: Knr:0906 Gnr:436 Bnr:204 Betyr: Skjøte med rett til snuplass. Se vedlagt servitutt for utfyllende informasjon. 27.10.1981 - Dokumentnr: 8354 - Bestemmelse om veg Rettighetshaver: Knr:4203 Gnr:436 Bnr:194 Rettighetshaver: Knr:4203 Gnr:436 Bnr:195 Rettighetshaver: Knr:4203 Gnr:436 Bnr:196 Med flere bestemmelser Betyr: Erklæring med rett til bruk av vei med snuplass, som tjener som felles adkomstvei. Se vedlagt servitutt for utfyllende informasjon. 15.05.1929 - Dokumentnr: 900034 - Registrering av grunn Denne matrikkelenhet opprettet fra: Knr:4203 Gnr:436 Bnr:25 15.06.2017 - Dokumentnr: 634903 - Sammenslåing Sammenslått med denne matrikkelenhet: Knr:0906 Gnr:436 Bnr:204 Elektronisk innsendt 01.01.2020 - Dokumentnr: 1148420 - Omnummerering ved kommuneendring Tidligere: Knr:0906 Gnr:436 Bnr:128 27.10.1981 - Dokumentnr: 8355 - Bestemmelse om veg Rettighet hefter i: Knr:4203 Gnr:436 Bnr:194 Med snuplass. Betyr: Erklæring med rett til bruk av vei med snuplass, som tjener som felles adkomstvei. Se vedlagt servitutt for utfyllende informasjon. 30.03.2006 - Dokumentnr: 181286 - Best. om vann/kloakkledn. Rettighet hefter i: Knr:4203 Gnr:436 Bnr:678 offentlig myndigheter og kabelselskaper Bestemmelse om elektriske ledninger/kabler Med flere bestemmelser Betyr: Skjøte med kjørevei med videlikeholdsansvar og rett til å ha vann- og avløpsledninger i eller langs veien med vedlikeholdsansvar for gnr. 436, bnr. 678 over gnr. 436, bnr. 37. Gnr. 436, bnr. 678 plikter å opparbeide og vedlikeholde arealet mellom sin tomtegrense og kjøreveien. Gir rett til å ha vann- og avløpsledninger liggende i eller langs kjøreveien over gnr 436, bnr. 37 med vedlikeholdsansvar. Se vedlagt servitutt for utfyllende informasjon. 06.04.2006 - Dokumentnr: 190714 - Best. om vann/kloakkledn. Rettighet hefter i: Knr:4203 Gnr:436 Bnr:679 offentlige myndigheter og kabelselskaper Bestemmelse om elektriske ledninger/kabler Med flere bestemmelser Betyr: Skjøte med kjørevei med videlikeholdsansvar og rett til å ha vann- og avløpsledninger i eller langs veien med vedlikeholdsansvar for gnr. 436, bnr. 679 over gnr. 436, bnr. 37. Gnr. 436, bnr. 679 plikter å opparbeide og vedlikeholde arealet mellom sin tomtegrense og kjøreveien. Gir rett til å legge og ha liggende ledningers anlegg for vann, avløp, elektrisitet, telefon, radio/TV o.l. Se vedlagt servitutt for utfyllende informasjon. 14.03.2007 - Dokumentnr: 259920 - Bestemmelse iflg. skjøte Rettighet hefter i: Knr:4203 Gnr:436 Bnr:680 Rett for kommunen til å anlegge og vedlikeholde ledninger m.m. Bestemmelse om elektriske ledninger/kabler Bestemmelse om telefonledning/telesentral Dette gjelder også parseller som vil bli fraskilt fra bnr. 37 i fremtiden Med flere bestemmelser Betyr: Skjøte med kjørevei med videlikeholdsansvar og rett til å ha vann- og avløpsledninger i eller langs veien med vedlikeholdsansvar for gnr. 436, bnr. 680 over gnr. 436, bnr. 37. Gnr. 436, bnr. 680 plikter å opparbeide og vedlikeholde arealet mellom sin tomtegrense og kjøreveien. Gir rett til å legge og ha liggende ledningers anlegg for vann, avløp, elektrisitet, telefon, radio/TV o.l. Se vedlagt servitutt for utfyllende informasjon. Fra hovedbølet som eiendommen er fradelt fra, kan det være tinglyst heftelser i form av erklæringer/avtaler som ikke fremgår av grunnboken for denne eiendommen. Det gjøres oppmerksom på at grunnboken er endret, slik at det ikke lenger er mulig for kjøpers bank å forutsette 1. prioritets pant der hvor det er tinglyste heftelser, som ikke skal slettes for selgers regning. Eiendommen blir overdratt fri for rene pengeheftelser med mindre annet er oppgitt.
Legalpant
Kommunen har legalpant som sikkerhet for betaling av kommunale avgifter og eventuell eiendomsskatt. Legalpant er pant som ikke kommer frem av grunnboksutskriften, og har bedre prioritet enn for eksempel lån til bank som er tinglyst på eiendommen.
Øvrige kjøpsforhold
Diverse
Kjøper og selger er forpliktet til å undertegne standard kjøpekontrakt utarbeidet av Nordvik i forbindelse med eiendomstransaksjonen. Kjøpekontrakt kan besiktiges hos eiendomsmegler før bud inngis. Kontakt eiendomsmegler for spørsmål. Selger leverer eiendommen i ryddig og rengjort stand. Selger har i dag installert alarm fra Verisure.
Overtagelse
Overtakelse skjer etter avtale med selger. Før boligen overleveres kjøper, skal fullt oppgjør og omkostninger være mottatt på meglers klientkonto.
Sentrale lover
Eiendommen selges etter reglene i avhendingsloven. Generelle bestemmelser: Alle innvendige og utvendige arealangivelser, samt beskrivelser av bygningen er hentet fra vedlagte tilstandsrapport/boligsalgsrapport. Salgsoppgaven er basert på de opplysningene selger har gitt til megler, den bygningssakkyndiges tilstandsrapport, samt opplysninger innhentet fra kommunen, Kartverket og andre tilgjengelige kilder. Det er viktig at kjøper setter seg grundig inn i alle salgsdokumentene, herunder salgsoppgave, tilstandsrapport og selgers egenerklæring. Kjøper anses kjent med forhold som er tydelig beskrevet i salgsdokumentene, og slike forhold kan ikke påberopes som mangler. Dette gjelder uavhengig av om kjøper har lest dokumentene. Det kan være avvik fra dagens rombruk/rombenevnelser sammenlignet med det som er byggemeldt/godkjent. Alle interessenter oppfordres til å undersøke eiendommen nøye, gjerne sammen med fagkyndig før bud inngis. Kjøper som velger å kjøpe usett kan ikke gjøre gjeldende som mangel noe han burde blitt kjent med ved undersøkelsen. Dersom det er behov for avklaringer, anbefaler vi at interessenter rådfører seg med eiendomsmegler eller egne rådgivere før det legges inn bud. En bolig som har blitt brukt i en viss tid, har vanligvis blitt utsatt for slitasje og skader kan ha oppstått. Slik bruksslitasje må kjøper regne med, og det kan avdekkes enkelte forhold etter overtakelse som nødvendiggjør utbedringer. Normal slitasje og skader som nødvendiggjør utbedring, er innenfor hva kjøper må forvente og vil ikke utgjøre en mangel. Kjøper og selgers rettigheter og plikter reguleres av avtalen mellom partene, samt informasjonen som har vært tilgjengelig for kjøperen i forbindelse med handelen. Avtalen utfylles av avhendingsloven, og det gjelder ulike avtalevilkår avhengig av om kjøper er forbrukerkjøper eller ikke. Dette er nærmere beskrevet nedenfor. På grunn av ulike avtalevilkår kan selger vurdere bud fra en som ikke er forbruker, ulikt fra en forbrukers bud. Dersom kjøper ikke er forbruker, er selger sitt mulige mangelsansvar begrenset fordi eiendommen selges "som den er". Selger kan ikke ta «som den er» forbehold ovenfor en forbrukerkjøper. Selv et lavere bud fra en som ikke er forbruker kan foretrekkes fordi begrensningen i mulig mangelsansvar kan ha egenverdi for selger. Selger står fritt til å forkaste eller akseptere ethvert bud, og er for eksempel ikke forpliktet til å akseptere høyeste bud. Budgiver skal i budskjema avgi egenerklæring om budgiver er forbruker eller næringsdrivende/ person som hovedsakelig handler som ledd i næringsvirksomhet. Budgivere får informasjon dersom andre bud er inngitt av en som ikke er forbruker. Forbrukerkjøp - definisjon: Med forbrukerkjøp menes kjøp av eiendom når kjøperen er en fysisk person som ikke hovedsakelig handler som ledd i næringsvirksomhet. Forbruker – avtalevilkår: Eiendommen har en mangel dersom den ikke er i samsvar med kravene som følger av avtalen, eller det foreligger brudd på bestemmelsene i avhendingsloven §§ 3-2 til 3-8. Hvis eiendommen ikke er i samsvar med det kjøperen må kunne forvente ut ifra alder, type og synlig tilstand, kan det være grunnlag for mangelskrav. Det samme gjelder hvis det er holdt tilbake eller gitt uriktige opplysninger om eiendommen. Dette gjelder likevel bare dersom man kan gå ut ifra at det virket inn på avtalen at opplysningen ikke ble gitt eller at feil uriktige opplysninger ikke blir rettet i tide på en tydelig måte. Boligen kan ha en mangel etter avhendingsloven § 3-3 dersom det er avvik mellom opplyst og faktisk innvendig areal, forutsatt at avviket er på 2% eller mer og minimum 1 kvm. Ved beregning av et eventuelt prisavslag eller erstatning må kjøper selv dekke tap/kostnader opptil et beløp på kr 10 000 (egenandel). Ikke-forbruker (næringsdrivende) – definisjon: Hvis kjøper er en juridisk person, eller en fysisk person som hovedsakelig handler som ledd i næringsvirksomhet, vil kjøpet ikke anses som et forbrukerkjøp. Ikke-forbruker – avtalevilkår: Eiendommen har en mangel dersom den ikke er i samsvar med kravene som følger av avtalen. Eiendommen selges «som den er», og selgers ansvar utover det konkret avtalte er da begrenset etter avhendingsloven § 3-9, første ledd andre setning. Avhendingsloven § 3-3 andre ledd fravikes, og hvorvidt boligens arealsvikt utgjør en mangel vurderes etter avhendingsloven § 3-8. Informasjon om kjøpers undersøkelsesplikt, herunder oppfordringen om å undersøke eiendommen nøye, gjelder også for kjøpere som ikke anses som forbrukere.
Boligselgerforsikring
Selger har tegnet boligselgerforsikring. Se selgers egenerklæringsskjema vedlagt salgsoppgaven.
Boligkjøperforsikring
I samarbeid med Storebrand og HELP tilbyr Nordvik Boligkjøperpakke til våre boligkjøpere. Boligkjøperpakken er et gunstig forsikringskonsept som inneholder alle de forsikringene du trenger til den nye boligen din. Boligkjøperpakke Hus inneholder: Boligkjøperforsikring fra HELP, flytteforsikring, innboforsikring Super og husforsikring Super fra Storebrand. Boligkjøperforsikring er en rettshjelpsforsikring som gir trygghet og profesjonell juridisk hjelp dersom det oppdages uventede feil eller mangler ved boligen. Forsikringen gjelder i 5 år fra overtakelsen. Flytteforsikring dekker skade på eiendeler under flytting ved plutselig og uforutsett hendelse som oppstår under transport eller i forbindelse med bæring mellom bolig, bil eller lagringssted. Forsikringen varer i 1 år fra budaksept. Innboforsikring Super dekker tingene dine ved blant annet tyveri, brann eller vannskader. Vår beste innboforsikring Super inkluderer blant annet uflaksforsikring, bistand ved ID-tyveri og psykologhjelp ved alvorlige hendelser hjemme. Forsikringen gjelder i 3 måneder fra overtakelsesdatoen av ny bolig. Husforsikring Super dekker alt fra brann og vannskader til naturskader og bekjempelse av rotter og mus. I tillegg inkluderer Super-dekningen vannskader fra våtrom, sopp- og råteskader, og følgeskader på bygningen som skyldes håndverkerfeil. Forsikringen gjelder i 3 måneder fra overtakelsesdatoen av ny bolig. Velger du Boligkjøperpakke Hus+ får du i tillegg renteforsikring: Renteforsikringen kan hjelpe deg med rentekostnaden og forsikringspremien på din primærbolig som skal selges, hvis salgsprosessen fører til at du må betale rentekostnader på to lån. Forsikringen gjelder i 9 måneder (3 måneder karenstid) og dekker inntil 15 000 kroner i måneden. Boligkjøperforsikring fra HELP kan også kjøpes separat og inkluderer da flytteforsikring fra Storebrand. Boligkjøperpakke/Boligkjøperforsikring må tegnes senest ved kontraktsignering og gjelder fra overtakelsen. Kjøper blir kontaktet av Storebrand med et tilbud på videre forsikring av hus og innbo. Se pris og mer informasjon om forsikringene i produktarket vedlagt salgsoppgaven, eller ta kontakt med megler.
Betalingsbetingelser
Oppgjør skal betales i en samlet innbetaling fra norsk bank. Betaling fra utlandet tillates kun i unntakstilfeller og dersom det er avklart med megler i anledning avtaleinngåelse (budaksept).
Viktig informasjon om budgivning
Alle bud skal inngis skriftlig til megler, som formidler disse videre til selger. Kravet til skriftlighet gjelder også budforhøyelser og motbud, aksept eller avslag fra selger. Bud kan legges inn på eiendommens finn-annonse ved å trykke på knappen «gi bud» eller via vår hjemmeside. Bud kan legges inn på eiendommens annonse på hjem.no/finn.no ved å trykke på knappen «gi bud» eller via vår hjemmeside. Ved elektronisk budgivning legges bud inn ved å benytte BankID. Bud kan også inngis på budskjema vedlagt i salgsoppgaven. Før megler formidler bud til selger, skal megler innhente gyldig legitimasjon og signatur fra budgiver. Kravet til legitimasjon og signatur er oppfylt for budgivere som benytter e-signatur, eksempelvis BankID eller MinID. Senere bud kan inngis per e-post eller SMS til megler. Dersom budgiver skal by på eiendommen i henhold til kjøpsfullmakt må megler kontaktes i forkant av budgivning. Ved bruk av kjøpsfullmakt, må fullmakten oversendes til megler i forkant av budgivning. Kjøper kan ikke kreve at eiendommen tinglyses på andre enn kjøper. Om kjøper ønsker at noen andre skal stå som hjemmelshaver, må det tas forbehold om dette i budet. Selger kan velge å ikke akseptere dette. Et bud bør inneholde eiendommens adresse (eventuelt gnr/bnr), kjøpesum, budgivers kontaktinformasjon, finansieringsplan, akseptfrist, overtakelsesdato og eventuelle forbehold som for eksempel usikker finansiering, salg av nåværende bolig ol. Normalt vil ikke et bud med forbehold bli akseptert før forbeholdet er avklart. Konferer gjerne med megler før bud avgis. Megler skal legge til rette for en forsvarlig avvikling av budrunden. I forbrukerforhold (dvs. der selger er forbruker) skal megleren ikke formidle bud med kortere akseptfrist enn kl. 12.00 første virkedag etter siste annonserte visning. Senere bud må ha en tilstrekkelig lang akseptfrist til at megler, så langt det er nødvendig og mulig, kan videreformidle budet og eventuelle forbehold til alle involverte parter og legge til rette for at disse får tid til å områ seg, jf. forskrift om eiendomsmegling § 6-3. Akseptfrist bør derfor være på minimum 30 minutter, og budforhøyelser bør skje senest 10 minutter før fristens utløp. Dersom bud inngis med en frist som åpenbart er for kort til at megleren kan avvikle budrunden på en forsvarlig måte, vil megler fraråde budgiver å stille slik frist. Megleren vil uoppfordret gi sin vurdering av det enkelte bud overfor selgeren, når budet er gitt innenfor akseptfristene ovenfor. Megler skal så snart som mulig bekrefte skriftlig overfor budgivere at budene deres er mottatt. Megler kan ikke formidle bud med forbehold om at budet eller forbehold i budet skal holdes skjult (hemmelig) for andre budgivere og interessenter. Etter at handel har kommet i stand, eller dersom en budrunde avsluttes uten at handel er kommet i stand, kan en budgiver kreve kopi av budjournalen i anonymisert form. Kopi av budjournal skal gis til kjøper og selger uten ugrunnet opphold etter at handel er kommet i stand. Dersom det er viktig for budgiver å bevare sin anonymitet, bør budet fremmes gjennom fullmektig. For mer informasjon om budgivningsprosessen, se «Forbrukerinformasjon om budgivning», som er vedlagt salgsoppgaven, eller ta kontakt med megler.
Tilbud på finansiering
Du kan søke om boliglån hos vår samarbeidspartner Storebrand, og få svar på dagen. Med boliglån i Storebrand kan du være trygg på at du til enhver tid har blant markedets mest konkurransedyktige renter. Du vil bli tatt godt vare på av et av Norges beste servicemiljøer innen bank. Som kunde i Storebrand Bank får du en fast kontaktperson å forholde deg til, som vil gi deg gode råd og god hjelp med kort svartid. Søk om boliglån i Storebrand og få • Enkel søknad - og etableringsprosess • Svar på dagen • Fast kontaktperson å forholde deg til • Trygghet for at du alltid har konkurransedyktige betingelser Ta kontakt på telefon 22 31 22 21 eller nordvik@storebrand.no. Les mer på storebrand.no/nordvik. Meglerforetaket kan motta provisjon ved formidling av finansielle tjenester.
Hvitvasking
Eiendomsmeglere er underlagt lov om hvitvasking og tilhørende forskrift. Etter hvitvaskingsloven er eiendomsmegler pålagt å gjennomføre kundetiltak av både selger og kjøper. Hvis kjøper ikke bidrar til at megler får gjennomført kundetiltak, og dette fører til at transaksjonen ikke kan gjennomføres eller blir forsinket, misligholder kjøper avtalen. Etter 30 dager anses misligholdet vesentlig, og selger har rett til å heve avtalen og gjennomføre dekningssalg for kjøpers regning. Dersom det er selger som ikke bidrar til at megler får gjennomført løpende kundetiltak underveis i oppdraget må eiendomsmegler stanse gjennomføringen av transaksjonen. Selger vil i et slikt tilfelle ha misligholdt sine forpliktelser, og kjøper vil kunne ha et krav mot selger etter avhendingsloven. Hvis kundetiltak ikke lar seg gjennomføre, vil Nordvik Eiendomsmegling ikke kunne bistå med handelen eller foreta oppgjør.
Personopplysningsloven
Personopplysninger vil bli behandlet i samsvar med personopplysningsloven. Ved å registrere deg som interessent og/eller budgiver eller kjøpe vil vi innhente, behandle og registrere personopplysninger om deg. Eiendomsmeglingsforetak har plikt til å oppbevare kontrakter og dokumenter i 10 år, jf. eiendomsmeglingsforskriften § 3-7 (3). Denne oppbevaringsplikten begrenser muligheten for å få slettet personopplysninger. Du kan lese mer om Nordviks behandling av personopplysninger i vår personvernerklæring på nordvikbolig.no/personvern.
Om oppdraget
Eiendomsmeglers vederlag
Vederlag: Provisjon: 1,00% av salgssum (min. kr. 45 000,-) – estimert til kr. 49 900,- Grunnpakke Hus kr. 12 900,- Markedspakke inkl. trykket salgsoppgave kr. 23 900,- Oppgjørshonorar kr. 8 500,- Tilrettelegging kr. 9 650,- Visningshonorar/overtagelseshonorar - max 2 betalte kr. 3 900,- Utlegg: Utlegg foto - Interiør og fasade - drone + innebilder kr. 5 500,- Utlegg tilstandsrapport -faktureres direkte - ca. 18.500,- kr. 0,- Utlegg video - Inkludert - kostnad er trukket fra tilretteleggingsgebyr kr. 3 250,- Samlet skal selger betale kr. 117 500,- for vederlag og utlegg ved salg til prisantydning. Dersom oppdraget utløper eller blir sagt opp, uten at handel er kommet i stand, har megler krav på et rimelig vederlag for medgått tid/utført arbeid og avtalte utgifter (tilrettelegging, markedsføring og avholdte visninger) samt eventuelle utlegg. Ved beregningen av vederlaget skal det tas utgangspunkt i timeprisen som er kr. 3 625,-.
Vedlegg til salgsoppgaven
Vedleggene er en del av den komplette salgsoppgaven. Det er viktig at interessenter setter seg godt inn i vedleggene og kontakter megler med eventuelle spørsmål før bud inngis.
Ansvarlig megler
Kristoffer Eastwood, Daglig leder / Eiendomsmegler MNEF / Partner
485 02 050
k.eastwood@nordvikbolig.no
Meglerforetaket
Juridisk navn: Arendal Eiendomsmegling AS
Org. nr.: 932433192
Kirkegaten 5, 4836 ARENDAL
Samarbeidspartnere og foretak med tilknytning til Nordvik
Meglerforetaket og Nordvik-kjeden samarbeider med en rekke foretak som tilbyr produkter eller tjenester i forbindelse med megleroppdraget. - Storebrand leverer boligselgerforsikring, finansieringsløsninger og forsikringer til kjøper - Help forsikring leverer boligkjøperforsikring - Flytte- og lagringstjenester gjennom Loyalty, oppussing gjennom Steddy, brebånd levert av Telenor, alarm levert av Sector alarm, strøm levert av Fjordkraft og Fortum og utleietjenester levert av Utleiemegleren. Hvilke tilbud kjøper og selger får i forbindelse med oppdraget kan variere ut fra hvor i landet eiendommen ligger. Nordvik bolig AS, som er franchisegiver for Nordvik-kjeden, eier aksjer i Bomega AS (Hjem.no). Arendal Eiendomsmegling AS har indirekte eierskap i Bomega AS.
Trygg bolighandel med Nordvik
Forsikringer
Hos oss i Nordvik har vi for gode forsikringer til både deg som skal selge og deg som skal kjøpe.
Boligforsikring
Bilder






Ingen kjenner nabolaget bedre!
Hva sier innbyggerne om Arendal?
Nordvikundersøkelsen gjør deg litt bedre kjent med området boligen ligger i, og får frem fakta, funn og innsikt som vi tror kan være nyttig ved valg av ny bolig.
Hele undersøkelsen finner du her.
Trivsel
90%Vil bli boende i Arendal dersom de skulle flyttet.
Søndagsaktivitet
- Er ute, på tur, ski, trening (61%)
- Venner, familie, besøk, middag (12%)
- Slapper av, ser på TV, leser (29%)
- Jobber i hage/hus (15%)
Hva er innbyggene mest stolt av i nabolaget?
Vennlig og hjelpsomme naboer
62%Av alle innbyggene beskriver naboene sine som vennlige og hjelpsomme.
All data er hentet fra Nordvikundersøkelsen gjennomført våren 2025 i samarbeid med Norstat.
Kristoffer Eastwood
Daglig leder / Eiendomsmegler MNEF / Partner
Arendal
Selge bolig?
Slik hjelper jeg deg til
et godt salg
Er du klar til budrunde?















































