Hurdal HagetunHurdal
- Hurdal
- Hurdal Hagetun
- Tomteareal
- 9 442 m2 (eiet)
- Prisantydning
- 4 500 000,-
- Totalpris
- 4 613 880,-
Hurdal
Spennende regulert tomt klargjort for 18 moderne boenheter. Nydelig beliggenhet rett ved skisenter. Ca. 1t fra Oslo
Spennende regulert tomt klargjort for 18 moderne boenheter. Reguleringsplan for eiendommen ble vedtatt i 2022 og følger vedlagt i salgsoppgaven. Eiendommen har en nydelig beliggenhet like ved skisenter med alpinanlegg og Hurdal sentrum. Kun en times kjøretur fra Oslo og ca. 35 minutter fra Gardermoen. Hurdal er et attraktivt sted både for pendlere og barnefamilier - for de som ønsker seg et trygt og oversiktlig oppvekstmiljø samtidig som det er kort vei inn til storbyen. Det er mye å velge i blant friluftsinteresserte. Her er man omkranset av flott natur på alle sider, idylliske stier, skogsveierm skiløyper og en rekke elver og vann med gode fiskemuligheter. Muligheter for bruk av båt på Hurdalssjøen og flere, fine badeplasser.
Solforhold
Tomten har gode solfrohold, se sol- og skyggeanalyse vedlagt i salgsoppgaven.
Nøkkelinformasjon
- Boligtype:
- Tomt
- Prisantydning:
- 4 500 000,-
- Omkostninger:
- 113 880,-
- Totalpris:
- 4 613 880,-
- Tomteareal:
- 9 442 m2 (eiet)
Visninger
Presenteres av
Har du finanseringsbevis på plass?
I samarbeid med
En personlig rådgiver fra vår samarbeidspartner Storebrand Bank vil hjelpe deg å gjøre deg klar til budrunden.

Nøkkelinformasjon
Oppdragsnummer
13-0489/25
Boligtype og eieform
Tomt (Eiet)
Adresse og betegnelse
Hurdal Hagetun, 2090 Hurdal
Gnr. 14, bnr. 9 (ideell andel 1/1) i Hurdal kommune.
Selger(e)
Hurdal Hagetun 2 AS
Kjøpesum og omkostninger
4 500 000,- (Prisantydning) Omkostninger: 112 500,- (Dokumentavgift) 290,- (Pantattest kjøper) 545,- (Tinglyst pantedokument) 545,- (Tinglyst skjøte) 16 300,- (Boligkjøperforsikring* (valgfritt)) -------------------------------------------------------- 113 880,- (Omkostninger totalt (uten Boligkjøperforsikring)) 130 180,- (Omkostninger totalt (med Boligkjøperforsikring)) -------------------------------------------------------- 4 613 880,- (Totalpris inkl. omkostninger (uten Boligkjøperforsikring)) 4 630 180,- (Totalpris inkl. omkostninger (med Boligkjøperforsikring)) -------------------------------------------------------- NB: Regnestykket forutsetter at det kun tinglyses ett pantedokument og at eiendommen selges til prisantydning. Dokumentavgiften er 2,5% av salgssummen, inkl. evt. fellesgjeld. Det tas forbehold om endringer i offentlige avgifter/gebyrer.
Økonomi
Andre utgifter
Løpende utgifter: - Kommunale avgifter er ikke stipulert da eiendommen ikke er bebygd. Det må påregnes kommunale avgifter og eiendomsskatt for boligen. - Det må påregnes tilkoblingsavgift til strømnettet. Prisen avhenger hvor mye jobb det er, kapasitet på nettet, hvor mange boliger som skal tilknyttes samt lengde på kabel. Det er ikke noe fast avgift på dette. Kontakt Hafslund nett for nærmere informasjon. - Det må påregnes tilkoblingsavgift for vann og avløp
Eiendomsskatt
Det er eiendomsskatt i Hurdal Kommune. Eiendomsskatt kr. 500,- pr. år når tomten er ubebygget.
Formuesverdi
Formuesverdien for ubebygget tomt skal ved førstegangs verdsetting verken overstige 80% av eiendommens kostpris eller 80% av eiendommens markedsverdi. Ved senere år skal denne formuesverdien videreføres, men med en eventuell årlig fastsatt oppjustering. Når bygg på eiendommen er påbegynt fastsettes formuesverdien etter andre regler. Se mer på Skatteetatens nettside.
Tomt
Beskrivelse av tomt
Tomtestørrelse: 9 442 kvm (eiet)
Matrikkelbrev fra Hurdal er vedlagt salgsoppgaven.
Adkomst
Se vedlagt kartskisse på høyre side i annonsen. Ved å trykke på kartet får du enkelt tilgang til en spesifisert reiserute fra din startdestinasjon.
Radonmåling
Radonkart fra NGU viser høy radonfare, men all ny bebyggelse skal sikres mot radon jf. TEK17, og videre utredninger er ikke nødvendig.
Områdebeskrivelse
Beskrivelse av nærområdet
Eiendommen ligger i nydelige omgivelser i Hurdal kommune, kun et steinkast unna alpinanlegg og flotte skiløyper. Det er nærhet til skoler, barnehager, gode servicetilbud og offentlig kommunikasjon - nærmeste busstopp ligger rett ved eiendommen. I Hurdal finner du også fotballbane, idrettshall, ridesenter, treningssenter, kino og bibliotek med mer. Hurdal er drømmekommunen for friluftsinteresserte - omkranset av flott natur på alle sider. Her er det idylliske stier, fine skogsveier og en rekke elver og vann med gode fiskemuligheter. Her bor man flott til omringet av skog og flott natur. I Hurdal finner du 8 av Akershus 10 høyeste topper og du kommer på enkelt vis tett på skogens ressurser og opplevelser. Her kan du finne kantareller, bær, multer og flotte landskap langs elever, innsjøer og fjelltopper. I nærområdet finnes flere fine turstier, alt fra koselige turer som passer for småbarnsfamilier til mer krevende turer for den friluftsvante. Sommerstid er det flere fine badeplasser som blant annet Skrukkelisjøen og Hurdalssjøen. Det er også flotte sykkelstier. Hurdal byr på over 40 sjøer og vann som innbyr til godt fiske med mulig for ørret, abbor og gjedde på kroken. Vinterstid kan Hurdal friste med lange skiløyper og et flott skianlegg. Anlegget ligger ca 3 minutter unna med bil og har 11 nedfarter fordelt på 3 heiser. Her er det egne barnebakker, akebakker, skicross og terrengpark, samt en skistue hvor det er muligheter for å kjøpe varmmat. Skisenteret tilbyr også kveldskjøring hvor tre nedfarter og terrengparken er flombelyst. Hurdalsjøen Hotell & Konferansesenter ligger kun 10 min å kjøre fra Hurdal skisenter. Et koselig hotell med badebasseng, badstue og utendørs boblebad. Ønsker man en opplevelse på hesteryggen kan det være verdt en tur til Hurdal hestesenter. De tilbyr rideskole, rideleir, oppstalling og privat undervisning. Det er også skytebane i Hurdal hvor Hurdal Skytterlag blant annet tilbyr uformelle kurs for jegere. Dette blir plassen å bo for friluftsinteresserte, pendlere og barnefamilier - de som ønsker seg et trygt og oversiktlig oppvekstmiljø samtidig som det er kort vei inn til storbyen. Det er flere plasser å bade, og det er også populære badeplasser og muligheter for bruk av båt på Hurdalssjøen. Langs Glassverkvegen rett nedenfor eiendommen er det etablert gang- og sykkelsti til sentrum, og på Hurdalsjøen Hotell og Konferansesenter er det åpen svømmehall Dagligvarehandelen kan gjøres på Spar og Coop Prix. Ønsker du ytterligere servicetilbud har Eidsvoll et trivelig sentrum med gode servicetilbud, der både Sundet og nye AMFI Eidsvoll byr på et variert utvalg fra kjente leverandører og butikker med lokalt særpreg. Det er ca. 30 min med bil til Jessheim Storsenter som har over 150 butikker. Det tar ca 1 time med buss fra Hurdal til Oslo, og det er gode bussforbindelser morgen og kveld til Oslo S. Gardermoen flyplass ligger ca 35 minutter unna med bil.
Bebyggelse
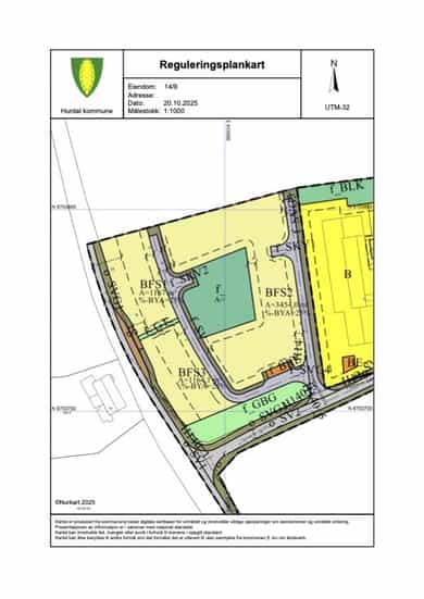
Hensikten med planforslaget er å tilrettelegge for småhusbebyggelse på 18 boenheter, oppført som tomannsboliger. Boenhetene vil få lagt opp to parkeringsplasser per enhet, hvorav en er under tak i garasje/carport. Det vil legges vekt på gode uteoppholdsareal, hvor felles lekeplass vil ligge sentralt i området. Det er ønskelig at boligene skal appellere til ulike boligkjøpere, men særlig unge kjøpere som småbarnsfamilier. Bygninger og anlegg skal utformes i samspill med omgivelsenes karakter og form, og skal derfor i størst mulig grad tilpasses eksisterende terreng. Ved plasseringen av bygg eller anlegg og tilhørende uteareal samt parkeringsplasser, skal det være en bevisst holdning til størrelse, form, materialbruk, detaljering, fargebruk og bruk av vegetasjon. Bebyggelsen skal ha en helhetlig form og volumoppbygging, samt fremme gode gate- og uterom som kan benyttes av alle. Det skal finnes minimum 80m2 uteoppholdsareal per boenhet, hvorav minst 25m2 av disse skal opparbeides som lekeplass. Uteoppholds- og lekeareal skal tilfredsstille krav i Forskrift om tekniske krav til byggverk. Arealene skal være egnet til lek, opphold og aktivitet for beboerne, hvor deler av uteoppholdsarealet kan dekkes gjennom private balkonger og private uteplasser. Gesims- og mønehoyde skal males fra gjennomsnittlig planert terreng rundt bygningen. For BKS1, BKS2 og BKS3 tillates flatt tak, pulttak og saltak. Ved benyttelse av saltak skal takvinkel vare maksimum 27.. Maks gesimshøyde er 7 meter og maks mønehøyde 9 meter. Ved bruk av flatt tak tilsvarer ovre gesims mønehøyde, og høyde skal ikke overstige 7,5m. Ny bebyggelse skal vektlegge god bokvalitet med tanke på blant annet estetikk/byggeskikk, lokalklimatiske forhold, solforhold, grønnstruktur med mer. Tre skal være hovedmateriale for bebyggelsen. For å unngå massive uttrykk skal fasadene brytes opp ved hjelp av bygningsvolum, ulike materialer og farger. Fargebruken skal harmonere med omgivelsene. Materiale- og fargebruk skal fremgå av byggesøknad og godkjennes av kommunen. Detaljert utomhusplan skal utarbeides og må godkjennes av Hurdal kommune før det gis igangsettingstillatelse. Utomhusplan skal vise uteoppholdsareal, beplantning, lekeareal og opparbeiding av dette, adkomst, parkering og renovasjon. Ved arealformål satt av til lekeareal (f_BLK) skal det finnes minimum en sandkasse og to lekeutstyr/apparat, samt 1-2 sittebenker. Det forutsettes at BKS1 og BKS3 bygges ut før BKS2. Parkering: Det skal etableres minimum 2 parkeringsplasser per boenhet inkludert gjesteparkering, for BKS1-2. Biloppstillingsplassene skal plasseres innenfor eiendommene. Garasje/carport kan oppføres sammenbygd med bolighuset. Garasje/carport som har innkjøring vinkelrett på f_SKV1-2 må plasseres minst 5 meter fra kjørebanekant. Garasje/carport som har innkjøring parallelt med f_SKV1-2 må plasseres minst 2 meter fra kjørebanekant.
Skoler og barnehager
Hurdal skole og kultursenter er en skole for 1.-10. trinn, som ligger i sentrum av Hurdal, omtrent 2,6 km unna / ca. 3 minutter med bil. I tillegg startet Hurdal Steinerskole som startet opp høsten 2021 og ligger tett på naturen. Skolen har nå 1.-8 trinn og er godkjent barne- og ungdomsskole, skolen vokser år for år.
For videregående skoler reiser elevene hovedsakelig til Eidsvoll, Jessheim eller Nannestad (ref. kommuneplanens samfunnsdel 2018-2040). Hurdal kommune har 1 kommunal og 2 private barnehager. Hoppensprett Hurdal barnehage er den som ligger nærmest eiendommen.
Offentlige forhold
Vei, vann og avløp
F_SKV1-2 er adkomstveger til området og skal opparbeides med en bredde på 4 meter. Avkjørsler kan opprettes hvor som helst langs delfeltene. Disse skal oppfylle fysiske krav gitt av vegmyndigheten, og fremgå av utomhusplan. Langs f_SKV2 skal det opparbeides en breddeutvidelse for renovasjonsbil. Denne skal opparbeides i henhold til Statens vegvesens håndbok N100. Eksisterende kommunalt VA-nett ligger på vestsiden av Høversjøveien forbi tomten. Det er en vannledning i 180 PE100 lagt i 2020. Fra ledningen går det en ny ledning med samme dimensjon som strekker seg inn mot tomten og ender i vannkum (SiD 3025). Spillvann ligger langs Ødemarksvegen forbi tomten og krysser Høversjøveien før det ledes sørover. Ledningene fra eksiterende bygg veksler fra 160 PVC til 150 BTG før de går over i 225 PVC resten av traseen. Det er ingen overvannsledninger på området. VA-planen ivaretar 3-trinnsstrategien som overvannshåndteringen skal basere seg på. Den er basert på infiltrasjon i massene da det er gode infiltrasjonsmuligheter i løsmassene på tomten. Småregn (2 års) infiltreres på overflaten og i infiltrasjonsgrøftene. Litt større mengder regn (20 års) fordrøyes, og infiltreres etter hvert i infiltrasjonsgrøftene og infiltrasjonssandfangene på tomten. Ved flomsituasjon (200 års) vil overvannet ledes til flomveier, som her vil være veiene og veigrøftene på området. Det vil bli utviklet en egen VA-plan og -notat, som tar for seg vann- og avløpstilknytning. Tilkoblingsavgiften i Hurdal kommune er på ca. kr. 40 000,- pluss graving til punkt som ligger i eiendomsgrensen. Kommunen opplyser at tilknytningsgebyr avløp er 424,- pr. m2 og tilknytningsgebyr vann er 353,- m2 i 2025. For en oversikt over kommunale gebyrer se kommunens hjemmeside: https://pub.framsikt.net/2025/hurdal/bm-2025-gebyrliste_2025#/generic/summary/feesmanagemant/?scrollTo=t-55
Regulerings- og arealplaner
Eiendommen ligger i et område regulert til boligbebyggelse, grønnstruktur, lekeplass, renovasjonsanlegg, frisikt, turveg, kollektivholdeplass og veg i reguleringsplan Hurdal Hagetun 2 stadfestet 14.09.2022. Kommuneplanens areldel 2018 - 2040 er gjeldende. Formål: Boligbebyggelse - fremtidig, boligbebyggelse nåværende og flomfare Godkjent: 13.06.2018. Kommuneplaner: Id: 02391701 Navn: Kommuneplanens arealdel 2018 - 2040 Plantype: Kommuneplanens arealdel Status: Endelig vedtatt arealplan Ikrafttredelse: 13.06.2018 Bestemmelser: https://www.arealplaner.no/3242/dokumenter/367/kommuneplanbestemmelser-2018-2040%20endret%20270819.pdf Delarealer: Delareal 9 363 m Arealbruk: Boligbebyggelse,Framtidig Delareal: 358 m KPHensynsonenavn: a2 KPStøy Rød sone iht. T-1442 Delareal: 30 m Arealbruk: Landbruk-, natur- og friluftsformål samt reindrift (LNFR) (utgått), Nåværende Områdenavn: LNFR_ Delareal: 2 723 m KPHensynsonenavn: a2 KPStøy: Gul sone iht. T-1442 Delarea:l 3 612 m KPHensynsonenavn: a KPFare: Flomfare Delareal: 49 m Arealbruk: Boligbebyggelse,Nåværende Områdenavn: AB Delareal: 64 m KPHensynsonenavn: 2391602 KPDetaljering: Reguleringsplan skal fortsatt gjelde Kommuneplaner under arbeid: Id: 02391701 Navn: Kommuneplanens arealdel 2018 - 2040 Status: Endelig vedtatt arealplan Plantype: Kommuneplanens arealdel Reguleringsplaner: Id: 30372101 Navn: Hurdal hagetun 2 Plantype: Detaljregulering Status: Endelig vedtatt arealplan Ikrafttredelse: 14.09.2022 Bestemmelser: https://www.arealplaner.no/3242/dokumenter/408/21-0183%20Planbestemmelser.pdf Delarealer: Delareal 1 080 m Formål: Lekeplass Feltnavn: f_BLK Delareal: 272 m Formål: Annen veggrunn - grøntareal Feltnavn: f_SVG2 Delareal: 3 m RPHensynsonenavn: H140_5 RPSikring: Frisikt Delareal: 669 m Formål: Grønnstruktur (utgått) Feltnavn: f_GBG Delareal: 14 m RPHensynsonenavn: H140_1 RPSikring: Frisikt Delareal: 13 m Formål: Annen veggrunn - grøntareal Feltnavn: f_SVG4 Delareal: 18 m Formål: Annen veggrunn - grøntareal Feltnavn: o_SVG1 Delareal: 654 m Formål: Kjøreveg Feltnavn: f_SKV2 Delareal: 27 m Formål: Kollektivholdeplass Feltnavn: o_SKH2 Delareal: 2 m RPHensynsonenavn: H140_6 RPSikring: Frisikt Delareal: 311 m Formål: Annen veggrunn - grøntareal Feltnavn: f_SVG5 Delareal: 48 m Formål: Renovasjonsanlegg Feltnavn: f_BRE Delareal: 44 m Formål: Turveg Feltnavn: f_GT Delareal: 1 167 m Formål: Boligbebyggelse-frittliggende småhusbebyggelse Feltnavn: BFS1 Delareal: 474 m Formål: Kjøreveg Feltnavn: f_SKV1 Delareal: 1 164 m Formål: Boligbebyggelse-frittliggende småhusbebyggelse Feltnavn: BFS3 Delareal: 47 m Formål: Annen veggrunn - grøntareal Feltnavn: o_SVG3 Delareal: 3 454 m Formål: Boligbebyggelse-frittliggende småhusbebyggelse Feltnavn: BFS2 Besøk kommunens hjemmeside for mer informasjon.
Konsesjon
Kjøp av eiendommen er ikke konsesjonspliktig, men kjøper må undertegne egenerklæring om konsesjonsfrihet da eiendommen er ubebygget.
Tinglyste heftelser og forpliktelser
På eiendommen er det tinglyst følgende heftelser og rettigheter som følger eiendommens matrikkel ved overskjøting til ny hjemmelshaver: Heftelser i eiendomsrett: 15.12.2014 - Dokumentnr: 1101419 - Bestemmelse om veg Rettighetshaver: Knr:3242 Gnr:14 Bnr:103 Rettighetshaver: Knr:3242 Gnr:14 Bnr:104 Gjelder denne registerenheten med flere 15.12.2014 - Dokumentnr: 1101419 - Best. om vann/kloakkledn. Rettighetshaver: Knr:3242 Gnr:14 Bnr:103 Rettighetshaver: Knr:3242 Gnr:14 Bnr:104 Bestemmelse om anlegg og vedlikehold av ledninger m.m. Gjelder denne registerenheten med flere Grunndata: 23.11.1878 - Dokumentnr: 900015 - Registrering av grunn Denne matrikkelenhet opprettet fra: Knr:3242 Gnr:14 Bnr:6 17.12.1921 - Dokumentnr: 900171 - Registrering av grunn Utskilt fra denne matrikkelenhet: Knr:3242 Gnr:14 Bnr:18 11.11.1964 - Dokumentnr: 5355 - Registrering av grunn Utskilt fra denne matrikkelenhet: Knr:3242 Gnr:14 Bnr:52 19.04.2002 - Dokumentnr: 4417 - Sammenslåing Sammenslått med denne matrikkelenhet: Knr:0239 Gnr:14 Bnr:51 15.12.2014 - Dokumentnr: 1101391 - Registrering av grunn Utskilt fra denne matrikkelenhet: Knr:3242 Gnr:14 Bnr:103 15.12.2014 - Dokumentnr: 1101410 - Registrering av grunn Utskilt fra denne matrikkelenhet: Knr:3242 Gnr:14 Bnr:104 26.01.2017 - Dokumentnr: 78969 - Registrering av grunn Utskilt fra denne matrikkelenhet: Knr:3242 Gnr:14 Bnr:107 26.01.2017 - Dokumentnr: 78983 - Registrering av grunn Utskilt fra denne matrikkelenhet: Knr:3242 Gnr:14 Bnr:108 18.01.2018 - Dokumentnr: 341186 - Registrering av grunn Utskilt fra denne matrikkelenhet: Knr:3242 Gnr:14 Bnr:109 Elektronisk innsendt 26.04.2018 - Dokumentnr: 697282 - Registrering av grunn Utskilt fra denne matrikkelenhet: Knr:3242 Gnr:14 Bnr:110 Elektronisk innsendt 01.01.2020 - Dokumentnr: 1239828 - Omnummerering ved kommuneendring Tidligere: Knr:0239 Gnr:14 Bnr:9 01.01.2024 - Dokumentnr: 242539 - Omnummerering ved kommuneendring Tidligere: Knr:3037 Gnr:14 Bnr:9 Denne eiendommen er tidligere utskilt fra eiendommen med gnr 14, bnr 6 i Hurdal kommune («hovedbølet»). På hovedbølet kan det være tinglyst erklæringer/avtaler som også gjelder for denne eiendommen. Dette kan for eksempel være rett for kommunen til å anlegge og reparere vann- og kloakkledninger, bestemmelser om bebyggelse, gjerder, vei og adkomstrettigheter. Heftelsene kan ikke slettes. Vennligst ta kontakt med megler for nærmere spesifikasjon av rettighetene.
Legalpant
Kommunen har legalpant som sikkerhet for betaling av kommunale avgifter og eventuell eiendomsskatt. Legalpant er pant som ikke kommer frem av grunnboksutskriften, og har bedre prioritet enn for eksempel lån til bank som er tinglyst på eiendommen.
Verneklasse/SEFRAK
Ubebygget tomt. Ingen kulturminne eller Sefrak i følge matrikkelbrev.
Øvrige kjøpsforhold
Diverse
Kjøper og selger er forpliktet til å undertegne standard kjøpekontrakt utarbeidet av Nordvik i forbindelse med eiendomstransaksjonen. Kjøpekontrakt kan besiktiges hos eiendomsmegler før bud inngis. Kontakt eiendomsmegler for spørsmål. Selger leverer eiendommen i ryddig stand. Ny eier må ta kontakt med Elvia angående påkobling av strøm. Det ligger fiber fra Global Connect inntil eiendommen.
Overtagelse
Overtakelse skjer etter avtale med selger. Før boligen overleveres kjøper, skal fullt oppgjør og omkostninger være mottatt på meglers klientkonto.
Sentrale lover
Generelle bestemmelser Salgsoppgaven er basert på de opplysningene selger har gitt til megler, samt opplysninger innhentet fra kommunen, Kartverket og andre tilgjengelige kilder. Det er viktig at kjøper setter seg grundig inn i alle salgsdokumentene, herunder salgsoppgave, tilstandsrapport og selgers egenerklæring. Kjøper anses kjent med forhold som er tydelig beskrevet i salgsdokumentene, og slike forhold kan ikke påberopes som mangler. Dette gjelder uavhengig av om kjøper har lest dokumentene. Alle interessenter oppfordres til å undersøke eiendommen nøye, gjerne sammen med fagkyndig før bud inngis. Kjøper som velger å kjøpe usett kan ikke gjøre gjeldende som mangel noe han burde blitt kjent med ved undersøkelsen. Dersom det er behov for avklaringer, anbefaler vi at interessenter rådfører seg med eiendomsmegler eller egne rådgivere før det legges inn bud. Kjøper og selgers rettigheter og plikter reguleres av avtalen mellom partene, samt informasjonen som har vært tilgjengelig for kjøperen i forbindelse med handelen. Avtalen utfylles av avhendingsloven, og det gjelder ulike avtalevilkår avhengig av om kjøper er forbrukerkjøper eller ikke. Dette er nærmere beskrevet nedenfor. På grunn av ulike avtalevilkår kan selger vurdere bud fra en som ikke er forbruker, ulikt fra en forbrukers bud. Dersom kjøper ikke er forbruker, er selger sitt mulige mangelsansvar begrenset fordi eiendommen selges "som den er". Selger kan ikke ta «som den er» forbehold ovenfor en forbrukerkjøper. Selv et lavere bud fra en som ikke er forbruker kan foretrekkes fordi begrensningen i mulig mangelsansvar kan ha egenverdi for selger. Selger står fritt til å forkaste eller akseptere ethvert bud, og er for eksempel ikke forpliktet til å akseptere høyeste bud. Budgiver skal i budskjema avgi egenerklæring om budgiver er forbruker eller næringsdrivende/ person som hovedsakelig handler som ledd i næringsvirksomhet. Budgivere får informasjon dersom andre bud er inngitt av en som ikke er forbruker. Forbrukerkjøp - definisjon Med forbrukerkjøp menes kjøp av eiendom når kjøperen er en fysisk person som ikke hovedsakelig handler som ledd i næringsvirksomhet. Forbruker – avtalevilkår Eiendommen har en mangel dersom den ikke er i samsvar med kravene som følger av avtalen, eller det foreligger brudd på bestemmelsene i avhendingsloven §§ 3-2 til 3-8. Det samme gjelder hvis det er holdt tilbake eller gitt uriktige opplysninger om eiendommen. Dette gjelder likevel bare dersom man kan gå ut ifra at det virket inn på avtalen at opplysningen ikke ble gitt eller at feil uriktige opplysninger ikke blir rettet i tide på en tydelig måte. Eiendommen kan ha en mangel etter avhendingsloven § 3-3 dersom det er avvik mellom opplyst og faktisk areal, forutsatt at arealet er vesentlig mindre enn opplyst. Ved beregning av et eventuelt prisavslag eller erstatning må kjøper selv dekke tap/kostnader opptil et beløp på kr 10 000 (egenandel). Ikke-forbruker (næringsdrivende) – definisjon Hvis kjøper er en juridisk person, eller en fysisk person som hovedsakelig handler som ledd i næringsvirksomhet, vil kjøpet ikke anses som et forbrukerkjøp. Ikke-forbruker – avtalevilkår Eiendommen har en mangel dersom den ikke er i samsvar med kravene som følger av avtalen. Eiendommen selges «som den er», og selgers ansvar utover det konkret avtalte er da begrenset etter avhendingsloven § 3-9, første ledd andre setning. Informasjon om kjøpers undersøkelsesplikt, herunder oppfordringen om å undersøke eiendommen nøye, gjelder også for kjøpere som ikke anses som forbrukere.
Boligkjøperforsikring
Kjøper (ikke juridiske personer) kan tegne Boligkjøperforsikring ved kjøp av tomt. Boligkjøperforsikringen må senest tegnes i forbindelse med kontraktsmøtet. Produktark for boligkjøperforsikringen ligger vedlagt i salgsoppgaven. Ta kontakt med megler for mer informasjon.
Betalingsbetingelser
Oppgjør skal betales i en samlet innbetaling fra norsk bank. Betaling fra utlandet tillates kun i unntakstilfeller og dersom det er avklart med megler i anledning avtaleinngåelse (budaksept).
Viktig informasjon om budgivning
Alle bud skal inngis skriftlig til megler, som formidler disse videre til selger. Kravet til skriftlighet gjelder også budforhøyelser og motbud, aksept eller avslag fra selger. Bud kan legges inn på eiendommens finn-annonse ved å trykke på knappen «gi bud» eller via vår hjemmeside. Bud kan legges inn på eiendommens annonse på hjem.no/finn.no ved å trykke på knappen «gi bud» eller via vår hjemmeside. Ved elektronisk budgivning legges bud inn ved å benytte BankID. Bud kan også inngis på budskjema vedlagt i salgsoppgaven. Før megler formidler bud til selger, skal megler innhente gyldig legitimasjon og signatur fra budgiver. Kravet til legitimasjon og signatur er oppfylt for budgivere som benytter e-signatur, eksempelvis BankID eller MinID. Senere bud kan inngis per e-post eller SMS til megler. Dersom budgiver skal by på eiendommen i henhold til kjøpsfullmakt må megler kontaktes i forkant av budgivning. Ved bruk av kjøpsfullmakt, må fullmakten oversendes til megler i forkant av budgivning. Kjøper kan ikke kreve at eiendommen tinglyses på andre enn kjøper. Om kjøper ønsker at noen andre skal stå som hjemmelshaver, må det tas forbehold om dette i budet. Selger kan velge å ikke akseptere dette. Et bud bør inneholde eiendommens adresse (eventuelt gnr/bnr), kjøpesum, budgivers kontaktinformasjon, finansieringsplan, akseptfrist, overtakelsesdato og eventuelle forbehold som for eksempel usikker finansiering, salg av nåværende bolig ol. Normalt vil ikke et bud med forbehold bli akseptert før forbeholdet er avklart. Konferer gjerne med megler før bud avgis. Et bud bør inneholde eiendommens adresse (eventuelt gnr/bnr), kjøpesum, budgivers kontaktinformasjon, finansieringsplan, akseptfrist, overtakelsesdato og eventuelle forbehold. Megler skal legge til rette for en forsvarlig avvikling av budrunden. I forbrukerforhold (dvs. der selger er forbruker) skal megleren ikke formidle bud med kortere akseptfrist enn kl. 12.00 første virkedag etter siste annonserte visning. Senere bud må ha en tilstrekkelig lang akseptfrist til at megler, så langt det er nødvendig og mulig, kan videreformidle budet og eventuelle forbehold til alle involverte parter og legge til rette for at disse får tid til å områ seg, jf. forskrift om eiendomsmegling § 6-3. Akseptfrist bør derfor være på minimum 30 minutter, og budforhøyelser bør skje senest 10 minutter før fristens utløp. Dersom bud inngis med en frist som åpenbart er for kort til at megleren kan avvikle budrunden på en forsvarlig måte, vil megler fraråde budgiver å stille slik frist. Megleren vil uoppfordret gi sin vurdering av det enkelte bud overfor selgeren, når budet er gitt innenfor akseptfristene ovenfor. Megler skal så snart som mulig bekrefte skriftlig overfor budgivere at budene deres er mottatt. Megler kan ikke formidle bud med forbehold om at budet eller forbehold i budet skal holdes skjult (hemmelig) for andre budgivere og interessenter. Etter at handel har kommet i stand, eller dersom en budrunde avsluttes uten at handel er kommet i stand, kan en budgiver kreve kopi av budjournalen i anonymisert form. Kopi av budjournal skal gis til kjøper og selger uten ugrunnet opphold etter at handel er kommet i stand. Dersom det er viktig for budgiver å bevare sin anonymitet, bør budet fremmes gjennom fullmektig. For mer informasjon om budgivningsprosessen, se «Forbrukerinformasjon om budgivning», som er vedlagt salgsoppgaven, eller ta kontakt med megler.
Tilbud på finansiering
Du kan søke om boliglån hos vår samarbeidspartner Storebrand, og få svar på dagen. Med boliglån i Storebrand kan du være trygg på at du til enhver tid har blant markedets mest konkurransedyktige renter. Du vil bli tatt godt vare på av et av Norges beste servicemiljøer innen bank. Som kunde i Storebrand Bank får du en fast kontaktperson å forholde deg til, som vil gi deg gode råd og god hjelp med kort svartid. Søk om boliglån i Storebrand og få • Enkel søknad - og etableringsprosess • Svar på dagen • Fast kontaktperson å forholde deg til • Trygghet for at du alltid har konkurransedyktige betingelser Ta kontakt på telefon 22 31 22 21 eller nordvik@storebrand.no. Les mer på storebrand.no/nordvik. Meglerforetaket kan motta provisjon ved formidling av finansielle tjenester.
Hvitvasking
Eiendomsmeglere er underlagt lov om hvitvasking og tilhørende forskrift. Etter hvitvaskingsloven er eiendomsmegler pålagt å gjennomføre kundetiltak av både selger og kjøper. Hvis kjøper ikke bidrar til at megler får gjennomført kundetiltak, og dette fører til at transaksjonen ikke kan gjennomføres eller blir forsinket, misligholder kjøper avtalen. Etter 30 dager anses misligholdet vesentlig, og selger har rett til å heve avtalen og gjennomføre dekningssalg for kjøpers regning. Dersom det er selger som ikke bidrar til at megler får gjennomført løpende kundetiltak underveis i oppdraget må eiendomsmegler stanse gjennomføringen av transaksjonen. Selger vil i et slikt tilfelle ha misligholdt sine forpliktelser, og kjøper vil kunne ha et krav mot selger etter avhendingsloven. Hvis kundetiltak ikke lar seg gjennomføre, vil Nordvik Eiendomsmegling ikke kunne bistå med handelen eller foreta oppgjør.
Personopplysningsloven
Personopplysninger vil bli behandlet i samsvar med personopplysningsloven. Ved å registrere deg som interessent og/eller budgiver eller kjøpe vil vi innhente, behandle og registrere personopplysninger om deg. Eiendomsmeglingsforetak har plikt til å oppbevare kontrakter og dokumenter i 10 år, jf. eiendomsmeglingsforskriften § 3-7 (3). Denne oppbevaringsplikten begrenser muligheten for å få slettet personopplysninger. Du kan lese mer om Nordviks behandling av personopplysninger i vår personvernerklæring på nordvikbolig.no/personvern.
Om oppdraget
Eiendomsmeglers vederlag
Vederlag: Fast provisjon: kr. 125 000,- Grunnpakke Leilighet/tomt kr. 10 000,- Markedspakke inkl. digital salgsoppgave kr. 22 900,- Oppgjørshonorar tomt kr. 7 990,- Tilrettelegging kr. 10 000,- Visningshonorar/overtagelseshonorar per stk. kr. 3 900,- Utlegg: Utlegg foto - Interiør og fasade ca. kr. 5 000,- Samlet skal selger betale kr. 184 790,- for vederlag og utlegg ved salg til prisantydning. Dersom oppdraget utløper eller blir sagt opp, uten at handel er kommet i stand, har megler krav på et rimelig vederlag for medgått tid/utført arbeid og avtalte utgifter (tilrettelegging, markedsføring og avholdte visninger) samt eventuelle utlegg. Ved beregningen av vederlaget skal det tas utgangspunkt i timeprisen som er kr. 3 625,-.
Vedlegg til salgsoppgaven
Vedleggene er en del av den komplette salgsoppgaven. Det er viktig at interessenter setter seg godt inn i vedleggene og kontakter megler med eventuelle spørsmål før bud inngis.
Ansvarlig megler
Oskar Johansson, Salgsleder / Eiendomsmegler MNEF / Partner
930 63 069
o.johansson@nordvikbolig.no
Meglerforetaket
Juridisk navn: Bygdøy Alle Eiendom AS
Org. nr.: 914457750
Bygdøy Alle 34, 0265 OSLO
Samarbeidspartnere og foretak med tilknytning til Nordvik
Meglerforetaket og Nordvik-kjeden samarbeider med en rekke foretak som tilbyr produkter eller tjenester i forbindelse med megleroppdraget. - Storebrand leverer boligselgerforsikring, finansieringsløsninger og forsikringer til kjøper - Help forsikring leverer boligkjøperforsikring - Flytte- og lagringstjenester gjennom Loyalty, oppussing gjennom Steddy, brebånd levert av Telenor, alarm levert av Sector alarm, strøm levert av Fjordkraft og Fortum og utleietjenester levert av Utleiemegleren. Hvilke tilbud kjøper og selger får i forbindelse med oppdraget kan variere ut fra hvor i landet eiendommen ligger. Nordvik bolig AS, som er franchisegiver for Nordvik-kjeden, eier aksjer i Bomega AS (Hjem.no). Bygdøy Alle Eiendom AS har indirekte eierskap i Bomega AS.
Trygg bolighandel med Nordvik
Forsikringer
Hos oss i Nordvik har vi for gode forsikringer til både deg som skal selge og deg som skal kjøpe.
Boligforsikring
Bilder






Oskar Johansson
Salgsleder / Eiendomsmegler MNEF / Partner
Bygdøy Allé
Selge bolig?
Slik hjelper jeg deg til
et godt salg
Er du klar til budrunde?




