Kirkegårdsveien 19
- Kirkegårdsveien 19
- Prisantydning
- 3 650 000,-
- Totalpris
- 4 029 376,-
- Felleskost/mnd
- 7 522,-
- Kommunale avg.
- 6 186,- per år
- BRA-i
- 129 m2
Furukollen
Stor penthouse med flott utsikt - Heisadkomst - 2 balkonger, sol hele dagen - Parkering - God standard
Kristoffer Eastwood i Nordvik presenterer Kirkegårdsveien 19! Stor penthouse på toppen av Furukollen med nydelig og vidstrakt utsikt. Leiligheten har 2 flotte balkonger med hver sin vinterhage og sol fra morgen til kveld. Leiligheten strekker seg over 2 plan og har flotte soner med stor spisestue, lekkert Designa kjøkken fra 2021, plass til finstue, tv stue og 3 soverom. Furukollen ligger nær sentrum, Arendal sykehus, Stoa og Harebakken, men samtidig i rolig og tilbaketrukket område nær friområder. Sameiet har romslig og fin felleshage for beboerne.
Nøkkelinformasjon
- Boligtype:
- Selveierleilighet
- Byggeår:
- 1924
- Etasje:
- 3
- Soverom:
- 3
- Prisantydning:
- 3 650 000,-
- Omkostninger:
- 99 570,-
- Fellesgjeld:
- 279 806,-
- Totalpris:
- 4 029 376,-
- Felleskost/mnd:
- 7 522,-
- Kommunale avgifter:
- 6 186,- per år
- Fellesformue:
- 63 353,-
- Totalt BRA:
- 133 m2
- Energimerking:
- G - rød
- Garasje:
- Ja
- Heis:
- Ja
- Veranda:
- Ja
Visninger
Presenteres av
Har du finanseringsbevis på plass?
I samarbeid med
En personlig rådgiver fra vår samarbeidspartner Storebrand Bank vil hjelpe deg å gjøre deg klar til budrunden.

Nøkkelinformasjon
Oppdragsnummer
39-0162/25
Boligtype og eieform
Selveierleilighet (Eierseksjon)
Adresse og betegnelse
Kirkegårdsveien 19, 4847 Arendal
Gnr. 503, bnr. 525, snr. 14 (ideell andel 1/1) i Arendal kommune.
Selger(e)
Solveig Helljesen
Kjøpesum og omkostninger
3 650 000,- (Prisantydning) 279 806,- (Andel av fellesgjeld) -------------------------------------------------------- 3 929 806,- (Pris inkl. fellesgjeld) Omkostninger: 98 220,- (Dokumentavgift) 260,- (Pantattest kjøper) 545,- (Tinglyst pantedokument) 545,- (Tinglyst skjøte) 12 700,- (Boligkjøperpakke* (valgfritt)) -------------------------------------------------------- 99 570,- (Omkostninger totalt (uten Boligkjøperpakke)) 112 270,- (Omkostninger totalt (med Boligkjøperpakke)) -------------------------------------------------------- 4 029 376,- (Totalpris inkl. omkostninger (uten Boligkjøperpakke)) 4 042 076,- (Totalpris inkl. omkostninger (med Boligkjøperpakke)) -------------------------------------------------------- NB: Regnestykket forutsetter at det kun tinglyses ett pantedokument og at eiendommen selges til prisantydning. Dokumentavgiften er 2,5% av salgssummen, inkl. evt. fellesgjeld. Det tas forbehold om endringer i offentlige avgifter/gebyrer. Andel fellesgjeld / Andel formue overtas av kjøper.
Om boligen
Byggeår
1924
Etasje
3
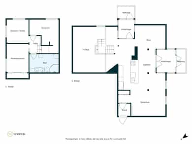
Arealer
BRA-i: 129 kvm
BRA-e: 4 kvm
Totalt BRA: 133 kvm
TBA: 7 kvm
Beskrivelse:
Kjeller:
BRA-e: 4 kvm. Kjeller: Bod
Totalt BRA: 4 kvm
3. etasje:
BRA-i: 45 kvm. 3. etasje: Gang, bad og 3 soverom.
Totalt BRA: 45 kvm
4. etasje:
BRA-i: 84 kvm. 4. etasje: Gang, stue og kjøkken.
Totalt BRA: 84 kvm
TBA: 7 kvm. Terrasser
Takstmannens kommentar til arealoppmåling:
Bruksareal = 129m2.
P- rom = 129m2.
Antall soverom
3
Innhold
3. etasje: Gang, bad og 3 soverom 4. etasje: Gang, stuer og kjøkken
Standard
3. etasje Gang Praktisk gang som binder etasjen sammen på en naturlig og god måte. Bad Lyst og innbydende bad fra 2008 med nyere dusjkabinett og stilfull baderomsinnredning med dobbel servant i stein. Her er det god plass til både vaskemaskin og tørketrommel. Rommet har fliser fra gulv til tak og en moderne VVS-bereder på 200 liter er montert. Soverom Etasjen byr på tre soverom. Hovedsoverommet er romslig og har garderobeløsning fra Amiga, mens de to andre passer perfekt som barnerom, gjesterom eller hjemmekontor – alt etter behov. 4. etasje Gang Velkommen opp til en hyggelig gang med garderobeløsning fra Amiga rett på innsiden av entreen – praktisk og elegant på samme tid. Kjøkken og stue Her finner du en åpen og luftig løsning mellom kjøkken og stue, som gir både romfølelse og gode muligheter for sosialt samvær. Det er rikelig med plass til spisebord, sofagruppe og TV-møbler. Det lekre Desinga-kjøkkenet fra 2021 er et skikkelig blikkfang, med en stor og funksjonell kjøkkenøy. Her kombineres slette fronter og trelameller med en elegant benkeplate, mens detaljer som messingfargede håndtak og blandebatteri setter prikken over i-en. Fra stuen er det utgang til hele to vinterhager, begge med balkong. Marokkanske fliser på gulvet gir en eksotisk og sjarmerende atmosfære – et perfekt sted å nyte både rolige morgener og lange sommerkvelder.
Parkering
Parkeringsplassen er sameiets private like utenfor bygget. Parkering skjer på oppmerkede plasser, og er ikke tillatt ved og langs innkjøringen. Parkering er kun tillatt av beboer og beboers gjester, og kan ikke leies/lånes ut eller benyttes til hensetning av kjøretøy. Selger eier garasjeplass med elbil lader i nabobygget som kan kjøpes for 200.000,-
Moderniseringer og påkostninger
Informasjon fra selger:
Leiligheten kjøpt av selger ultimo 2020, og følgende oppgraderinger har vært gjort fortløpende fra det tidspunktet og de siste i 2024:
-Nytt kjøkken fra Designa, Bora platetopp med midtstilt ventilasjon, De Dietrich stekeovn og mikrobølgeovn, stillegående oppvaskmaskin, fryseskap og kjøleskap av høy kvalitet. -Påkostede skuffefronter med trelameller
-Ny baderomsinnredning og dusjkabinett. Dobbel vaskeservan i stein.
-Nye balkongdører
-Nye balkonggulv/membran på begge balkonger, gulv i royal utførelse
-Nye takvinduer i spisestue
-Lagt historiske marokkanske fliser på gulv i begge balkongrom
-Slipt parkett og behandlet med 3-stjernes hvit olje
-Nye skyvedørs-garderober fra Amiga i inngangsparti og på hovedsoverom
Sammendrag selgers egenerklæringsskjema
Om eierskapet Når ble boligen overtatt av nåværende eier(e)? 30. oktober 2020 Selges eiendommen på vegne av noen andre? Nei Har du kjennskap til eiendommen? Ja Har du brukt eller vedlikeholdt boligen siste 12 måneder? Ja Er boligen forsikret med hus- eller annen bygningsforsikring? Ja Polisenummer: SP1996865.7.1 Forsikret i: If Utført arbeid 1. Vet du om det har det blitt utført arbeid på bad/våtrom, enten i din eller tidligere eiertid? Ja, faglært Firmaets navn og beskrivelse av arbeidet: Primo 2021, ny baderomsinnredning og dusjkabinett. Rørlegger Andersen. 1.1 Vet du om tettesjikt, membran eller sluk ble fornyet eller oppgradert? Nei Eventuell kommentar: Kun innredning fornyet. 2. Vet du om det er gjort endringer eller reparasjoner på tak, fasade, pipe/ildsted, terrasse, garasje, bod eller lignende, enten i din eller tidligere eiertid? Ja, faglært Firmaets navn og beskrivelse av arbeidet: Taket side syd-vest er renovert og bygget opp med nytt undertak og ny skifer i 2025. Byggpartnere sto for arbeidet. 3. Vet du om det er gjort arbeid med drenering, enten i din eller tidligere eiertid? Nei Eventuell kommentar: Sameiet var nytt i 2008. 4. Vet du om det er gjort arbeid på det elektriske anlegget, enten i din eller tidligere eiertid? Ja Foreligger det en samsvarserklæring? Ja Firmaets navn og beskrivelse av arbeidet: Kum småarbeider ifm renovering av leilighet i 2020/2021. Løpende småarbeider ellers i sameiet, blant annet ble varmekabler i takrenner skiftet i 2024. Sameiet bruker Elektroentreprenøren/Bravida til slikt arbeid. 4.1 Vet du om det elektriske anlegget har blitt kontrollert? Ja Når ble kontrollen utført? Mener det var i 2021/2022. 4.2 Er det installert el-billader på eiendommen/boligen? Nei Eventuell kommentar: Det er el-billader i nabosameiet kloss i, til benyttelse også for dette sameiet. I tillegg eier selger en garasjeplass i nabosameiet hvor det er privat billader 5. Vet du om det er gjort arbeid på vann og avløp, enten i din eller tidligere eiertid? Nei Eventuell kommentar: Sameiet ble etablert i 2008 6. Vet du om boligen eller eiendommen har blitt endret eller bygget ut etter opprinnelig byggeår, enten av deg eller tidligere eiere, herunder bruksendringer kjeller/loft etc.? Nei Eventuell kommentar: Sameiet var nytt i 2008, den gangen ble bygningen endret ifm etablering av leiligheter. Jeg har ingen direkte kjennskap til dette, da jeg kjøpte min keilighet i 2020 8. Vet du om det har vært utført kontroll av installasjoner for eksempel oljetank/ sentralfyr/ ventilasjon? Nei Eventuell kommentar: Styret planlegger kontroll av ventilasjonsanlegget høsten 2025. 9. Vet du om det er gjort arbeid på eiendommen som ikke er nevnt i de andre spørsmålene? Ja, faglært Firmaets navn og beskrivelse av arbeidet: Skiftet flere vinduer og balkongdører i leiligheten i 2022/2024. Skiftet en del vinduer ellers i bygget i 2024, samtidig med renovering av taket. Arbeidet utført av Byggpartnere. Feil og mangler 12. Vet du om det er eller har vært problemer med mur/pipe/ilsted, for eksempel dårlig trekk, sprekker, pålegg, fyringsforbud eller liknende? Nei Eventuell kommentar: Har ikke ildsted. 13. Vet du om det er eller har vært feil med dreneringen? Eller om det er eller har vært fukt, sopp eller råteskader i underetasjen, kjeller eller krypkjeller? (herunder også sameiet/borettslagets fellesarealer) Nei Eventuell kommentar: Ble etablert ventilssjonsanlegg i kjeller før jeg kjøpte leiligheten I 2020 16. Vet du om det er eller har vært sprekker i mur/skjeve gulv/setningsskader eller liknende? Ja Beskriv: Ut fra observasjon er det en eldre sprekk i skifer i gulv i fellesarealet i 4.etg. Den har ikke endret seg mens jeg har bodd her. Offentlige og private forhold 22. Vet du om det foreligger skaderapporter eller tilstandsvurderinger etc. om boligen? Nei Eventuell kommentar: Blir foretatt tilstandsvurdering i forbindelse med salg, september 2025. 23. Vet du om det er utført tidligere arealoppmålinger av boligen, eller om boligens areal er oppgitt i dokumenter som salgsoppgave, takstrapport, tilstandsrapport, byggesøknad eller lignende? Ja Hvilket dokument og når er målingen foretatt? Arealet oppmålt av takstmann Erik Sørensen i 2020 da jeg kjøpte leiligheten. Ref salgsoppgave. Også oppmåling i forbindelse med at sameiet ble etablert. Ref sameiebrøk. 25. Vet du om det er forslag eller vedtatte reguleringsplaner/andre planer, nabovarsler/ byggegodkjenninger / byggeplaner eller andre offentlige vedtak som kan medføre endinger i bruken av eiendommen eller eiendommens omgivelser/naboer? Ja Beskriv: Har mottatt nabovarsel ang mulig etablering av 6 boenheter nedenfor sameiet side vest, ned mot jernbane/Myrene. Evt adgang til boenhetene kan gå via sameiets eiendom/parkeringsplass, og sameiet har gitt en negativ uttalelse til det. Vet ikke om prosjektet blir realisert. 26. Vet du om det er påbud/ heftelser/ krav/ manglende tillatelser ved eiendommen? Nei Eventuell kommentar: Viser til forrige punkt 28. Vet du om sameiet/ borettslaget/ selskapet eller du selv er innblandet i uenigheter eller konflikter rundt eiendommen? Nei Eventuell kommentar: Viser til punkt 25, hvor sameiet har inngitt negativ uttalelse til adkomst til evt nye boenheter over vår parkeringsplass. 30. Vet du om det finnes planer, vedtak eller forslag til vedtak som kan øke husleien/ festeavgiften / fellesutgiftene/ fellesgjelden? Nei Eventuell kommentar: Kun løpende vedlikehold, ingen nåværende planer om økning av fellesutgifter. Sameiets økonomi er vurdert som meget god av sameiets forretningsfører ABBL, som heller ikke anbefaler økning i fellesutgifter.
Bygningssakkyndig
Erik Sørensen AS
Byggemåte
Det er i forbindelse med salget utarbeidet en tilstandsrapport fra bygningssakkyndig. Tilstandsrapporten er en teknisk gjennomgang av boligen med oppdagede avvik. Vedlagt salgsoppgaven følger tilstandsrapporten og selgers egenerklæring. Disse må leses nøye av interessenter før bud inngis. Opplysninger gitt i tilstandsrapporten anses å være kjent for kjøper, og det kan derfor ikke reklameres på forhold som fremkommer av tilstandsrapporten. Forhold som har fått TG2 og TG3 må gjennomgås spesielt nøye, da disse indikerer avvik fra normal slitasje og/eller høy alder, med mulig behov for utbedring. Bygningsdeler som har fått TGIU er ikke undersøkt av takstmann. Beskrivelsen av boligen som følger er hentet fra tilstandsrapporten: Bygningsdeler som har fått TG2: Vinduer og ytterdører Vurdering/Avvik Vinduene og ytterdører er i tre med isolerglass, har vanlig elde mht. alder. Terrassedører og takvinduer er fra 2022. Beslag mangler på terrassedør syd. Årsak / Konsekvens: Årsak: Manglende montering. Konsekvens: Kan renne vann inn under dør. Anbefalt tiltak: Montere manglende beslag. Bad 3. etasje, Membran, tettesjikt og sluk (i gulv eller vegger) Vurdering/Avvik Må forvente membran montert på alt av våtsoner. Årsak / Konsekvens: Årsak: Alder, halve brukstiden er nå passert. Konsekvens: Ingen umiddelbar konsekvens. Bygningsdeler som ikke er undersøkt (TGIU): Terrasser og plattinger på terreng Vurdering/Avvik Platting, heller, støpte dekker (på terreng og på spikerslag) som ligger inntil boligen Ingen tilgang til bjelkelag på terrasser. Skal være byttet membran på begge terrassene i 2022. Elektrisk anlegg Sikringsskap montert i gang 4. etasje på vegg syd. Hovedsikring 63 ampere, 11 kurser. Sjekkliste for det elektriske anlegget Spørsmål til eier eller eiers representant 1. Når ble det elektriske anlegget innstallert eller siste gang totalrehabilitert? 2008 4. Når ble det sist gjennomført vedlikehold på det elektriske anlegget (av en kvalifisert elektrofaglig person)? 2021 Kommentar: Div. innvendig. Ingen dokumentasjon fremlagt. 5. Foreligger det kontrollrapport fra offentlig myndighet, det lokale el-tilsyn (DLE) eller aventuelle andre tilsvarende kontrollinstanser? Ja, 2021 Kommentar: Ingen dokumentasjon fremlagt. 6. Forekommer det ofte at sikringene løses ut? Nei 7. Har det vært brann, branntilløp eller varmgang (for eksempel termiske skader på deksler, kontaktpunkter eller lignende) i boligens elektriske anlegg? (Sjekk samtidig tilstanden på støpsel og stikkontakt for varmtvannsbereder.) Nei Kommentar: VVS bereder er med stikkontakt. 8. Finnes det kursfortegnelse, og er det i samsvar med antall sikringer? Ja 9. Er det tegn til at det har vært termiske skader (tegn på varmgang) på kabler, brytere, downlights, stikkontakter og elektrisk utstyr? Er det synlig defekter på kabler, eller er disse ikke tilstrekkelig festet? Nei 10. Foreligger det dokumentasjon for varmekabler og innfelt belysning? Nei 11. Ved uisolerte ledninger/koblinger som man kan komme i berøring med.Er kabelinnføringer og hull utette? Nei 12. Foreta en vurdering basert på den visuelle kontrollen som er utført, anleggets alder, anleggets allmenne tilstand og fare for liv og helse. Bør det elektriske anlegget ha en utvidet el-kontroll? Dersom ja, noter det i rapporten. Ja Kommentar: Anbefaler en kontroll av EL. anlegget hvert 5 år. Vurdering/Avvik Det elektriske anlegget er ikke Tilstandsgrad-vurdert da undertegnede ikke innehar den faglige kompetansen for vurdering av dette i henhold FEK §9 (Forskrift om elektroforetak og kvalifikasjonskrav for arbeid knyttet til elektriske anlegg og elektrisk utstyr). Det er likevel foretatt en enkel vurdering av anlegget basert på selgers informasjon og besiktelse av synlige deler i boligen. Undersøkelsen er basert på spørsmål og punkter fra forskriften Tryggere Bolighandel som ble vedtatt 01.01.2022. Branntekniske forhold Sjekkliste for det branntekniske anlegget Boligen generelt 1. Er det røykvarsler (branndetektor) i boligen iht. forskriftskrav? Ja 2. Er det brannslokkingsutstyr i boligen iht. forskriftskrav? Ja 4. Er rømningsveier fra rom for varig opphold fra og med 2. etasje iht. forskriftskrav? Gjelder boenhet over flere plan. Ja Bolig med utgang fra og med 2. etasje 7. Er det utgang til to uavhengige trapperom eller rømningsvei iht. forskriftskrav? Bolig som ligger i 2. etasje kan ha tilrettelagt vindus- rømning iht. forskrift. Ja 8. Finnes dokumentasjon på brannsikkerhet for bygningen ? Nei
Innbo og løsøre
Alle hvitevarer følger med handelen.
Følgende løsøre og tilbehør følger ikke med:
- Liten hylle i hovedsoverom følger ikke med.
For øvrig gjelder NEF sin standardliste "Oversikt over løsøre og tilbehør" med mindre annet fremkommer av salgsoppgaven. Listen er vedlagt.
Dersom det er noe i overnevnte liste som ikke finnes på eiendommen, vil det heller ikke medfølge. Produkter og installasjoner som medfølger overdras uten noen form for garantier, utover eventuell gjenværende leverandørgaranti. Hull og merker etter feste av innredning og utstyr som ikke følger med, aksepteres av kjøper.
Adgang til utleie
Den enkelte seksjonseier har full rettslig rådighet over sin seksjon. Ved utleie må styret informeres skriftlig med opplysninger om hvem som er ny leietaker og deres kontaktopplysninger. Ved utleie er det utleier sitt ansvar av ordensreglers følges og er ansvarlig for å holde leietaker oppdatert.
Energi og oppvarming
Energimerking
G - rød
Se fullstendig energiattest fra selger som vedlegg til salgsoppgave. Megler har intet ansvar for informasjon som følger av energiattesten.
Oppvarming
Elektrisk.
Informasjon om strømforbruk
Selger opplyser å ha et årlig strømforbruk på ca. 6700 kWh. Energiforbruket vil variere fra husstand til husstand. Selger har ikke inngått avtale om Norgespris.
Økonomi
Felleskostnader
Kr. 7 522,- pr. mnd
Inkluderer: De totale felleskostnadene utgjør kr. 7.522,- pr mnd
Felleskostnadene er fordelt slik:
- Fellesutgifter: kr 4.821,-
- Rentekostnader andel fellesgjeld: kr 1.577,-
- Avdrag andel fellesgjeld: kr 550,-
Tilleggsytelser:
- Tv og internett fra Telia kr 549,-
- Tillegg for dugnad: kr 25,-
Fellesutgifter inkluderer: Lønnskostnader, revisjonshonorar, kontingent ABBL, forretningsførerhonorar ABBL, renovasjon, internett fra Telia, TV- pakke fra Telia, felles forsikring, vaktmestertjenester, vedlikehold av sameiets fellesområder og bygninger, driftskostnader, forsikring, trappevask og vindusvask i fellesområdet og snørydding.
Kommunale avgifter
Kr. 6 186,- pr. 2025
Kommunale avgifter inkluderer: Vann og avløp.
Det er installert vannmåler på eiendommen. Oppgitt beløp er et estimat basert på selgers forbruk foregående år. Forbruk vil variere fra husstand til husstand og endelig fakturert beløp kan derfor avvike. Fakturering skjer månedlig/kvartalsvis.
Eiendomsskatt
Kr. 7 938,- pr. 2025
Informasjon om eiendomsskatt er innhentet fra Arendal kommune.
Formuesverdi
Primærbolig: Kr. 833 827,- pr. 2023
Sekundærbolig: Kr. 3 335 309,- pr. 2023
Skatteetaten beregner en boligverdi (beregnet markedsverdi for bolig) basert på SSBs statistiske opplysninger om omsatte boliger. I beregningen tas det hensyn til din boligs beliggenhet, areal, byggeår og type bolig. Formuesverdien er en prosentandeldel av denne boligverdien.
For mer informasjon om formuesverdi, se Skatteetatens nettsider.
Sameiet
Om sameiet
Sameiet består av 26 eierseksjoner i eiendom gnr. 503 bnr. 525 i Arendal Kommune. Den enkelte sameier har eiendomsrett til en ideell andel av hele eiendommen, samt enerett til bruk av den bruksenhet vedkommende sameier har grunnbokshjemmel til. Til hver seksjon er det knyttet enerett til bruk av en bruksenhet som består av både en hoveddel og tilleggsdel (er). Tilleggsdelene består av arealer som i den tinglyste seksjoneringsbegjæringen er definert som tilleggsdeler til bruksenheten. Med tilleggsdeler menes etter dette veranda, terrasser og boder i bygningenes underetasje. Bruksenhetens hoveddel og tilleggsdel(er) utgjør til sammen brukenheten. De deler av eiendommen som ikke inngår i de enkelte bruksenheter, er fellesareal. Til fellesarealene hører således blant annet hele bygningskroppen med vegger, dekker og konstruksjoner (også for balkonger/terrasser) samt inngangsdører, vinduer, trapperom med heis, ganger, svaleganger, andre fellesrom og uteområder. Stamledningsnettet for vann og avløp fram til avgreinningspunktene til de enkelte bruksenhetene og elektrisitet fram til bruksenhetenes sikringsskap, er også fellesanlegg. Det samme er andre innretninger og installasjoner som skal tjene sameiernes fellesbehov . Den enkelte enhet skal brukes til boligformål. Bruksenhetene kan ikke anvendes til næringsformål. Med næringsformål menes ethvert formål som ikke er boligformål. Den enkelte sameier har enerett til bruk av sin bruksenhet, og rett til å utnytte fellesarealer til det de er beregnet eller vanligvis brukt til, og til annet som er i samsvar med tiden og forholdene. Seksjonseierne i bygg B har også rett til å benytte inngang/gjennomgang og felles oppholdsrom og wc i bygg A's underetasje. Adkomst til heisrom, teknisk rom og dertil hørende bod er kun tillatt for den/de som sameiet bemyndiger. Med de begrensninger som følger av disse vedtekter har seksjonseierne full rettslig rådighet over sine seksjoner. Seksjonseierne kan fritt pantsette, selge og leie ut sine seksjoner. Ethvert salg eller bortleie av seksjoner skal meldes skriftlig til styret eller sameiets forretningsfører med opplysning om hvem som er ny eier/leietaker. Sameierene har ikke forkjøps- eller innløsningsrett. Sameiet har ikke oppløsningsrett. Den øverste myndighet i sameiet utøves av sameiermøtet. Alle sameiere har rett til å delta i sameiermøte med forslags-, tale-, og stemmerett. En sameier kan møte ved fullmektig, og har også rett til å ta med en rådgiver til sameiermøtet. Ordinært sameiemøte av holdes hvert år innen utgangen av april. Styret skal på forhånd varsle sameierene om dato for møtet og frist for innlevering av saker som ønskes behandlet. Sameiermøtet innkalles skriftlig av styret med minst 8 og høyest 20 dagers varsel. Innkallingen skal angi tid og sted for møtet, samt bestemt angi de saker som skal behandles i sameiermøtet. Dersom et forslag som etter loven eller vedtektene må vedtas med minst to tredjedels flertall skal behandles, må hovedinnholdet være angitt i innkallingen. Med innkallingen også følge styrets beretning med revidert regnskap. Uten hensyn til om sakene er nevnt i innkallingen skal det ordinære sameiemøte behandle: 1. Styrets årsberetning 2. Styrets regnskap for 3. Valg av styre 4. Årlig vedlikeholdsprogram Årsberetning, regnskap og eventuell revisjonsberetning skal sendes ut til alle sameiere med kjent adresse en uke før ordinært sameiemøte. Dokumentene skal dessuten være tilgjengelig i sameiemøte. Ekstraordinært sameiemøte holdes når styret finner det nødvendig eller når to eller flere sameiere som til sammen har minst en tiendedel av stemmene framsetter skriftlig krav om det, og samtidig oppgir hvilke saker de ønsker behandlet. Styret innkaller skriftlig til ekstraordinært sameiemøte med minst 3 og høyst 20 dagers varsel. Innkallingen skal skje på samme måte som for ordinært sameiemøte, jf § 6. Styret skal ha 3-4 styremedlemmer og 1-2 varamedlemmer. Første gang det velges styre, skal styreleder samt 1 styremedlem og 1 varamedlem velges for to år, mens 2 styremedlemmer og 1 varamedlem velges for 1 år. Deretter velges alle styremedlemmer for 2 år om gangen. Styret skal ha en styreleder som velges særskilt av sameiemøtet. Styret bør bestå av medlemmer fra begge oppgangene. Styret skal sørge for vedlikehold og drift av eiendommen, og ellers sørge for forvaltningen av sameiets anliggender i samsvar med lov, vedtekter og vedtak i sameiemøtet. Styrer kan ansette forretningsfører og andre funksjonærer, gi instruks for dem, fastsette deres lønn, føre tilsyn med at de oppfyller sine plikter, samt si dem opp eller gi dem avskjed. Styret er vedtaksført når mer enn halvparten av alle styremedlemmer er tilstede. Vedtak treffes med alminnelig flertall. Ved stemmelikhet gjelder det som møtelederen har stemt for. De som stemmer for et vedtak, må likevel utgjøre mer enn en tredjedel av alle styremedlemmene. Styret skal føre protokoll over sine forhandlinger. Protokollen skal underskrives av de fremmøtte styremedlemmer. Fellesarealer skal holdes forsvarlig ved like. Det skal utarbeides forslag til årlig vedlikeholdsprogram for fellesarealer, som fremlegges på det ordinære sameiermøtet for godkjennelse. Styret kan gjennomføre pålegg gitt av offentlige myndigheter vedrørende eiendommen. For krav mot sameier som følger av sameierforholdet, herunder krav om dekning av felleskostnader, har de øvrige sameiere panterett i den aktuelle sameiers seksjon. Pantekravet kan ikke overstige et beløp som for hver bruksenhet svarer til folketrygdens grunnbeløp på tidspunktet da tvangsdekning besluttes gjennomført. Panteretten faller bort dersom det ikke senest to år etter at pantekravet skulle vært betalt, innkommer begjæring til namsmyndigheten om tvangsdekning, eller dersom salget av eiendommen gjennom namsmyndighetene ikke gjennomføres uten unødig opphold. Kommunikasjon mellom styret og eiere foregår i stor grad ved bruk av sms. I noen tilfeller gjøres det oppslag i ABBL sin eierportal, og leveres informasjon skriftlig i postkassene/henges på oppslagstavler i begge bygg. Ordinært årsmøte 05.05.2025: Rensing av ventilasjonsanlegg: Styret bekjent er ikke ventilasjonsanleggene i nr 17 og 19 blitt renset tidligere. Styret ønsker å engasjere vaktmester fra ABBL for å undersøke behovet for ventilasjonsrens. Dersom ventilasjonsrens er påkrevd, vil styret engasjere firmaet Utvendig Renhold til oppgaven. De vil da måtte komme inn i hver enkelt leilighet for å utføre arbeidet. Styret vil varsle alle eierne om når rengjøringen vil bli utført. Hvis eier/leieboer ikke kan være tilstede selv, vil vaktmester fra ABBL følge med rundt med universalnøkkel. Vedtak: Årsmøtet godkjenner at styret undersøker behovet for ventilasjonsrens. Seksjonseierne må uansett gi aksept til vaktmesteren/styret om de kan låse seg inn eller om en ønsker å være hjemme. Ekstra ombooking av tid medfører ekstra kostnader for sameiet. Enstemmig vedtatt. Styreleder informerer: Styreleder informerer om at alle i sameie har mottatt nabovarsel angående mulig etablering av 6 boenheter nedenfor sameiet side vest, ned mot jernbane/Myrene. Eventuell adgang til boenhetene kan gå via sameiets eiendom/parkeringsplass, og sameiet har gitt en negativ uttalelse til dette. Alt vedlikehold i sameiet er inkludert i fellesutgiftene. Vi har god økonomi i sameiet og kommer ikke til å øke fellesutgiftene ved neste korsveg.
Forretningsfører
Arendal Boligbyggelag
Forkjøpsrett
Sameierne har ikke forkjøps- eller innløsningsrett. Sameiet har ikke oppløsningsrett.
Styregodkjennelse
Sameiet praktiserer ikke styregodkjennelse. Ethvert salg eller bortleie av seksjoner skal meldes skriftlig til styret eller sameiets forretningsfører med opplysning om hvem som er ny eier/leietaker.
Informasjon om fellesgjeld
Andel fellesgjeld: Kr. 279 806,- pr. 12.09.2025
Avdrag: Kr. 550,-Rentekostnader: Kr. 1 577,-
61778185678, Nordea Bank Abp, filial i Norge
Annuitetslån, 4 terminer per år.
Rentesats per 07.05.2024: 6.75% pa.
Antall terminer til innfrielse: 66
Saldo per 07.05.2024: 3 068 223
Andel av saldo: 93 097
Første termin/første avdrag: 30.12.2020 ( siste termin 30.09.2040 )
Flytende rente
Fellesgjelden kan bli besluttet økt etter utarbeidelse av salgsoppgaven.
Fellesformue
Kr. 63 353,- pr. 31.12.2024
Regnskap/budsjett/Kostnadsøkninger
Boligselskapets budsjett og regnskap ligger vedlagt i salgsoppgaven. Styreleder informerer om at det ikke vil bli noen økning i fellesutgifter på sikt.
Vedtekter og husordensregler
Vedtekter og ordensregler er vedlagt.
Beboernes forpliktelser og dugnader
Se vedtekter.
Dyrehold
Hund, katt eller andre dyr må ikke holdes uten styrets samtykke.
Sameiets forsikring
If Skadeforsikring
Polisenr. SP0001996865
Tomt
Beskrivelse av tomt
Tomtestørrelse: 1 111,7 kvm (eiet)
Felles eiet tomt.
Adkomst
Det vil bli skiltet med visningsskilt fra Nordvik under annonserte visninger. Åpner du annonsen på hjem.no eller nordvikbolig.no, finnes kartskisse. Ved å trykke på kartet får du enkelt tilgang til reiserute fra din starts destinasjon til boligen. Velkommen til visning!
Radonmåling
Selger har ikke utført radonmåling. Det er ikke krav om dette med mindre boligen er helt eller delvis utleid.
Områdebeskrivelse
Offentlig kommunikasjon
Oddenveien, bussholdeplass - Linje 111 - ca. 4 minutter i gåavstand. Arendal stasjon - Linje F5, R50 - ca. 22 minutter i gåavstand. Kristiansand Kjevik - ca. 51 minutter i kjøreavstand.
Skoler og barnehager
Barnehager
Furukollen idrettsbarnehage (0-5 år) - ca. 3 minutter i gåavstand.
Springkleiv barnehage (1-5 år) - ca. 8 minutter i gåavstand.
Strømsbuåsen barnehage (0-5 år) - ca. 15 minutter i gåavstand.
Skoler
Stinta skole (1-10 kl.) - ca. 13 minutter i gåavstand.
Steinerskolen i Arendal (1-10 kl.) - ca. 19 minutter i gåavstand.
St. Franciskus skole (1-10 kl.) - ca. 21 minutter i gåavstand.
Moltemyr skole (1-10 kl.) - ca. 24 minutter i gåavstand.
Arendal vgs - Mølleheia - ca. 20 minutter i gåavstand.
Arendal videregående skole - ca. 21 minutter i gåavstand.
Sam Eyde videregående skole - ca. 8 minutter i kjøreavstand.
Offentlige forhold
Ferdigattest / brukstillatelse
Det foreligger ferdigattest for eiendommen datert 20.09.2010 ang. ombygging av boliger. Arendal kommune bekrefter at ferdigattesten også gjelder for Kirkegårdsveien 19, selv om det står Kirkegårdsveien 17 på attesten i dag. Ferdigattest utstedes av bygningsmyndighetene på grunnlag av mottatt dokumentasjon fra kontrollansvarlige når et søknadspliktig tiltak er utført i samsvar med tillatelsen og øvrige krav etter plan- og bygningslovgivningen. At ferdigattest eksisterer, gir ingen garanti for bygget er oppført i henhold til tillatelsen og gjeldende regelverk eller at det senere er utført arbeid på bygget som ikke er byggemeldt eller godkjent. Det foreligger ferdigmelding for felles vannmåler datert 21.08.2008. Fra takstrapporten: Byggeår fra ca. 1924, 2008 innredet leilighet og renovert 2021-2024. Ifølge tegninger fra kommunen er dagens romløsning forskjellig fra det som har vært byggesøkt. 3. etasje: Hovedsoverommet er utvidet ut i del av gangen og flukter i dag med badet, samt det er satt inn en skyvedør. Det er i dag kun ett vindu i hovedsoverommet, mot to på de originale tegningene. Soverommet vegg i vegg er i dag åpnet opp og har åpenløsning inn mot trappeområdet. På de bygemeldte tegningene er det ikke mulig å se det siste soverommets planløsning. 4. etasje: Det er i dag satt opp en delvegg med garderobeløsning i arealet til stue og kjøkken. Delveggen inn mot kjøkkenet er tatt bort og kjøkkenet er utvidet i arealet mot garderoben. Det er satt inn 2 vinduer i front av kjøkkenet. Endring fra hoveddel til hoveddel er ikke søknadspliktig. Endringer fra tilleggsdel til hoveddel er søknadspliktig. Ulovlige tiltak vil kommunen kunne forfølge og kreve omsøkt etter dagens regelverk. Kjøper overtar risiko og ansvar for eventuelle pålegg/søknader som følger av dette.
Vei, vann og avløp
Eiendommen er tilknyttet offentlig vann og avløp. Stikkledninger fra eiendommen og ut til kommunalt nett er private, vedlikeholdsansvaret påhviler sameiet. Adkomst via privat vei. Kostandene knyttet til denne er dekket via felleskostnadene og i dag samarbeides det med nabosameiet Kirkegårdsveien 15 mht brøyting. Eier av den private veien er i dag, Kuskjær AS.
Regulerings- og arealplaner
Arealplaner under arbeid - Planid: 09062017-13 - Plannavn: Kirkegårdsveien 3B Reguleringsplan og reguleringsbestemmelser for Furukollen - Planid: 1915r4 - Plannavn: Furukollen - Formål: 1112 - Boligbeb. - konsentrert småhusbebyggelse, Områder for boliger m/tilhørende anlegg. Kommuneplan - Planid: 42032022-8 - Plannavn: Kommuneplan Arendal (2023 - 2033). Selger har mottatt nabovarsel angående mulig etablering av 6 boenheter nedenfor sameiet side vest, ned mot jernbane/Myrene. Eventuelt adgang til boenhetene kan gå via sameiets eiendom/parkeringsplass.
Bo- og driveplikt
Det er ikke boplikt for eiendommen.
Konsesjon
Kjøp av eiendommen er ikke konsesjonspliktig. Dersom eiendommen er større enn 2 mål plikter kjøper å undertegne dokumenter i forbindelse med søknad om konsesjonsfrihet.
Tinglyste heftelser og forpliktelser
På eiendommen er det tinglyst følgende heftelser og rettigheter som følger eiendommens matrikkel ved overskjøting til ny hjemmelshaver: 4203/503/525/14: 03.11.2023 - Dokumentnr: 1229365 - Jordskifte Jordskiftesak 23-051188REN-JAGD/JARD Furukollen, gnr. 503 i Arendal Agder jordskifterett Gjelder denne registerenheten med flere Betyr: Jordskifteretten har avsatt en dom i en tvist mellom Sameiet Furukollen og Kuskjær AS. Se side 13 og 14 om domsslutningen i servitutt merket med nummer: 1229365. 03.11.2023 - Dokumentnr: 1229365 - Erklæring/avtale Vilkår for framføring av vei Jordskiftesak 23-051188REN-JAGD/JARD Furukollen, gnr. 503 i Arendal Gjelder denne registerenheten med flere Betyr: Jordskifteretten har avsatt en dom i en tvist mellom Sameiet Furukollen og Kuskjær AS. Se side 13 og 14 om domsslutningen i servitutt merket med nummer: 1229365. 23.09.2025 - Dokumentnr: 1128943 - Registerenheten kan ikke disponeres over uten samtykke fra rettighetshaver Rettighetshaver: Nordvik Oppgjør AS Org.nr: 814 449 912 Elektronisk innsendt 30.04.2008 - Dokumentnr: 347821 - Seksjonering Opprettet seksjoner: Snr: 14 Formål: Bolig Tilleggsdel: Bygning Sameiebrøk: 115/1549 Betyr: Begjæring om oppdeling i eierseksjoner. Se vedlagt servitutt for utfyllende informasjon. Gjelder 4203/503/526/15: 20.03.2015 - Dokumentnr: 255236 - Bestemmelse om parkering Rettighetshaver: Høge AS Org.nr: 993 275 867 Betyr: Gir Høge AS rett til vederlagsfri bruk av 5 parkeringsplasser på gnr. 503, bnr. 526. Se vedlagt servitutt for utfyllende informasjon. 26.10.2015 - Dokumentnr: 987035 - Seksjonering SNR: 15 Formål: Næring Sameierbrøk: 1/17 Betyr: Søknad om å dele opp et større bygg i flere enheter. Se vedlagt servitutt for utfyllende informasjon. Fra hovedbølet som eiendommen er fradelt fra, kan det være tinglyst heftelser i form av erklæringer/avtaler som ikke fremgår av grunnboken for denne eiendommen. Det gjøres oppmerksom på at grunnboken er endret, slik at det ikke lenger er mulig for kjøpers bank å forutsette 1. prioritets pant der hvor det er tinglyste heftelser, som ikke skal slettes for selgers regning. Eiendommen blir overdratt fri for rene pengeheftelser med mindre annet er oppgitt.
Legalpant
Kommunen har legalpant som sikkerhet for riktig betaling av kommunale avgifter og eventuell eiendomsskatt. De øvrige seksjonseierne i sameiet har legalpant på inntil 2G som sikkerhet for krav som følger av sameieforholdet, typisk vil dette gjelde felleskostnader. Legalpant er pant som ikke kommer frem av grunnboksutskriften, og har bedre prioritet enn for eksempel lån til bank som er tinglyst på seksjonen. Legalpant til kommunen har prioritet foran legalpant til sameiet.
Verneklasse/SEFRAK
Boligen er registrert i SEFRAK-registeret i følge matrikkelrapporten. Dette er et nasjonalt register over boliger fra før 1900 (1945 i Finnmark). Bygningene i SEFRAK-registeret er i utgangspunktet ikke pålagt spesielle restriksjoner. Registrering i registeret fungerer som et varsel om at kommunen bør ta en vurdering av verneverdien før det eventuelt blir gitt tillatelse til å endre, flytte eller rive bygningen. For meldepliktige bygninger (bygninger fra før 1850), er det lovfestet i §25 i Kulturminnelova at en vurdering av verneverdien må gjøres før søknad om endring eller riving kan bli godkjent. Kommunen kan gi tillatelse til rivning eller endring på tross av at kulturminnemyndighetene i fylkeskommunen kan uttale seg i mot dette.
Øvrige kjøpsforhold
Diverse
Det opplyses om at ingen kan eie mer enn to boligseksjoner i sameiet, jf. eierseksjonsloven § 23. Seksjoner som eies av nærstående eller via firma teller med. Etter lov om eierseksjoner § 31, er sameierne overfor sameiets kreditorer ansvarlige etter sin sameiebrøk. Ved manglende betaling av fellesutgifter har sameiet legalpanterett i den enkelte eierseksjon på inntil 2 ganger folketrygdens grunnbeløp. Kjøper og selger er forpliktet til å undertegne standard kjøpekontrakt utarbeidet av Nordvik i forbindelse med eiendomstransaksjonen. Kjøpekontrakt kan besiktiges hos eiendomsmegler før bud inngis. Kontakt eiendomsmegler for spørsmål. Selger leverer eiendommen i ryddig og rengjort stand. Selger opplyser at det medfølger bod i underetasjen, merket med leilighetsnummer (A0301). Den er høyere enn de fleste andre bodene med hyller i begge kortsider og hyller på den ene langsiden.
Overtagelse
Overtakelse skjer etter avtale med selger. Før boligen overleveres kjøper, skal fullt oppgjør og omkostninger være mottatt på meglers klientkonto.
Sentrale lover
Eiendommen selges etter reglene i avhendingsloven. Generelle bestemmelser: Alle innvendige og utvendige arealangivelser, samt beskrivelser av bygningen er hentet fra vedlagte tilstandsrapport/boligsalgsrapport. Salgsoppgaven er basert på de opplysningene selger har gitt til megler, den bygningssakkyndiges tilstandsrapport, samt opplysninger innhentet fra kommunen, Kartverket og andre tilgjengelige kilder. Det er viktig at kjøper setter seg grundig inn i alle salgsdokumentene, herunder salgsoppgave, tilstandsrapport og selgers egenerklæring. Kjøper anses kjent med forhold som er tydelig beskrevet i salgsdokumentene, og slike forhold kan ikke påberopes som mangler. Dette gjelder uavhengig av om kjøper har lest dokumentene. Det kan være avvik fra dagens rombruk/rombenevnelser sammenlignet med det som er byggemeldt/godkjent. Alle interessenter oppfordres til å undersøke eiendommen nøye, gjerne sammen med fagkyndig før bud inngis. Kjøper som velger å kjøpe usett kan ikke gjøre gjeldende som mangel noe han burde blitt kjent med ved undersøkelsen. Dersom det er behov for avklaringer, anbefaler vi at interessenter rådfører seg med eiendomsmegler eller egne rådgivere før det legges inn bud. En bolig som har blitt brukt i en viss tid, har vanligvis blitt utsatt for slitasje og skader kan ha oppstått. Slik bruksslitasje må kjøper regne med, og det kan avdekkes enkelte forhold etter overtakelse som nødvendiggjør utbedringer. Normal slitasje og skader som nødvendiggjør utbedring, er innenfor hva kjøper må forvente og vil ikke utgjøre en mangel. Kjøper og selgers rettigheter og plikter reguleres av avtalen mellom partene, samt informasjonen som har vært tilgjengelig for kjøperen i forbindelse med handelen. Avtalen utfylles av avhendingsloven, og det gjelder ulike avtalevilkår avhengig av om kjøper er forbrukerkjøper eller ikke. Dette er nærmere beskrevet nedenfor. På grunn av ulike avtalevilkår kan selger vurdere bud fra en som ikke er forbruker, ulikt fra en forbrukers bud. Dersom kjøper ikke er forbruker, er selger sitt mulige mangelsansvar begrenset fordi eiendommen selges "som den er". Selger kan ikke ta «som den er» forbehold ovenfor en forbrukerkjøper. Selv et lavere bud fra en som ikke er forbruker kan foretrekkes fordi begrensningen i mulig mangelsansvar kan ha egenverdi for selger. Selger står fritt til å forkaste eller akseptere ethvert bud, og er for eksempel ikke forpliktet til å akseptere høyeste bud. Budgiver skal i budskjema avgi egenerklæring om budgiver er forbruker eller næringsdrivende/ person som hovedsakelig handler som ledd i næringsvirksomhet. Budgivere får informasjon dersom andre bud er inngitt av en som ikke er forbruker. Forbrukerkjøp - definisjon: Med forbrukerkjøp menes kjøp av eiendom når kjøperen er en fysisk person som ikke hovedsakelig handler som ledd i næringsvirksomhet. Forbruker – avtalevilkår: Eiendommen har en mangel dersom den ikke er i samsvar med kravene som følger av avtalen, eller det foreligger brudd på bestemmelsene i avhendingsloven §§ 3-2 til 3-8. Hvis eiendommen ikke er i samsvar med det kjøperen må kunne forvente ut ifra alder, type og synlig tilstand, kan det være grunnlag for mangelskrav. Det samme gjelder hvis det er holdt tilbake eller gitt uriktige opplysninger om eiendommen. Dette gjelder likevel bare dersom man kan gå ut ifra at det virket inn på avtalen at opplysningen ikke ble gitt eller at feil uriktige opplysninger ikke blir rettet i tide på en tydelig måte. Boligen kan ha en mangel etter avhendingsloven § 3-3 dersom det er avvik mellom opplyst og faktisk innvendig areal, forutsatt at avviket er på 2% eller mer og minimum 1 kvm. Ved beregning av et eventuelt prisavslag eller erstatning må kjøper selv dekke tap/kostnader opptil et beløp på kr 10 000 (egenandel). Ikke-forbruker (næringsdrivende) – definisjon: Hvis kjøper er en juridisk person, eller en fysisk person som hovedsakelig handler som ledd i næringsvirksomhet, vil kjøpet ikke anses som et forbrukerkjøp. Ikke-forbruker – avtalevilkår: Eiendommen har en mangel dersom den ikke er i samsvar med kravene som følger av avtalen. Eiendommen selges «som den er», og selgers ansvar utover det konkret avtalte er da begrenset etter avhendingsloven § 3-9, første ledd andre setning. Avhendingsloven § 3-3 andre ledd fravikes, og hvorvidt boligens arealsvikt utgjør en mangel vurderes etter avhendingsloven § 3-8. Informasjon om kjøpers undersøkelsesplikt, herunder oppfordringen om å undersøke eiendommen nøye, gjelder også for kjøpere som ikke anses som forbrukere.
Boligselgerforsikring
Selger har tegnet boligselgerforsikring. Se selgers egenerklæringsskjema vedlagt salgsoppgaven.
Boligkjøperforsikring
I samarbeid med Storebrand og HELP tilbyr Nordvik Boligkjøperpakke til våre boligkjøpere. Boligkjøperpakken er et gunstig forsikringskonsept som inneholder alle de forsikringene du trenger til den nye boligen din. Boligkjøperpakke Leilighet inneholder: Boligkjøperforsikring fra HELP, flytteforsikring og innboforsikring Super. Boligkjøperforsikring er en rettshjelpsforsikring som gir trygghet og profesjonell juridisk hjelp dersom det oppdages uventede feil eller mangler ved boligen. Forsikringen gjelder i 5 år fra overtakelsen. Flytteforsikring dekker skade på eiendeler under flytting ved plutselig og uforutsett hendelse som oppstår under transport eller i forbindelse med bæring mellom bolig, bil eller lagringssted. Forsikringen varer i 1 år fra budaksept. Innboforsikring Super dekker tingene dine ved blant annet tyveri, brann eller vannskader. Vår beste innboforsikring Super inkluderer blant annet uflaksforsikring, bistand ved ID-tyveri og psykologhjelp ved alvorlige hendelser hjemme. Forsikringen gjelder i 3 måneder fra overtakelsesdatoen av ny bolig. Velger du Boligkjøperpakke Leilighet+ får du i tillegg renteforsikring: Renteforsikringen kan hjelpe deg med rentekostnaden og forsikringspremien på din primærbolig som skal selges, hvis salgsprosessen fører til at du må betale rentekostnader på to lån. Forsikringen gjelder i 9 måneder (3 måneder karenstid) og dekker inntil 15 000 kroner i måneden. Boligkjøperforsikring fra HELP kan også kjøpes separat og inkluderer da flytteforsikring fra Storebrand. Boligkjøperpakke/Boligkjøperforsikring må tegnes senest ved kontraktsignering og gjelder fra overtakelsen. Kjøper blir kontaktet av Storebrand med et tilbud på videre forsikring av innbo. Se pris og mer informasjon om forsikringene i produktarket vedlagt salgsoppgaven, eller ta kontakt med megler.
Betalingsbetingelser
Oppgjør skal betales i en samlet innbetaling fra norsk bank. Betaling fra utlandet tillates kun i unntakstilfeller og dersom det er avklart med megler i anledning avtaleinngåelse (budaksept).
Viktig informasjon om budgivning
Alle bud skal inngis skriftlig til megler, som formidler disse videre til selger. Kravet til skriftlighet gjelder også budforhøyelser og motbud, aksept eller avslag fra selger. Bud kan legges inn på eiendommens finn-annonse ved å trykke på knappen «gi bud» eller via vår hjemmeside. Bud kan legges inn på eiendommens annonse på hjem.no/finn.no ved å trykke på knappen «gi bud» eller via vår hjemmeside. Ved elektronisk budgivning legges bud inn ved å benytte BankID. Bud kan også inngis på budskjema vedlagt i salgsoppgaven. Før megler formidler bud til selger, skal megler innhente gyldig legitimasjon og signatur fra budgiver. Kravet til legitimasjon og signatur er oppfylt for budgivere som benytter e-signatur, eksempelvis BankID eller MinID. Senere bud kan inngis per e-post eller SMS til megler. Dersom budgiver skal by på eiendommen i henhold til kjøpsfullmakt må megler kontaktes i forkant av budgivning. Ved bruk av kjøpsfullmakt, må fullmakten oversendes til megler i forkant av budgivning. Kjøper kan ikke kreve at eiendommen tinglyses på andre enn kjøper. Om kjøper ønsker at noen andre skal stå som hjemmelshaver, må det tas forbehold om dette i budet. Selger kan velge å ikke akseptere dette. Et bud bør inneholde eiendommens adresse (eventuelt gnr/bnr), kjøpesum, budgivers kontaktinformasjon, finansieringsplan, akseptfrist, overtakelsesdato og eventuelle forbehold som for eksempel usikker finansiering, salg av nåværende bolig ol. Normalt vil ikke et bud med forbehold bli akseptert før forbeholdet er avklart. Konferer gjerne med megler før bud avgis. Et bud bør inneholde eiendommens adresse (eventuelt gnr/bnr), kjøpesum, budgivers kontaktinformasjon, finansieringsplan, akseptfrist, overtakelsesdato og eventuelle forbehold. Megler skal legge til rette for en forsvarlig avvikling av budrunden. I forbrukerforhold (dvs. der selger er forbruker) skal megleren ikke formidle bud med kortere akseptfrist enn kl. 12.00 første virkedag etter siste annonserte visning. Senere bud må ha en tilstrekkelig lang akseptfrist til at megler, så langt det er nødvendig og mulig, kan videreformidle budet og eventuelle forbehold til alle involverte parter og legge til rette for at disse får tid til å områ seg, jf. forskrift om eiendomsmegling § 6-3. Akseptfrist bør derfor være på minimum 30 minutter, og budforhøyelser bør skje senest 10 minutter før fristens utløp. Dersom bud inngis med en frist som åpenbart er for kort til at megleren kan avvikle budrunden på en forsvarlig måte, vil megler fraråde budgiver å stille slik frist. Megleren vil uoppfordret gi sin vurdering av det enkelte bud overfor selgeren, når budet er gitt innenfor akseptfristene ovenfor. Megler skal så snart som mulig bekrefte skriftlig overfor budgivere at budene deres er mottatt. Megler kan ikke formidle bud med forbehold om at budet eller forbehold i budet skal holdes skjult (hemmelig) for andre budgivere og interessenter. Etter at handel har kommet i stand, eller dersom en budrunde avsluttes uten at handel er kommet i stand, kan en budgiver kreve kopi av budjournalen i anonymisert form. Kopi av budjournal skal gis til kjøper og selger uten ugrunnet opphold etter at handel er kommet i stand. Dersom det er viktig for budgiver å bevare sin anonymitet, bør budet fremmes gjennom fullmektig. For mer informasjon om budgivningsprosessen, se «Forbrukerinformasjon om budgivning», som er vedlagt salgsoppgaven, eller ta kontakt med megler.
Tilbud på finansiering
Du kan søke om boliglån hos vår samarbeidspartner Storebrand, og få svar på dagen. Med boliglån i Storebrand kan du være trygg på at du til enhver tid har blant markedets mest konkurransedyktige renter. Du vil bli tatt godt vare på av et av Norges beste servicemiljøer innen bank. Som kunde i Storebrand Bank får du en fast kontaktperson å forholde deg til, som vil gi deg gode råd og god hjelp med kort svartid. Søk om boliglån i Storebrand og få • Enkel søknad - og etableringsprosess • Svar på dagen • Fast kontaktperson å forholde deg til • Trygghet for at du alltid har konkurransedyktige betingelser Ta kontakt på telefon 22 31 22 21 eller nordvik@storebrand.no. Les mer på storebrand.no/nordvik. Meglerforetaket kan motta provisjon ved formidling av finansielle tjenester.
Hvitvasking
Eiendomsmeglere er underlagt lov om hvitvasking og tilhørende forskrift. Etter hvitvaskingsloven er eiendomsmegler pålagt å gjennomføre kundetiltak av både selger og kjøper. Hvis kjøper ikke bidrar til at megler får gjennomført kundetiltak, og dette fører til at transaksjonen ikke kan gjennomføres eller blir forsinket, misligholder kjøper avtalen. Etter 30 dager anses misligholdet vesentlig, og selger har rett til å heve avtalen og gjennomføre dekningssalg for kjøpers regning. Dersom det er selger som ikke bidrar til at megler får gjennomført løpende kundetiltak underveis i oppdraget må eiendomsmegler stanse gjennomføringen av transaksjonen. Selger vil i et slikt tilfelle ha misligholdt sine forpliktelser, og kjøper vil kunne ha et krav mot selger etter avhendingsloven. Hvis kundetiltak ikke lar seg gjennomføre, vil Nordvik Eiendomsmegling ikke kunne bistå med handelen eller foreta oppgjør.
Personopplysningsloven
Personopplysninger vil bli behandlet i samsvar med personopplysningsloven. Ved å registrere deg som interessent og/eller budgiver eller kjøpe vil vi innhente, behandle og registrere personopplysninger om deg. Eiendomsmeglingsforetak har plikt til å oppbevare kontrakter og dokumenter i 10 år, jf. eiendomsmeglingsforskriften § 3-7 (3). Denne oppbevaringsplikten begrenser muligheten for å få slettet personopplysninger. Du kan lese mer om Nordviks behandling av personopplysninger i vår personvernerklæring på nordvikbolig.no/personvern.
Om oppdraget
Eiendomsmeglers vederlag
Vederlag: Provisjon: 1,20% av salgssum (min. kr. 45 000,-) – estimert til kr. 47 157,- Finn.no opprykk - 04.11.2025 kr. 4 900,- Grunnpakke Leilighet/tomt kr. 12 900,- Markedspakke inkl. trykket salgsoppgave kr. 23 900,- Oppgjørshonorar** kr. 7 990,- Salgsoppgave utvidet over100 sider kr. 750,- Tilrettelegging kr. 6 400,- Visningshonorar/overtagelseshonorar per stk. kr. 3 900,- Visningshonorar/overtagelseshonorar per stk. - max 2 betalte kr. 3 900,- Utlegg: Eierskiftegebyr kr. 6 570,- Infoland - Informasjon forretningsfører ca. kr. 4 575,- Utlegg foto - Interiør og fasade ca. kr. 3 500,- Utlegg tilstandsrapport - faktureres direkte - ordner med Sørensen etter avtale med kunde kr. 0,- Samlet skal selger betale kr. 126 442,- for vederlag og utlegg ved salg til prisantydning. Dersom oppdraget utløper eller blir sagt opp, uten at handel er kommet i stand, har megler krav på et rimelig vederlag for medgått tid/utført arbeid og avtalte utgifter (tilrettelegging, markedsføring og avholdte visninger) samt eventuelle utlegg. Ved beregningen av vederlaget skal det tas utgangspunkt i timeprisen som er kr. 3 625,-.
Vedlegg til salgsoppgaven
Vedleggene er en del av den komplette salgsoppgaven. Det er viktig at interessenter setter seg godt inn i vedleggene og kontakter megler med eventuelle spørsmål før bud inngis.
Ansvarlig megler
Kristoffer Eastwood, Daglig leder / Eiendomsmegler MNEF / Partner
485 02 050
k.eastwood@nordvikbolig.no
Meglerforetaket
Juridisk navn: Arendal Eiendomsmegling AS
Org. nr.: 932433192
Kirkegaten 5, 4836 ARENDAL
Samarbeidspartnere og foretak med tilknytning til Nordvik
Meglerforetaket og Nordvik-kjeden samarbeider med en rekke foretak som tilbyr produkter eller tjenester i forbindelse med megleroppdraget. - Storebrand leverer boligselgerforsikring, finansieringsløsninger og forsikringer til kjøper - Help forsikring leverer boligkjøperforsikring - Flytte- og lagringstjenester gjennom Loyalty, oppussing gjennom Steddy, brebånd levert av Telenor, alarm levert av Sector alarm, strøm levert av Fjordkraft og Fortum og utleietjenester levert av Utleiemegleren. Hvilke tilbud kjøper og selger får i forbindelse med oppdraget kan variere ut fra hvor i landet eiendommen ligger. Nordvik bolig AS, som er franchisegiver for Nordvik-kjeden, eier aksjer i Bomega AS (Hjem.no). Arendal Eiendomsmegling AS har indirekte eierskap i Bomega AS.
Trygg bolighandel med Nordvik
Forsikringer
Hos oss i Nordvik har vi for gode forsikringer til både deg som skal selge og deg som skal kjøpe.
Boligforsikring
Bilder






Ingen kjenner nabolaget bedre!
Hva sier innbyggerne om Arendal?
Nordvikundersøkelsen gjør deg litt bedre kjent med området boligen ligger i, og får frem fakta, funn og innsikt som vi tror kan være nyttig ved valg av ny bolig.
Hele undersøkelsen finner du her.
Trivsel
90%Vil bli boende i Arendal dersom de skulle flyttet.
Søndagsaktivitet
- Er ute, på tur, ski, trening (61%)
- Venner, familie, besøk, middag (12%)
- Slapper av, ser på TV, leser (29%)
- Jobber i hage/hus (15%)
Hva er innbyggene mest stolt av i nabolaget?
Vennlig og hjelpsomme naboer
62%Av alle innbyggene beskriver naboene sine som vennlige og hjelpsomme.
All data er hentet fra Nordvikundersøkelsen gjennomført våren 2025 i samarbeid med Norstat.
Kristoffer Eastwood
Daglig leder / Eiendomsmegler MNEF / Partner
Arendal
Selge bolig?
Slik hjelper jeg deg til
et godt salg
Er du klar til budrunde?







































