Dælenenggata 21Grünerløkka - Sofienberg

Solgt

Solgt

Alle bilder (39)

1/39

Utvalgte bilder

Grünerløkka - Sofienberg
Dælenenggata 21
Prisantydning
5 200 000,-
Felleskost/mnd
3 843,-
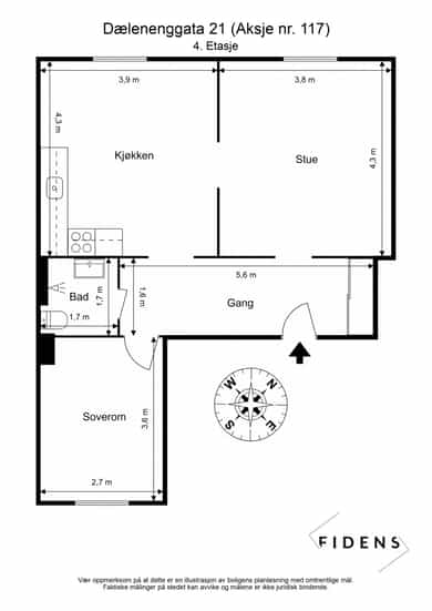
BRA-i
59 m2

Rodeløkka

Lys og attraktiv 2-roms toppleil med fine originaldetaljer. Gjennomgående. Stort spisekjøkken. Peis (2024). V.vann inkl.

Lys og attraktiv 2-roms leilighet med gode, store rom. Høyt og frittliggende med gjennomgående planløsning og rikelig med lys fra to kanter. Boligen oppleves velholdt med slipte tregulv, god takhøyde og dype vinduskarmer. God planløsning med sosialt og stort kjøkken med god plass til langbord, stue med peis og et lunt soverom vendt mot skjermet bakgård. Bad med varmekabler og romslig entré med skyvedørsgarderobe, samt plass til ytterligere oppbevaring. Legg merke til: - Stor 2-roms - Toppleilighet - Ny peis(2024) - Originale tregulv - Gjennomgående -lys fra to kanter - Romslig stue og stort spisekjøkken - Velordnet aksjelag -god vedlikeholdshistorikk - Varmtvann, internett og trappevask inkl. - Ingen forkjøpsrett/dok.avgift - Frodig, velstelt bakgård - Fellesvaskeri - IN-ordning - 2 boder

Nøkkelinformasjon

Boligtype:
Aksjeleilighet
Byggeår:
1931
Etasje:
4
Soverom:
1
Prisantydning:
5 200 000,-
Omkostninger:
14 193,-
Fellesgjeld:
87 382,-
Totalpris:
5 301 575,-
Felleskost/mnd:
3 843,-
Fellesformue:
7 054,-
Totalt BRA:
68 m2
Tomteareal:
220 m2 (eiet)
Energimerking:
G - rød

Har du finanseringsbevis på plass?

I samarbeid med

En personlig rådgiver fra vår samarbeidspartner Storebrand Bank vil hjelpe deg å gjøre deg klar til budrunden.


Trygg bolighandel med Nordvik

Forsikringer

Hos oss i Nordvik har vi for gode forsikringer til både deg som skal selge og deg som skal kjøpe.

Boligforsikring

Ingen kjenner nabolaget bedre!

Hva sier innbyggerne om Grünerløkka?

Nordvikundersøkelsen gjør deg litt bedre kjent med området boligen ligger i, og får frem fakta, funn og innsikt som vi tror kan være nyttig ved valg av ny bolig.

Hele undersøkelsen finner du her.

Trivsel

82%

Vil bli boende i bydelen dersom de skulle flyttet i dag.

Søndagsaktivitet

  • Er ute, på tur, ski, trening (53%)
  • Venner, familie, besøk, middag (26%)
  • Slapper av, ser på TV, leser (11%)
  • Jobber i hage/hus (5%)

Hva er innbyggene mest stolt av i nabolaget?

Vennlig og hjelpsomme naboer

69%

Av alle innbyggene beskriver naboene sine som vennlige og hjelpsomme.

All data er hentet fra Nordvikundersøkelsen gjennomført våren 2025 i samarbeid med Norstat.