Trondheimsveien 5DGrünerløkka - Sofienberg
- Grünerløkka - Sofienberg
- Trondheimsveien 5D
- Prisantydning
- 4 400 000,-
- Felleskost/mnd
- 4 386,-
- BRA-i
- 34 m2
Attraktivt og sentralt på Grünerløkka!
Lys og delikat 2-roms | Oppusset 2021 | Varmtvann inkl | Heis | Felles takterrasse | Veldrevet brl | Ingen dok.avgift
Lys og delikat 2-roms leilighet med attraktiv og sentral beliggenhet på Grünerløkka. Leiligheten ligger høyt og fint til i byggets 6. etasje med flott utsikt, store vindusflater og moderne standard fra 2021, som skaper en herlig atmosfære. Leiligheten fremstår som svært lys og luftig med en perfekt planløsning - Her vil du trives! -Perfekt førstegangskjøp -Særdeles smart utformet leilighet med maksimal utnyttelse av plassen -Felles takterrasse med panoramautsikt over byen -Store vindusflater som gir rikelig med naturlig lys -Pent flislagt bad med opplegg for vaskemaskin -Tv, internett og varmtvann inkl -Lekkert kjøkken fra 2021 -Takhøyde 2,6m -Romslig soverom -Ingen dok.avgift -Kjellerbod på ca 2kvm -Gode kollektivforbindelser, alt av fasiliteter, grøntområder og servicetilbud i nærheten
Nøkkelinformasjon
- Boligtype:
- Andelsleilighet
- Byggeår:
- 1941
- Etasje:
- 6
- Soverom:
- 1
- Prisantydning:
- 4 400 000,-
- Omkostninger:
- 1 350,-
- Fellesgjeld:
- 60 449,-
- Totalpris:
- 4 461 799,-
- Felleskost/mnd:
- 4 386,-
- Fellesformue:
- 28 860,-
- Totalt BRA:
- 36 m2
- Tomteareal:
- 2 779 m2 (eiet)
- Energimerking:
- G - rød
- Heis:
- Ja
Presenteres av
Har du finanseringsbevis på plass?
I samarbeid med
En personlig rådgiver fra vår samarbeidspartner Storebrand Bank vil hjelpe deg å gjøre deg klar til budrunden.

Nøkkelinformasjon
Oppdragsnummer
8-0409/25
Boligtype og eieform
Andelsleilighet (Andel)
Adresse og betegnelse
Trondheimsveien 5D, 0560 Oslo
Gnr. 230, bnr. 443 (ideell andel 1/1) i Oslo kommune.
Andelsnr. 74 i Trondheimsveien 5 Borettslaget, orgnr. 987609826
Kjøpesum og omkostninger
4 400 000,- (Prisantydning) 60 449,- (Andel av fellesgjeld) -------------------------------------------------------- 4 460 449,- (Pris inkl. fellesgjeld) Omkostninger: 260,- (Pantattest kjøper) 545,- (Tinglyst hjemmelsoverføring) 545,- (Tinglyst pantedokument) 9 300,- (Boligkjøperpakke* (valgfritt)) -------------------------------------------------------- 1 350,- (Omkostninger totalt (uten Boligkjøperpakke)) 10 650,- (Omkostninger totalt (med Boligkjøperpakke)) -------------------------------------------------------- 4 461 799,- (Totalpris inkl. omkostninger (uten Boligkjøperpakke)) 4 471 099,- (Totalpris inkl. omkostninger (med Boligkjøperpakke)) -------------------------------------------------------- NB: Regnestykket forutsetter at det kun tinglyses et pantedokument og at eiendommen selges til prisantydning. Det tas forbehold om endringer i offentlige avgifter/gebyrer. Andel fellesgjeld / Andel formue overtas av kjøper.
Om boligen
Byggeår
1941
Etasje
6
Arealer
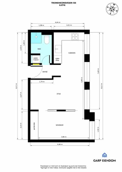
BRA-i: 34 kvm
BRA-e: 2 kvm
Totalt BRA: 36 kvm
Beskrivelse:
Underetasje:
BRA-e: 2 kvm. Kjellerbod
Totalt BRA: 2 kvm
6. etasje:
BRA-i: 34 kvm. Entrè, stue, kjøkken, soverom og bad.
Totalt BRA: 34 kvm
Antall soverom
1
Innhold
Leiligheten består av: Entre, stue, soverom, kjøkken og bad. I tillegg disponerer leiligheten en kjellerbod på ca. 2kvm og felles takterrasse for borettslaget.
Standard
Diverse fra tilstandsrapporten: Parkering: Gateparkering. Interne boder: Ingen innvendige boder. Eksterne boder: Kjellerbod på 2 kvm. Takhøyde: Takhøyden er målt til 259 cm i stuen. Vinduer: 2-lags isolerglassvinduer i trekarmer fra 2005. Kjøkken: Laminat på gulv og malt overflate på vegger. Malt overflate i himling. Gulvvarme. Innredning med kullfiltervifte over stekesonen og opplegg for oppvaskmaskin. Det er integrert stekovn, platetopp, oppvaskmaskin og kjøl/fryseskap. Soverom: Laminat på gulv og malt overflate på vegger. Malt overflate i himling. Gulvvarme. Garderobeskap. Bad: Flis på gulv og flis på vegger. Downlights og malt overflate i himling. Gulvvarme. Utstyrt med opplegg for vaskemaskin, servant, servantskap dusjhjørne, innfellbare dusjdører, wc og stoppekran. Stue: Laminat på gulv og malt overflate på vegger. Malt overflate i himling. Gulvvarme. Entre: Laminat på gulv og malt overflate på vegger. Malt overflate i himling. Gulvvarme. Porttelefon og sikringsskap. Følgende punkter har fått tilstandsgrad 2 i tilstandsrapporten: -Vinduer og dører: TG 2 er satt med bakgrunn i alder. -Kjøkken - Overflater og innredning: TG2 settes pga manglende lekkasjesikring under kjøkkenbenken. -Kjøkken - Avtrekk: TG2 settes pga kullfiltervifte. -Vannledninger: TG 2 er satt med bakgrunn i alder. -Elektrisk: TG2 settes ettersom det mangler samsvarserklæring (dokumentasjon) på det elektriske anlegget. -Våtrom - Overflater: (TG2) SPREKKER/BOM I FLIS: En flis i dusjsonen er registrert med bomlyd. En flis ved gulv i hjørnet ved vaskemaskin/håndvask er registrert med sprekk. -Våtrom - Membran, tettesjikt og sluk: TG 2 er satt med bakgrunn i alder på tettesjikt og derav økt risiko for lekkasjer. -Våtrom - Ventilasjon: TG2 settes pga naturlig avtrekk. Bygningsdeler som ikke er undersøkt (TGIU): Varmtvannsbereder: Det er felles varmtvann i bygget Tilstandsrapport for boligen er vedlagt salgsoppgaven. Se denne for nærmere informasjon om tilstandsgrad.
Parkering
Det er beboerparkering i området. Ved anskaffelse av beboerparkering kan man parkere døgnet rundt – også utover det som er maksimal parkeringstid - på parkeringsplasser regulert til beboerparkering. Priser for beboerparkering i bydel Frogner, St. Hanshaugen, Gamle Oslo, Grünerløkka og Sagene, parkeringssone A, B, C, D og E: Bensinbil, dieselbil, hybridbil, ladbar hybridbil: 6.200 kroner for ett år Motorsykkel og moped: 3.100 kroner for ett år El-bil : 2.090 kroner for ett år El-motorsykkel og el-moped: 1.045 kroner for ett år Det tas forbehold om prisendringer. For mer informasjon se: https://www.oslo.kommune.no/gate-transport-og-parkering/parkering/beboerparkering/.
Sammendrag selgers egenerklæringsskjema
4. Vet du om det er gjort arbeid på det elektriske anlegget, enten i din eller tidligere eiertid? Ja Foreligger det en samsvarserklæring? Nei Beskriv arbeidet og hvorfor det ikke foreligger samsvarserklæring: Byttet stikkkontakter og brytere til varmekabler, og noe rundt bytte av kjøkken. 30. Vet du om det finnes planer, vedtak eller forslag til vedtak som kan øke husleien/festeavgiften /fellesutgiftene/fellesgjelden? Ja Beskriv: Fellesutgiftene har økt noe, grunnet vedlikehold av fasade.
Bygningssakkyndig
Erik Bjerved Iversen
Byggemåte
Leilighet er oppført i én etasje. Grunnmur er oppført i støpt betong. Veggkonstruksjon er oppført i betong, og er utvendig pusset og er forblendet med teglstein. Taket er et saltak og er tekket med betongstein. Etasjeskille er et betongdekke. Vinduer med 2-lags isolerglass fra 2005.
Innbo og løsøre
Følgende løsøre og tilbehør følger med: -Integrerte hvitevarer kjøkken. Følgende løsøre og tilbehør følger ikke med: - Vaskemaskin - Tørketrommel - Alle lamper For øvrig gjelder NEF sin standardliste "Oversikt over løsøre og tilbehør" med mindre annet fremkommer av salgsoppgaven. Listen er vedlagt. Dersom det er noe i overnevnte liste som ikke finnes på eiendommen, vil det heller ikke medfølge. Produkter og installasjoner som medfølger overdras uten noen form for garantier, utover eventuell gjenværende leverandørgaranti. Hull og merker etter feste av innredning og utstyr som ikke følger med, aksepteres av kjøper.
Adgang til utleie
Det er begrenset adgang til å leie ut bolig i borettslag. Med styrets godkjenning og på visse vilkår kan boligen leies ut for inntil 3, år. jf. borettslagsloven § 5-3 til § 5-10. Andelseier som bor i boligen selv, kan leie ut deler av boligen til andre uten godkjenning, jf. borettslagsloven § 5-4. Kortidsutleie er tillatt i opptil 30 døgn i året, uten samtykke fra styret.
Energi og oppvarming
Energimerking
G - rød
Se fullstendig energiattest fra selger som vedlegg til salgsoppgave. Megler har intet ansvar for informasjon som følger av energiattesten.
Oppvarming
Elektrisk oppvarming. Varmtvann er inkludert i felleskostnadene.
Informasjon om strømforbruk
Selger opplyser å ha en årlig strømkostand på ca. kr. 13 000,-. Energiforbruket vil variere fra husstand til husstand. Sikringsskapet er plassert i entré. Digital strømmåler og hovedsikringen er plassert i fellesareal.
Økonomi
Felleskostnader
Kr. 4 386,- pr. mnd
Inkluderer: Kommunale avgifter, kapitalkostnader lån, bredbånd/kabel-tv, renhold, vaktmester m.m.
Felleskostnader: 3 399
Avdrag felleslån: 249
Renter felleslån: 267
Kollektiv bredbånd og TV signaler: 471
Formuesverdi
Primærbolig: Kr. 876 894,- pr. 2023
Sekundærbolig: Kr. 3 507 574,- pr. 2023
Skatteetaten beregner en boligverdi (beregnet markedsverdi for bolig) basert på SSBs statistiske opplysninger om omsatte boliger. I beregningen tas det hensyn til din boligs beliggenhet, areal, byggeår og type bolig. Formuesverdien er en prosentandeldel av denne boligverdien.
For mer informasjon om formuesverdi, se Skatteetatens nettsider.
Borettslaget
Om borettslaget
Borettslagets navn er Borettslaget Trondheimsveien 5 med organisasjonsnummer 987 609 826 og utgjør en seksjon av Sameiet Trondheimsveien 5 A-E. Videre består borettslaget av 108 andeler. Det skal være knyttet en andel til hver bolig. Hver andelseier kan bare eie en andel, og kun fysiske personer kan være andelseiere. Flere personer kan eie en andel sammen. Forretningsførsel utføres av Usbl i henhold til kontrakt. Diverse: - Borettslaget drifter en egen hjemmeside med relevant informasjon: www.trondheimsveien5.no. - Borettslaget har systemnøkler/brikker til fellesdørene i bygget. - Borettslaget har avtale om ukentlig vask av byggets fellesareal med Trappe Trinn Vask. - Vaktmester er i bygget to dager i uken, og har som hovedoppgave å holde utearealene ryddige og rene, samt enkelt vedlikehold av fellesarealer. - Borettslaget har felles takterrasse i 9. etasje. Styret har blant annet jobbet med følgende styresaker i år: - Gjennomført årlig HMS-kontroll og service. - Hatt dialog og samarbeid med Sameiet, samt holdt i dialog og arbeid knyttet til bakgården. - Hatt 5 styremøter fordelt utover året. Styremedlemmene jobber selvstendig mellom møtene, og møtene brukes for å oppsummere saker vi arbeider med, diskutere, og eventuelt fatte vedtak når det er behov for dette. - Byttet vaktmesterfirma fra Ren Service til Bo-service (Usbl) f.o.m. 01.02.2023. - Reforhandlet og forlenget kundeavtalen med Telia f.o.m. 01.12.2023. - Byttet porttelefon til Defigo, som styret er veldig fornøyde med. Nedmontering av de gamle ringeklokkene tas tak i i løpet av 2024. - Montert nøkkelbrikke-lesere på fellesdører i kjeller. - Hatt befaring av vinduer i tre leiligheter, og fulgt opp arbeid her. - Byttet dørene til brannbalkongene i 6., 7., og 8. etasje grunnet råte. - Meldt inn skadesaker til forsikringsselskapet og fulgt opp arbeid knyttet til disse. - Fulgt opp en feil i matrikkelen og kartverket, og fått rettet opp dette hos Plan- og bygningsetaten. - Behandlet innkommende forespørsler, bruksoverlatingssøknader og klager fra beboere i borettslaget, og ellers formidlet viktig informasjon til våre beboere. - Gjennomført styretimen den første torsdagen hver måned med noen unntak (ferier, sykdom). - Byttet styreportal fra styret.com til usbl.no f.o.m. 01.01.2024, og fulgt opp arbeid tilknyttet dette byttet. - Kjøpt inn nye møbler til Solterrassen og hatt dugnad for å montere disse. - Hatt dugnad for å pynte byggets fasade til jul, samt rydde ned igjen. - Hatt dugnad på Solterrassen for å klargjøre for vår- og vintersesong.
Forretningsfører
Boligbyggelaget Usbl
Forkjøpsrett
Det er ikke forkjøpsrett i borettslaget.
Styregodkjennelse
Overdragelsen av borettslagsandelen til ny andelseier må godkjennes av styret. Eiendomsmegler bistår med innsending av styregodkjennelse, men det er kjøper som bærer risikoen for at overdragelsen godkjennes. Godkjenning kan kun nektes dersom det foreligger saklig grunn. Eventuelle merkostnader som pådras i forbindelse med styregodkjennelsen er kjøpers ansvar. Ta kontakt med eiendomsmegler for mer informasjon.
Informasjon om fellesgjeld
Andel fellesgjeld: Kr. 60 449,- pr. 28.07.2025
Lånenummer: 83987127204, Handelsbanken
Annuitetslån, 4 terminer per år.
Rentesats per 28.07.2025: 5.4% pa.
Antall terminer til innfrielse: 82
Saldo per 28.07.2025: 51 713 245
Andel av saldo: 0
Første termin/første avdrag: 30.12.2016 ( siste termin 30.12.2045 )
Opprinnelig innfrielse lån (IN): 878 030
Nedkvittert saldo innfrielse per d.d. (IN): 872 568
IN-ordning: Det er anledning til å nedbetale på lånet den 15. mars og 15. september, forutsatt flytende rente. Usbl må kontaktes senest to uker før nedbetaling. Dette lånet er allerede nedbetalt av nåværende eier.
Lånenummer: 15160734008, DNB Bank ASA
Annuitetslån, 4 terminer per år.
Rentesats per 28.07.2025: 5.3% pa
Antall terminer til innfrielse: 60
Saldo per 28.07.2025: 7 690 000
Andel av saldo: 60 449
Neste termin/avdrag: 30.09.2025 ( siste termin 30.06.2040 )
Dette lånet har ikke IN-ordning.
Boligselskap er tilknyttet sikringsordning. Borettslaget er, etter gjeldende bestemmelser fastsatt av finansieringsselskapet, sikret mot tap som følge av at en andelseier unnlater å betale sine felleskostnader. Avtalen om sikring er gyldig til avtalen sies opp av en av partene. Oppsigelsesfrist er 1. desember med gyldighet fra førstkommende årsskifte.
Fellesformue
Kr. 28 860,- pr. 31.12.2024
Regnskap/budsjett/Kostnadsøkninger
Fjorårets regnskap viser et overskudd på kr. 3 368 768,- Budsjettet for inneværende år legger til grunn et overskudd/underskudd på kr. 1 764 178,-
Vedtekter og husordensregler
Borettslagets vedtekter og husordensregler ligger vedlagt i salgsoppgaven.
Beboernes forpliktelser og dugnader
Styret opplyser om at beboerne har et samarbeid om søppelrom og løpende vedlikehold der eier og andre sameiere har tilknytning.
Dyrehold
Det er tillatt å holde husdyr som hund og katt i leilighetene. Forutsetningen er imidlertid at dyrene skjøttes på en forsvarlig måte, slik at dyrene ikke er til sjenanse for øvrige beboerne. Ved klager avgjør styret om husdyrholdet må opphøre. Husdyrene må ikke etterlates alene i leilighetene, dersom det kan medføre sjenanse for andre. For nærmere bestemmelser om dyrehold se borettslagets husordensregler pkt. 7.1.
Borettslagets forsikringsselskap
If Skadeforsikring NUF
Polisenr. SP3733423
Tomt
Beskrivelse av tomt
Tomtestørrelse: 2 779 kvm (eiet)
Områdebeskrivelse
Beskrivelse av nærområdet
Grünerløkka har de siste årene etablert seg til å bli en av de mest populære bydelene i Oslo, og er stadig i utvikling. Her finner du flere hyggelige parkområder, populære restauranter og kafeer. Olaf Ryes plass er kjent for sine markedsdager med sitt yrende folkeliv. Dette er dager man må få med seg som beboer av Grünerløkka! Da finner du et hav av matboder, tilbud fra Grünerløkkas lokalbutikker og tivoli for de minste. Ikke minst har man også handlegaten i Markveien med en rekke servicetilbud. Her kan du blant annet stikke innom Chillout å spise den berømte chili-sjokoladebollen, mens du ser på turutstyr. Birkelunden og Sofienbergparken er et yndet sted gjerne med en god bok eller sammen med gode venner. Birkelunden er særlig kjent for sitt eget "Birkelunden bruktmarked" som finner sted hver søndag. Birkelunden har for øvrig egen gjenbruksstasjon. Sofienbergparken finner du i umiddelbar nærhet fra leiligheten. Dette er parken som passer for alle aldere! Parken tilbyr fasiliteter som bordtennisbord, egen lekeplass med drikkevannspunkt, fontene ved Sofienberggata/Toftes gate, bysykkelstasjon ved Sofienberggata/Toftes gate og Grillautomater som koster 1kr per minutt. Grilling i 30 minutter tilsvarer prisen av en engangsgrill. Det er også her satt opp minigjenbruksstasjon for levering av mindre mengder avfall. Legg gjerne også turen over Akerselva til Vulkan, der tidligere industriområder er forvandlet til et spennende mekka for mat, kreativitet og kulturelle opplevelser. Her ligger Mathallen, et mye omtalt konsept som er unikt her til lands der spennende råvarer selges over disk på gammelmåten. Her finner du også BAR Vulkan, Dögnvill Bar & Burger, Danses hus, samt Hendrix Ibsen som alle inviterer til sosiale hyggestunder. Magiske Botanisk hage er kanskje Oslos flotteste park og ligger kun en kort spasertur unna. Botanisk hage omfatter over 5,500 planteslag fra hele verden og formidler mangfoldet i planteriket. Her er det også en utrolig koselig café, hvor man kan nyte en herlig kopp kaffe mens man tar inn alle inntrykkene parken byr på. Parken er som en grønn lunge i Oslo by og er like i nærheten! Av rekreasjonsområder i området kan du velge mellom Botanisk hage, Munchmuseet, Ola Narr, Torshovdalen eller Sofienbergparken. Populære Øyafestivalen avholdes i Tøyenparken hver sommer, dette er kun kort spasertur unna leiligheten. For den treningsglade er det flere flotte turstier i området. Du kan bl.a. knytte på deg joggeskoene hjemme og jogge i ca. 10 minutter så er du på de flotte stiene langs Akerselven. Denne fører deg opp til hyggelige badeplasser eller ned til sentrum. Dersom du ønsker å trene innendørs er det flere treningssentre som står klare for å ta deg i mot; Sats, Bare Trening og Fresh Fitness er innen gangavstand fra leiligheten. Ved Tøyenbadet finner du også treningssenteret Actic.
Offentlige forhold
Ferdigattest / brukstillatelse
Det foreligger brukstillatelse for bruksendring fra kontor til bolig datert 29.06.2005. Midlertidig brukstillatelse dokumenterer at boligen lovlig kan brukes, men at det gjenstår arbeider før ferdigattest kan utstedes. Det gjøres oppmerksom på at det ikke utstedes ferdigattest for ikke-avsluttede byggesaker/ byggemeldinger som er fra før 1998. Kjøper påtar seg risikoen for fremtidig fortsatt bruk, og eventuelle pålegg fra det offentlige. Andre søknader/godkjenninger i borettslaget: Trondheimsveien 5A-E - Bruksendring kontor til bolig - Sluttnotat (henlagt uten ferdigattest) - 2014 Trondheimsveien 5C-E - Rehab - Ferdigattest - 1992 Trondheimsveien 5A - Ombygging og bruksendring fra kontor til forretning - Brukstillatelse - 2004 Trondheimsveien 5A-B - Portnerbolig - Exdok (uattestert) - 1933 rondheimsveien 5A-E - Bruksendring kontor til bolig - Brukstillatelse (7-8 etg mm) - 2005 Trondheimsveien 5A-E - Ombygging til boliger - Adressevedtak - 2004 Trondheimsveien 5A-E - Tilbygg - Exdok (attestert) - 1901 Trondheimsveien 5C-E - Kontorbygning - Exdok (uattestert) - 1952 Trondheimsveien 5E (reg A) - Innr bolig i tårn - Brukstillatelse (9-10 etg) - 2008 Trondheimsveien 5A - Ombygging og bruksendring fra kontor til forretning - Sluttnotat (henleggelse) - 2014 Trondheimsveien 5A-E - Bruksendring kontor til bolig - Brukstillatelse (3-4 etg mm) - 2005 Trondheimsveien 5E - Bruksendring av forretningsareal til butikk med frisørsalong - Ferdigattest - 2016 Trondheimsveien 5E - Innr bolig i tårn - Sluttnotat (henlagt uten ferdigattest) - 2014 Trondheimsveien 5A-E - Bruksendring kontor til bolig - Brukstillatelse (2 etg og 2-3 etg i bankbygget) - 2005 Trondheimsveien 5A-E - Bruksendring kontor til bolig - Brukstillatelse (5-6 etg mm) - 2005 Trondheimsveien 5A-E - Bruksendring kontor til bolig - Brukstillatelse (næringslokale) - 2005
Vei, vann og avløp
Eiendommen er tilknyttet offentlig vann og avløp. Stikkledninger fra eiendommen og ut til kommunalt nett er private, vedlikeholdsansvaret påhviler sameieteierborettslagetboligaksjeselskapet. Adkomst via offentlig vei.
Regulerings- og arealplaner
Eiendommen er regulert til spesialområde bevaring (bevertning, bolig/forretning./kontor). For mer informasjon om reguleringsforhold kontakt megler eller søk på saksnummer/adresse/gnr. bnr på plan- og bygningsetatens hjemmeside. Eiendommen står oppført på Byantikvarens gule liste. Offentlige byggesaker: Trondheimsveien 2 - Utskifting av vinduer - Bygg N Saksnummer 202318200 - Byggesak Mottatt sak 13.12.2023 Status Tillatelse gitt Søknaden gjelder utskifting av vinduer i Trondheimsveien 2, Bygg N, i bydel Grünerløkka. Vinduene er ikke originale. Berørte vinduer er vist på godkjente fasadetegninger. Trondheimsveien 2 - Utskifting av vinduer Saksnummer 202551287 - Byggesak Mottatt sak 13.02.2025 Status Tillatelse gitt Søknaden gjelder utskifting av vinduer i 2. etasje mot Trondheimsveien 2, i bydel Grünerløkka. Eksisterende vinduer er fra perioden mellom 1980 til 1990-tallet og ikke originale. Trondheimsveien 2 - Bruksendring fra bryggeri til restaurant og fasadeendring Saksnummer 202554295 - Byggesak Mottatt sak 15.05.2025 Status Rammetillatelse gitt Tiltaket omhandler bruksendring av eksisterende bygning i Felt O i reguleringsplanen (Humlesilen), samt del av eksisterende bygning i Felt G, og fasadeendringer. Det finnes ikke opprinnelige tegninger av bygningen i Felt O som antas å være oppført i 1873, men driftes i dag som bryggeri. Det søkes nå om bruksendring av bygningens første etasje til pizzarestaurant. Publikumstoaletter, personalrom og lager for restauranten etableres i byggets andre etasje. Det søkes også om enkelte innvendige endringer og fasadeendringer. Trondheimsveien 2 - Oppgradering, ombygging og fasadeendringer - Bygg M Saksnummer 202555555 - Byggesak Mottatt sak 19.06.2025 Status Venter på tilleggsdokumentasjon Tiltakshaver ønsker en oppgradering og ombygging av eksisterende bygg i Trondheimsveien 2 – bygg M for å løfte helhetsinntrykket på eiendommen og tilrettelegge bygningen for fremtidige leietakere. Tiltaket vil også medføre enkelte fasadeendringer.
Konsesjon
Kjøp av eiendommen er ikke konsesjonspliktig. Det hviler ikke odel på eiendommen. Dersom eiendommen er større enn 2 mål plikter kjøper å undertegne dokumenter i forbindelse med søknad om konsesjonsfrihet.
Tinglyste heftelser og forpliktelser
På eiendommen er det tinglyst følgende heftelser og rettigheter som følger eiendommens matrikkel ved overskjøting til ny hjemmelshaver: 301/230/443: 21.10.2005 - Dokumentnr: 70758 - Registrering av grunn Denne matrikkelenhet opprettet fra: Knr:0301 Gnr:230 Bnr:433 04.11.2005 - Dokumentnr: 74676 - Seksjonering Opprettet seksjoner: Snr: 1 Formål: Næring Sameiebrøk: 1260/8232 Snr: 2 Formål: Næring Sameiebrøk: 1145/8232 Snr: 3 Formål: Næring Sameiebrøk: 125/8232 Snr: 4 Formål: Næring Sameiebrøk: 380/8232 Snr: 5 Formål: Samleseksjon bolig Sameiebrøk: 5322/8232 Bestemmelser om tilleggsdel, se under servitutter. Gjelder seksjon nr. 1,4 og 5 Gjelder denne registerenheten med flere
Legalpant
Borettslaget har legalpant på inntil 2G som sikkerhet for betaling av felleskostnader. Legalpant er pant som ikke kommer frem av grunnboksutskriften, og har bedre prioritet enn for eksempel lån til bank som er tinglyst på andelen.
Øvrige kjøpsforhold
Diverse
Borettslagsmodellen innebærer at borettslaget eier eiendommen, mens andelseierne eier andeler i borettslaget, som gir borett til en bestemt bolig. Andelseierne har ikke personlig ansvar for borettslagets fellesgjeld, men andelseierne må dekke borettslagets løpende utgifter. Manglende innbetaling av fellesutgiftene som følge av andre andelshaveres mislighold, eller der borettslaget sitter på fraflyttede og/eller usolgte andeler, må dekkes av de øvrige andelseierne. Borettslaget har legalpanterett i andelen for krav på dekning av felleskostnader og andre krav fra borettslaget på inntil 2 ganger folketrygdens grunnbeløp. Kjøper og selger er forpliktet til å undertegne standard kjøpekontrakt utarbeidet av Nordvik i forbindelse med eiendomstransaksjonen. Kjøpekontrakt kan besiktiges hos eiendomsmegler før bud inngis. Kontakt eiendomsmegler for spørsmål. Selger leverer eiendommen i ryddig og rengjort stand.
Overtagelse
Overtakelse skjer etter avtale med selger. Før boligen overleveres kjøper, skal fullt oppgjør og omkostninger være mottatt på meglers klientkonto.
Sentrale lover
Generelle bestemmelser Alle innvendige og utvendige arealangivelser, samt beskrivelser av bygningen er hentet fra vedlagte tilstandsrapport/boligsalgsrapport. Salgsoppgaven er basert på de opplysningene selger har gitt til megler, den bygningssakkyndiges tilstandsrapport, samt opplysninger innhentet fra kommunen, Kartverket og andre tilgjengelige kilder. Det er viktig at kjøper setter seg grundig inn i alle salgsdokumentene, herunder salgsoppgave, tilstandsrapport og selgers egenerklæring. Kjøper anses kjent med forhold som er tydelig beskrevet i salgsdokumentene, og slike forhold kan ikke påberopes som mangler. Dette gjelder uavhengig av om kjøper har lest dokumentene. Det kan være avvik fra dagens rombruk/rombenevnelser sammenlignet med det som er byggemeldt/godkjent. Alle interessenter oppfordres til å undersøke eiendommen nøye, gjerne sammen med fagkyndig før bud inngis. Kjøper som velger å kjøpe usett kan ikke gjøre gjeldende som mangel noe han burde blitt kjent med ved undersøkelsen. Dersom det er behov for avklaringer, anbefaler vi at interessenter rådfører seg med eiendomsmegler eller egne rådgivere før det legges inn bud. En bolig som har blitt brukt i en viss tid, har vanligvis blitt utsatt for slitasje og skader kan ha oppstått. Slik bruksslitasje må kjøper regne med, og det kan avdekkes enkelte forhold etter overtakelse som nødvendiggjør utbedringer. Normal slitasje og skader som nødvendiggjør utbedring, er innenfor hva kjøper må forvente og vil ikke utgjøre en mangel. Kjøper og selgers rettigheter og plikter reguleres av avtalen mellom partene, samt informasjonen som har vært tilgjengelig for kjøperen i forbindelse med handelen. Avtalen utfylles av avhendingsloven, og det gjelder ulike avtalevilkår avhengig av om kjøper er forbrukerkjøper eller ikke. Dette er nærmere beskrevet nedenfor. På grunn av ulike avtalevilkår kan selger vurdere bud fra en som ikke er forbruker, ulikt fra en forbrukers bud. Dersom kjøper ikke er forbruker, er selger sitt mulige mangelsansvar begrenset fordi eiendommen selges "som den er". Selger kan ikke ta «som den er» forbehold ovenfor en forbrukerkjøper. Selv et lavere bud fra en som ikke er forbruker kan foretrekkes fordi begrensningen i mulig mangelsansvar kan ha egenverdi for selger. Selger står fritt til å forkaste eller akseptere ethvert bud, og er for eksempel ikke forpliktet til å akseptere høyeste bud. Budgiver skal i budskjema avgi egenerklæring om budgiver er forbruker eller næringsdrivende/ person som hovedsakelig handler som ledd i næringsvirksomhet. Budgivere får informasjon dersom andre bud er inngitt av en som ikke er forbruker. Forbrukerkjøp - definisjon Med forbrukerkjøp menes kjøp av eiendom når kjøperen er en fysisk person som ikke hovedsakelig handler som ledd i næringsvirksomhet. Forbruker – avtalevilkår Eiendommen har en mangel dersom den ikke er i samsvar med kravene som følger av avtalen, eller det foreligger brudd på bestemmelsene i avhendingsloven §§ 3-2 til 3-8. Hvis eiendommen ikke er i samsvar med det kjøperen må kunne forvente ut ifra alder, type og synlig tilstand, kan det være grunnlag for mangelskrav. Det samme gjelder hvis det er holdt tilbake eller gitt uriktige opplysninger om eiendommen. Dette gjelder likevel bare dersom man kan gå ut ifra at det virket inn på avtalen at opplysningen ikke ble gitt eller at feil uriktige opplysninger ikke blir rettet i tide på en tydelig måte. Boligen kan ha en mangel etter avhendingsloven § 3-3 dersom det er avvik mellom opplyst og faktisk innvendig areal, forutsatt at avviket er på 2% eller mer og minimum 1 kvm. Ved beregning av et eventuelt prisavslag eller erstatning må kjøper selv dekke tap/kostnader opptil et beløp på kr 10 000 (egenandel). Ikke-forbruker (næringsdrivende) – definisjon Hvis kjøper er en juridisk person, eller en fysisk person som hovedsakelig handler som ledd i næringsvirksomhet, vil kjøpet ikke anses som et forbrukerkjøp. Ikke-forbruker – avtalevilkår Eiendommen har en mangel dersom den ikke er i samsvar med kravene som følger av avtalen. Eiendommen selges «som den er», og selgers ansvar utover det konkret avtalte er da begrenset etter avhendingsloven § 3-9, første ledd andre setning. Avhendingsloven § 3-3 andre ledd fravikes, og hvorvidt boligens arealsvikt utgjør en mangel vurderes etter avhendingsloven § 3-8. Informasjon om kjøpers undersøkelsesplikt, herunder oppfordringen om å undersøke eiendommen nøye, gjelder også for kjøpere som ikke anses som forbrukere.
Boligselgerforsikring
Selger har tegnet boligselgerforsikring. Se selgers egenerklæringsskjema vedlagt salgsoppgaven.
Boligkjøperforsikring
I samarbeid med Storebrand og HELP tilbyr Nordvik Boligkjøperpakke til våre boligkjøpere. Boligkjøperpakken er et gunstig forsikringskonsept som inneholder alle de forsikringene du trenger til den nye boligen din. Boligkjøperpakke Leilighet inneholder: Boligkjøperforsikring fra HELP, flytteforsikring og innboforsikring Super. Boligkjøperforsikring er en rettshjelpsforsikring som gir trygghet og profesjonell juridisk hjelp dersom det oppdages uventede feil eller mangler ved boligen. Forsikringen gjelder i 5 år fra overtakelsen. Flytteforsikring dekker skade på eiendeler under flytting ved plutselig og uforutsett hendelse som oppstår under transport eller i forbindelse med bæring mellom bolig, bil eller lagringssted. Forsikringen varer i 1 år fra overtakelsen. Innboforsikring Super dekker tingene dine ved blant annet tyveri, brann eller vannskader. Vår beste innboforsikring Super inkluderer blant annet uflaksforsikring, bistand ved ID-tyveri og psykologhjelp ved alvorlige hendelser hjemme. Forsikringen gjelder i 3 måneder fra overtakelsesdatoen av ny bolig. Velger du Boligkjøperpakke Leilighet+ får du i tillegg renteforsikring: Renteforsikringen kan hjelpe deg med rentekostnaden og forsikringspremien på din primærbolig som skal selges, hvis salgsprosessen fører til at du må betale rentekostnader på to lån. Forsikringen gjelder i 9 måneder (3 måneder karenstid) og dekker inntil 15 000 kroner i måneden. Boligkjøperforsikring fra HELP kan også kjøpes separat og inkluderer da flytteforsikring fra Storebrand. Boligkjøperpakke/Boligkjøperforsikring må tegnes senest ved kontraktsignering og gjelder fra overtakelsen. Kjøper blir kontaktet av Storebrand med et tilbud på videre forsikring av innbo. Se pris og mer informasjon om forsikringene i produktarket vedlagt salgsoppgaven, eller ta kontakt med megler.
Betalingsbetingelser
Oppgjør skal betales i en samlet innbetaling fra norsk bank. Betaling fra utlandet tillates kun i unntakstilfeller og dersom det er avklart med megler i anledning avtaleinngåelse (budaksept).
Viktig informasjon om budgivning
Alle bud skal inngis skriftlig til megler, som formidler disse videre til selger. Kravet til skriftlighet gjelder også budforhøyelser og motbud, aksept eller avslag fra selger. Bud kan legges inn på eiendommens finn-annonse ved å trykke på knappen «gi bud» eller via vår hjemmeside. Bud kan legges inn på eiendommens annonse på hjem.no/finn.no ved å trykke på knappen «gi bud» eller via vår hjemmeside. Ved elektronisk budgivning legges bud inn ved å benytte BankID. Bud kan også inngis på budskjema vedlagt i salgsoppgaven. Før megler formidler bud til selger, skal megler innhente gyldig legitimasjon og signatur fra budgiver. Kravet til legitimasjon og signatur er oppfylt for budgivere som benytter e-signatur, eksempelvis BankID eller MinID. Senere bud kan inngis per e-post eller SMS til megler. Dersom budgiver skal by på eiendommen i henhold til kjøpsfullmakt må megler kontaktes i forkant av budgivning. Ved bruk av kjøpsfullmakt, må fullmakten oversendes til megler i forkant av budgivning. Kjøper kan ikke kreve at eiendommen tinglyses på andre enn kjøper. Om kjøper ønsker at noen andre skal stå som hjemmelshaver, må det tas forbehold om dette i budet. Selger kan velge å ikke akseptere dette. Et bud bør inneholde eiendommens adresse (eventuelt gnr/bnr), kjøpesum, budgivers kontaktinformasjon, finansieringsplan, akseptfrist, overtakelsesdato og eventuelle forbehold som for eksempel usikker finansiering, salg av nåværende bolig ol. Normalt vil ikke et bud med forbehold bli akseptert før forbeholdet er avklart. Konferer gjerne med megler før bud avgis. Et bud bør inneholde eiendommens adresse (eventuelt gnr/bnr), kjøpesum, budgivers kontaktinformasjon, finansieringsplan, akseptfrist, overtakelsesdato og eventuelle forbehold. Megler skal legge til rette for en forsvarlig avvikling av budrunden. I forbrukerforhold (dvs. der selger er forbruker) skal megleren ikke formidle bud med kortere akseptfrist enn kl. 12.00 første virkedag etter siste annonserte visning. Senere bud må ha en tilstrekkelig lang akseptfrist til at megler, så langt det er nødvendig og mulig, kan videreformidle budet og eventuelle forbehold til alle involverte parter og legge til rette for at disse får tid til å områ seg, jf. forskrift om eiendomsmegling § 6-3. Akseptfrist bør derfor være på minimum 30 minutter, og budforhøyelser bør skje senest 10 minutter før fristens utløp. Dersom bud inngis med en frist som åpenbart er for kort til at megleren kan avvikle budrunden på en forsvarlig måte, vil megler fraråde budgiver å stille slik frist. Megleren vil uoppfordret gi sin vurdering av det enkelte bud overfor selgeren, når budet er gitt innenfor akseptfristene ovenfor. Megler skal så snart som mulig bekrefte skriftlig overfor budgivere at budene deres er mottatt. Megler kan ikke formidle bud med forbehold om at budet eller forbehold i budet skal holdes skjult (hemmelig) for andre budgivere og interessenter. Etter at handel har kommet i stand, eller dersom en budrunde avsluttes uten at handel er kommet i stand, kan en budgiver kreve kopi av budjournalen i anonymisert form. Kopi av budjournal skal gis til kjøper og selger uten ugrunnet opphold etter at handel er kommet i stand. Dersom det er viktig for budgiver å bevare sin anonymitet, bør budet fremmes gjennom fullmektig. For mer informasjon om budgivningsprosessen, se «Forbrukerinformasjon om budgivning», som er vedlagt salgsoppgaven, eller ta kontakt med megler.
Tilbud på finansiering
Du kan søke om boliglån hos vår samarbeidspartner Storebrand, og få svar på dagen. Med boliglån i Storebrand kan du være trygg på at du til enhver tid har blant markedets mest konkurransedyktige renter. Du vil bli tatt godt vare på av et av Norges beste servicemiljøer innen bank. Som kunde i Storebrand Bank får du en fast kontaktperson å forholde deg til, som vil gi deg gode råd og god hjelp med kort svartid. Søk om boliglån i Storebrand og få • Enkel søknad - og etableringsprosess • Svar på dagen • Fast kontaktperson å forholde deg til • Trygghet for at du alltid har konkurransedyktige betingelser Ta kontakt på telefon 22 31 22 21 eller nordvik@storebrand.no. Les mer på storebrand.no/nordvik. Meglerforetaket kan motta provisjon ved formidling av finansielle tjenester.
Hvitvasking
Eiendomsmeglere er underlagt lov om hvitvasking og tilhørende forskrift. Etter hvitvaskingsloven er eiendomsmegler pålagt å gjennomføre kundetiltak av både selger og kjøper. Hvis kjøper ikke bidrar til at megler får gjennomført kundetiltak, og dette fører til at transaksjonen ikke kan gjennomføres eller blir forsinket, misligholder kjøper avtalen. Etter 30 dager anses misligholdet vesentlig, og selger har rett til å heve avtalen og gjennomføre dekningssalg for kjøpers regning. Dersom det er selger som ikke bidrar til at megler får gjennomført løpende kundetiltak underveis i oppdraget må eiendomsmegler stanse gjennomføringen av transaksjonen. Selger vil i et slikt tilfelle ha misligholdt sine forpliktelser, og kjøper vil kunne ha et krav mot selger etter avhendingsloven. Hvis kundetiltak ikke lar seg gjennomføre, vil Nordvik Eiendomsmegling ikke kunne bistå med handelen eller foreta oppgjør.
Personopplysningsloven
Personopplysninger vil bli behandlet i samsvar med personopplysningsloven. Ved å registrere deg som interessent og/eller budgiver eller kjøpe vil vi innhente, behandle og registrere personopplysninger om deg. Eiendomsmeglingsforetak har plikt til å oppbevare kontrakter og dokumenter i 10 år, jf. eiendomsmeglingsforskriften § 3-7 (3). Denne oppbevaringsplikten begrenser muligheten for å få slettet personopplysninger. Du kan lese mer om Nordviks behandling av personopplysninger i vår personvernerklæring på nordvikbolig.no/personvern.
Om oppdraget
Vedlegg til salgsoppgaven
Vedleggene er en del av den komplette salgsoppgaven. Det er viktig at interessenter setter seg godt inn i vedleggene og kontakter megler med eventuelle spørsmål før bud inngis.
Ansvarlig megler
Espen A. Johnsen, Eiendomsmegler MNEF / Partner
977 01 750
e.johnsen@nordvikbolig.no
Megler
Anders Thorkildsen, Eiendomsmegler MNEF / Partner
993 07 744
a.thorkildsen@nordvikbolig.no
Meglerforetaket
Juridisk navn: Majorstuen Eiendomsmegling AS
Org. nr.: 914449936
Sørkedalsveien 8C, 0369 OSLO
Samarbeidspartnere og foretak med tilknytning til Nordvik
Meglerforetaket og Nordvik-kjeden samarbeider med en rekke foretak som tilbyr produkter eller tjenester i forbindelse med megleroppdraget. - Storebrand leverer boligselgerforsikring, finansieringsløsninger og forsikringer til kjøper - Help forsikring leverer boligkjøperforsikring - Flytte- og lagringstjenester gjennom Loyalty, oppussing gjennom Steddy, brebånd levert av Telenor, alarm levert av Sector alarm, strøm levert av Fjordkraft og Fortum og utleietjenester levert av Utleiemegleren. Hvilke tilbud kjøper og selger får i forbindelse med oppdraget kan variere ut fra hvor i landet eiendommen ligger. Nordvik bolig AS, som er franchisegiver for Nordvik-kjeden, eier aksjer i Bomega AS (Hjem.no). Majorstuen Eiendomsmegling AS har indirekte eierskap i Bomega AS.
Trygg bolighandel med Nordvik
Forsikringer
Hos oss i Nordvik har vi for gode forsikringer til både deg som skal selge og deg som skal kjøpe.
Boligforsikring
Bilder






Ingen kjenner nabolaget bedre!
Hva sier innbyggerne om Grünerløkka?
Nordvikundersøkelsen gjør deg litt bedre kjent med området boligen ligger i, og får frem fakta, funn og innsikt som vi tror kan være nyttig ved valg av ny bolig.
Hele undersøkelsen finner du her.
Trivsel
82%Vil bli boende i bydelen dersom de skulle flyttet i dag.
Søndagsaktivitet
- Er ute, på tur, ski, trening (53%)
- Venner, familie, besøk, middag (26%)
- Slapper av, ser på TV, leser (11%)
- Jobber i hage/hus (5%)
Hva er innbyggene mest stolt av i nabolaget?
Vennlig og hjelpsomme naboer
69%Av alle innbyggene beskriver naboene sine som vennlige og hjelpsomme.
All data er hentet fra Nordvikundersøkelsen gjennomført våren 2025 i samarbeid med Norstat.
Espen A. Johnsen
Eiendomsmegler MNEF / Partner
Majorstuen
Selge bolig?
Slik hjelper jeg deg til
et godt salg
Er du klar til budrunde?
Hva er din bolig verdt?
Anders Thorkildsen
Eiendomsmegler MNEF / Partner
Majorstuen
Selge bolig?
Slik hjelper jeg deg til
et godt salg
Er du klar til budrunde?































