Vårveien 5BBrattlikollen
- Brattlikollen
- Vårveien 5B
- Prisantydning
- 14 500 000,-
- Kommunale avg.
- 20 123,- per år
- BRA-i
- 148 m2
Ekeberg/Simensbråten
Påkostet, nyere(2019) og solrik halvpart av tomannsbolig med hagedel - 4 soverom - 2 p-plasser - Kjeller m/egen inngang
En meget tiltalende og moderne halvpart av tomannsbolig fra 2019 med tilbaketrukket beliggenhet. Boligen ligger i et veletablert og barnevennlig område på Simensbråten/Ekeberg, med nærhet til natur, fritidsaktiviteter, bussholdeplass (300 m) samt flere barnehager og Ekeberg skole like ved. Innholdsrik bolig med god og effektiv romfordeling - perfekt for familieliv! Hovedplan med entré, wc, kjøkken, stue og adkomst til solrik terrasse og hyggelig hagedel. 2. etasje med 4 soverom og romslig bad. Kjeller med vaskerom, innredet rom og hybel med egen inngang - tidligere utleid for 12 500,-/mnd. To garasjeplasser og bod. -Høy standard fra 2019 -2 garasjeplasser m/lader -Sydøstvendt terrasse på 55 kvm og hage -2 bad, separat wc og vaskerom -Avskjermet og barnevennlig -Balansert ventilasjon
Nøkkelinformasjon
- Boligtype:
- Tomannsbolig
- Byggeår:
- 2019
- Etasje:
- 3
- Soverom:
- 5
- Prisantydning:
- 14 500 000,-
- Omkostninger:
- 363 880,-
- Totalpris:
- 14 863 880,-
- Kommunale avgifter:
- 20 123,- per år
- Totalt BRA:
- 155 m2
- Tomteareal:
- 1 252 m2 (eiet)
- Energimerking:
- C - oransje
- Garasje:
- Ja
- Veranda:
- Ja
Presenteres av
Har du finanseringsbevis på plass?
I samarbeid med
En personlig rådgiver fra vår samarbeidspartner Storebrand Bank vil hjelpe deg å gjøre deg klar til budrunden.

Nøkkelinformasjon
Oppdragsnummer
8-0666/25
Boligtype og eieform
Tomannsbolig (Eierseksjon)
Adresse og betegnelse
Vårveien 5B, 1182 Oslo
Gnr. 149, bnr. 373, snr. 4 (ideell andel 1/1) i Oslo kommune.
Kjøpesum og omkostninger
14 500 000,- (Prisantydning) Omkostninger: 362 500,- (Dokumentavgift) 290,- (Pantattest kjøper) 545,- (Tinglyst pantedokument) 545,- (Tinglyst skjøte) 19 200,- (Boligkjøperpakke* (valgfritt)) -------------------------------------------------------- 363 880,- (Omkostninger totalt (uten Boligkjøperpakke)) 383 080,- (Omkostninger totalt (med Boligkjøperpakke)) -------------------------------------------------------- 14 863 880,- (Totalpris inkl. omkostninger (uten Boligkjøperpakke)) 14 883 080,- (Totalpris inkl. omkostninger (med Boligkjøperpakke)) -------------------------------------------------------- NB: Regnestykket forutsetter at det kun tinglyses ett pantedokument og at eiendommen selges til prisantydning. Dokumentavgiften er 2,5% av salgssummen, inkl. evt. fellesgjeld. Det tas forbehold om endringer i offentlige avgifter/gebyrer.
Om boligen
Byggeår
2019
Etasje
3
Arealer
BRA-i: 148 kvm
BRA-e: 7 kvm
Totalt BRA: 155 kvm
TBA: 55 kvm
Beskrivelse:
Underetasje:
BRA-i: 48 kvm. Vaskerom, soverom, kjellerstue, gang, bad og innredet rom
BRA-e: 7 kvm. Bod og garasje
Totalt BRA: 55 kvm
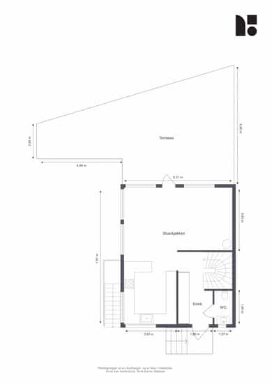
1. etasje:
BRA-i: 50 kvm. Entré, stue/kjøkken og toalettrom
Totalt BRA: 50 kvm
TBA: 55 kvm. Terrasse- og balkongareal
2. etasje:
BRA-i: 50 kvm. Gang, bad og 4 soverom
Totalt BRA: 50 kvm
Takstmannens kommentar til arealoppmåling:
Oppmålingen er fysisk utført med en håndholdt avstandsmåler som har nøyaktighet på +/- 1 mm.
Rommene betegnes slik de fremstår og blir benyttet som under befaringen, selv om de i enkelte tilfeller kan avvike fra godkjente byggetegninger og gjeldende byggeregler.
Angivelsen av rom for varig opphold i rapporten innebærer ikke nødvendigvis at rommet er, eller kan bli, godkjent for varig opphold i samsvar med dagens forskriftskrav.
Arealmålingen og romfordelingen er ikke kontrollert opp mot godkjente plantegninger.
Merk: Boligen disponerer halvparten av felles garasje sammen med nabo.
Garasjearealet er ikke medtatt i arealberegningen, da det ikke er fysisk skille mellom plassene.
Antall soverom
5
Innhold
2. Etasje: BRA-i 50 kvm: Gang, bad og 4 soverom 1. Etasje: BRA-i 50 kvm: Entré, stue/kjøkken og toalettrom TBA 55 kvm: Terasse og balkongareal Kjeller: BRA-i 48 kvm: Vaskerom, soverom, kjellerstue, gang, bad og innredet rom BRA-e 7 kvm: Bod og garasje
Standard
Innvendige overflater: - Gulv: Parkett og fliser. - Vegger: Sparklet/pussede og malte overflater. - Himling: Sparklet/pussede og malte overflater. Himlingshøyder: Kjeller: Himlingshøyden målt til ca. 2,45 meter i kjellerstuen. 1. etasje: Himlingshøyden målt til ca. 2,41 meter i stuen. 2. etasje: Himlingshøyden målt til ca. 2,45 meter i soverom. Kjøkkeninnredning: 1. etasje: Kjøkkeninnredning med profilerte fronter og nedfelt kum i plastkompositt. Oppvaskmaskin, platetopp, stekeovner og kjøleskap er integrert i innredningen. Kjeller: Kjøkkeninnredning med profilerte fronter og nedfelt kum i stål. Platetopp, stekeovn og kjøkeskap er integrert i innredningen.
Parkering
Boligen disponerer to garasjeplasser med elbillader.
Moderniseringer og påkostninger
Huset ble malt utvendig i 2024.
Taket i stua og på kjøkkenet ble malt i november 2025.
Det ble bygget en trepergola på verandaen i september 2025.
Hele uteområdet ved garasjen ble asfaltert i september 2025.
Sammendrag selgers egenerklæringsskjema
Boligen ble kjøpt i 2019. Selger har bodd i boligen de siste 12 månedene. 21. Selges boligen med utleiedel/leilighet eller hybel? Ja Kommentar fra selger: Hus var helt ny når vi flyttet inn september 2019 Selger opplyser at lekestue er delvis plassert på område til nabotomt.
Bygningssakkyndig
SNARE BOLIGVURDERING AS V/ DANIEL SNARE
Byggemåte
Boligen er oppført med en grunnmur i betong, yttervegger i bindingsverk og en takkonstruksjon av tre. Fundamenteringen er ikke synlig. Grunnmuren er oppført i betong. Dreneringen er fra byggeåret og det er benyttet grunnmursplate. Ytterveggene består av bindingsverk kledd med malt panel, og det er etablert lufting bak kledningen. Takkonstruksjonen er et kaldtloft med gangbart gulv og adkomst via loftsluke. Undertaket er diffusjonsåpent. Taket er tekket med takstein, og undertaket er av fiberduk. Nedløp har utkast på tomten. Boligen har vinduer med isolerglass, ytterdører i tre og en terrassedør med isolerglass. Det er en sørøstvendt terrasse i trekonstruksjon. TG2 - Avvik som kan kreve tiltak: - Overflater (Bad - 2. etasje) - Ventilasjon - Varmtvannstank - Rom under terreng - Overflater (Vaskerom - Kjeller), - Sanitærutstyr og ventilasjon (Toalettrom - 1. etasje) - Balkonger/terrasser og lignende - Terrengforhold - Fuktsikring og drenering - Andre utvendige forhold
Innbo og løsøre
Følgende løsøre/tilbehør medfølger: Integrerte hvitevarer, garderobeskap i gang, IKEA garderober i soverom 1 og 2. Følgende løsøre og tilbehør følger ikke med: Knagger på veggen i soverommene. Liten trehylle på kjøkken. For øvrig gjelder NEF sin standardliste "Oversikt over løsøre og tilbehør" med mindre annet fremkommer av salgsoppgaven. Listen er vedlagt. Dersom det er noe i overnevnte liste som ikke finnes på eiendommen, vil det heller ikke medfølge. Produkter og installasjoner som medfølger overdras uten noen form for garantier, utover eventuell gjenværende leverandørgaranti. Hull og merker etter feste av innredning og utstyr som ikke følger med, aksepteres av kjøper.
Adgang til utleie
Boligen har en hybel som er del av boligen, med intern tilgang. Selger har tidligere leid ut hybelen for kr. 12.000,- per mnd. Det gjøres oppmerksom på at det ene rommet i hybeldelen er byggemeldt som bod. Rommet er tidligere brukt som soverom. Selger har ikke søkt om bruksendring og bærer ingen risiko/ansvar for at slik godkjennelse gis.
Energi og oppvarming
Energimerking
C - oransje
Se fullstendig energiattest fra selger som vedlegg til salgsoppgave. Megler har intet ansvar for informasjon som følger av energiattesten.
Oppvarming
Elektrisk oppvarming og peis.
Informasjon om strømforbruk
Selger opplyser å ha et årlig strømforbruk tilsvarende ca. kr 36 000. Energiforbruket vil variere fra husstand til husstand.
Økonomi
Kommunale avgifter
Kr. 20 123,- pr. 2025
Kommunale avgifter inkluderer:
Feie-og tilsynsgebyr 243,00
Renovasjonsgebyr 5 819,58
Vann-og avløpsgebyr 14 060,46
Oppgitt beløp er et estimat for hele året - endelig fakturert beløp kan avvike.
Fakturering skjer månedlig/kvartalsvis.
Eiendomsskatt
Kr. 10 339,- pr. 2025
I Oslo kommune er det eiendomsskatt på boliger og fast eiendom som overstiger en fastsatt verdi. Informasjonen over er hentet fra eiendomsskattelistene.
For mer informasjon rundt beregningsgrunnlaget for eiendommen, se http://www.oslo.kommune.no/skatt-og-naring/skatt-og-avgift/eiendomsskatt/eiendomsskatt
Formuesverdi
Primærbolig: Kr. 4 599 908,- pr. 2023
Sekundærbolig: Kr. 12 999 869,- pr. 2023
Skatteetaten beregner en boligverdi (beregnet markedsverdi for bolig) basert på SSBs statistiske opplysninger om omsatte boliger. I beregningen tas det hensyn til din boligs beliggenhet, areal, byggeår og type bolig. Formuesverdien er en prosentandeldel av denne boligverdien.
For mer informasjon om formuesverdi, se Skatteetatens nettsider.
Sameiet
Om sameiet
Boligen tilhører et lite sameie på fire boligseksjoner. Alle fire seksjonene er del av tomannsbolig. Seksjonens sameiebrøk er 1/4.
Sameiets forsikring
Storebrand
Polisenr.
840420
Tomt
Beskrivelse av tomt
Tomtestørrelse: 1 252 kvm (eiet)
Felles eiet tomt. Seksjonering for sameiet følger vedlagt. Tomten er seksjonert som felles areal.
Adkomst
Enkel adkomst fra Vårveien. Det vil bli skiltet med Nordvik visningsskilt til annonserte visninger.
Radonmåling
Selger har ikke utført radonmåling. Det er ikke krav om dette med mindre boligen er helt eller delvis utleid.
Områdebeskrivelse
Beskrivelse av nærområdet
Eiendommen ligger i et attraktivt og barnevennlig boligområde på Simensbråten/Ekeberg i Oslo, med kort avstand til gode rekreasjonsområder og et rikt servicetilbud. Det er kort vei til matvarebutikk og et utmerket kollektivtilbud, samt treningssenter, skoler og barnehager. Ekebergsletta ligger i fin gangavstand, og byr på aktiviteter som ridesenter, minigolf og diverse andre muligheter for barna. Vinterstid har Ekebergsletta skøyteis og stor akebakke. Sletta er en del av Oslos største parkområde som omfatter Brannfjell og Ekebergskogen. Det er kort vei til den fasjonable Ekebergrestauranten, og en tur til Ekeberg skulpturpark kan anbefales. Brannfjell er et av de første skogsområdene i hovedstaden som blir bart på vårparten. Det er stier over hele åsen, alt fra brede lysløyper til trange skogstier og svabergpartier. Ved Ekeberg barneskole er det flerbrukshall. En sykkeltur unna boligen finner du idylliske Østensjøvannet med fine turveier og et rikt fugleliv. Like ved vannet åpner snart Manglerud bad- og aktivitetshus med flerbruksområder og ungdomshus. Musikk- og kulturskolen får fast tilholdssted og ute bygges det en ny skatepark som åpner samtidig med badet. Bekkelagsbadet, som åpnet i 2019, ligger rett før brua ved Ormøya og er blitt en av de mest populære badeplassene i området. Parken på ca. 12 mål har badebrygge, stupetårn, moderne toalettfasiliteter, sandvolleyballbane, ballbinge, parkour og food-truck med mer. Servicetilbud Dagligvarehandelen kan gjøres på blant annet Spar Simensbråten som ligger 350 meter unna. Rema 1000 Ryen og flere andre matbutikker ligger også i gangavstand. For et bredt og variert utvalg anbefales en tur til Jacobs på Holtet, der det også er Kaffebrenneriet og Åpent Bakeri. Nærmeste kjøpesenter er Manglerud Senter. Kollektivtilbudet i området består av buss og T-bane. Nærmeste bussholdeplass er Benveien (23-bussen) som ligger ca. 180 meter fra boligen. Det tar ca. 9 min å gå til Ryen T-bane med linje 1 og 4, samt 70-bussen. Med bil fra Simensbråten tar det ca. 3 min til Ryen, 6 min til Lambertseter, 6 min til Oslo S, 10 min til Ulvøya og 32 min til Oslo Lufthavn. Fra eiendommen er det gangavstand til Ekeberg barneskole og Brannfjell ungdomsskole. Nærmeste barnehage er Brumlebassen barnehage som bare ligger et steinkast unna. Det finnes flere videregående skoler i nærliggende områder, bl.a. Kongshavn og Holtet videregående skole. Se vedlagte nabolagsprofil for ytterligere fasiliteter og avstander.
Offentlige forhold
Ferdigattest / brukstillatelse
Det foreligger ferdigattest for eiendommen datert 11.12.2019. Ferdigattest utstedes av bygningsmyndighetene på grunnlag av mottatt dokumentasjon fra kontrollansvarlige når et søknadspliktig tiltak er utført i samsvar med tillatelsen og øvrige krav etter plan- og bygningslovgivningen. At ferdigattest eksisterer, gir ingen garanti for bygget er oppført i henhold til tillatelsen og gjeldende regelverk eller at det senere er utført arbeid på bygget som ikke er byggemeldt eller godkjent.
Vei, vann og avløp
Eiendommen er tilknyttet offentlig vann og avløp. Stikkledninger fra eiendommen og ut til kommunalt nett er private, vedlikeholdsansvaret påhviler sameieteierborettslagetboligaksjeselskapet. Adkomst via offentlig vei.
Regulerings- og arealplaner
Eiendommen er regulert som byggeområde for boliger iht. reguleringsplan S-4220, reguleringsplan for småhusområder i Oslos ytre by, også kalt «småhusplanen». Småhusplanen styrer hvordan det kan bygges og fortettes på eiendommer som er omfattet av planen. Den legger også begrensninger for hvor mye det er lov å bygge på eiendommene. Eiendommen er også berørt av reguleringsplan S-497 (Regulering av Vårveien mellom Stamhusveien og Lyngveien, Simensbråten. (vei 680)). Plan- og bygningsetaten har igangsatt revidering av småhusplanen, den reviderte planen skal bidra til å skjerme småhusområdene for ytterligere fortetting, og sørge for et sterkere vern av de grønne verdiene når det bygges innenfor småhusplanen. Oslo kommune har vedtatt midlertidig forbud mot tiltak i de områdene småhusplanen gjelder. Vedtaket forbyr alle tiltak etter plan- og bygningsloven § 1-6, og gir blant annet sterke begrensninger i muligheten for rivning, oppføring og bygningsmessige endringer. Det er gjort enkelte unntak fra forbudet. Det er for eksempel tillat å gjøre innvendige tiltak, som bruksendring, så lenge det ikke innebærer opprettelse av en ny boenhet. For mer informasjon se plan og bygg sine hjemmesider, saksnr. 202102096, eller https://innsyn.pbe.oslo.kommune.no/saksinnsyn/showfile.asp?jno=2022072153&fileid=10231629. Reguleringsplanen som følger eiendommen er helt eller delvis opphevet som følge av bystyrets vedtak 23.09.2015, sak 262 Kommuneplan 2015 - Oslo mot 2030 - Smart, trygg og grønn. Se kommunens hjemmeside for ytterligere informasjon. Eiendommen er i kommuneplanen regulert til bebyggelse og anlegg, nåværende. For mer informasjon om reguleringsforhold kontakt megler eller søk på saksnummer/adresse/gnr. bnr på plan- og bygningsetatens hjemmeside. Ny kommuneplan fra 23. september 2015: Oslo kommune har vedtatt ny kommuneplan som får betydning for en rekke av de vedtatte reguleringsplanene i kommunen. Eiendommen er underlagt hensynssone H190_2. Plankartet viser hensynssoner med restriksjoner for sprengning og brønnboring, for å sikre eksisterende og fremtidige tunneler. For informasjon om eventuelle arbeider/prosjekter i nærliggende områder anbefaler vi et søk på Oslo kommunes portal for saksinnsyn. Megler har kontrollert plan- og bygg sine hjemmesider 10.01.2026. Av pågående saker i nærområdet nevnes: - Pågående plansak: Detaljregulering - Lyngveien 1 m.fl. Status: Under behandling. Hovedhensikt med planen er utvidelse av eks. dagligvareforretning. Det foreligger en utomhusplan på saken hvor det fremgår at det skal bygges tre boliger over dagligvarebutikken, samt 4 nye boliger nedenfor. Megler kan ikke se at det ligger en spesifikk søknad inne for disse boligene/planene pt. For mer informasjon, se plan- og bygg sine hjemmesider, saksnr. 2025/21325 - Pågående byggesak: Lyngveien 3 - mulig ulovlig felling av trær. Status: Under behandling. Det foreligger pålegg om stans - vedtak om tvangsmulkt. Se mer informasjon på plan- og bygg sine hjemmesider, saksnr. 2025/21414 - Pågående byggesak: Vårveien 3 - oppføring av enebolig - Bygg B. Status: Under behandling. På denne eiendommen er det utstedt ferdigattest i oktober 2025. For mer informasjon, se plan- og bygg sine hjemmesider, saksnr. 202303592 og 2025/09845.
Konsesjon
Kjøp av eiendommen er ikke konsesjonspliktig. Dersom eiendommen er større enn 2 mål plikter kjøper å undertegne dokumenter i forbindelse med søknad om konsesjonsfrihet.
Tinglyste heftelser og forpliktelser
På eiendommen er det tinglyst følgende heftelser og rettigheter som følger eiendommens matrikkel ved overskjøting til ny hjemmelshaver: 301/149/373/4: 23.09.1948 - Dokumentnr: 9722 - Best. om vann/kloakkledn. Overført fra: Knr:0301 Gnr:149 Bnr:373 Gjelder denne registerenheten med flere 14.12.1948 - Dokumentnr: 13147 - Erklæring/avtale Bestemmelse om benyttelse ANG KJELLER Overført fra: Knr:0301 Gnr:149 Bnr:373 Gjelder denne registerenheten med flere 09.08.1949 - Dokumentnr: 9049 - Bestemmelse om veg Bestemmelse om gjerde Bestemmelse om kloakkledning Overført fra: Knr:0301 Gnr:149 Bnr:373 Gjelder denne registerenheten med flere 28.01.1975 - Dokumentnr: 1730 - Best om garasje/parkering 0idlertidig dispensasjon fra Vegloven Kan ikke slettes uten samtykke fra vegsjefen Overført fra: Knr:0301 Gnr:149 Bnr:373 Gjelder denne registerenheten med flere 18.02.2019 - Dokumentnr: 202795 - Bestemmelse om veg Gjensidig bruksrett Bestemmelse om vedlikehold Overført fra: Knr:0301 Gnr:149 Bnr:373 Gjelder denne registerenheten med flere 28.03.2019 - Dokumentnr: 368565 - Bestemmelse om bebyggelse Kan ikke slettes uten samtykke fra: Oslo Kommune Org.nr: 958 935 420 Midlertidig dispensasjon fra Vegloven Overført fra: Knr:0301 Gnr:149 Bnr:373 Gjelder denne registerenheten med flere 25.11.2025 - Dokumentnr: 1440608 - Registerenheten kan ikke disponeres over uten samtykke fra rettighetshaver Rettighetshaver: Nordvik Oppgjør AS Org.nr: 814 449 912 Elektronisk innsendt 01.10.2019 - Dokumentnr: 1147694 - Seksjonering Opprettet seksjoner: Snr: 4 Formål: Bolig Tilleggsdel: Bygning Sameiebrøk: 25/100
Legalpant
Kommunen har legalpant som sikkerhet for riktig betaling av kommunale avgifter og eventuell eiendomsskatt. De øvrige seksjonseierne i sameiet har legalpant på inntil 2G som sikkerhet for krav som følger av sameieforholdet, typisk vil dette gjelde felleskostnader. Legalpant er pant som ikke kommer frem av grunnboksutskriften, og har bedre prioritet enn for eksempel lån til bank som er tinglyst på seksjonen. Legalpant til kommunen har prioritet foran legalpant til sameiet.
Øvrige kjøpsforhold
Diverse
Det opplyses om at ingen kan eie mer enn to boligseksjoner i sameiet, jf. eierseksjonsloven § 23. Seksjoner som eies av nærstående eller via firma teller med. Etter lov om eierseksjoner § 31, er sameierne overfor sameiets kreditorer ansvarlige etter sin sameiebrøk. Ved manglende betaling av fellesutgifter har sameiet legalpanterett i den enkelte eierseksjon på inntil 2 ganger folketrygdens grunnbeløp. Kjøper og selger er forpliktet til å undertegne standard kjøpekontrakt utarbeidet av Nordvik i forbindelse med eiendomstransaksjonen. Kjøpekontrakt kan besiktiges hos eiendomsmegler før bud inngis. Kontakt eiendomsmegler for spørsmål. Selger leverer eiendommen i ryddig og rengjort stand.
Overtagelse
Overtakelse skjer etter avtale med selger. Før boligen overleveres kjøper, skal fullt oppgjør og omkostninger være mottatt på meglers klientkonto.
Sentrale lover
Eiendommen selges etter reglene i avhendingsloven. Generelle bestemmelser: Alle innvendige og utvendige arealangivelser, samt beskrivelser av bygningen er hentet fra vedlagte tilstandsrapport/boligsalgsrapport. Salgsoppgaven er basert på de opplysningene selger har gitt til megler, den bygningssakkyndiges tilstandsrapport, samt opplysninger innhentet fra kommunen, Kartverket og andre tilgjengelige kilder. Det er viktig at kjøper setter seg grundig inn i alle salgsdokumentene, herunder salgsoppgave, tilstandsrapport og selgers egenerklæring. Kjøper anses kjent med forhold som er tydelig beskrevet i salgsdokumentene, og slike forhold kan ikke påberopes som mangler. Dette gjelder uavhengig av om kjøper har lest dokumentene. Det kan være avvik fra dagens rombruk/rombenevnelser sammenlignet med det som er byggemeldt/godkjent. Alle interessenter oppfordres til å undersøke eiendommen nøye, gjerne sammen med fagkyndig før bud inngis. Kjøper som velger å kjøpe usett kan ikke gjøre gjeldende som mangel noe han burde blitt kjent med ved undersøkelsen. Dersom det er behov for avklaringer, anbefaler vi at interessenter rådfører seg med eiendomsmegler eller egne rådgivere før det legges inn bud. En bolig som har blitt brukt i en viss tid, har vanligvis blitt utsatt for slitasje og skader kan ha oppstått. Slik bruksslitasje må kjøper regne med, og det kan avdekkes enkelte forhold etter overtakelse som nødvendiggjør utbedringer. Normal slitasje og skader som nødvendiggjør utbedring, er innenfor hva kjøper må forvente og vil ikke utgjøre en mangel. Kjøper og selgers rettigheter og plikter reguleres av avtalen mellom partene, samt informasjonen som har vært tilgjengelig for kjøperen i forbindelse med handelen. Avtalen utfylles av avhendingsloven, og det gjelder ulike avtalevilkår avhengig av om kjøper er forbrukerkjøper eller ikke. Dette er nærmere beskrevet nedenfor. På grunn av ulike avtalevilkår kan selger vurdere bud fra en som ikke er forbruker, ulikt fra en forbrukers bud. Dersom kjøper ikke er forbruker, er selger sitt mulige mangelsansvar begrenset fordi eiendommen selges "som den er". Selger kan ikke ta «som den er» forbehold ovenfor en forbrukerkjøper. Selv et lavere bud fra en som ikke er forbruker kan foretrekkes fordi begrensningen i mulig mangelsansvar kan ha egenverdi for selger. Selger står fritt til å forkaste eller akseptere ethvert bud, og er for eksempel ikke forpliktet til å akseptere høyeste bud. Budgiver skal i budskjema avgi egenerklæring om budgiver er forbruker eller næringsdrivende/ person som hovedsakelig handler som ledd i næringsvirksomhet. Budgivere får informasjon dersom andre bud er inngitt av en som ikke er forbruker. Forbrukerkjøp - definisjon: Med forbrukerkjøp menes kjøp av eiendom når kjøperen er en fysisk person som ikke hovedsakelig handler som ledd i næringsvirksomhet. Forbruker – avtalevilkår: Eiendommen har en mangel dersom den ikke er i samsvar med kravene som følger av avtalen, eller det foreligger brudd på bestemmelsene i avhendingsloven §§ 3-2 til 3-8. Hvis eiendommen ikke er i samsvar med det kjøperen må kunne forvente ut ifra alder, type og synlig tilstand, kan det være grunnlag for mangelskrav. Det samme gjelder hvis det er holdt tilbake eller gitt uriktige opplysninger om eiendommen. Dette gjelder likevel bare dersom man kan gå ut ifra at det virket inn på avtalen at opplysningen ikke ble gitt eller at feil uriktige opplysninger ikke blir rettet i tide på en tydelig måte. Boligen kan ha en mangel etter avhendingsloven § 3-3 dersom det er avvik mellom opplyst og faktisk innvendig areal, forutsatt at avviket er på 2% eller mer og minimum 1 kvm. Ved beregning av et eventuelt prisavslag eller erstatning må kjøper selv dekke tap/kostnader opptil et beløp på kr 10 000 (egenandel). Ikke-forbruker (næringsdrivende) – definisjon: Hvis kjøper er en juridisk person, eller en fysisk person som hovedsakelig handler som ledd i næringsvirksomhet, vil kjøpet ikke anses som et forbrukerkjøp. Ikke-forbruker – avtalevilkår: Eiendommen har en mangel dersom den ikke er i samsvar med kravene som følger av avtalen. Eiendommen selges «som den er», og selgers ansvar utover det konkret avtalte er da begrenset etter avhendingsloven § 3-9, første ledd andre setning. Avhendingsloven § 3-3 andre ledd fravikes, og hvorvidt boligens arealsvikt utgjør en mangel vurderes etter avhendingsloven § 3-8. Informasjon om kjøpers undersøkelsesplikt, herunder oppfordringen om å undersøke eiendommen nøye, gjelder også for kjøpere som ikke anses som forbrukere.
Boligselgerforsikring
Selger har tegnet boligselgerforsikring. Se selgers egenerklæringsskjema vedlagt salgsoppgaven.
Boligkjøperforsikring
I samarbeid med Storebrand og HELP tilbyr Nordvik Boligkjøperpakke til våre boligkjøpere. Boligkjøperpakken er et gunstig forsikringskonsept som inneholder alle de forsikringene du trenger til den nye boligen din. Boligkjøperpakke Hus inneholder: Boligkjøperforsikring fra HELP, flytteforsikring, innboforsikring Super og husforsikring Super fra Storebrand. Boligkjøperforsikring er en rettshjelpsforsikring som gir trygghet og profesjonell juridisk hjelp dersom det oppdages uventede feil eller mangler ved boligen. Forsikringen gjelder i 5 år fra overtakelsen. Flytteforsikring dekker skade på eiendeler under flytting ved plutselig og uforutsett hendelse som oppstår under transport eller i forbindelse med bæring mellom bolig, bil eller lagringssted. Forsikringen varer i 1 år fra budaksept. Innboforsikring Super dekker tingene dine ved blant annet tyveri, brann eller vannskader. Vår beste innboforsikring Super inkluderer blant annet uflaksforsikring, bistand ved ID-tyveri og psykologhjelp ved alvorlige hendelser hjemme. Forsikringen gjelder i 3 måneder fra overtakelsesdatoen av ny bolig. Husforsikring Super dekker alt fra brann og vannskader til naturskader og bekjempelse av rotter og mus. I tillegg inkluderer Super-dekningen vannskader fra våtrom, sopp- og råteskader, og følgeskader på bygningen som skyldes håndverkerfeil. Forsikringen gjelder i 3 måneder fra overtakelsesdatoen av ny bolig. Velger du Boligkjøperpakke Hus+ får du i tillegg renteforsikring: Renteforsikringen kan hjelpe deg med rentekostnaden og forsikringspremien på din primærbolig som skal selges, hvis salgsprosessen fører til at du må betale rentekostnader på to lån. Forsikringen gjelder i 9 måneder (3 måneder karenstid) og dekker inntil 15 000 kroner i måneden. Boligkjøperforsikring fra HELP kan også kjøpes separat og inkluderer da flytteforsikring fra Storebrand. Boligkjøperpakke/Boligkjøperforsikring må tegnes senest ved kontraktsignering og gjelder fra overtakelsen. Kjøper blir kontaktet av Storebrand med et tilbud på videre forsikring av hus og innbo. Se pris og mer informasjon om forsikringene i produktarket vedlagt salgsoppgaven, eller ta kontakt med megler.
Betalingsbetingelser
Oppgjør skal betales i en samlet innbetaling fra norsk bank. Betaling fra utlandet tillates kun i unntakstilfeller og dersom det er avklart med megler i anledning avtaleinngåelse (budaksept).
Viktig informasjon om budgivning
Alle bud skal inngis skriftlig til megler, som formidler disse videre til selger. Kravet til skriftlighet gjelder også budforhøyelser og motbud, aksept eller avslag fra selger. Bud kan legges inn på eiendommens finn-annonse ved å trykke på knappen «gi bud» eller via vår hjemmeside. Bud kan legges inn på eiendommens annonse på hjem.no/finn.no ved å trykke på knappen «gi bud» eller via vår hjemmeside. Ved elektronisk budgivning legges bud inn ved å benytte BankID. Bud kan også inngis på budskjema vedlagt i salgsoppgaven. Før megler formidler bud til selger, skal megler innhente gyldig legitimasjon og signatur fra budgiver. Kravet til legitimasjon og signatur er oppfylt for budgivere som benytter e-signatur, eksempelvis BankID eller MinID. Senere bud kan inngis per e-post eller SMS til megler. Dersom budgiver skal by på eiendommen i henhold til kjøpsfullmakt må megler kontaktes i forkant av budgivning. Ved bruk av kjøpsfullmakt, må fullmakten oversendes til megler i forkant av budgivning. Kjøper kan ikke kreve at eiendommen tinglyses på andre enn kjøper. Om kjøper ønsker at noen andre skal stå som hjemmelshaver, må det tas forbehold om dette i budet. Selger kan velge å ikke akseptere dette. Et bud bør inneholde eiendommens adresse (eventuelt gnr/bnr), kjøpesum, budgivers kontaktinformasjon, finansieringsplan, akseptfrist, overtakelsesdato og eventuelle forbehold som for eksempel usikker finansiering, salg av nåværende bolig ol. Normalt vil ikke et bud med forbehold bli akseptert før forbeholdet er avklart. Konferer gjerne med megler før bud avgis. Megler skal legge til rette for en forsvarlig avvikling av budrunden. I forbrukerforhold (dvs. der selger er forbruker) skal megleren ikke formidle bud med kortere akseptfrist enn kl. 12.00 første virkedag etter siste annonserte visning. Senere bud må ha en tilstrekkelig lang akseptfrist til at megler, så langt det er nødvendig og mulig, kan videreformidle budet og eventuelle forbehold til alle involverte parter og legge til rette for at disse får tid til å områ seg, jf. forskrift om eiendomsmegling § 6-3. Akseptfrist bør derfor være på minimum 30 minutter, og budforhøyelser bør skje senest 10 minutter før fristens utløp. Dersom bud inngis med en frist som åpenbart er for kort til at megleren kan avvikle budrunden på en forsvarlig måte, vil megler fraråde budgiver å stille slik frist. Megleren vil uoppfordret gi sin vurdering av det enkelte bud overfor selgeren, når budet er gitt innenfor akseptfristene ovenfor. Megler skal så snart som mulig bekrefte skriftlig overfor budgivere at budene deres er mottatt. Megler kan ikke formidle bud med forbehold om at budet eller forbehold i budet skal holdes skjult (hemmelig) for andre budgivere og interessenter. Etter at handel har kommet i stand, eller dersom en budrunde avsluttes uten at handel er kommet i stand, kan en budgiver kreve kopi av budjournalen i anonymisert form. Kopi av budjournal skal gis til kjøper og selger uten ugrunnet opphold etter at handel er kommet i stand. Dersom det er viktig for budgiver å bevare sin anonymitet, bør budet fremmes gjennom fullmektig. For mer informasjon om budgivningsprosessen, se «Forbrukerinformasjon om budgivning», som er vedlagt salgsoppgaven, eller ta kontakt med megler.
Tilbud på finansiering
Du kan søke om boliglån hos vår samarbeidspartner Storebrand, og få svar på dagen. Med boliglån i Storebrand kan du være trygg på at du til enhver tid har blant markedets mest konkurransedyktige renter. Du vil bli tatt godt vare på av et av Norges beste servicemiljøer innen bank. Som kunde i Storebrand Bank får du en fast kontaktperson å forholde deg til, som vil gi deg gode råd og god hjelp med kort svartid. Søk om boliglån i Storebrand og få • Enkel søknad - og etableringsprosess • Svar på dagen • Fast kontaktperson å forholde deg til • Trygghet for at du alltid har konkurransedyktige betingelser Ta kontakt på telefon 22 31 22 21 eller nordvik@storebrand.no. Les mer på storebrand.no/nordvik. Meglerforetaket kan motta provisjon ved formidling av finansielle tjenester.
Hvitvasking
Eiendomsmeglere er underlagt lov om hvitvasking og tilhørende forskrift. Etter hvitvaskingsloven er eiendomsmegler pålagt å gjennomføre kundetiltak av både selger og kjøper. Hvis kjøper ikke bidrar til at megler får gjennomført kundetiltak, og dette fører til at transaksjonen ikke kan gjennomføres eller blir forsinket, misligholder kjøper avtalen. Etter 30 dager anses misligholdet vesentlig, og selger har rett til å heve avtalen og gjennomføre dekningssalg for kjøpers regning. Dersom det er selger som ikke bidrar til at megler får gjennomført løpende kundetiltak underveis i oppdraget må eiendomsmegler stanse gjennomføringen av transaksjonen. Selger vil i et slikt tilfelle ha misligholdt sine forpliktelser, og kjøper vil kunne ha et krav mot selger etter avhendingsloven. Hvis kundetiltak ikke lar seg gjennomføre, vil Nordvik Eiendomsmegling ikke kunne bistå med handelen eller foreta oppgjør.
Personopplysningsloven
Personopplysninger vil bli behandlet i samsvar med personopplysningsloven. Ved å registrere deg som interessent og/eller budgiver eller kjøpe vil vi innhente, behandle og registrere personopplysninger om deg. Eiendomsmeglingsforetak har plikt til å oppbevare kontrakter og dokumenter i 10 år, jf. eiendomsmeglingsforskriften § 3-7 (3). Denne oppbevaringsplikten begrenser muligheten for å få slettet personopplysninger. Du kan lese mer om Nordviks behandling av personopplysninger i vår personvernerklæring på nordvikbolig.no/personvern.
Om oppdraget
Eiendomsmeglers vederlag
Vederlag: Provisjon: 0,80% av salgssum (min. kr. 45 000,-) – estimert til kr. 116 000,- Grunnpakke Hus kr. 13 900,- Markedspakke inkl. trykket salgsoppgave kr. 24 900,- Oppgjørshonorar** kr. 8 500,- Tilrettelegging kr. 16 900,- Visningshonorar/overtagelseshonorar per stk. ( 2.stk på visning ) kr. 3 900,- Dersom oppdraget utløper eller blir sagt opp, uten at handel er kommet i stand, har megler krav på et rimelig vederlag for medgått tid/utført arbeid og avtalte utgifter (tilrettelegging, markedsføring og avholdte visninger) samt eventuelle utlegg. Ved beregningen av vederlaget skal det tas utgangspunkt i timeprisen som er kr. 3 900,-.
Vedlegg til salgsoppgaven
Vedleggene er en del av den komplette salgsoppgaven. Det er viktig at interessenter setter seg godt inn i vedleggene og kontakter megler med eventuelle spørsmål før bud inngis.
Ansvarlig megler
Truls Martin Nygaard, Eiendomsmegler MNEF / Partner
476 29 151
t.nygaard@nordvikbolig.no
Megler
Renate Finnanger Fløan, Eiendomsmegler MNEF / Partner
902 15 515
r.floan@nordvikbolig.no
Meglerforetaket
Juridisk navn: Majorstuen Eiendomsmegling AS
Org. nr.: 914449936
Sørkedalsveien 8C, 0369 OSLO
Samarbeidspartnere og foretak med tilknytning til Nordvik
Meglerforetaket og Nordvik-kjeden samarbeider med en rekke foretak som tilbyr produkter eller tjenester i forbindelse med megleroppdraget. - Storebrand leverer boligselgerforsikring, finansieringsløsninger og forsikringer til kjøper - Help forsikring leverer boligkjøperforsikring - Flytte- og lagringstjenester gjennom Loyalty, oppussing gjennom Steddy, brebånd levert av Telenor, alarm levert av Sector alarm, strøm levert av Fjordkraft og Fortum og utleietjenester levert av Utleiemegleren. Hvilke tilbud kjøper og selger får i forbindelse med oppdraget kan variere ut fra hvor i landet eiendommen ligger. Nordvik bolig AS, som er franchisegiver for Nordvik-kjeden, eier aksjer i Bomega AS (Hjem.no). Majorstuen Eiendomsmegling AS har indirekte eierskap i Bomega AS.
Trygg bolighandel med Nordvik
Forsikringer
Hos oss i Nordvik har vi for gode forsikringer til både deg som skal selge og deg som skal kjøpe.
Boligforsikring
Bilder






Ingen kjenner nabolaget bedre!
Hva sier innbyggerne om Nordstrand?
Nordvikundersøkelsen gjør deg litt bedre kjent med området boligen ligger i, og får frem fakta, funn og innsikt som vi tror kan være nyttig ved valg av ny bolig.
Hele undersøkelsen finner du her.
Trivsel
86%Vil bli boende i bydelen dersom de skulle flyttet i dag.
Søndagsaktivitet
- Er ute, på tur, ski, trening (68%)
- Venner, familie, besøk, middag (8%)
- Slapper av, ser på TV, leser (25%)
- Jobber i hage/hus (10%)
Hva er innbyggene mest stolt av i nabolaget?
Vennlig og hjelpsomme naboer
74%Av alle innbyggene beskriver naboene sine som vennlige og hjelpsomme.
All data er hentet fra Nordvikundersøkelsen gjennomført våren 2025 i samarbeid med Norstat.
Truls Martin Nygaard
Eiendomsmegler MNEF / Partner
Majorstuen
Selge bolig?
Slik hjelper jeg deg til
et godt salg
Er du klar til budrunde?
Hva er din bolig verdt?
Renate Finnanger Fløan
Eiendomsmegler MNEF / Partner
Majorstuen
Selge bolig?
Slik hjelper jeg deg til
et godt salg
Er du klar til budrunde?






















































