Tingstuveien 25Ullern

Alle bilder (21)

1/21

Utvalgte bilder

Ullern
Tingstuveien 25
Prisantydning
17 900 000,-
Totalpris
18 348 850,-
Kommunale avg.
46 303,- per år
BRA-i
260 m2

Skøyen

Klassisk villa på solrik tomt. Mulighet for kjøp av tilleggstomt. Originale detaljer. Generøs takhøyde. Behov for total oppussing!

Klassisk og sjarmerende villa fra 1909 med solrik tomt på høydedrag. Boligen har behov for total oppussing og er et godt utgangspunkt for et varig drømmehjem.

  • Gode takhøyder – inntil ca. 3 m i stue
  • Kort vei til Skøyen stasjon (tog, trikk og buss)
  • Nærhet til skoler og barnehager
  • Gåavstand til Bestumkilen, Bygdøy og Frognerkilen
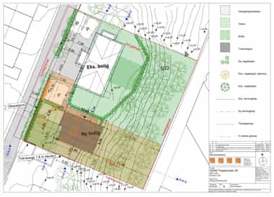
  • Flere originale detaljer er bevart (trapp, brystninger, vinduer) * Deler av tomten mot syd følger ikke med. Tomten planlegges seksjonert i to deler. Ny bolig vil dele innkjørsel med eksisterende bolig. Oppføring av enebolig på fradelt tomt forutsetter offentlige tillatelser. (Se kart for utomhusplan). Tomten mot syd kan inngå i salg, hvor kjøper selv står ansvarlig for eventuell utbygging eller bruk som hage. Konferer megler for mer info.
  • Nøkkelinformasjon

    Boligtype:
    Enebolig
    Byggeår:
    1909
    Etasje:
    3
    Soverom:
    5
    Prisantydning:
    17 900 000,-
    Omkostninger:
    448 850,-
    Totalpris:
    18 348 850,-
    Kommunale avgifter:
    46 303,- per år
    Totalt BRA:
    368 m2
    Tomteareal:
    1 680,7 m2 (eiet)
    Energimerking:
    G - rød
    Veranda:
    Ja

    Visninger

    Gi bud

    Har du finanseringsbevis på plass?

    I samarbeid med

    En personlig rådgiver fra vår samarbeidspartner Storebrand Bank vil hjelpe deg å gjøre deg klar til budrunden.


    Trygg bolighandel med Nordvik

    Forsikringer

    Hos oss i Nordvik har vi for gode forsikringer til både deg som skal selge og deg som skal kjøpe.

    Boligforsikring

    Ingen kjenner nabolaget bedre!

    Hva sier innbyggerne om Ullern?

    Nordvikundersøkelsen gjør deg litt bedre kjent med området boligen ligger i, og får frem fakta, funn og innsikt som vi tror kan være nyttig ved valg av ny bolig.

    Hele undersøkelsen finner du her.

    Trivsel

    84%

    Vil bli boende i bydelen dersom de skulle flyttet i dag.

    Søndagsaktivitet

    • Er ute, på tur, ski, trening (74%)
    • Venner, familie, besøk, middag (13%)
    • Slapper av, ser på TV, leser (9%)
    • Jobber i hage/hus (6%)

    Hva er innbyggene mest stolt av i nabolaget?

    Vennlig og hjelpsomme naboer

    75%

    Av alle innbyggene beskriver naboene sine som vennlige og hjelpsomme.

    All data er hentet fra Nordvikundersøkelsen gjennomført våren 2025 i samarbeid med Norstat.