Laster salgsoppgave...

Turufjellvegen 455Flå

Alle bilder (61)

1/61

Utvalgte bilder

Flå
Turufjellvegen 455
Prisantydning
4 490 000,-
Totalpris
4 603 630,-
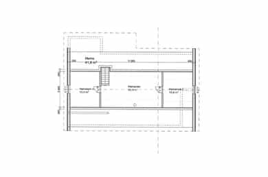
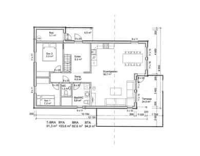
BRA-i
78 m2

Turufjell på Flå i Hallingdal

Kun 2 timer fra Oslo! - Flott hytte oppført 2021 av god standard - Solrik terrasse - Nær alpinanlegget. Se "360-visning"

Velkommen til Turufjellvegen 455, presentert av Nordvik Bolig v/ Christer Barman Gabrielsen. Sentralt beliggende til alt Turufjell og Flå har å by på!

  • Koselig Familiehytte fra 2021
  • Ca.400 meter fra Turufjell Alpinsenter, Turutunet kafé og BMXparken
  • Stor sørvestvendt terrasse med optimale solforhold
  • Nydelig utsikt mot Høgevarde, Turufjellet og Kristnatten
  • Langrennsporet rett ved hytta
  • Ca 5 biloppstillingsplasser på egen tomt
  • Herlig vedovn som varmer hytta effektivt - Varmekabler i entre og baderom
  • Praktisk utvendig bod
  • 9 sengeplasser
  • Gjennomtenkt planløsning
  • Friluftsaktiviteter året rundt med nærliggende badekulper eller badebrygge på Øvre Veslåtjern eller lengre turer inn i Vassfaret Ta kontakt for visning med Christer Gabrielsen på 950 41 364
  • Solforhold

    Selger opplyser om gode solforhold gjennom hele dagen. Med terrasse som strekker seg rundt hele hytta, kan man nyte morgensolen i øst, den varme ettermiddagssolen i sør og kveldssolen i vest.

    Nøkkelinformasjon

    Boligtype:
    Fritidseiendom
    Byggeår:
    2021
    Soverom:
    2
    Prisantydning:
    4 490 000,-
    Omkostninger:
    113 630,-
    Totalpris:
    4 603 630,-
    Totalt BRA:
    82 m2
    Tomteareal:
    727,7 m2 (eiet)
    Energimerking:
    C - oransje

    Visninger

    Gi bud

    Har du finanseringsbevis på plass?

    I samarbeid med

    En personlig rådgiver fra vår samarbeidspartner Storebrand Bank vil hjelpe deg å gjøre deg klar til budrunden.


    Trygg bolighandel med Nordvik

    Forsikringer

    Hos oss i Nordvik har vi for gode forsikringer til både deg som skal selge og deg som skal kjøpe.

    Boligforsikring