Sveriges gate 15BHelsfyr - Sinsen
- Helsfyr - Sinsen
- Sveriges gate 15B
- Prisantydning
- 4 890 000,-
- Felleskost/mnd
- 6 190,-
- BRA-i
- 48 m2
Vålerenga
Moderne, stilren og gjennomgående 3-roms med vestvendt balkong - God takhøyde og store vindusflater - Idyllisk bakgård
Moderne og gjennomført 3-roms med solrik balkong, tidsriktig uttrykk og optimal planløsning. Leiligheten har en gjennomgående planløsning med romslige oppholdsrom, gode møbleringsmuligheter og store vindusflater. Leiligheten ligger i en hyggelig gate på sjarmerende Vålerenga. Her bor du med kort vei til grønne parker, et bredt kollektivtilbud og dagligvarebutikker.
Nøkkelinformasjon
- Boligtype:
- Andelsleilighet
- Byggeår:
- 1890
- Etasje:
- 4
- Soverom:
- 2
- Prisantydning:
- 4 890 000,-
- Omkostninger:
- 1 350,-
- Fellesgjeld:
- 264 910,-
- Totalpris:
- 5 156 260,-
- Felleskost/mnd:
- 6 190,-
- Fellesformue:
- 24 154,-
- Totalt BRA:
- 50 m2
- Energimerking:
- G - rød
- Veranda:
- Ja
Presenteres av
Har du finanseringsbevis på plass?
I samarbeid med
En personlig rådgiver fra vår samarbeidspartner Storebrand Bank vil hjelpe deg å gjøre deg klar til budrunden.

Nøkkelinformasjon
Oppdragsnummer
5-0449/25
Boligtype og eieform
Andelsleilighet (Andel)
Adresse og betegnelse
Sveriges gate 15B, 0658 Oslo
Gnr. 232, bnr. 325 (ideell andel 1/1) i Oslo kommune.
Andelsnr. 16 i Sverigesgate 15 Borettslaget, orgnr. 980412679
Kjøpesum og omkostninger
4 890 000,- (Prisantydning) 264 910,- (Andel av fellesgjeld) -------------------------------------------------------- 5 154 910,- (Pris inkl. fellesgjeld) Omkostninger: 260,- (Pantattest kjøper) 545,- (Tinglyst hjemmelsoverføring) 545,- (Tinglyst pantedokument) 9 300,- (Boligkjøperpakke* (valgfritt)) -------------------------------------------------------- 1 350,- (Omkostninger totalt (uten Boligkjøperpakke)) 10 650,- (Omkostninger totalt (med Boligkjøperpakke)) -------------------------------------------------------- 5 156 260,- (Totalpris inkl. omkostninger (uten Boligkjøperpakke)) 5 165 560,- (Totalpris inkl. omkostninger (med Boligkjøperpakke)) -------------------------------------------------------- NB: Regnestykket forutsetter at det kun tinglyses et pantedokument og at eiendommen selges til prisantydning. Det tas forbehold om endringer i offentlige avgifter/gebyrer. Andel fellesgjeld / Andel formue overtas av kjøper.
Om boligen
Byggeår
1890
Etasje
4
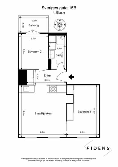
Arealer
BRA-i: 48 kvm
BRA-e: 2 kvm
Totalt BRA: 50 kvm
Beskrivelse:
4. etasje:
BRA-i: 48 kvm.
Totalt BRA: 48 kvm
5. etasje:
BRA-e: 2 kvm.
Totalt BRA: 2 kvm
Fellearealer og rettigheter til bruk:
Det gjøres særskilt oppmerksom på at bod som er medtatt som BRA-e og i totalt BRA ligger på borettslagets fellesareal, men disponeres av denne andelen. Borettslaget kan på et senere tidspunkt omdisponere denne bruken.
Antall soverom
2
Innhold
Leiligheten ligger i 4. etasje og inneholder entré, stue, kjøkken, to soverom og bad. I tillegg disponerer leiligheten en loftsbod på 2 kvm og en kjellerbod med et gulvareal på ca. 6 kvm.
Standard
Entré: Velkommen inn! I gangen er det plass til skyvedørsgarderobe, knagger og hyller for oppbevaring av yttertøy. Gangens sentrale plassering sikrer god flyt i boligen. Sikringsskapet er montert i garderoben i gangen. Porttelefon. Gangen er malt i en stilig fargetone som passer godt med det pene gulvet. Åpen kjøkken- og stueløsning: Stilsikkert og moderne Ikea-kjøkken fra 2017. Lys innredning med profilerte og glatte fronter, kvarts benkeplate med backsplash. Underlimt oppvaskkum med svingbart blandebatteri. Det er integrert kjøl/fryseskap, oppvaskmaskin, stekeovn og platetopp med kullfiltervifte over stekesonen. Arealet er utnyttet til det maksimale med himlingshøye overskap, benkeskap og skuffer. Utstyrt med vannstopper og komfyrvakt. Kjøkkenet har godt med benkeplass og egner seg godt for matlaging. Lun og innbydende stue av god størrelse. Det er plass til sofagruppe med tilhørende stuemøblement som sofabord og tv-benk og spisegruppe. Den gode takhøyden på 2,69 meter og de store vindusflatene gir en god romfølelse og slipper lyset inn. De dype, tidstypiske vinduspostene er perfekte for planter og dekor. Leiligheten har stilrene overflater med en-stavs laminat og vegger malt i lune farger. Planløsningen i rommet gjør innredningsjobben enkel. To soverom: Leiligheten har to lune og funksjonelle soverom. På hovedsoverommet er det god plass til dobbeltseng og skyvedørsgarderobe. Rommet har store vindusflater som sikrer godt med lys og luft. Soverom 2 passer ypperlig som hovedsoverom, barnerom, gjesterom eller kontor, og har plass til seng, skrivepult og garderobe/kommode. Fra soverom 2 er det utgang til en vestvendt balkong på 4,5 kvm. Her er det plass til utemøblement, grill og beplantning. Balkongen har grønt og hyggelig utsyn mot bakgård. Balkongen ble etablert i perioden 2010/2011 i regi av borettslaget. Bad: Bad pusset opp i regi av borettslaget i 2015. Badet har delikate farge- og materialvalg med fliser, elektrisk gulvvarme og opplegg for vaskemaskin. Badet er utstyrt med dusjhjørne med innfellbare dusjdører, blandebatteri og to dusjhoder, veggmontert toalett og baderomsinnredning med skuffer, hvit servant med blandebatteri og speil. Elektrisk styrt avtrekk (denne fungerer ikke). Overflater: Gulv: En-stavs laminat og flislagt gulv på badet. Vegger: Glatte, malte vegger og fliser på badet. Himling: Malt overflate i himling. I stuen er takhøyden oppmålt til ca. 2,69 meter.
Parkering
Det er beboerparkering i området. Ved anskaffelse av beboerparkering kan man parkere døgnet rundt – også utover det som er maksimal parkeringstid - på parkeringsplasser regulert til beboerparkering. Priser for beboerparkering i bydel Frogner, St. Hanshaugen, Gamle Oslo, Grünerløkka og Sagene, parkeringssone A, B, C, D og E: Bensinbil, dieselbil, hybridbil, ladbar hybridbil: 6.200 kroner for ett år Motorsykkel og moped: 3.100 kroner for ett år El-bil : 2.090 kroner for ett år El-motorsykkel og el-moped: 1.045 kroner for ett år Det tas forbehold om prisendringer. For mer informasjon se: https://www.oslo.kommune.no/gate-transport-og-parkering/parkering/beboerparkering/.
Sammendrag selgers egenerklæringsskjema
1. Vet du om det har det blitt utført arbeid på bad/våtrom, enten i din eller tidligere eiertid? Ja, faglært Firmaets navn og beskrivelse av arbeidet: Ikke kjenskap, ble gjort før vi flyttet inn 6. Vet du om boligen eller eiendommen har blitt endret eller bygget ut etter opprinnelig byggeår, enten av deg eller tidligere eiere, herunder bruksendringer kjeller/loft etc.? Ja Var tiltaket søknadspliktig? Nei Eventuell kommentar: ble gjort før vi flyttet inn 22. Vet du om det foreligger skaderapporter eller tilstandsvurderinger etc. om boligen? Ja Oppgi type rapport og årstall: Tilstandsrapport 2023 Selgers egenerklæringsskjema ligger vedlagt i salgsoppgaven.
Bygningssakkyndig
Kristoffer Messel
Byggemåte
Bygget: - Grunnmur er oppført i gråstein og teglstein. - Veggkonstruksjon er oppført i teglstein og er utvendig pusset. - Taket er et saltak. - Etasjeskille er et trebjelkelag. Leiligheten: - Vestvendt balkong på ca 4 kvm. Balkongen ble etablert i perioden 2010/2011 i regi av boretslaget. - Vinduer med treramme og 2-lags glass. Vindusglass er datert 1999. - Balkongdør med treramme og 2-lags glass. Glass i balkongdøren er datert 2011. - Entrédør med brann- og lydklassifisering B-30 og dB-35. - Innvendig dører med malt overfalte og ubehandla. - Sikringsskapet er montert i entré. Det er i forbindelse med salget utarbeidet en tilstandsrapport fra bygningssakkyndig. Tilstandsrapporten er en teknisk gjennomgang av boligen med oppdagede avvik. Forhold som har fått TG2 og TG3 må gjennomgås spesielt nøye, da disse indikerer avvik fra normal slitasje og/eller høy alder, med mulig behov for utbedring. Bygningsdeler som har fått TGIU er ikke undersøkt av takstmann. Bygningsdeler som har fått TG2: - Balkong: Det registreres slitasje og malingavskalling på terrassebord og enkelte sprekker i treverk. Riss/sprekk er registrert i fasaden. - Vinduer og dører: Mer enn halve levetiden er oppbrukt for isolerglassvinduene (glassene er eldre enn 20 år). Isolerglassvinduer har skjulte konstruksjoner og det er fare for punktering. Nedsatt energieffektivitet må påregnes. Det registreres værslitte karmer, listverk og malingsavskalling på utsiden av vinduene. Ytterdør tar i karm/terskel og har behov for justering. Enkelte håndtak sitter løst. Listverk rundt ytterdøren sitter løst/ikke festet tilstrekkelig. - Kjøkken: Oppsummering av overflater og innredning Kjøkkenet har enkelte skader/fuktsvelling på fronter og komfyrvakten er ikke montert over platetoppen. Det registreres sprekk i dekselet på komfyrvakten. Oppsummering av avtrekk: TG 2 er satt på grunn av omluftsventilator/kullfilter i kombinasjon med naturlig avtrekk. - Vannledninger: Det er manglende endemuffe tilknyttet rør-i-rør under oppvaskkummen på kjøkkenet. Avrenning fra fordelerskapet er ikke påvist. - Felles varmtvannsbereder: Tre beredere er over 20 år har usikker restlevetid. - Ventilasjon: Boenheten mangler ventilering (tilførsel av frisk luft), utover muligheten for åpning av vindu. - Våtrom: Oppsummering av overflater: Det registreres sprukket/skadet gulvflis. Misfarging/svertesopp i silikonfug. Områder i nisjen i dusjen har dårlig utførelse av silikon. Enkelte spreker/glipper i silikonfug overgang gulv/vegg. Oppsummering av sanitærutstyr Det er fuktskader pga vannsøl, på baderoms innredningen. Bankeplate er bøyd, dette skal skyldes treverk i fuktig rom. Hakk/avskalling i servanten. Oppsummering av ventilasjon: Det er kun naturlig ventilasjon i rommet da elektrisk styrt avtrekksvifte ikke fungerer. Det er montert elektrisk styrt avtreksvifte men denne fungerer ikke. Bygningsdeler som har fått TG3: - Etasjeskille: Tilstandsgraden er satt etter NS3600, der alle totale høydeforskjeller/avvik over 30mm og lokale høydeforskjeller/avvik over 20mm regnes som TG-3. Skjevheter er normalt og må påregnes i eldre bygg. TG-3 betyr ikke nødvendigvis at det er en fare for sammenbrudd av etasjeskiller. Det registreres stedvis knirk i gulvet og enkelte sprekker mellom gulv/gulvlist. List inn til soverom 2 sitter løst. Ufagmessig avslutninger tilslutning på gulvet enkelte steder. Ved enkel nivellering av stue/kjøkken registreres det et høydeavvik på ca. 31 mm over hele rommet og ca. 23 mm over 2 meter. Ved enkel nivellering av soverom 2 registreres det et høydeavvik på ca. 7 mm over hele rommet og ca. 9 mm over 2 meter. Målinger er utført på tilfeldige steder. Større skjevheter kan ikke utelukkes. For ytterligere opplysninger om byggemåte og standard se vedlagt tilstandsrapport.
Innbo og løsøre
Integrerte hvitevarer medfølger.
Vedlagt salgsoppgaven følger NEF sin standardliste "Oversikt over løsøre og tilbehør". Med mindre annet fremkommer av salgsoppgaven gjelder denne listen.
Dersom det er noe i overnevnte liste som ikke finnes på eiendommen, vil det heller ikke medfølge. Produkter og installasjoner som medfølger overdras uten noen form for garantier, utover eventuell gjenværende leverandørgaranti. Hull og merker etter feste av innredning og utstyr som ikke følger med, aksepteres av kjøper.
Adgang til utleie
Det er begrenset adgang til å leie ut bolig i borettslag. Med styrets godkjenning og på visse vilkår kan boligen leies ut for inntil 3, år. jf. borettslagsloven § 5-3 til § 5-10. Andelseier som bor i boligen selv, kan leie ut deler av boligen til andre uten godkjenning, jf. borettslagsloven § 5-4. Kortidsutleie er tillatt i opptil 30 døgn i året, uten samtykke fra styret.
Energi og oppvarming
Energimerking
G - rød
Se fullstendig energiattest fra selger som vedlegg til salgsoppgave. Megler har intet ansvar for informasjon som følger av energiattesten.
Oppvarming
Boligen har følgende oppvarmingskilder: - Panelovner - Gulvvarme på badet Dersom rom mangler fast installert oppvarmingskilde på visning, følger ikke dette med i handelen.
Informasjon om strømforbruk
Selger har ikke inngått avtale om Norgespris.
Økonomi
Felleskostnader
Kr. 6 190,- pr. mnd
Inkluderer: Internett, betjening av andel fellesgjeld, kommunale avgifter, forretningsførerhonorar, felles byggforsikring, drift og vedlikehold.
Herav:
Felleskostnader: 4 972,-
Internett: 199,-
Renter og avdrag: Balkonglån: 1 019,-
Formuesverdi
Primærbolig: Kr. 1 122 769,- pr. 2023
Sekundærbolig: Kr. 4 491 075,- pr. 2023
Skatteetaten beregner en boligverdi (beregnet markedsverdi for bolig) basert på SSBs statistiske opplysninger om omsatte boliger. I beregningen tas det hensyn til din boligs beliggenhet, areal, byggeår og type bolig. Formuesverdien er en prosentandeldel av denne boligverdien.
For mer informasjon om formuesverdi, se Skatteetatens nettsider.
Borettslaget
Om borettslaget
- Borettslaget Sveriges gate 15 består av 18 andeler, og har organisasjonsnummer 980 412 679.
Forretningsfører
Enqvist Boligforvaltning AS
Forkjøpsrett
Det er ikke forkjøpsrett i borettslaget.
Styregodkjennelse
Overdragelsen av borettslagsandelen til ny andelseier må godkjennes av styret. Eiendomsmegler bistår med innsending av styregodkjennelse, men det er kjøper som bærer risikoen for at overdragelsen godkjennes. Godkjenning kan kun nektes dersom det foreligger saklig grunn. Eventuelle merkostnader som pådras i forbindelse med styregodkjennelsen er kjøpers ansvar. Ta kontakt med eiendomsmegler for mer informasjon.
Informasjon om fellesgjeld
Andel fellesgjeld: Kr. 264 910,- pr. 31.12.2024
Lån nr. 303482 i Eiendomskreditt AS med nominell rente 6,40 % p.a., effektiv rente 6,74 % p.a. Restgjeld pr.26.09.25 er kr 932 352-. Lånet innfris i 2045.
Det er inngått en avtale mellom Eiendomskreditt og borettslaget om mulighet for individuell nedbetaling av andel gjeld.
Lån nr. 304113 i Eiendomskreditt AS med nominell rente 6,40 % p.a., effektiv rente 6,59 % p.a. Restgjeld pr.26.09.25 er kr 3 879 491-. Lånet innfris i 2045.
Dette er et felleslån, og lånekostnadene dekkes via felleskostnadene.
Lån nr. 302430 i Eiendomskreditt AS med nominell rente 6,40 % p.a., effektiv rente 7,05 % p.a. Restgjeld pr.26.09.25 er kr 424 621-. Lånet innfris i 2045.
Det er inngått en avtale mellom Eiendomskreditt og borettslaget om mulighet for individuell nedbetaling av andel gjeld.
Lån nr. 302431 i Eiendomskreditt AS med nominell rente 6,40 % p.a., effektiv rente 6,94 % p.a. Restgjeld pr.26.09.25 er kr 564 194-. Lånet innfris i 2045.
Dette lånet ble tatt opp for å finansiere utbygging av balkonger, og lånekostnadene dekkes bare av de andelene som fikk balkong. Det er ikke åpnet for individuell innfrielse av dette lånet.
Borettslaget er medlem i Borettslagenes Sikringsfond.
Fellesgjelden kan bli besluttet økt etter utarbeidelse av salgsoppgaven.
Fellesformue
Kr. 24 154,- pr. 31.12.2024
Regnskap/budsjett/Kostnadsøkninger
Forrige års regnskap viste et underskudd på kroner 216 232,-. I inneværende år er det budsjettert med et overskudd på kroner 23 119,-.
Vedtekter og husordensregler
Vedtektene og husordensreglene følger som vedlegg. - Kun fysiske personer kan være andelseiere.
Beboernes forpliktelser og dugnader
Dugnad må påregnes.
Dyrehold
Det fremkommer ingen begrensninger på dyrehold i borettslagets husordensregler og vedtekter.
Borettslagets forsikringsselskap
Gjensidige Forsikring ASA
Polisenr. 79672883
Tomt
Områdebeskrivelse
Beskrivelse av nærområdet
Meget populært boligområde på Vålerenga med gangavstand til sentrum. Eiendommen ligger i et bevaringsverdig område med klassiske bygårder og småhusbebyggelse. Området er kjent for sine sjarmerende smågater med sitt mangfold av fargerike trehus. I nærheten ligger Vålerengaparken som er et naturlig sted å nyte solen på sommerstid. På toppen av parken ligger Vålerenga kirke, som ikke bare er en ordinær kirke, men et forsamlingshus med mange aktiviteter gjennom året. Området er særdeles barnevennlig med kort vei til alle ønskelige fasiliteter som offentlig kommunikasjon, skoler, barnehager, dagligvarebutikker, restauranter og trivelige kafeer. Noen kjente restauranter- og kafeer som kan nevnes fra nærområdet på Vålerenga er Smia, Kampen Bistro, Kampen Kaffebar, Vålerenga Vertshus og Pizzeria la Pietra. Flotte tur- og rekreasjonsområder i nærområdet som Vålerengaparken, Middelalderparken, Kampen park, Tøyenbadet, Botanisk hage og flere fine sykkel og gangstier i f.eks. Svartedalsparken. Alnaelva har en idyllisk tursti langs elvebredden mot sentrum eller mot Lillomarka hvor man har utallige turmuligheter både sommer og vinter. I tillegg har man Kampen barnebondegård som er populær for de minste i nærområdet. En kort tur unna finner du Oslofjorden med lokale badestrender som Sørenga sjøbad og Operastranda. For den aktive har man et godt utvalg som Sats på Kampen og Fresh Fitness på Ensjø. Jordal Idrettspark, fotballbaner og Tøyenbadet med både utendørs og innendørs svømmebasseng i gangavstand. Fra leiligheten er det enkelt å spasere til alle byens fasiliteter. Kort avstand til bussholdeplass med buss nr. 37 sine hyppige avganger. Nærmeste T-banestasjon er Ensjø T, ca. 10 minutter gange. Gangavstand er det også til Rema 1000 Etterstad.
Offentlige forhold
Ferdigattest / brukstillatelse
Det foreligger ikke ferdigattest, men ekspedisjonsdokument fra 1899. Ekspedisjonsdokument er forgjengeren til ferdigattest. Ekspedisjonsdokumentet er ferdig attestert, og dokumenterer at bygget er registrert lovlig oppført. At ekspedisjonsdokument eksisterer, gir ingen garanti for at bygget er oppført i henhold til tillatelsen og gjeldende regelverk eller at det senere er utført arbeid på bygget som ikke er byggemeldt eller godkjent. Det er avvik fra dagens rombruk/rombenevnelser sammenlignet med det som er byggemeldt/godkjent. Det er gjort endringer i døråpning inn til leiligheten. Badet er flyttet og kjøkken var tidligere plassert på soverom 2. Tidligere bad er gjort om til deler av gangen.
Vei, vann og avløp
Eiendommen er tilknyttet offentlig vann og avløp. Stikkledninger fra eiendommen og ut til kommunalt nett er private, vedlikeholdsansvaret påhviler sameieteierborettslagetboligaksjeselskapet. Adkomst via offentlig vei.
Regulerings- og arealplaner
Eiendommen er regulert til bolig med tilhørende anlegg. For mer informasjon om reguleringsforhold kontakt megler eller søk på saksnummer/adresse/gnr. bnr på plan- og bygningsetatens hjemmeside. Pågående plansak Saksnr: 202212750 Saken gjelder: Brynsbakken - Kapasitetsøkende jernbanetiltak Det som i jernbanesammenheng betegnes som Brynsbakken i Oslo, er hovedforbindelsen på jernbanen fra Oslo S og nordover, fra Gamlebyen forbi Romeriksporten (tunnel for Gardermobanen) og i retning Bryn. Brynsbakken har lenge vært en flaskehals for trafikken inn og ut av Oslo S på Gardermobanen, Gjøvikbanen og Hovedbanen. Kapasiteten skal økes ved at vi skal bygge to nye spor innenfor planområdet, og omdisponere bruken av de fire sporene som er der allerede. Med seks spor for tre baner, vil inngående og utgående togtrafikk på de tre banene kunne avvikles uavhengig av hverandre. Prosjektet er en del av "Ny rutemodell Østlandet", som er en rekke jernbanetiltak som skal gi de reisende på Østlandet et bedre togtilbud. Pågående byggesaker Etterstadgata 30 - utbygging av loft. Saksnummer 202509582 Opplandgata 20 B - Oppføring av nybygg - Vålerenga nærmiljøhage. Saksnummer 202111211 Det pågår byggearbeid i bakgården. Det er bygg tilhørende naboborettslag/sameie. Kan medføre støy i byggeperioden.
Bo- og driveplikt
Det er ikke boplikt for eiendommen.
Odel
Det hviler ikke odelsrett på eiendommen.
Konsesjon
Kjøp av eiendommen er ikke konsesjonspliktig. Dersom eiendommen er større enn 2 mål plikter kjøper å undertegne dokumenter i forbindelse med søknad om konsesjonsfrihet.
Tinglyste heftelser og forpliktelser
På eiendommen er det tinglyst følgende heftelser og rettigheter som følger eiendommens matrikkel ved overskjøting til ny hjemmelshaver: 980412679/16: 06.10.2025 - Dokumentnr: 1193344 - Registerenheten kan ikke disponeres over uten samtykke fra rettighetshaver Rettighetshaver: Nordvik Oppgjør AS Org.nr: 814 449 912 Elektronisk innsendt
Legalpant
Borettslaget har legalpant på inntil 2G som sikkerhet for betaling av felleskostnader. Legalpant er pant som ikke kommer frem av grunnboksutskriften, og har bedre prioritet enn for eksempel lån til bank som er tinglyst på andelen.
Verneklasse/SEFRAK
Eiendommen er registert i byantikvarens gule liste. Dette innebærer at eiendommen er helt eller delvis bevaringsverdig, og kan ha betydning for fremtidig ombygging/restaurering mv. Byantikvaren skal gi en rådgivende uttalelse i byggesaker som berører eiendommen. For en fullstendig oversikt over eiendommens status, se: http://riksantikvaren.maps.arcgis.com/apps/webappviewer/index.html?id=545b8e996b6e4e1fbcb65f69299a7167
Øvrige kjøpsforhold
Diverse
Borettslagsmodellen innebærer at borettslaget eier eiendommen, mens andelseierne eier andeler i borettslaget, som gir borett til en bestemt bolig. Andelseierne har ikke personlig ansvar for borettslagets fellesgjeld, men andelseierne må dekke borettslagets løpende utgifter. Manglende innbetaling av fellesutgiftene som følge av andre andelshaveres mislighold, eller der borettslaget sitter på fraflyttede og/eller usolgte andeler, må dekkes av de øvrige andelseierne. Borettslaget har legalpanterett i andelen for krav på dekning av felleskostnader og andre krav fra borettslaget på inntil 2 ganger folketrygdens grunnbeløp. Kjøper og selger er forpliktet til å undertegne standard kjøpekontrakt utarbeidet av Nordvik i forbindelse med eiendomstransaksjonen. Kjøpekontrakt kan besiktiges hos eiendomsmegler før bud inngis. Kontakt eiendomsmegler for spørsmål. Selger leverer eiendommen i ryddig og rengjort stand.
Overtagelse
Overtakelse skjer etter avtale med selger. Før boligen overleveres kjøper, skal fullt oppgjør og omkostninger være mottatt på meglers klientkonto.
Sentrale lover
Eiendommen selges etter reglene i avhendingsloven. Generelle bestemmelser: Alle innvendige og utvendige arealangivelser, samt beskrivelser av bygningen er hentet fra vedlagte tilstandsrapport/boligsalgsrapport. Salgsoppgaven er basert på de opplysningene selger har gitt til megler, den bygningssakkyndiges tilstandsrapport, samt opplysninger innhentet fra kommunen, Kartverket og andre tilgjengelige kilder. Det er viktig at kjøper setter seg grundig inn i alle salgsdokumentene, herunder salgsoppgave, tilstandsrapport og selgers egenerklæring. Kjøper anses kjent med forhold som er tydelig beskrevet i salgsdokumentene, og slike forhold kan ikke påberopes som mangler. Dette gjelder uavhengig av om kjøper har lest dokumentene. Det er avvik fra dagens rombruk/rombenevnelser sammenlignet med det som er byggemeldt/godkjent. Det er gjort endringer i døråpning inn til leiligheten. Badet er flyttet og kjøkken var tidligere plassert på soverom 2. Tidligere bad er gjort om til deler av gangen. Alle interessenter oppfordres til å undersøke eiendommen nøye, gjerne sammen med fagkyndig før bud inngis. Kjøper som velger å kjøpe usett kan ikke gjøre gjeldende som mangel noe han burde blitt kjent med ved undersøkelsen. Dersom det er behov for avklaringer, anbefaler vi at interessenter rådfører seg med eiendomsmegler eller egne rådgivere før det legges inn bud. En bolig som har blitt brukt i en viss tid, har vanligvis blitt utsatt for slitasje og skader kan ha oppstått. Slik bruksslitasje må kjøper regne med, og det kan avdekkes enkelte forhold etter overtakelse som nødvendiggjør utbedringer. Normal slitasje og skader som nødvendiggjør utbedring, er innenfor hva kjøper må forvente og vil ikke utgjøre en mangel. Kjøper og selgers rettigheter og plikter reguleres av avtalen mellom partene, samt informasjonen som har vært tilgjengelig for kjøperen i forbindelse med handelen. Avtalen utfylles av avhendingsloven, og det gjelder ulike avtalevilkår avhengig av om kjøper er forbrukerkjøper eller ikke. Dette er nærmere beskrevet nedenfor. På grunn av ulike avtalevilkår kan selger vurdere bud fra en som ikke er forbruker, ulikt fra en forbrukers bud. Dersom kjøper ikke er forbruker, er selger sitt mulige mangelsansvar begrenset fordi eiendommen selges "som den er". Selger kan ikke ta «som den er» forbehold ovenfor en forbrukerkjøper. Selv et lavere bud fra en som ikke er forbruker kan foretrekkes fordi begrensningen i mulig mangelsansvar kan ha egenverdi for selger. Selger står fritt til å forkaste eller akseptere ethvert bud, og er for eksempel ikke forpliktet til å akseptere høyeste bud. Budgiver skal i budskjema avgi egenerklæring om budgiver er forbruker eller næringsdrivende/ person som hovedsakelig handler som ledd i næringsvirksomhet. Budgivere får informasjon dersom andre bud er inngitt av en som ikke er forbruker. Forbrukerkjøp - definisjon: Med forbrukerkjøp menes kjøp av eiendom når kjøperen er en fysisk person som ikke hovedsakelig handler som ledd i næringsvirksomhet. Forbruker – avtalevilkår: Eiendommen har en mangel dersom den ikke er i samsvar med kravene som følger av avtalen, eller det foreligger brudd på bestemmelsene i avhendingsloven §§ 3-2 til 3-8. Hvis eiendommen ikke er i samsvar med det kjøperen må kunne forvente ut ifra alder, type og synlig tilstand, kan det være grunnlag for mangelskrav. Det samme gjelder hvis det er holdt tilbake eller gitt uriktige opplysninger om eiendommen. Dette gjelder likevel bare dersom man kan gå ut ifra at det virket inn på avtalen at opplysningen ikke ble gitt eller at feil uriktige opplysninger ikke blir rettet i tide på en tydelig måte. Boligen kan ha en mangel etter avhendingsloven § 3-3 dersom det er avvik mellom opplyst og faktisk innvendig areal, forutsatt at avviket er på 2% eller mer og minimum 1 kvm. Ved beregning av et eventuelt prisavslag eller erstatning må kjøper selv dekke tap/kostnader opptil et beløp på kr 10 000 (egenandel). Ikke-forbruker (næringsdrivende) – definisjon: Hvis kjøper er en juridisk person, eller en fysisk person som hovedsakelig handler som ledd i næringsvirksomhet, vil kjøpet ikke anses som et forbrukerkjøp. Ikke-forbruker – avtalevilkår: Eiendommen har en mangel dersom den ikke er i samsvar med kravene som følger av avtalen. Eiendommen selges «som den er», og selgers ansvar utover det konkret avtalte er da begrenset etter avhendingsloven § 3-9, første ledd andre setning. Avhendingsloven § 3-3 andre ledd fravikes, og hvorvidt boligens arealsvikt utgjør en mangel vurderes etter avhendingsloven § 3-8. Informasjon om kjøpers undersøkelsesplikt, herunder oppfordringen om å undersøke eiendommen nøye, gjelder også for kjøpere som ikke anses som forbrukere.
Boligselgerforsikring
Selger har tegnet boligselgerforsikring.
Boligkjøperforsikring
I samarbeid med Storebrand og HELP tilbyr Nordvik Boligkjøperpakke til våre boligkjøpere. Boligkjøperpakken er et gunstig forsikringskonsept som inneholder alle de forsikringene du trenger til den nye boligen din. Boligkjøperpakke Leilighet inneholder: Boligkjøperforsikring fra HELP, flytteforsikring og innboforsikring Super. Boligkjøperforsikring er en rettshjelpsforsikring som gir trygghet og profesjonell juridisk hjelp dersom det oppdages uventede feil eller mangler ved boligen. Forsikringen gjelder i 5 år fra overtakelsen. Flytteforsikring dekker skade på eiendeler under flytting ved plutselig og uforutsett hendelse som oppstår under transport eller i forbindelse med bæring mellom bolig, bil eller lagringssted. Forsikringen varer i 1 år fra budaksept. Innboforsikring Super dekker tingene dine ved blant annet tyveri, brann eller vannskader. Vår beste innboforsikring Super inkluderer blant annet uflaksforsikring, bistand ved ID-tyveri og psykologhjelp ved alvorlige hendelser hjemme. Forsikringen gjelder i 3 måneder fra overtakelsesdatoen av ny bolig. Velger du Boligkjøperpakke Leilighet+ får du i tillegg renteforsikring: Renteforsikringen kan hjelpe deg med rentekostnaden og forsikringspremien på din primærbolig som skal selges, hvis salgsprosessen fører til at du må betale rentekostnader på to lån. Forsikringen gjelder i 9 måneder (3 måneder karenstid) og dekker inntil 15 000 kroner i måneden. Boligkjøperforsikring fra HELP kan også kjøpes separat og inkluderer da flytteforsikring fra Storebrand. Boligkjøperpakke/Boligkjøperforsikring må tegnes senest ved kontraktsignering og gjelder fra overtakelsen. Kjøper blir kontaktet av Storebrand med et tilbud på videre forsikring av innbo. Se pris og mer informasjon om forsikringene i produktarket vedlagt salgsoppgaven, eller ta kontakt med megler.
Betalingsbetingelser
Oppgjør skal betales i en samlet innbetaling fra norsk bank. Betaling fra utlandet tillates kun i unntakstilfeller og dersom det er avklart med megler i anledning avtaleinngåelse (budaksept).
Viktig informasjon om budgivning
Alle bud skal inngis skriftlig til megler, som formidler disse videre til selger. Kravet til skriftlighet gjelder også budforhøyelser og motbud, aksept eller avslag fra selger. Bud kan legges inn på eiendommens finn-annonse ved å trykke på knappen «gi bud» eller via vår hjemmeside. Bud kan legges inn på eiendommens annonse på hjem.no/finn.no ved å trykke på knappen «gi bud» eller via vår hjemmeside. Ved elektronisk budgivning legges bud inn ved å benytte BankID. Bud kan også inngis på budskjema vedlagt i salgsoppgaven. Før megler formidler bud til selger, skal megler innhente gyldig legitimasjon og signatur fra budgiver. Kravet til legitimasjon og signatur er oppfylt for budgivere som benytter e-signatur, eksempelvis BankID eller MinID. Senere bud kan inngis per e-post eller SMS til megler. Dersom budgiver skal by på eiendommen i henhold til kjøpsfullmakt må megler kontaktes i forkant av budgivning. Ved bruk av kjøpsfullmakt, må fullmakten oversendes til megler i forkant av budgivning. Kjøper kan ikke kreve at eiendommen tinglyses på andre enn kjøper. Om kjøper ønsker at noen andre skal stå som hjemmelshaver, må det tas forbehold om dette i budet. Selger kan velge å ikke akseptere dette. Et bud bør inneholde eiendommens adresse (eventuelt gnr/bnr), kjøpesum, budgivers kontaktinformasjon, finansieringsplan, akseptfrist, overtakelsesdato og eventuelle forbehold som for eksempel usikker finansiering, salg av nåværende bolig ol. Normalt vil ikke et bud med forbehold bli akseptert før forbeholdet er avklart. Konferer gjerne med megler før bud avgis. Et bud bør inneholde eiendommens adresse (eventuelt gnr/bnr), kjøpesum, budgivers kontaktinformasjon, finansieringsplan, akseptfrist, overtakelsesdato og eventuelle forbehold. Megler skal legge til rette for en forsvarlig avvikling av budrunden. I forbrukerforhold (dvs. der selger er forbruker) skal megleren ikke formidle bud med kortere akseptfrist enn kl. 12.00 første virkedag etter siste annonserte visning. Senere bud må ha en tilstrekkelig lang akseptfrist til at megler, så langt det er nødvendig og mulig, kan videreformidle budet og eventuelle forbehold til alle involverte parter og legge til rette for at disse får tid til å områ seg, jf. forskrift om eiendomsmegling § 6-3. Akseptfrist bør derfor være på minimum 30 minutter, og budforhøyelser bør skje senest 10 minutter før fristens utløp. Dersom bud inngis med en frist som åpenbart er for kort til at megleren kan avvikle budrunden på en forsvarlig måte, vil megler fraråde budgiver å stille slik frist. Megleren vil uoppfordret gi sin vurdering av det enkelte bud overfor selgeren, når budet er gitt innenfor akseptfristene ovenfor. Megler skal så snart som mulig bekrefte skriftlig overfor budgivere at budene deres er mottatt. Megler kan ikke formidle bud med forbehold om at budet eller forbehold i budet skal holdes skjult (hemmelig) for andre budgivere og interessenter. Etter at handel har kommet i stand, eller dersom en budrunde avsluttes uten at handel er kommet i stand, kan en budgiver kreve kopi av budjournalen i anonymisert form. Kopi av budjournal skal gis til kjøper og selger uten ugrunnet opphold etter at handel er kommet i stand. Dersom det er viktig for budgiver å bevare sin anonymitet, bør budet fremmes gjennom fullmektig. For mer informasjon om budgivningsprosessen, se «Forbrukerinformasjon om budgivning», som er vedlagt salgsoppgaven, eller ta kontakt med megler.
Tilbud på finansiering
Du kan søke om boliglån hos vår samarbeidspartner Storebrand, og få svar på dagen. Med boliglån i Storebrand kan du være trygg på at du til enhver tid har blant markedets mest konkurransedyktige renter. Du vil bli tatt godt vare på av et av Norges beste servicemiljøer innen bank. Som kunde i Storebrand Bank får du en fast kontaktperson å forholde deg til, som vil gi deg gode råd og god hjelp med kort svartid. Søk om boliglån i Storebrand og få • Enkel søknad - og etableringsprosess • Svar på dagen • Fast kontaktperson å forholde deg til • Trygghet for at du alltid har konkurransedyktige betingelser Ta kontakt på telefon 22 31 22 21 eller nordvik@storebrand.no. Les mer på storebrand.no/nordvik. Meglerforetaket kan motta provisjon ved formidling av finansielle tjenester.
Hvitvasking
Eiendomsmeglere er underlagt lov om hvitvasking og tilhørende forskrift. Etter hvitvaskingsloven er eiendomsmegler pålagt å gjennomføre kundetiltak av både selger og kjøper. Hvis kjøper ikke bidrar til at megler får gjennomført kundetiltak, og dette fører til at transaksjonen ikke kan gjennomføres eller blir forsinket, misligholder kjøper avtalen. Etter 30 dager anses misligholdet vesentlig, og selger har rett til å heve avtalen og gjennomføre dekningssalg for kjøpers regning. Dersom det er selger som ikke bidrar til at megler får gjennomført løpende kundetiltak underveis i oppdraget må eiendomsmegler stanse gjennomføringen av transaksjonen. Selger vil i et slikt tilfelle ha misligholdt sine forpliktelser, og kjøper vil kunne ha et krav mot selger etter avhendingsloven. Hvis kundetiltak ikke lar seg gjennomføre, vil Nordvik Eiendomsmegling ikke kunne bistå med handelen eller foreta oppgjør.
Personopplysningsloven
Personopplysninger vil bli behandlet i samsvar med personopplysningsloven. Ved å registrere deg som interessent og/eller budgiver eller kjøpe vil vi innhente, behandle og registrere personopplysninger om deg. Eiendomsmeglingsforetak har plikt til å oppbevare kontrakter og dokumenter i 10 år, jf. eiendomsmeglingsforskriften § 3-7 (3). Denne oppbevaringsplikten begrenser muligheten for å få slettet personopplysninger. Du kan lese mer om Nordviks behandling av personopplysninger i vår personvernerklæring på nordvikbolig.no/personvern.
Om oppdraget
Eiendomsmeglers vederlag
Vederlag: Provisjon: 0,90% av salgssum (min. kr. 45 000,-) – estimert til kr. 47 294,- Grunnpakke Leilighet kr. 12 500,- Markedspakke kr. 22 900,- Oppgjørshonorar** kr. 7 990,- Tilrettelegging kr. 13 900,- Visningshonorar (2. stk meglere) kr. 4 000,- Utlegg: Eierskiftegebyr kr. 6 570,- Infoland - Informasjon forretningsfører kr. 5 247,- Utlegg foto - Interiør og fasade kr. 5 500,- Utlegg tilstandsrapport kr. 9 500,- Samlet skal selger betale kr. 135 401,- for vederlag og utlegg ved salg til prisantydning. Dersom oppdraget utløper eller blir sagt opp, uten at handel er kommet i stand, har megler krav på et rimelig vederlag for medgått tid/utført arbeid og avtalte utgifter (tilrettelegging, markedsføring og avholdte visninger) samt eventuelle utlegg. Ved beregningen av vederlaget skal det tas utgangspunkt i timeprisen som er kr. 3 900,-.
Vedlegg til salgsoppgaven
Vedleggene er en del av den komplette salgsoppgaven. Det er viktig at interessenter setter seg godt inn i vedleggene og kontakter megler med eventuelle spørsmål før bud inngis.
Ansvarlig megler
Kristoffer Mjåtveit, Eiendomsmegler / Partner
976 41 966
k.mjaatveit@nordvikbolig.no
Megler
Maren Tostrup, Kontorsjef / Eiendomsmegler / Partner
450 66 788
m.tostrup@nordvikbolig.no
Meglerforetaket
Juridisk navn: Parken Eiendomsmegling AS
Org. nr.: 913250575
Waldemar Thranes gate 6A, 0171 OSLO
Samarbeidspartnere og foretak med tilknytning til Nordvik
Meglerforetaket og Nordvik-kjeden samarbeider med en rekke foretak som tilbyr produkter eller tjenester i forbindelse med megleroppdraget. - Storebrand leverer boligselgerforsikring, finansieringsløsninger og forsikringer til kjøper - Help forsikring leverer boligkjøperforsikring - Flytte- og lagringstjenester gjennom Loyalty, oppussing gjennom Steddy, brebånd levert av Telenor, alarm levert av Sector alarm, strøm levert av Fjordkraft og Fortum og utleietjenester levert av Utleiemegleren. Hvilke tilbud kjøper og selger får i forbindelse med oppdraget kan variere ut fra hvor i landet eiendommen ligger. Nordvik bolig AS, som er franchisegiver for Nordvik-kjeden, eier aksjer i Bomega AS (Hjem.no). Parken Eiendomsmegling AS har indirekte eierskap i Bomega AS.
Trygg bolighandel med Nordvik
Forsikringer
Hos oss i Nordvik har vi for gode forsikringer til både deg som skal selge og deg som skal kjøpe.
Boligforsikring
Bilder






Ingen kjenner nabolaget bedre!
Hva sier innbyggerne om Gamle Oslo?
Nordvikundersøkelsen gjør deg litt bedre kjent med området boligen ligger i, og får frem fakta, funn og innsikt som vi tror kan være nyttig ved valg av ny bolig.
Hele undersøkelsen finner du her.
Trivsel
84%Vil bli boende i bydelen dersom de skulle flyttet i dag.
Søndagsaktivitet
- Er ute, på tur, ski, trening (62%)
- Venner, familie, besøk, middag (19%)
- Slapper av, ser på TV, leser (20%)
- Jobber i hage/hus (0%)
Hva er innbyggene mest stolt av i nabolaget?
Vennlig og hjelpsomme naboer
70%Av alle innbyggene beskriver naboene sine som vennlige og hjelpsomme.
All data er hentet fra Nordvikundersøkelsen gjennomført våren 2025 i samarbeid med Norstat.
Kristoffer Mjåtveit
Eiendomsmegler / Partner
St. Hanshaugen
Selge bolig?
Slik hjelper jeg deg til
et godt salg
Er du klar til budrunde?
Hva er din bolig verdt?
Maren Tostrup
Kontorsjef / Eiendomsmegler / Partner
St. Hanshaugen
Selge bolig?
Slik hjelper jeg deg til
et godt salg
Er du klar til budrunde?

























