Laster salgsoppgave...

Paal Bergs vei 131ABærum

Alle bilder (38)

1/38

Utvalgte bilder

Bærum
Paal Bergs vei 131A
Prisantydning
4 900 000,-
Totalpris
5 023 880,-
Felleskost/mnd
3 238,-
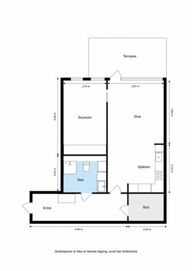
BRA-i
58 m2

ØVERST PÅ RYKKINN!

Moderne & ubrukt seniorleilighet fra 2020 - Solrikt beliggende med flott langstrakt utsikt mot fjorden - Heis og garasje

Lettstelt, moderne og ubrukt 2-roms seniorleilighet fra 2020, beliggende i rolige omgivelser nær marka. Arealeffektiv planløsning med god standard, romslig takhøyde, store vinduer og balansert ventilasjon. Vannbåren gulvvarme inkludert i felleskostnader gir lave strømutgifter. Sydvendt terrasse på 12 kvm, heis og garasjeplass. Forbeholdt beboere over 60 år for et sosialt og trygt naboskap. Høydepunkter: - Moderne og ubrukt 2-roms seniorleilighet fra 2020 - Arealeffektiv planløsning og god standard - Store vinduer, lysinnslipp og balansert ventilasjon - Vannbåren gulvvarme inkl. i felleskostnader - Sydvendt terrasse, heis og garasjeplass - Rolig beliggenhet nær marka - Forbeholdt beboere over 60 år, sosialt naboskap

Nøkkelinformasjon

Boligtype:
Selveierleilighet
Byggeår:
2020
Etasje:
3
Soverom:
1
Prisantydning:
4 900 000,-
Omkostninger:
123 880,-
Totalpris:
5 023 880,-
Felleskost/mnd:
3 238,-
Fellesformue:
35 943,-
Totalt BRA:
58 m2
Energimerking:
A - oransje
Garasje:
Ja
Heis:
Ja
Veranda:
Ja

Visninger

Alle våre visninger har påmelding. Passer ikke tidspunktet, send megler en e-post og avtal tid for privatvisning.

Har du finanseringsbevis på plass?

I samarbeid med

En personlig rådgiver fra vår samarbeidspartner Storebrand Bank vil hjelpe deg å gjøre deg klar til budrunden.


Trygg bolighandel med Nordvik

Forsikringer

Hos oss i Nordvik har vi for gode forsikringer til både deg som skal selge og deg som skal kjøpe.

Boligforsikring

Ingen kjenner nabolaget bedre!

Hva sier innbyggerne om Bærum?

Nordvikundersøkelsen gjør deg litt bedre kjent med området boligen ligger i, og får frem fakta, funn og innsikt som vi tror kan være nyttig ved valg av ny bolig.

Hele undersøkelsen finner du her.

Trivsel

96%

Vil bli boende i Bærum dersom de skulle flyttet.

Søndagsaktivitet

  • Er ute, på tur, ski, trening (74%)
  • Venner, familie, besøk, middag (12%)
  • Slapper av, ser på TV, leser (17%)
  • Jobber i hage/hus (17%)

Hva er innbyggene mest stolt av i nabolaget?

Vennlig og hjelpsomme naboer

76%

Av alle innbyggene beskriver naboene sine som vennlige og hjelpsomme.

All data er hentet fra Nordvikundersøkelsen gjennomført våren 2025 i samarbeid med Norstat.