Dælenenggata 3AGrünerløkka - Sofienberg

Alle bilder (21)

1/21

Utvalgte bilder

Grünerløkka - Sofienberg
Dælenenggata 3A
Prisantydning
4 300 000,-
Totalpris
4 315 008,-
Felleskost/mnd
3 160,-
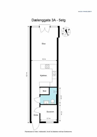
BRA-i
40 m2

CARL BERNER / RODELØKKA

Lys og lekker 2-roms i 5. etg. | Fransk balkong* og store vinduer | Heis | V.v./oppvarming inkl. | Lave omk.

Velkommen til en lys og tiltalende 2-roms med attraktiv beliggenhet på Rodeløkka/Grünerløkka, like ved Carl Berners plass. Leiligheten ligger høyt og fint i 5. etasje med heis, og har en meget arealeffektiv planløsning. Store vindusflater gir rikelig med naturlig lys, og fra stuen er det skyvedører for en fransk balkong (*disse skal kanskje fjernes). Boligen fremstår lys og pen med en-stavs parkett og lyse overflater. Kjøkken fra 2007 med integrerte hvitevarer, flislagt bad (2004) med opplegg for vaskemaskin og soverom med garderobeskap. Innvendig bod samt kjellerbod. Varmtvann og oppvarming via fjernvarme samt kabel-TV er inkludert. Velordnet borettslag med mulighet for leie av parkeringsplass. Kort vei til parker, restauranter, butikker og svært gode kollektivforbindelser.

Nøkkelinformasjon

Boligtype:
Andelsleilighet
Byggeår:
1955
Etasje:
5
Soverom:
1
Prisantydning:
4 300 000,-
Omkostninger:
1 380,-
Fellesgjeld:
13 628,-
Totalpris:
4 315 008,-
Felleskost/mnd:
3 160,-
Totalt BRA:
42 m2
Energimerking:
D
Heis:
Ja

Visninger

Alle våre visninger har påmelding. Passer ikke tidspunktet, send megler en e-post og avtal tid for privatvisning.

Har du finanseringsbevis på plass?

I samarbeid med

En personlig rådgiver fra vår samarbeidspartner Storebrand Bank vil hjelpe deg å gjøre deg klar til budrunden.


Trygg bolighandel med Nordvik

Forsikringer

Hos oss i Nordvik har vi for gode forsikringer til både deg som skal selge og deg som skal kjøpe.

Boligforsikring

Ingen kjenner nabolaget bedre!

Hva sier innbyggerne om Grünerløkka?

Nordvikundersøkelsen gjør deg litt bedre kjent med området boligen ligger i, og får frem fakta, funn og innsikt som vi tror kan være nyttig ved valg av ny bolig.

Hele undersøkelsen finner du her.

Trivsel

82%

Vil bli boende i bydelen dersom de skulle flyttet i dag.

Søndagsaktivitet

  • Er ute, på tur, ski, trening (53%)
  • Venner, familie, besøk, middag (26%)
  • Slapper av, ser på TV, leser (11%)
  • Jobber i hage/hus (5%)

Hva er innbyggene mest stolt av i nabolaget?

Vennlig og hjelpsomme naboer

69%

Av alle innbyggene beskriver naboene sine som vennlige og hjelpsomme.

All data er hentet fra Nordvikundersøkelsen gjennomført våren 2025 i samarbeid med Norstat.