Laster salgsoppgave...

Sørmarkkroken 18BÅsen/Hillevåg/Auglend

Alle bilder (42)

1/42

Utvalgte bilder

Åsen/Hillevåg/Auglend
Sørmarkkroken 18B
Prisantydning
8 750 000,-
Totalpris
8 970 130,-
Kommunale avg.
13 155,- per år
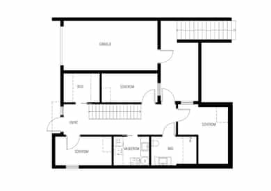
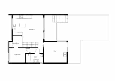
BRA-i
138 m2

Sørmarka

Rålekker og påkostet familiebolig fra 2024 med fire soverom, to bad, to stuer og solrike uteområder

Sørmarkkroken 18B er en moderne vertikaldelt tomannsbolig fra 2024 med gjennomtenkte løsninger og høy standard. Boligen fremstår som lys og innbydende, med en praktisk planløsning som gir god flyt mellom oppholdsrommene. Uteområdet er pent opparbeidet og byr på terrasse og hage med gode solforhold. Eiendommen ligger i et rolig og attraktivt boligområde, med kort vei til skoler, barnehager, nydelige turområder og kollektivtransport. - Moderne og påkostet tomannsbolig - Stor terrasse på ca. 45 kvm med gode solforhold - Gjennomgående høy standard og smakfulle materialvalg - Garasje med elbillader og romslig gårdsrom med gode parkeringsmuligheter - Fire soverom og to bad – ideelt for barnefamilier - Praktisk vaskerom og gode lagringsmuligheter - Gangavstand til flotte turområder i Sørmarka

Solforhold

Selger informerer om sol fra morning til 11:00 ca på fremside av huset, baksiden av huset (hage/terrassesiden) er det sol fra 12:00-21:00 avhengig av årstid.

Nøkkelinformasjon

Boligtype:
Tomannsbolig
Byggeår:
2024
Etasje:
2
Soverom:
4
Prisantydning:
8 750 000,-
Omkostninger:
220 130,-
Totalpris:
8 970 130,-
Kommunale avgifter:
13 155,- per år
Totalt BRA:
158 m2
Tomteareal:
368,2 m2 (eiet)
Energimerking:
B - gul
Garasje:
Ja
Veranda:
Ja

Visninger

Alle våre visninger har påmelding. På denne måten sikrer vi at megler har god oversikt og tid til å imøtekomme alle interessenter. Meld deg på visning ved å trykke på lenken visningspåmelding.

Har du finanseringsbevis på plass?

I samarbeid med

En personlig rådgiver fra vår samarbeidspartner Storebrand Bank vil hjelpe deg å gjøre deg klar til budrunden.


Trygg bolighandel med Nordvik

Forsikringer

Hos oss i Nordvik har vi for gode forsikringer til både deg som skal selge og deg som skal kjøpe.

Boligforsikring

Ingen kjenner nabolaget bedre!

Hva sier innbyggerne om Stavanger?

Nordvikundersøkelsen gjør deg litt bedre kjent med området boligen ligger i, og får frem fakta, funn og innsikt som vi tror kan være nyttig ved valg av ny bolig.

Hele undersøkelsen finner du her.

Trivsel

94%

Vil bli boende i Stavanger dersom de skulle flyttet.

Søndagsaktivitet

  • Er ute, på tur, ski, trening (70%)
  • Venner, familie, besøk, middag (13%)
  • Slapper av, ser på TV, leser (17%)
  • Jobber i hage/hus (14%)

Hva er innbyggene mest stolt av i nabolaget?

Vennlig og hjelpsomme naboer

76%

Av alle innbyggene beskriver naboene sine som vennlige og hjelpsomme.

All data er hentet fra Nordvikundersøkelsen gjennomført våren 2025 i samarbeid med Norstat.