Erling Skjalgssons gate 22A
- Erling Skjalgssons gate 22A
- Prisantydning
- 4 490 000,-
- Totalpris
- 4 634 867,-
- Felleskost/mnd
- 3 193,-
- BRA-i
- 28 m2
Frogner
Delikat 2-roms selveier m/ vestvendt balkong | Bad & kjøkken 2023 | Tilbaketrukket | VV & internett inkl.
Velkommen til Erling Skjalgssons gate 22A - En attraktiv 2-roms selveier beliggende i 3. etasje med heisadkomst. Boligen holder en moderne og gjennomført standard, og ble betydelig oppgradert i 2023 med blant annet et lekkert, rehabilitert bad, ny kjøkkeninnredning og nye gulv som gir et helhetlig uttrykk. Verdt å merke seg: - Beliggende i 3. etasje med heisadkomst - Meget populær og ettertraktet beliggenhet - Bad rehabilitert i 2023 med dokumentasjon - Ny kjøkkeninnredning i 2023 med integrerte hvitevarer - Nye gulv- og veggoverflater, samt listverk fra 2023 - Ny balkongdør fra 2023 - Generøs takhøyde på ca. 2,66m - Varmtvann og internett inkl. - Vender i sin helhet mot bakgård - Ekstern bod i kjeller
Solforhold
Selger opplyser om sol fra ca. 16:00 til 20:00 midtsommers. Illustrasjonsbilde av solforhold på sommerstid vedlagt i annonse. Legg merke til at dette kun er for illustrasjon.
Nøkkelinformasjon
- Boligtype:
- Selveierleilighet
- Byggeår:
- 1940
- Etasje:
- 3
- Soverom:
- 1
- Prisantydning:
- 4 490 000,-
- Omkostninger:
- 114 380,-
- Fellesgjeld:
- 30 487,-
- Totalpris:
- 4 634 867,-
- Felleskost/mnd:
- 3 193,-
- Fellesformue:
- 12 117,-
- Totalt BRA:
- 29 m2
- Energimerking:
- F - rød
- Heis:
- Ja
- Veranda:
- Ja
Visninger
Alle våre visninger har påmelding. Passer ikke tidspunktet, send megler en e-post og avtal tid for privatvisning.
Presenteres av
Har du finanseringsbevis på plass?
I samarbeid med
En personlig rådgiver fra vår samarbeidspartner Storebrand Bank vil hjelpe deg å gjøre deg klar til budrunden.

Nøkkelinformasjon
Oppdragsnummer
14-0700/25
Boligtype og eieform
Selveierleilighet (Eierseksjon)
Adresse og betegnelse
Erling Skjalgssons gate 22A, 0267 Oslo
Gnr. 212, bnr. 278, snr. 18 i Oslo kommune.
Selger(e)
Vemund Grini
Kjøpesum og omkostninger
4 490 000,- (Prisantydning) 30 487,- (Andel av fellesgjeld) -------------------------------------------------------- 4 520 487,- (Pris inkl. fellesgjeld) Omkostninger: 113 000,- (Dokumentavgift) 290,- (Pantattest kjøper) 545,- (Tinglyst pantedokument) 545,- (Tinglyst skjøte) 12 700,- (Boligkjøperpakke* (valgfritt)) -------------------------------------------------------- 114 380,- (Omkostninger totalt (uten Boligkjøperpakke)) 127 080,- (Omkostninger totalt (med Boligkjøperpakke)) -------------------------------------------------------- 4 634 867,- (Totalpris inkl. omkostninger (uten Boligkjøperpakke)) 4 647 567,- (Totalpris inkl. omkostninger (med Boligkjøperpakke)) -------------------------------------------------------- NB: Regnestykket forutsetter at det kun tinglyses ett pantedokument og at eiendommen selges til prisantydning. Dokumentavgiften er 2,5% av salgssummen, inkl. evt. fellesgjeld. Det tas forbehold om endringer i offentlige avgifter/gebyrer. Andel fellesgjeld / Andel formue overtas av kjøper.
Om boligen
Byggeår
1940
Etasje
3
Arealer
BRA-i: 28 kvm
BRA-e: 1 kvm
Totalt BRA: 29 kvm
TBA: 2 kvm
Beskrivelse:
Kjeller:
BRA-e: 1 kvm. Kjellerbod.
Totalt BRA: 1 kvm
3. etasje:
BRA-i: 28 kvm. Entré, bad, kjøkken/stue og soverom.
Totalt BRA: 28 kvm
TBA: 2 kvm. Balkong.
Fellearealer og rettigheter til bruk:
Det gjøres særskilt oppmerksom på at bod som er medtatt som BRA-e og i totalt BRA ligger på sameiets fellesareal, men disponeres av denne seksjonen. Sameiet kan på et senere tidspunkt omdisponere denne bruken.
Antall soverom
1
Solforhold
Selger opplyser om sol fra ca. 16:00 til 20:00 midtsommers. Illustrasjonsbilde av solforhold på sommerstid vedlagt i annonse. Legg merke til at dette kun er for illustrasjon.
Innhold
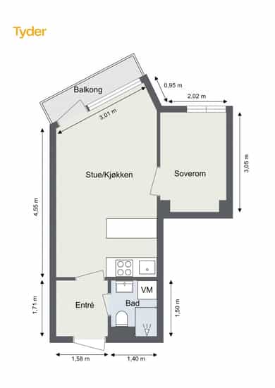
3. etasje, 28 m²: Entré, stue/kjøkken, bad og soverom. I tillegg disponeres ekstern bod i kjeller på ca. 1m². Entré: Velkommen inn! I leiligheten blir du møtt av en innbydende entré med belysning i himling. I entréen har du mulighet for oppbevaring av sko og oppheng av yttertøy. Stue: Stue i åpen løsning med kjøkken. Innvendige gulv er belagt med laminat, og vegger er sparklet/pusset og malt. Himlingen er pusset og malt. Himlingshøyde i stue/kjøkken er målt til ca. 2,66 m. I stuen er det plass til både spisebord, sofagruppe og tilhørende møblement. Kjøkken: Kjøkkeninnredningen var ny i 2023 og består av glatte fronter, kjøkkenøy. Laminat benkeplate med nedfelt kum. Grohe blandebatteri med uttrekkbart Grohe armatur. Integrerte hvitevarer som platetopp med integrert ventilator, stekeovn og kjøleskap. Automatisk vannstopper og komfyrvakt. Kjøkkeninnredning fra IKEA. Soverom: Delikat og romslig soverom, vendt mot rolige omgivelser. Plass til dobbeltseng og ønsket møblement. Innvendige overflater følger leilighetens øvrige standard med laminat på gulv, sparklet og malte vegger og malt himling. Det er friskluftsventil på yttervegg i soverom. Bad/WC: Badet er rehabilitert i 2023, og det foreligger FDV-dokumentasjon/sluttrapport for arbeidet. Flislagte overflater med lekre italienske fliser fra Imola Ceramica samt øvrig baderomsmøblement fra Viking Bad. Dusjnisje med innfellbare dører i herdet glass. Toppmatet vaskemaskin medfølger. Balkong: Fra stue er det adkomst til en herlig balkong på ca. 2 m². Balkongen kan skilte med svært gode solforhold og herlig kveldssol frem til ca. 20.30 midtsommers. Plass til et lite cafésett med to stoler og et mindre bord.
Standard
Overflater: Gulv: Laminat på innvendige gulvflater. Vegger: Sparklet og malte overflater på plater/murpuss samt pusset og malt. Himling: Pusset og malt. Sparklet og malte plater i bad Himlingshøyde i stue er målt til 2,66 meter. Tekniske innstallasjoner: - Avløpsrør i plast. - Ledningsnett for vann i rør i rør systemer med fordelerskap i bad. - Dreneringsrør fra fordelerskap med utløp i bad. - Leilighetens hovedstoppekraner for varmt- og kaldtvann er lokalisert i inspeksjonsluke i bad. - Automatisk vannstopper er montert i kjøkken. - Felles varmtvann i bygget. Ventilasjon: - Friskluftsventil på yttervegg i stue/ kjøkken og soverom. - Oppdriftsventilasjon med ventil i himlingen i bad. - Platetopp med intergrering ventilator. Elektrisk anlegg: - Sikringstavle med jordfeilautomater og automatsikring montert i felles gang. - Samsvarserklæring signert og datert 25.05.2023 er fremvist for følgende arbeider: Elektroinstallasjon på baderom iht. tilbud fra BOVG Bygg og Våtrom. - Samsvarserklæring signert og datert 03.08.2023 er fremvist for følgende arbeider: Ny kurs til stekeovn / monterer stikkontakt / ny kabel til platetoppen / montere og koble lysbryter. - Deler av anlegget er oppgradert i forbindelse med nytt kjøkken og bad. Anlegget er for øvrig av eldre ukjent alder. Boligen har fått følgende tilstandsgrader i tilstandsrapporten utarbeidet i forbindelse med salget: TG3 (Store eller alvorlige avvik) - 0 stykk. TG2 (Avvik som kan kreve tiltak) - 3 stykk. TG1 (Mindre eller moderate avvik) -15 stykk. TG0 - 0 stykk. Tilstandsrapport for boligen er vedlagt salgsoppgaven. Se denne for nærmere informasjon om tilstandsgrad. Følgende forhold er kommentert med TG2 (Avvik som kan kreve tiltak): TG2 - Innvendige dører - Profilerte innvendige dører til soverom og mellom entré og stue/kjøkken; disse er av eldre dato. TG2 - Ventilasjon - Det er ikke lenger avtrekksventil i kjøkkenet, noe som gir redusert luftsirkulasjon i leiligheten. TG2 - Elektrisk anlegg - Deler av anlegget er oppgradert i forbindelse med nytt kjøkken og bad, øvrige deler er av eldre, ukjent alder. Det foreligger ikke samsvarserklæring for hele anlegget.
Parkering
Sameiet disponerer ikke parkeringsplasser. Tidvis mulighet for leie i bakgård - Dayimyo AS er eier av plassene. Det er beboerparkering i området. Ved anskaffelse av beboerparkering kan man parkere døgnet rundt – også utover det som er maksimal parkeringstid - på parkeringsplasser regulert til beboerparkering. Priser for beboerparkering i bydel Frogner, St. Hanshaugen, Gamle Oslo, Grünerløkka og Sagene, parkeringssone A, B, C, D og E: Bensinbil, dieselbil, hybridbil, ladbar hybridbil: 6.200 kroner for ett år Motorsykkel og moped: 3.100 kroner for ett år El-bil : 2.090 kroner for ett år El-motorsykkel og el-moped: 1.045 kroner for ett år Det tas forbehold om prisendringer. For mer informasjon se: https://www.oslo.kommune.no/gate-transport-og-parkering/parkering/beboerparkering/.
Moderniseringer og påkostninger
- Bad totalrenovert i 2023 med full dokumentasjon (Bygg og våtrom AS).
- Kjøkken renovert i 2023 (IKEA).
- Nytt 1-stavs gulv samt listverk i 2023 (Raduta Bygg AS).
- Ny balkongdør og foringer rundt vinduet i stue i 2024 (Bygg og våtrom AS).
- Nytt elektrisk på kjøkken/stue (Norelco AS).
- Vegger renovert, sparklet og murt (BT Byggservice AS).
Faktura vedlagt kundeerklæringsskjema.
Modernisert/Påkostet år: 2024
Sammendrag selgers egenerklæringsskjema
Har du kjennskap til eiendommen? Svar: Ja. Har du brukt eller vedlikeholdt boligen siste 12 måneder? Svar: Ja. Er boligen forsikret med hus- eller annen bygningsforsikring? Svar: Ja. Polisenummer: SP511169.6.1 Forsikret i: IF skadeforsikring. 1. Vet du om det har blitt utført arbeid på bad/våtrom, enten i din eller tidligere eiertid? Svar: Ja, faglært. Firma og arbeid: Bovg Bygg og Våtrom AS - Bovg Bygg Og Våtrom As Arbeid med totalrenovering av bad mars/april/mai 2023. Badet ble totalrenovert i 2023. I forbindelse med dette fant BOVG en lekkasje i etasjen over, dette ble utbedret (nye rør og sluk på bad over ble lagt for å stoppe lekkasjen). 1.1 Vet du om tettesjikt, membran eller sluk ble fornyet eller oppgradert? Svar: Ja, faglært. Firma og arbeid: Bovg Bygg og Våtrom AS - Totalrenovering av bad. 1.2 Vet du om det finnes dokumentasjon på hvordan bad eller vaskerom er bygget opp? Svar: Ja, faglært. Firma: Bovg Bygg og Våtrom AS. 2. Vet du om det er gjort endringer eller reparasjoner på tak, fasade, pipe/ildsted, terrasse, garasje, bod eller lignende, enten i din eller tidligere eiertid? Svar: Nei. Eventuell kommentar: Gangene ble malt i 2023. 4. Vet du om det er gjort arbeid på det elektriske anlegget, enten i din eller tidligere eiertid? Svar: Ja. Firma og arbeid: Bovg Bygg Og Våtrom As. mars/april/mai 2023 Arbeid på det elektriske ifb. totalrenovasjon av bad NORELCO AS ELEKTRO ENTREPRENØR. Juni 2023 Elektrisitet stue/kjøkken. Komfyrvakt, nye stikk, ledninger. Foreligger det samsvarserklæring? Ja. 4.1 Vet du om det elektriske anlegget har blitt kontrollert? Svar: Ja. Kontroll utført: Jeg har ikke hatt el-kontroll i mitt eie. Men iht. Elvia har det blitt gjort en El-kontroll i 18.01.2023. 5. Vet du om det er gjort arbeid på vann og avløp, enten i din eller tidligere eiertid? Svar: Ja, faglært. Firmaets navn og beskrivelse av arbeidet: Bovg Bygg Og Våtrom As. mars/april/mai 2023: Avløp ifb. totalrenovering av bad. Det gikk også avløp fra kjøkken gjennom soverom, dette ble lagt til bad. 9. Vet du om det er gjort arbeid på eiendommen som ikke er nevnt i de andre spørsmålene? Svar: Ja, faglært. Firmaets navn og beskrivelse av arbeidet: Bovg Bygg Og Våtrom As. mars/april/mai 2023: Skifte av balkongdør + foringer rundt vindu i stue BT Byggservice AS mars/april/mai 2023: Renovering av vegger. Alle vegger ble sparklet og murt om der det var behov for å få slette vegger Det har også blitt byttet gulv, lister og kjøkken (dagens standard: Waterguard og komfyrvakt). 11. Vet du om det er eller har vært feil ved bad/vaskerommet, f.eks sprekker, lekkasje, råte, lukt eller soppskader? Svar: Ja. Beskriv: Ja, lekkasje i bad i leiligheten over. Dette ble utbedret da badet ble totalrenovert i 2023. 23. Vet du om det er utført tidligere arealoppmålinger av boligen, eller om boligens areal er oppgitt i dokumenter som salgsoppgave, takstrapport, tilstandsrapport, byggesøknad eller lignende? Svar: Ja. Hvilket dokument og når er målingen foretatt? Salgsoppgave da jeg kjøpte boligen. Her var det tilstandsrapport med oppmåling. Fullstendig egenerklæringsskjema er vedlagt salgsoppgaven.
Bygningssakkyndig
Matias Holter Løberg
Byggemåte
Utvendige bygningsdeler: - Grunnmur betong. - Yttervegger i murverk med pusset og malte overflater. - Yttertak i trekonstruksjon, tekket med takpapp/folie. Innvendige bygningsdeler: - Felles trapper i betong. - Etasjeskiller i betong. - Dørcalling. Dører og vinduer: - Vindu med tolags isolerglass i soverom, produsert i 2006. - Vindu med tolags isolerglass i stue/ kjøkken, uten synlig datomerking. - Entrédør i brannklasse B-30 med 35 desibel lydmotstand. - Balkongdør med tolags isolerglass, produsert i 2023. - Glatt innvendig dør til bad. - Profilerte innvendige dører til soverom og mellom entre og stue/ kjøkken.
Innbo og løsøre
Integrerte hvitevarer medfølger.
Vedlagt salgsoppgaven følger NEF sin standardliste "Oversikt over løsøre og tilbehør". Med mindre annet fremkommer av salgsoppgaven gjelder denne listen.
Dersom det er noe i overnevnte liste som ikke finnes på eiendommen, vil det heller ikke medfølge. Produkter og installasjoner som medfølger overdras uten noen form for garantier, utover eventuell gjenværende leverandørgaranti. Hull og merker etter feste av innredning og utstyr som ikke følger med, aksepteres av kjøper.
- Lampe over sofaseksjon medfølger ikke.
- Lampe på soverom medfølger ikke.
- Klappbord medfølger.
- Toppmatet vaskemaskin medfølger.
Adgang til utleie
Sameiets styre skal underrettes om alle overdragelser og leieforhold. Ved utleie skal seksjonseier orientere leietaker om sameiets vedtekter og husordensregler. Ved utleie skal seksjonseier føre oversikt over hvilke nøkler som er utlevert, til hvem de er utlevert, innhente skriftlig kvittering fra den som mottar nøkkelen, og sørge for at nøklene blir tilbakelevert ved opphør av leieforholdet. Boligen kan leies ut i tråd med gjeldende lovverk. I henhold til sameiets vedtekter må leietaker godkjennes av styret ved utleie av boligen. Kjøper bærer risikoen for at ønsket leietaker godkjennes. Godkjenning kan kun nektes dersom det foreligger saklig grunn. Korttidsutleie er tillatt i opptil 90 døgn i året, jf. eierseksjonsloven § 24. Grensen på 90 døgn kan fravikes i vedtektene, men må settes til mellom 60 og 120 døgn. Med korttidsutleie menes utleie i inntil 30 døgn sammenhengende.
Energi og oppvarming
Energimerking
F - rød
Alle eiendommer som selges/leies ut skal ha energiattest. Unntak gjelder blant annet for frittstående bygninger med bruksareal mindre enn 50 m². Det er eier som plikter å fremlegge energiattest og er selv ansvarlig for at opplysningene er riktig.
Energiattest er basert på nåværende eiers/ husstands senere års forbruk og utgifter. Dette vil kunne variere avhengig av antall familiemedlemmer i husstanden, ønsket innetemperatur, egne fordelsavtale mv. Megler har intet ansvar for informasjon som fremgår av energiattesten.
Oppvarming
Varmekabler i bad. Selger har benyttet frittstående elektrisk varmeovn.
Informasjon om strømforbruk
Selger opplyser om strømkostnader mellom ca. 500-700 kr hver måned. Han har hatt avtale om Norgespris. Strømavtale for eiendommen kan opprettes her (Ishavskraft): https://form.typeform.com/to/euUF2JJe?typeform-source=www.ishavskraft.no#source=agioforvaltning&utm_source=ishavskraft.no&produkt=Ishavsspot
Økonomi
Felleskostnader
Kr. 3 193,- pr. mnd
Inkluderer: Felleskostnader inkluderer: Varmtvann, internett fra GlobalConnect, leie av bod, trappevask, vaktmestertjenester, felles bygningsforsikring, drift og vedlikehold, forretningsførsel, kommunale avgifter m.m.
Fellesutgifter er opplyst pr. mnd.:
Avdrag: 641,00
Renter: 199,00
Internett: 169,00
Andel felleskostnader: 2 184,00
Totale fellesutgifter pr. mnd.: 3 193,00
Felleskostnadene kan bli besluttet økt etter utarbeidelse av salgsoppgaven.
Eiendomsskatt
Eiendommen har ikke vært ilagt eiendomsskatt i 2024.
Formuesverdi
Primærbolig: Kr. 1 051 186,- pr. 2023
Sekundærbolig: Kr. 4 204 745,- pr. 2023
Skatteetaten beregner en boligverdi (beregnet markedsverdi for bolig) basert på SSBs statistiske opplysninger om omsatte boliger. I beregningen tas det hensyn til din boligs beliggenhet, areal, byggeår og type bolig. Formuesverdien er en prosentandeldel av denne boligverdien.
For mer informasjon om formuesverdi, se Skatteetatens nettsider.
Sameiet
Om sameiet
Sameiets navn er Sameiet Erling Skjalgssonsgate. 22 (organisasjonsnr: 988 117 730), og har gårdsnummer 212 og bruksnummer 278 i Oslo kommune. Sameiet ble opprettet ved seksjoneringsbegjæring tinglyst 20.06.2003. Sameiet består av 40 boligseksjoner og 2 næringsseksjon. Forretningsførselen er i 2023 utført av Agio Forvaltning AS i henhold til kontrakt. Sameiets revisor for regnskapet 2023 er Alfa Revisjon AS. Hva skjer i sameiet/styreleder forteller: I perioden 2016 – 2021 er det blant annet utført følgende større oppgaver: - Reparasjon og maling av utvendige fasader. - Reparasjon av flater og maling i innvendige fellesarealer. - Utskifting av heis. - Lagt nytt gulvbelegg i korridorene i hver etasje. - Reparert skader på tak som representerte risiko for lekkasje. - Innsetting av ekstra ventil i alle seksjonene for å redusere risiko for kondens og fuktskader. - Lagt inn «strømpe» i avløpsrør (stikkledning). Løpende vedlikehold må påregnes. Gården er eldre og sameierne må forvente at det til tider vil påløpe kostnader for å holde gården i god stand.
Forretningsfører
Agio Forvaltning AS
Forkjøpsrett
Det praktiseres ikke forkjøpsrett.
Styregodkjennelse
Overdragelsen av boligen til ny seksjonseier må godkjennes av styret. Eiendomsmegler bistår med innsending av styregodkjennelse, men det er kjøper som bærer risikoen for at overdragelsen godkjennes. Styret kan bare nekte godkjenning dersom det foreligger en saklig grunn. Forholdene som er nevnt i eierseksjonsloven § 6 om diskriminering, er aldri en saklig grunn til å nekte godkjenning. Eventuelle merkostnader som pådras i forbindelse med styregodkjennelsen er kjøpers ansvar.
Informasjon om fellesgjeld
Andel fellesgjeld: Kr. 30 487,- pr. 24.11.2025
Avdrag: Kr. 641,-Rentekostnader: Kr. 199,-
Beskrivelse: 2240 - Lån 1636.52.13686 - Dnb
Geldende rente: 6,65%
Registrert lånesaldo på leiligheten: 30 486,51
Lånetype: Annuitetslån
Årlige terminer: 12
Registrert utløpsdato: 30.04.2029
Lånets saldo: 848 697,86
Under "Om sameiet" ser du hvilke arbeider som har forårsaket fellesgjelden.
Se punkt "Lånebetingelser fellesgjeld" for mer info.
Fellesgjelden kan bli besluttet økt etter utarbeidelse av salgsoppgaven.
Fellesformue
Kr. 12 117,- pr. 31.12.2024
Regnskap/budsjett/Kostnadsøkninger
Regnskapet for år 2024 viser et overskudd på kr 479 888,-. Styret anbefaler at hele overskuddet overføres til et vedlikeholdsfond. Styret anser det som viktig å begynne tidlig å avsette midler til vedlikehold. Styret bekrefter at årsregnskapet gir et rettvisende bilde av stilling og resultat. Budsjettet for år 2025 viser et forventet overskudd på kr 66 143,-. Forøvrig vises det til de enkelte tall i budsjettet. Sammendrag av regnskap/budsjett for Sameiet Erling Skjalgssons gate 22 (2025): 1. Inntekter Fellesutgifter: 1 164 618 kr Andre inntekter: 631 230 kr Sum driftsinntekter: 1 795 848 kr 2. Kostnader Honorar, lønn og personalkostnader: 85 575 kr Driftskostnader: 1 344 546 kr Sum kostnader: 1 430 121 kr Dette gir et driftsresultat på 365 727 kr. 3. Finansposter Finansinntekter: 4 519 kr Finanskostnader (renter): 71 742 kr Netto finans: –67 223 kr Resultat før lån: 298 505 kr 4. Lån Årlige avdrag: 232 362 kr Resultat etter avdrag: 66 143 kr Dette betyr at sameiet fortsatt går i pluss selv etter nedbetaling av gjeld. 5. Viktige endringer/kostnadsdrivere i budsjettet Noen poster er markant høyere i 2025: - Reparasjon og vedlikehold bygninger: økt til 400 000 kr, hovedsakelig pga. vedlikehold av balkonger/takterrasser i 6. etasje. - Renovasjon/vann/avløp: øker til 317 999 kr - Forsikringspremie: øker til 176 551 kr på grunn av ny avtale med Gjensidige - Kabel-TV og internett: 105 311 kr Andre poster er stabile eller uendret. 6. Felleskostnader Felleskostnadene økes med 5 %. Total sum felleskostnader øker fra 1 109 160 kr ? 1 164 618 kr. 7. Lån og fellesgjeld Restlån per 01.01: 1 133 063 kr Rente: 6,90 % Totale lånekostnader (rente + avdrag): 304 104 kr i 2025 Kort oppsummert: - Sameiet budsjetterer for et positivt resultat på 66 143 kr etter at avdrag er betalt. - Den største kostnadsøkningen gjelder vedlikehold av balkonger/takterrasser. - Felleskostnadene økes med 5 % for å dekke økte drifts- og vedlikeholdsutgifter. - Økonomien anses som sunn med positivt overskudd. Boligselskapets budsjett og regnskap ligger vedlagt i salgsoppgaven.
Vedtekter og husordensregler
Sameiets vedtekter og husordensregler er vedlagt.
Beboernes forpliktelser og dugnader
Dugnad må påregnes.
Dyrehold
Dyrehold er tillatt så lenge det ikke medfører urimelig sjenanse for naboer. På sameiets eiendom er det båndtvang hele året.
Sameiets forsikring
IF Skadeforsinkring
Polisenr. SP511169.6.1
Tomt
Beskrivelse av tomt
Tomtestørrelse: 482 kvm (eiet)
Tomten er fellesareal. At tomten er fellesareal innebærer at sameiet eier og disponerer over de aktuelle områdene i fellesskap. Dette gir ikke hver enkelt seksjon en eksklusiv rett til bruk eller å disponere arealene, med mindre annet er uttrykkelig avtalt i avtale eller at det følger av vedtektene.
Adkomst
Se vedlagt kartskisse i annonsen. Ved å trykke på kartet får du enkelt tilgang til en spesifisert reiserute fra din startdestinasjon til boligen. På visningsdagen vil det bli skiltet med Nordvik Eiendomsmegling visningsskilt. Velkommen til visning!
Radonmåling
Selger har ikke utført radonmåling - det er ikke relevant da leiligheten ligger minimum 3. etasjer over bakkenivå. Det er heller ikke krav om dette med mindre boligen er helt eller delvis utleid.
Områdebeskrivelse
Beskrivelse av nærområdet
Leiligheten ligger i et veletablert og attraktivt boligområde på Frogner. Perfekt for deg som har en travel hverdag, men som ønsker å bo tilbaketrukket på Frogner med nærhet til "alt". Fra eiendommen er det umiddelbar nærhet til Frognerveien og Bygdøy Allé, kjent for sine mange flotte spesialforretninger spesielt innenfor mote, interiør og mat. Dagligvarehandelen kan gjøres ved bl.a. Joker Bygdøy allé, Coop Prix Bygdøy allé og Kiwi. I umiddelbar nærhet finner du også fisk og viltbutikken Fjeldberg, osteforretningen Frogner Special, samt grønsakshandleren Skafferiet. Videre har man restaurantene Enoteca, Village Tandoori samt klassikeren Restaurant Feinschmecker rett "rundt hjørnet". Vinmonopolet i Elisenbergveien er kjent for god produktkjennskap. Kort vei til Gimle kino, en liten og tradisjonsrik kino i Bygdøy Allé 39. Kinoen er kjent for kunst- og kvalitetsfilmer helt siden den åpnet i 1939. Her får man god service og komfort med øl-/ og vinservering i foajeen. Skøyen med Karenslyst Allé, Vika og Aker brygge ligger også i nærheten. Meget gode kollektivtilbud med både trikk- og bussforbindelser like i nærheten. Det er gangavstand til flere flotte parker med store grøntområder og fine turstier, bl.a. Frognerparken. Her finnes også skulpturanlegget Vigelandsparken, Oslo Bymuseum, Frognerbadet, stort tennisanlegg og Frogner stadion. Om vinteren er det skøytebane her. Det er også fine tur- og sykkelmuligheter i nærområdet, f.eks. langs Frognerkilen og ut til Bygdøy, eller til Tjuvholmen med pulserende byliv, spennende gallerier og Tjuvholmen sjøbad med bystrand, gressplen for soling etc. Det er også nærhet til flere treningssentre og med t-banen er det kort avstand til marka med nydelig turterreng, både sommer og vinter. Fra Rådhuset kan du ta båten ut til Bygdøy hvor det også er flotte badestrender som Huk, Paradisbukta og Bygdøy Sjøbad. Området har med andre ord det meste av det beste Oslo kan by på like i nærheten! Eiendommen har gangavstand til Uranienborg barne- og ungdomsskole samt Høyskolen i Oslo og Blindern. Det er et godt utvalg av både private og kommunale barnehager. Bjørknes Private Gymnas, Oslo Handelsgymnas og Majorstuen Skole ligger også i nærheten.
Skoler og barnehager
Se Nabolagsprofil vedlagt salgsoppgaven.
Offentlige forhold
Ferdigattest / brukstillatelse
Det foreligger ekspedisjonsdokument attestert 22.04.1942. Ekspedisjonsdokument er forgjengeren til ferdigattest. Ekspedisjonsdokumentet er ferdig attestert, og dokumenterer at bygget er registrert lovlig oppført. At ekspedisjonsdokument eksisterer, gir ingen garanti for bygget er oppført i henhold til tillatelsen og gjeldende regelverk eller at det senere er utført arbeid på bygget som ikke er byggemeldt eller godkjent. Det foreligger ferdigattest for utskiftning av heis datert 05.11.2020. Ferdigattest utstedes av bygningsmyndighetene på grunnlag av mottatt dokumentasjon fra kontrollansvarlige når et søknadspliktig tiltak er utført i samsvar med tillatelsen og øvrige krav etter plan- og bygningslovgivningen. At ferdigattest eksisterer, gir ingen garanti for bygget er oppført i henhold til tillatelsen og gjeldende regelverk eller at det senere er utført arbeid på bygget som ikke er byggemeldt eller godkjent. Det er avvik fra dagens rombruk/rombenevnelser sammenlignet med det som er byggemeldt/godkjent iht. takst. Det er registrert følgende avvik fra godkjente og byggemeldte tegninger: - Kjøkken er i etterkant flyttet til stue. - Det er etablert soverom i tidligere kjøkken. Tiltaket om etablering/flytting av kjøkken er i utgangspunktet ikke søknadspliktig, men det stilles tekniske krav til ventilasjonen i rommet når du bygger kjøkken i et nytt rom. Det er usikkert om kravene til ventilasjon er oppfylt. Kjøper oppfordres særskilt til å undersøke godkjente byggetegninger og sette seg inn i avvik fra disse. Det er ukjent for megler hvilke tiltak som er gjort i forbindelse med at kjøkkenet ble flyttet. Kjøper bærer selv risikoen for fremtidig bruk av rommene og for eventuelle pålegg fra det offentlige. Dette omfatter også risikoen for om søknad om bruksendring godkjennes og alle kostnader i den forbindelse.
Vei, vann og avløp
Eiendommen er tilknyttet offentlig vann og avløp. Stikkledninger fra eiendommen og ut til kommunalt nett er private, vedlikeholdsansvaret påhviler sameieteierborettslagetboligaksjeselskapet. Adkomst via offentlig vei.
Regulerings- og arealplaner
Eiendommen er avsatt til hovedformål byggeområde for boliger, nåværende i kommuneplan 2015 - Oslo mot 2030, vedtatt 23.09.2015. Eiendommen er regulert til underformål Bolig m. tilh.anlegg i reguleringsplan, S-2255, vedtatt 28.07.1977. Ny kommuneplan fra 23. september 2015: Oslo kommune har vedtatt ny kommuneplan som får betydning for en rekke av de vedtatte reguleringsplanene i kommunen. Eiendommen er oppført på Byantikvarens Gule liste. Dette kan medføre at endringer av bygningen må godkjennes av byantikvaren samt kommunen før igangsetting. Plan-/byggesaker i nærområdet: Reguleringssak - Saksnummer: 202114191 - Elisenbergløkken - Detaljregulering Beskrivelse: Hensikten med planarbeidet er å lage en detaljregulering som ivaretar kulturmiljøverdiene i enkelteiendommer og i området som helhet. Reguleringssak - Saksnummer: 202302013 - Kristinelundveien - Halvdan Svartes gate mfl. - Detaljregulering Beskrivelse: "Reguleringsplanen oppdateres for å sikre og bevare de særpregede verdiene i dette området". Byggesak - Saksnummer: 202306738 - Erling Skjalgssons gate 22 A - Utskifting av sluk - H0406 Status: Tillatelse gitt Byggesak - Saksnummer: 202017818 - Erling Skjalgssons gate 20 A - Installasjon av ventilasjonsanlegg Status: Rammetillatelse gitt Byggesak - Saksnummer: 201512122 - Nobels gate 21 - Oppføring av bod i bakgård Status: Tillatelse gitt Byggesak - Saksnummer: 202304481 - Nobels gate 21 - Bruksendring til bolig og sammenslåing Status: Mottatt søknad om igangsettingstillatelse Byggesak - Saksnummer: 201920081 - Erling Skjalgssons gate 24 A-B - Bruksendring av loft til tre boliger og fasadeendring Status: Igangsettingstillatelse gitt Byggesak - Saksnummer: 201006552 - Bygdøy allé 67 A - Utbygging av loft Status: Igangsettingstillatelse gitt Byggesak - Saksnummer: 201615308 - Bygdøy allé 64 A - Bruksendring av loft fra tilleggsdel til hoveddel - H0501 (seksjon 14) Status: Tillatelse gitt Byggesak - Saksnummer: 202107606 - Bygdøy allé 68 - Utskifting av heis - Løpenummer 1562 Status: Tillatelse gitt For mer informasjon om eventuelle arbeider/prosjekter i nærliggende områder anbefaler vi et søk på Oslo kommunes portal for saksinnsyn: https://www.oslo.kommune.no/plan-bygg-og-eiendom/
Tinglyste heftelser og forpliktelser
På eiendommen er det tinglyst følgende heftelser og rettigheter som følger eiendommens matrikkel ved overskjøting til ny hjemmelshaver: 301/212/278/37: 22.11.1898 - Dokumentnr: 903184 - Bestemmelse om bebyggelse Bestemmelse om benyttelse Overført fra: Knr:0301 Gnr:212 Bnr:278 Snr:1 Gjelder denne registerenheten med flere 27.10.1939 - Dokumentnr: 305921 - Erklæring/avtale ang. drenering Overført fra: Knr:0301 Gnr:212 Bnr:278 Snr:1 Gjelder denne registerenheten med flere 24.01.1940 - Dokumentnr: 300316 - Best. om vann/kloakkledn. Overført fra: Knr:0301 Gnr:212 Bnr:278 Snr:1 Gjelder denne registerenheten med flere 10.02.1940 - Dokumentnr: 300559 - Best. om vann/kloakkledn. Overført fra: Knr:0301 Gnr:212 Bnr:278 Snr:1 Gjelder denne registerenheten med flere 20.06.2003 - Dokumentnr: 37257 - Erklæring/avtale Denne seksjon har tilleggsdel - bygning. Overført fra: Knr:0301 Gnr:212 Bnr:278 Snr:1 Gjelder denne registerenheten med flere 12.03.2004 - Dokumentnr: 17621 - Erklæring/avtale Denne seksjon har tilleggsdel - bygning. Gjelder denne registerenheten med flere 12.03.2004 - Dokumentnr: 17621 - Resek/deling av seksjon Seksjon som deles: Snr: 1 Formål: Samleseksjon bolig Sameiebrøk: 1465/2184 Ny seksjon: Snr: 37 Formål: Bolig Sameiebrøk: 41/2184 Bestemmelser om tilleggsdel, se under servitutter. Gjelder seksjon nr. 1,3 - 42 08.11.2004 - Dokumentnr: 76552 - Resek/sammenslåing Sammenslått til: Snr: 37 Formål: Bolig Sameiebrøk: 78/2184 Sammenslåing av: Snr: 37 Formål: Bolig Sameiebrøk: 41/2184 Sammenslåing av: Snr: 41 Formål: Bolig Sameiebrøk: 37/2184 09.09.2011 - Dokumentnr: 720687 - Resek/endring formål/brøk/tilleggsdel Endret seksjon: Snr: 37 Formål: Bolig Tilleggsdel: Bygning Sameiebrøk: 78/2184 02.08.2017 - Dokumentnr: 832450 - Reseksjonering Snr: 37 Formål: Bolig Tilleggsdel: Bygning Sameiebrøk: 78/2265 Seksjon opprettet fra fellesareal Endring av formål Endring av sameiebrøk
Legalpant
Kommunen har legalpant som sikkerhet for riktig betaling av kommunale avgifter og eventuell eiendomsskatt. De øvrige seksjonseierne i sameiet har legalpant på inntil 2G som sikkerhet for krav som følger av sameieforholdet, typisk vil dette gjelde felleskostnader. Legalpant er pant som ikke kommer frem av grunnboksutskriften, og har bedre prioritet enn for eksempel lån til bank som er tinglyst på seksjonen. Legalpant til kommunen har prioritet foran legalpant til sameiet.
Øvrige kjøpsforhold
Diverse
Det opplyses om at ingen kan eie mer enn to boligseksjoner i sameiet, jf. eierseksjonsloven § 23. Seksjoner som eies av nærstående eller via firma teller med. Etter lov om eierseksjoner § 31, er sameierne overfor sameiets kreditorer ansvarlige etter sin sameiebrøk. Ved manglende betaling av fellesutgifter har sameiet legalpanterett i den enkelte eierseksjon på inntil 2 ganger folketrygdens grunnbeløp. Kjøper og selger er forpliktet til å undertegne standard kjøpekontrakt utarbeidet av Nordvik i forbindelse med eiendomstransaksjonen. Kjøpekontrakt kan besiktiges hos eiendomsmegler før bud inngis. Kontakt eiendomsmegler for spørsmål. Selger leverer eiendommen i ryddig og rengjort stand.
Overtagelse
Overtakelse skjer etter avtale med selger. Før boligen overleveres kjøper, skal fullt oppgjør og omkostninger være mottatt på meglers klientkonto.
Sentrale lover
Eiendommen selges etter reglene i avhendingsloven. Generelle bestemmelser: Alle innvendige og utvendige arealangivelser, samt beskrivelser av bygningen er hentet fra vedlagte tilstandsrapport/boligsalgsrapport. Salgsoppgaven er basert på de opplysningene selger har gitt til megler, den bygningssakkyndiges tilstandsrapport, samt opplysninger innhentet fra kommunen, Kartverket og andre tilgjengelige kilder. Det er viktig at kjøper setter seg grundig inn i alle salgsdokumentene, herunder salgsoppgave, tilstandsrapport og selgers egenerklæring. Kjøper anses kjent med forhold som er tydelig beskrevet i salgsdokumentene, og slike forhold kan ikke påberopes som mangler. Dette gjelder uavhengig av om kjøper har lest dokumentene. Det kan være avvik fra dagens rombruk/rombenevnelser sammenlignet med det som er byggemeldt/godkjent. Alle interessenter oppfordres til å undersøke eiendommen nøye, gjerne sammen med fagkyndig før bud inngis. Kjøper som velger å kjøpe usett kan ikke gjøre gjeldende som mangel noe han burde blitt kjent med ved undersøkelsen. Dersom det er behov for avklaringer, anbefaler vi at interessenter rådfører seg med eiendomsmegler eller egne rådgivere før det legges inn bud. En bolig som har blitt brukt i en viss tid, har vanligvis blitt utsatt for slitasje og skader kan ha oppstått. Slik bruksslitasje må kjøper regne med, og det kan avdekkes enkelte forhold etter overtakelse som nødvendiggjør utbedringer. Normal slitasje og skader som nødvendiggjør utbedring, er innenfor hva kjøper må forvente og vil ikke utgjøre en mangel. Kjøper og selgers rettigheter og plikter reguleres av avtalen mellom partene, samt informasjonen som har vært tilgjengelig for kjøperen i forbindelse med handelen. Avtalen utfylles av avhendingsloven, og det gjelder ulike avtalevilkår avhengig av om kjøper er forbrukerkjøper eller ikke. Dette er nærmere beskrevet nedenfor. På grunn av ulike avtalevilkår kan selger vurdere bud fra en som ikke er forbruker, ulikt fra en forbrukers bud. Dersom kjøper ikke er forbruker, er selger sitt mulige mangelsansvar begrenset fordi eiendommen selges "som den er". Selger kan ikke ta «som den er» forbehold ovenfor en forbrukerkjøper. Selv et lavere bud fra en som ikke er forbruker kan foretrekkes fordi begrensningen i mulig mangelsansvar kan ha egenverdi for selger. Selger står fritt til å forkaste eller akseptere ethvert bud, og er for eksempel ikke forpliktet til å akseptere høyeste bud. Budgiver skal i budskjema avgi egenerklæring om budgiver er forbruker eller næringsdrivende/ person som hovedsakelig handler som ledd i næringsvirksomhet. Budgivere får informasjon dersom andre bud er inngitt av en som ikke er forbruker. Forbrukerkjøp - definisjon: Med forbrukerkjøp menes kjøp av eiendom når kjøperen er en fysisk person som ikke hovedsakelig handler som ledd i næringsvirksomhet. Forbruker – avtalevilkår: Eiendommen har en mangel dersom den ikke er i samsvar med kravene som følger av avtalen, eller det foreligger brudd på bestemmelsene i avhendingsloven §§ 3-2 til 3-8. Hvis eiendommen ikke er i samsvar med det kjøperen må kunne forvente ut ifra alder, type og synlig tilstand, kan det være grunnlag for mangelskrav. Det samme gjelder hvis det er holdt tilbake eller gitt uriktige opplysninger om eiendommen. Dette gjelder likevel bare dersom man kan gå ut ifra at det virket inn på avtalen at opplysningen ikke ble gitt eller at feil uriktige opplysninger ikke blir rettet i tide på en tydelig måte. Boligen kan ha en mangel etter avhendingsloven § 3-3 dersom det er avvik mellom opplyst og faktisk innvendig areal, forutsatt at avviket er på 2% eller mer og minimum 1 kvm. Ved beregning av et eventuelt prisavslag eller erstatning må kjøper selv dekke tap/kostnader opptil et beløp på kr 10 000 (egenandel). Ikke-forbruker (næringsdrivende) – definisjon: Hvis kjøper er en juridisk person, eller en fysisk person som hovedsakelig handler som ledd i næringsvirksomhet, vil kjøpet ikke anses som et forbrukerkjøp. Ikke-forbruker – avtalevilkår: Eiendommen har en mangel dersom den ikke er i samsvar med kravene som følger av avtalen. Eiendommen selges «som den er», og selgers ansvar utover det konkret avtalte er da begrenset etter avhendingsloven § 3-9, første ledd andre setning. Avhendingsloven § 3-3 andre ledd fravikes, og hvorvidt boligens arealsvikt utgjør en mangel vurderes etter avhendingsloven § 3-8. Informasjon om kjøpers undersøkelsesplikt, herunder oppfordringen om å undersøke eiendommen nøye, gjelder også for kjøpere som ikke anses som forbrukere.
Boligselgerforsikring
Selger har tegnet boligselgerforsikring. Se selgers egenerklæringsskjema vedlagt salgsoppgaven.
Boligkjøperforsikring
I samarbeid med Storebrand og HELP tilbyr Nordvik Boligkjøperpakke til våre boligkjøpere. Boligkjøperpakken er et gunstig forsikringskonsept som inneholder alle de forsikringene du trenger til den nye boligen din. Boligkjøperpakke Leilighet inneholder: Boligkjøperforsikring fra HELP, flytteforsikring og innboforsikring Super. Boligkjøperforsikring er en rettshjelpsforsikring som gir trygghet og profesjonell juridisk hjelp dersom det oppdages uventede feil eller mangler ved boligen. Forsikringen gjelder i 5 år fra overtakelsen. Flytteforsikring dekker skade på eiendeler under flytting ved plutselig og uforutsett hendelse som oppstår under transport eller i forbindelse med bæring mellom bolig, bil eller lagringssted. Forsikringen varer i 1 år fra budaksept. Innboforsikring Super dekker tingene dine ved blant annet tyveri, brann eller vannskader. Vår beste innboforsikring Super inkluderer blant annet uflaksforsikring, bistand ved ID-tyveri og psykologhjelp ved alvorlige hendelser hjemme. Forsikringen gjelder i 3 måneder fra overtakelsesdatoen av ny bolig. Velger du Boligkjøperpakke Leilighet+ får du i tillegg renteforsikring: Renteforsikringen kan hjelpe deg med rentekostnaden og forsikringspremien på din primærbolig som skal selges, hvis salgsprosessen fører til at du må betale rentekostnader på to lån. Forsikringen gjelder i 9 måneder (3 måneder karenstid) og dekker inntil 15 000 kroner i måneden. Boligkjøperforsikring fra HELP kan også kjøpes separat og inkluderer da flytteforsikring fra Storebrand. Boligkjøperpakke/Boligkjøperforsikring må tegnes senest ved kontraktsignering og gjelder fra overtakelsen. Kjøper blir kontaktet av Storebrand med et tilbud på videre forsikring av innbo. Se pris og mer informasjon om forsikringene i produktarket vedlagt salgsoppgaven, eller ta kontakt med megler.
Betalingsbetingelser
Oppgjør skal betales i en samlet innbetaling fra norsk bank. Betaling fra utlandet tillates kun i unntakstilfeller og dersom det er avklart med megler i anledning avtaleinngåelse (budaksept).
Viktig informasjon om budgivning
Alle bud skal inngis skriftlig til megler, som formidler disse videre til selger. Kravet til skriftlighet gjelder også budforhøyelser og motbud, aksept eller avslag fra selger. Bud kan legges inn på eiendommens finn-annonse ved å trykke på knappen «gi bud» eller via vår hjemmeside. Bud kan legges inn på eiendommens annonse på hjem.no/finn.no ved å trykke på knappen «gi bud» eller via vår hjemmeside. Ved elektronisk budgivning legges bud inn ved å benytte BankID. Bud kan også inngis på budskjema vedlagt i salgsoppgaven. Før megler formidler bud til selger, skal megler innhente gyldig legitimasjon og signatur fra budgiver. Kravet til legitimasjon og signatur er oppfylt for budgivere som benytter e-signatur, eksempelvis BankID eller MinID. Senere bud kan inngis per e-post eller SMS til megler. Dersom budgiver skal by på eiendommen i henhold til kjøpsfullmakt må megler kontaktes i forkant av budgivning. Ved bruk av kjøpsfullmakt, må fullmakten oversendes til megler i forkant av budgivning. Kjøper kan ikke kreve at eiendommen tinglyses på andre enn kjøper. Om kjøper ønsker at noen andre skal stå som hjemmelshaver, må det tas forbehold om dette i budet. Selger kan velge å ikke akseptere dette. Et bud bør inneholde eiendommens adresse (eventuelt gnr/bnr), kjøpesum, budgivers kontaktinformasjon, finansieringsplan, akseptfrist, overtakelsesdato og eventuelle forbehold som for eksempel usikker finansiering, salg av nåværende bolig ol. Normalt vil ikke et bud med forbehold bli akseptert før forbeholdet er avklart. Konferer gjerne med megler før bud avgis. Megler skal legge til rette for en forsvarlig avvikling av budrunden. I forbrukerforhold (dvs. der selger er forbruker) skal megleren ikke formidle bud med kortere akseptfrist enn kl. 12.00 første virkedag etter siste annonserte visning. Senere bud må ha en tilstrekkelig lang akseptfrist til at megler, så langt det er nødvendig og mulig, kan videreformidle budet og eventuelle forbehold til alle involverte parter og legge til rette for at disse får tid til å områ seg, jf. forskrift om eiendomsmegling § 6-3. Akseptfrist bør derfor være på minimum 30 minutter, og budforhøyelser bør skje senest 10 minutter før fristens utløp. Dersom bud inngis med en frist som åpenbart er for kort til at megleren kan avvikle budrunden på en forsvarlig måte, vil megler fraråde budgiver å stille slik frist. Megleren vil uoppfordret gi sin vurdering av det enkelte bud overfor selgeren, når budet er gitt innenfor akseptfristene ovenfor. Megler skal så snart som mulig bekrefte skriftlig overfor budgivere at budene deres er mottatt. Megler kan ikke formidle bud med forbehold om at budet eller forbehold i budet skal holdes skjult (hemmelig) for andre budgivere og interessenter. Etter at handel har kommet i stand, eller dersom en budrunde avsluttes uten at handel er kommet i stand, kan en budgiver kreve kopi av budjournalen i anonymisert form. Kopi av budjournal skal gis til kjøper og selger uten ugrunnet opphold etter at handel er kommet i stand. Dersom det er viktig for budgiver å bevare sin anonymitet, bør budet fremmes gjennom fullmektig. For mer informasjon om budgivningsprosessen, se «Forbrukerinformasjon om budgivning», som er vedlagt salgsoppgaven, eller ta kontakt med megler.
Tilbud på finansiering
Du kan søke om boliglån hos vår samarbeidspartner Storebrand, og få svar på dagen. Med boliglån i Storebrand kan du være trygg på at du til enhver tid har blant markedets mest konkurransedyktige renter. Du vil bli tatt godt vare på av et av Norges beste servicemiljøer innen bank. Som kunde i Storebrand Bank får du en fast kontaktperson å forholde deg til, som vil gi deg gode råd og god hjelp med kort svartid. Søk om boliglån i Storebrand og få • Enkel søknad - og etableringsprosess • Svar på dagen • Fast kontaktperson å forholde deg til • Trygghet for at du alltid har konkurransedyktige betingelser Ta kontakt på telefon 22 31 22 21 eller nordvik@storebrand.no. Les mer på storebrand.no/nordvik. Meglerforetaket kan motta provisjon ved formidling av finansielle tjenester.
Hvitvasking
Eiendomsmeglere er underlagt lov om hvitvasking og tilhørende forskrift. Etter hvitvaskingsloven er eiendomsmegler pålagt å gjennomføre kundetiltak av både selger og kjøper. Hvis kjøper ikke bidrar til at megler får gjennomført kundetiltak, og dette fører til at transaksjonen ikke kan gjennomføres eller blir forsinket, misligholder kjøper avtalen. Etter 30 dager anses misligholdet vesentlig, og selger har rett til å heve avtalen og gjennomføre dekningssalg for kjøpers regning. Dersom det er selger som ikke bidrar til at megler får gjennomført løpende kundetiltak underveis i oppdraget må eiendomsmegler stanse gjennomføringen av transaksjonen. Selger vil i et slikt tilfelle ha misligholdt sine forpliktelser, og kjøper vil kunne ha et krav mot selger etter avhendingsloven. Hvis kundetiltak ikke lar seg gjennomføre, vil Nordvik Eiendomsmegling ikke kunne bistå med handelen eller foreta oppgjør.
Personopplysningsloven
Personopplysninger vil bli behandlet i samsvar med personopplysningsloven. Ved å registrere deg som interessent og/eller budgiver eller kjøpe vil vi innhente, behandle og registrere personopplysninger om deg. Eiendomsmeglingsforetak har plikt til å oppbevare kontrakter og dokumenter i 10 år, jf. eiendomsmeglingsforskriften § 3-7 (3). Denne oppbevaringsplikten begrenser muligheten for å få slettet personopplysninger. Du kan lese mer om Nordviks behandling av personopplysninger i vår personvernerklæring på nordvikbolig.no/personvern.
Om oppdraget
Eiendomsmeglers vederlag
Vederlag: Provisjon: 0,75% av salgssum Grunnpakke Leilighet kr. 12 500,- Markedspakke inkl. digital salgsoppgave kr. 22 900,- Tilrettelegging kr. 4 900,- Visningshonorar/overtagelseshonorar per stk. kr. 3 900,-
Vedlegg til salgsoppgaven
Vedleggene er en del av den komplette salgsoppgaven. Det er viktig at interessenter setter seg godt inn i vedleggene og kontakter megler med eventuelle spørsmål før bud inngis.
Ansvarlig megler
Filippa Myhrberg, Kontorsjef / Eiendomsmegler MNEF / Partner
458 57 820
f.myhrberg@nordvikbolig.no
Megler
Emilie Amundsen, Eiendomsmeglerfullmektig MNEF
481 73 075
e.amundsen@nordvikbolig.no
Megler 2
Malin Hveem, Eiendomsmegler MNEF / Partner
958 44 243
m.hveem@nordvikbolig.no
Meglerforetaket
Juridisk navn: P33 Eiendomsmegling AS
Org. nr.: 915491065
Parkveien 33b, 0258 OSLO
Samarbeidspartnere og foretak med tilknytning til Nordvik
Meglerforetaket og Nordvik-kjeden samarbeider med en rekke foretak som tilbyr produkter eller tjenester i forbindelse med megleroppdraget. - Storebrand leverer boligselgerforsikring, finansieringsløsninger og forsikringer til kjøper - Help forsikring leverer boligkjøperforsikring - Flytte- og lagringstjenester gjennom Loyalty, oppussing gjennom Steddy, brebånd levert av Telenor, alarm levert av Sector alarm, strøm levert av Fjordkraft og Fortum og utleietjenester levert av Utleiemegleren. Hvilke tilbud kjøper og selger får i forbindelse med oppdraget kan variere ut fra hvor i landet eiendommen ligger. Nordvik bolig AS, som er franchisegiver for Nordvik-kjeden, eier aksjer i Bomega AS (Hjem.no). P33 Eiendomsmegling AS har indirekte eierskap i Bomega AS.
Trygg bolighandel med Nordvik
Forsikringer
Hos oss i Nordvik har vi for gode forsikringer til både deg som skal selge og deg som skal kjøpe.
Boligforsikring
Bilder






Ingen kjenner nabolaget bedre!
Hva sier innbyggerne om Frogner?
Nordvikundersøkelsen gjør deg litt bedre kjent med området boligen ligger i, og får frem fakta, funn og innsikt som vi tror kan være nyttig ved valg av ny bolig.
Hele undersøkelsen finner du her.
Trivsel
83%Vil bli boende i bydelen dersom de skulle flyttet i dag.
Søndagsaktivitet
- Er ute, på tur, ski, trening (73%)
- Venner, familie, besøk, middag (22%)
- Slapper av, ser på TV, leser (7%)
- Jobber i hage/hus (6%)
Hva er innbyggene mest stolt av i nabolaget?
Vennlig og hjelpsomme naboer
63%Av alle innbyggene beskriver naboene sine som vennlige og hjelpsomme.
All data er hentet fra Nordvikundersøkelsen gjennomført våren 2025 i samarbeid med Norstat.
Emilie Amundsen
Eiendomsmeglerfullmektig MNEF
Frogner
Selge bolig?
Slik hjelper jeg deg til
et godt salg
Er du klar til budrunde?
Hva er din bolig verdt?
Filippa Myhrberg
Kontorsjef / Eiendomsmegler MNEF / Partner
Frogner
Selge bolig?
Slik hjelper jeg deg til
et godt salg
Er du klar til budrunde?
Hva er din bolig verdt?
Malin Hveem
Eiendomsmegler MNEF / Partner
Frogner
Selge bolig?
Slik hjelper jeg deg til
et godt salg
Er du klar til budrunde?















