Nedre Mykinghøgde 68Nesbyen
- Nesbyen
- Nedre Mykinghøgde 68
- Prisantydning
- 4 350 000,-
- Totalpris
- 4 390 850,-
- Primærrom
- 89 m2
Tiltalende og svært effektiv familiehytte med fantastisk beliggenhet under oppføring - Panoramautsikt og flott solgang!
Ny hytte i 2026? Her får du en svært effektiv og lekker hytte for hele familien planlagt under oppføring i 2026. Her har man 2 bad, 4 soverom, romslig stue/ kjøkken-avdeling og utvendig bod. Hytta har en gjennomgående høy standard, varme i flislagte gulv og stue/kjøkken, fine fargekombinasjoner! Hytta ligger svært solrikt til med panoramautsikt fra Nesfjellet mot Åkrefjell, videre over Bruset mot Såtenatten. Perfekt solgang. - Hytta ligger fritt med fantastisk utsikt på over 946 moh - God plass mellom hyttene og umiddelbar nærhet til urørt natur - Kort avstand fra østlandet med 2.20 min fra Oslo - Stor terrasse med sol fra morgen til kveld - Vaskerom og utvendig bod - Kort vei til Nesfjellet med Alpint, golf og sykling Bildene er av nabohytten som selger har satt opp!
Nøkkelinformasjon
- Boligtype:
- Fritidseiendom
- Byggeår:
- 2026
- Etasje:
- 1
- Soverom:
- 4
- Prisantydning:
- 4 350 000,-
- Omkostninger:
- 40 850,-
- Totalpris:
- 4 390 850,-
- Bruksareal:
- 93 m2
- Tomteareal:
- 1 158 m2 (eiet)
Visninger
Presenteres av
Har du finanseringsbevis på plass?
I samarbeid med
En personlig rådgiver fra vår samarbeidspartner Storebrand Bank vil hjelpe deg å gjøre deg klar til budrunden.

Nøkkelinformasjon
Oppdragsnummer
8-0083/25
Boligtype og eieform
Fritidseiendom (Eiet)
Adresse og betegnelse
Nedre Mykinghøgde 68, 3540 Nesbyen
Gnr. 71, bnr. 348 (ideell andel 1/1) i Nesbyen kommune.
Selger(e)
Nes Hus & Hyttebygg AS
Kjøpesum og omkostninger
4 350 000,- (Prisantydning) Omkostninger: 20 000,- (Dokumentavgift av tomterverdi 800 000,-) 260,- (Pantattest kjøper) 545,- (Tinglyst pantedokument) 545,- (Tinglyst skjøte) 19 500,- (Trygghetspakke kjøper* (valgfritt)) -------------------------------------------------------- 21 350,- (Omkostninger totalt (uten Trygghetspakke kjøper)) 40 850,- (Omkostninger totalt (med Trygghetspakke kjøper)) -------------------------------------------------------- 4 371 350,- (Totalpris inkl. omkostninger (uten Trygghetspakke kjøper)) 4 390 850,- (Totalpris inkl. omkostninger (med Trygghetspakke kjøper)) -------------------------------------------------------- NB: Regnestykket forutsetter at det kun tinglyses ett pantedokument og at eiendommen selges til prisantydning. Dokumentavgiften er 2,5% av salgssummen. Det tas forbehold om endringer i offentlige avgifter/gebyrer.
Om boligen
Byggeår
2026
Arealer
BRA: 93 kvm
P-rom: 89 kvm
S-rom: 4 kvm
Bruksareal
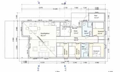
1. etasje: 93 kvm 89 m². Soverom 1, Soverom 2, Soverom 3, Soverom 4, Stue/kjøkken, Bad, Bad, Vaskerom, Entré, utvendig bod
Primærrom
1. etasje: 89 kvm Soverom 1, Soverom 2, Soverom 3, Soverom 4, Stue/kjøkken, Bad, Bad, Vaskerom, Entré,
Antall soverom
4
Innhold
Soverom 1, Soverom 2, Soverom 3, Soverom 4, Stue/kjøkken, Bad m/dusj, Bad m/dusj, Vaskerom, Entré. Bod tilkoblet hovedbygget, men har egen inngang.
Standard
NESHYTTA Leveransebeskrivelse prospekt GENERELT OM NESHYTTA Hyttene blir bygget i henhold til TEK 17 og fyller gjeldende krav for hytter/fritidsbebyggelse. Prosjektering og innsending av byggesøknad og ferdigattest er inkludert,. Levering av bygg, fundament/støpt plate etter godkjente tegninger og beskrivelser i dette dokument. GRUNN/BETONGARBEIDER OG UTVENDIG VA-ANLEGG Ringmur av type Jackon RSB 450 på ferdig avrettet pukkfundament. Ringmur er isolert utvendig med 70mm XPS i henhold til krav. Armert betongplate støpt over 200mm EPS isolasjon med radonsperre. Prosjektering og utførelse av graving og terrengarbeider er inkludert. Boring etter vann, utvendig røropplegg og påkobling i kum for vann og avløp er inkludert. BYGG OVER GRUNNMUR/FUNDAMENT/STØPT PLATE 1. Gulv Hytta leveres med dampsperre/parkettunderlag og flytende parkettgulv Bjelin Herdet Eik Rustikk Hardvoksoljet 2379 x 273 x 11mm(eller tilsvarende). Parkettgulv i stue/kjøkken, soverom og gang. Entrè og bad har flislagte gulv. Alt arbeid og materiell er inkludert, med gulvfliser «La Fenice Core Grey» 30x60cm, og 5x5cm på gulv i dusjsoner. 2. Yttervegger Yttervegg er i reisverk 48x148mm, dampsperre og innlekting 48x48mm med til sammen 200mm isolasjon. Yttervegg er kledd med stående kledning type «Fas» 22x198. Bunnstokk med dim. 48x198mm, og solide hjørnekasser med bredde min. 36x223mm, monteres for å få «stavlaft-look». Liggende kledning 22x198 i raust på gavlveggene. Hytta leveres maskinbeiset utvendig 1 strøk grunning m/farge «Lavgrå», endeved og takutstikk er ikke beiset. Innvendig kledning 13x145 «Skigardgrå» interiørbeiset sprekkpanel i furu, og med flis «La Fenice Core Grey» 30x60 på vegger i dusjsoner. 3. Tak Takkonstruksjon med saksetakstoler i skråhimling stue/kjøkken, og flathimling i resten av hytta i henhold til tegninger. Taktro av 21x145mm underpanel, helsveiset duk og torvtak fra Hallingtorv. Tre vindskiebord 22x198mm m/spir i gavl. 4. Himling Himling isoleres med 250mm Glava, dampsperre, 48x48mm nedlekting og 13x120mm «Skigardgrå» interiørbeiset furupanel fra Moelven. 5. Delevegger Reisverk av 48x73 og 48x98mm gran, med henholdsvis 70 mm og 100mm Glava. Deleveggene er kledd med 13x145 «Skigardgrå» interiørbeiset sprekkpanel i furu, og med flis «La Fenice Core Grey» 30x60 på vegger i dusjsoner. 6. Vinduer og balkongdør Vinduer og balkongdør med gjennomgående sprosser ihht. tegninger, gjennomsnittlig U-verdi 1,0. Farge ute/inne (NCS S7500-N), åpningsvinduer med toppsving. Balkongdør i furu med blindskilt utvendig og låseknapp innvendig. Vinduer og ytterdør har enkel omramming 22x123 i farge «Lavgrå» som ytterkledning og imp. vannbrett. 7. Ytterdør og bod-dør Ytterdør fra Nordic Door type «Ormsøy» i gråfarge (NCS S7500-N), 2-lags energiglass. Bod-dør i samme utførelse uten vindu. Dørvrider i børstet stål.(Habo A2560) 8. Innerdører Innerdører fra Scanflex , Trend 1. Dør og karm malt i gråfarge(NCS S7500-N). Dørvridere og dørskilt i børstet stål. (Habo A2012) 9. Listverk og utforinger Taklist/Gulvlist: Glatt 12x58mm interiørbeisede furulister m/rund kant. Karmlister: Glatt 12x58mm interiørbeisede furulister m/rund kant. Utforinger: Furu limtre interiørbeiset. 10. Kjøkkeninnredning Kjøkkeninnredning fra Aubo. Kjøkkeninnredningen er komplett med glassplate over koketopp og hvitevarer montert. 11. Pipe/Ildsted Stålpipe plassert på toppen av peisovn Jøtul F371 Advance m/glassplate. 12. Overflatebehandling beis/maling Utvendig overflatebehandling er inkludert med 1 strøk fra leverandør, endeved og takutstikk er ikke behandlet. All panel innvendig er interiørbeiset. 13. Takrenner og beslag Synlige takrenner og nedløp i sort stål. Takfotbeslag og øvrige beslag i sort stål 14. Terrasse Terrasse i trykkimpregnerte materialer ca. 30m2 uten rekkverk. Terrassebord dim. 28x120mm. 15. Utebod Uteboden er isolert og er kledd innvendig med interiørbeiset panel (2. sortering) Gulvet er i betong. 16. Inngangsparti Gulv inngangsparti er i betong. RØRLEGGER/INNVENDIG SANITÆR Rørleggerarbeid og utstyr ihht. standard rørleggeroppsett. Bunnledning og innvendig sanitæropplegg og standard møbler er inkludert. Detaljer kan endres mot prisjustering etter kundens ønsker. ELEKTRISKE INNSTALLASJONER OG UTSTYR Elektrikerarbeid med utstyr ihht. standard elektrikeroppsett. Det er varmekabel i stue/kjøkken, 2 bad, vaskerom, gang, og entrè. Detaljer kan endres mot prisjustering etter kundens ønsker. MURERARBEID, FLIS, PIPE OG ILDSTED I standardoppsett er flislegging av gulv m/sokkelflis i våtrom inkludert, samt flislegging av vegger i dusjnisjer. Fliser av typen La Fenice Core Grey» 30x60 med 5x5 mosaikk på gulvene i dusjnisjer. NB! Avstander mellom tørr og våt sone på badene er ikke ihht. TEK 17. Dette gjelder overgang mellom flis på dusjvegg og panel på vegg, samt ved baderomsmøbel. Inngangspartiet i gangen er belagt med «La Fenice Core Grey» 30x60. TILVALG / ENDRINGER Endringer og tilvalg kan mot gjøres hvis en kunde melder sin interesse tidlig i byggeprosessen. FORSIKRING/KONTRAKTSGARANTI Nes Hus & Hyttebygg sørger for kontraktsgaranti etter gjeldende regler, og er forsikret i Sparebank1 Forsikring. Kontakt megler for ytterligere informasjon vedrørende spesifikasjon.
Innbo og løsøre
Energi og oppvarming
Oppvarming
El og ildsted
Informasjon om strømforbruk
Tilsvarden hytte har ligget på ca. 8500 kWh - Dette avhenger av bruken og hvor mange i husstaden
Økonomi
Kommunale avgifter
Prisen kan justeres fra budaksept og frem til overtagelse av hytta. Kommunale avgifter for 2024: Eiendomsskatt: Må takseres Renovasjon fritidsbolig: kr 2.283,20 + mva Feiegebyr pipe nr 1: kr 560,00 Feiegebyr pipe nr 2 (behovsprøvd): kr 280,00 Tilsyn fyringsanlegg fritidsbolig (behovsprøvd): kr 1.592,00 Eventuell tank for oppbevaring av brannfarlig vare er eierens ansvar. Øvrige avgifter: Andeler i Kramo: Årlig ca. kr 3.000,- Vannavgift Mykingtoppens vannverk: Årlig kost ca. 4.000,- Veiavgift Mykingveien: Årlig ca. 2.500,- Årlig brøyting: kr 1.500,-
Tomt
Beskrivelse av tomt
Tomtestørrelse: 1 158 kvm (eiet)
Adkomst
Følg Rukkedalsvegen til du kommer til avkjøringen til Myking, følg veien til du kommer til avkjøringen til Fagerøy. Ta der til høyre og til høyre ned Mykinghøgde.
Områdebeskrivelse
Beskrivelse av nærområdet
Myking er et av de eldste hytteområdene i Hallingdal, og består av en kombinasjon av støler samt en blanding av nye og eldre hytter. Myking kolonial har åpent hele året, og her finner du alt du trenger. Fine turområder finner du rett utenfor hyttedøren med milelange preparerte skiløyper i lett og variert terreng. Området byr også på gode fiskemuligheter, bla i Grønhovdtjern og Mykingsjøen. Vinterstid byr nærområdet på ca. 120 km med flotte løyper. Langrenn med Myking som utgangspunkt, er perfekt for alle: unge, gamle, nybegynnere eller proffe. Her er det variert terreng med snille bakker og en fantastisk utsikt over de snøkledde fjellheimen. Turen starter på ca. 1000 m.o.h. uten bratte motbakker. Byr på både løyper i skogen (på dager med dårlig vær) og flotte turer til snaufjellet på dager med fint vær, og de har vi mange av på Myking. Myking Kolonial er en gammel landhandleri og her kan du fremdeles finner alt du måtte trenge til hverdagen. Nærbutikken har åpnet hele året. Landhandelen fungerer også som områdets informasjonssenter. Her kan du man få hjelp til det meste en skulle lure på. Ranten Hotell ligger i praktfulle naturomgivelser, hele 1000 meter over havet, og har blitt totalrenovert i 2022. Her kan man nyte en bedre middag. Toppturen og de flestes mål er "Dyna" 1212 m.o.h. ca. 9 km fra hytta. På toppen er det vidunderlig utsikt - til Hemsedalsfjella, Reinskarvet, Halli Nesbyen Alpinsenter og Nesbyen Golfbane ligger ca. 20 minutters kjøring fra hytta. Nesbyen Alpinsenter tilbyr velpreparerte bakker i alle vanskelighetsgrader. Alpinsenteret har også et trygt område for barn og nybegynnere, samt en meget bra park. Fra sesongen 2021/22 bet anlagt en helt ny 8-seters stolheis. Lengste nedfart er hele 2,3 km. Nesbyen Golfbane er en meget flott fjellbane med 9 hull og "driving range". Sentralt plassert i Hallingdal har man mange muligheter for dagsutflukter. Langedrag Naturpark (innen ca. 30 min kjøring) og Bjørneparken i Flå (ca. en times kjøretur). Høyt og lavt parken i Hallingdal Feriepark på Ål (ca. en times kjøretur) Vil man til Geilo for å oppleve høyfjellet der øst møter vest tar det (ca. en times kjøretur). Planlegg din neste tur på ut.no og sjekk status på løypene i området på skisporet.no Turforslag: ut.no Løypestatus: skisporet.no Se informasjon for lokalområdet på Nes Nordmark Friluftslag sine hjemmesider.
Bebyggelse
Nyere hyttefelt med spredt hyttebebyggelse.
Offentlige forhold
Ferdigattest / brukstillatelse
Ferdigattest vil foreligge før overtagelse. I motsatt fall anbefaler megler at overtagelse utsettes og at kjøper ikke overtar.
Vei, vann og avløp
Privat borrehull.
Regulerings- og arealplaner
Gbnr 71/308 (Mykinghøgde 114) er regulert av detaljreguleringsplan for Myking gnr 71/169 m.fl. med planident 01200902 med ikrafttredelsesdato 12.06.2014. Eiendommen er avsatt til frittliggende fritidsbebyggelse med tilhørende reguleringsbestemmelser. Det pågår ikke nytt reguleringsarbeid som berører eiendommen. Eiendommen er tilknyttet privat avløpsledning til Kloakkrenseanlegget Mykingområdet (KRAMO). Tilknytningsavgift er allerede betalt av selger. Forholdsmessig andel av årlige driftsutgifter betales av kjøper. Eiendommen er tilknyttet privat vannforsyning fra Mykingtoppen vannverk. Tilknytningsavgift er allerede betalt av selger. Forholdsmessig andel av årlige driftsutgifter betales av kjøper. Eiendommen ligger til privat veg. Nesbyen kommune gjør oppmerksom på at radongass fra grunnen kan være et problem i kommunen. Hytta er bygget med radonsperre.
Legalpant
Kommunen har legalpant som sikkerhet for betaling av kommunale avgifter og eventuell eiendomsskatt. Legalpant er pant som ikke kommer frem av grunnboksutskriften, og har bedre prioritet enn for eksempel lån til bank som er tinglyst på eiendommen.
Øvrige kjøpsforhold
Diverse
Betalingsplan: - Tomteverdien betales ved kontraktsinngåelse - Deretter maks 7 innbetalinger etter prinsippet «medgått tid og materialer» Nes hus og hyttebygg som er utbygger. Elektriker: Hadding elektro AS Rørlegger: Nesbyen rørservice AS Prisantydninger: Dokumentavgift 2,5 % av andel tomteverdi. Andel tomteverdien er antatt å være kr. 800 000,- for eiendommen. Tilvalgsmuligheter: Avhengig av byggearbeidenes fremdrift, vil den enkelte kjøper ha anledning til å foreta tilvalg i hytta. Tilvalg vil bli håndtert av utførende entreprenør. Entreprenør har 15 % påslag på alt tilvalg. Tilvalg innbetales samtidig som kjøpesum før overtakelse. Dersom kjøper ønsker å gjøre tilvalg avtales dette direkte med selger. Tilvalgsarbeider vil medføre tillegg i kjøpesummen. Ta kontakt med megler for ytterligere informasjon. Eventuelle tidsfrister (herunder siste frist) for å gjøre eventuelle tilvalg, vil framgå av tilvalgs brosjyre. Etter dette vil det ikke være mulig å gjøre tilvalg som avviker fra standard leveranse. Selger er uansett ikke forpliktet til å utføre endringer eller tilvalgsarbeider som vil endre vederlaget med 15% eller mer, jf. Bustadoppføringslova § 9. Kjøper har ikke rett til å kreve endringer og tilleggsarbeider som ikke står i sammenheng med ytelser som er avtalt, og som i omfang eller karakter skiller seg vesentlig fra den avtalte ytelse og/eller er til hinder rasjonell gjennomføring av byggearbeidene. Selger er heller ikke forpliktet til å utføre endringer eller tilleggsarbeider som vil føre til ulempe for selger og som ikke står i forhold til kjøpers interesse i å kreve endringer eller tilleggsarbeider. Selger har rett til å ta seg betalt for utarbeidelse av pristilbud, tegninger mv. jf. Bustadsoppføringslove § 44. For det tilfelle at kjøper forutsetter gjennomføring av bestemte tilvalg/endringer (andre enn slike som fremgår av tilvalgs- /endringsmeny), må kjøper ta særlige forbehold om dette i kjøpstilbudet. Dersom kjøper ønsker endrings/ tilleggsarbeider utført skal dette bestilles skriftlig til selger. Selgers forbehold: Tegninger og bilder i prospekt/nettside/annonse er kun illustrasjoner og kan avvike i forhold til plan- og fasadetegninger som vedlegges kontrakt, herunder leveransebeskrivelse. Da prosjektet fortsatt er under utvikling, er alle opplysninger i teknisk beskrivelse gitt med forbehold om rett til, uten forutgående varsel, å gjøre endringer som er hensiktsmessige og nødvendige. Eksempelvis pga. offentlige pålegg, byggesakskrav og lignende, uten at den planlagte generelle standard forringes i nevne - verdig grad. Videre kan størrelse på sjakter og veggtykkelse bli justert. Også omfang av nedforede himlinger eller innkassinger kan justeres ettersom detaljprosjekteringen gjennomføres. Plassering av vinduer og dører, samt form på disse kan avvike noe fra plantegninger og fasadetegninger i den enkelte lenhet, som følge av valg av leverandør, behov for tilpasninger og arkitektoniske utforminger av bygget. Detaljprosjektering vil også avklare plassering og omfang av søyler. Selger har rett til å gjøre mindre endringer i konstruksjon, tekniske installasjoner og materialvalg som ikke reduserer boligens kvalitet, uten at dette gir kjøper rett til endring av avtalt kjøpesum. Det tas forbehold om justeringer og endringer av fasader og utomhusplanen. Annen nyttig informasjon: Fritidsboligen kan fritt leies ut i sin helhet. Alle opplysninger i denne beskrivelsen er gitt med forbehold om rett til endringer som er hensiktsmessige og nødvendig for gjennomføringen av prosjektet uten at den generelle standarden forringes. Eksempelvis kan dette være som følge av offentlige pålegg, eller nødvendige tilpasninger i prosjektet. Selger har rett til å gjøre mindre endringer i konstruksjon, tekniske installasjoner og material valg som ikke reduserer boligens kvalitet, uten at dette gir kjøper rett til endring av avtalt kjøpesum. - Det tas forbehold om justeringer og endringer av fasader og utomhusplanen. Utenomhus: - Opparbeidet grusvei inn på tomten. Tomten vil ikke bli ytterligere utarbeidet. Forsikring: Frem til overtagelse vil eiendommen være forsikret av selger. Etter overtagelse vil eiendommen forsikres gjennom sameiets fellesforsikring. Kjøper må selv besørge innboforsikring og forsikring av eventuelle særskilte påkostninger. Utbygger tar forbehold om små hensiktsmessige endringer på areal på tomt og hytte. Kjøper må dekke årlige kostnader ved deltakelse i vegfellesskapet Mykingvegen iht. vedtekter for vegen. Kjøper må dekke årlige kostnader ved deltakelse i vegfellesskapet Mælegutu iht. vedtekter for vegen. Kjøper er forpliktet til å kjøpe andeler i privat kloakrenseanlegg (Kramo) med p.t. 3 stk P.E. (personekvivalenter). Dette medfølger og er allerede betalt av selger. Kjøper må betale årlig avgift til renseanlegget når andelen er kjøpt, se punktet "kommunale avgifter". Tilsvarende gjelder Mykingtoppen vannverk. Følgende forhold er videre avtalt mellom partene: Iht. nye vedtekter for Mykingvegen (jordskifteretten 2012) skal tilknytningsavgift betales av selger ved salg av tomt. Tomtekjøper må dekke årlige kostnader ved deltakelse i vegfellesskapet Mykingvegen iht vedtekter for vegen. Nes Nordmark Utbyggingslag har eiendomsretten til felles veier fra Mælegutu til tomtegrense og kan bruke disse for framføring av vei til andre tomter og eiendommer i området. Driftsutgiftene (sommer og vinter) til vedlikehold av disse veiene overføres til tomtekjøperne med 1/45-del pr. solgt tomt inntil 45 solgte tomter. Hver ny tomt solgt utover 45 får 1 andel i driftsutgiftene for veiene på lik linje med de 45 første. Når 45 tomter er solgt betaler Nes Nordmark Utbyggingslag 1 andel i driftsutgiftene for disse veiene (tilsvarende andelen for ei solgt tomt) inntil det er solgt 60 tomter i tomteområdet. Deretter har ikke Nes Nordmark Utbyggingslag lenger økonomisk ansvar for driftsutgifter vedrørende disse veiene. Endringer av veiene ut over løpende vedlikehold må godkjennes av eier (Nes Nordmark Utbyggingslag) på forhånd. Tomtekjøper har bruksrett til veien og interne veier i tomteområdet, likeledes må tomtekjøper ta sin andel av driftsutgiftene for disse veier. Nes Nordmark Utbyggingslag har eiendomsretten til felles avløpsanlegg i området fram til tomtegrense, og kan nytte dette til framføring av avløp til andre tomter og eiendommer i området. Eventuelle vedlikeholdsutgifter/reelle driftsutgifter til dette avløpsnettet overføres til tomtekjøperne med 1/45-del pr. solgt tomt inntil 45 solgte tomter. Når 45 tomter er solgt har ikke Nes Nordmark Utbyggingslag lenger økonomisk ansvar for driftsutgifter vedrørende avløpsnettet. Hver ny tomt utover 45 får 1 andel i driftsutgiftene for avløpsnettet på lik linje med de 45 første. Tomtekjøper har bruksrett til avløpsanlegget for kjøpt tomt. Hallingdal Kraftnett har drifts-, vedlikeholdsansvaret og eiendomsretten for hele det elektriske anlegget i området fram til grunnmur (kabler, linjer, transformatorer, kabelskap m.v.), og kan nytte anlegget til videreføring til nye anleggsdeler. Hallingdal Kraftnett skal ha fri adgang til nettstasjoner, linjer og kabler både i og etter prosjektperioden. Dette omfatter bl.a. fritak fra bompenger og brøyteavgifter. Tomt og grunn til nettstasjonar, kabler og øvrige anleggsdeler skal være en stedsvarig fri rett. Nes Nordmark Utbyggingslag har satt opp landbruksgjerde rundt hele tomteområdet med ferist i innkjøringsveien til området. Gjerdet er utført slik at det legges til rette for ferdsel på stier og løyper i området. Vedlikehold av felles gjerde rundt hytteområde og eventuell standardheving av dette gjerdet, er kjøpers ansvar sammen med andre tomtekjøpere i planområdet. Tomtekjøper plikter å bidra til felles turløypenett ved medlemsskap i Nes Nordmark Friluftslag eller tilsvarende lag som brøyter felles skiløyper i området. Når 45 tomter solgt er NNU uten ansvar for fellesutgifter i utbyggingsområdet utover det som er spesifisert om veier fra Mælegutu til tomtegrense. Eier av tomter som selges etter de første 45 tomter, må ta sin forholdsmessige andel av driftsutgiftene som er spesifisert over. Se vedlegg for særskilte bestemmelser. Kjøper og selger er forpliktet til å undertegne standard kjøpekontrakt utarbeidet av Nordvik i forbindelse med eiendomstransaksjonen. Kjøpekontrakt kan besiktiges hos eiendomsmegler før bud inngis. Kontakt eiendomsmegler for spørsmål. Selger leverer eiendommen i ryddig og rengjort stand. Alle innvendige og utvendige arealangivelser, samt beskrivelser av bygningen er hentet fra vedlagte leveransbeskrivelse og byggetegninger. Salgsoppgaven er basert på selgers opplysninger til megler. Videre er det innhentet opplysninger fra kommunen og andre relevante kilder. Tomtegrenser er ikke kontrollert.
Overtagelse
Overtakelse skjer etter avtale med selger. Før boligen overleveres kjøper, skal fullt oppgjør og omkostninger være mottatt på meglers klientkonto.
Sentrale lover
Boligene selges i henhold til Bustadoppføringslova som regulerer kjøpers (forbrukers) rettigheter og plikter ved avtale om oppføring av bolig og kjøp av fast eiendom der bygningen ikke er fullført når avtalen inngås. Dette innebærer blant annet at kjøper har krav på garantier iht. bustadoppføringslova § 12. Selger plikter å stille garanti etter bustadoppføringslova § 12 når selgers forbehold er bortfalt, og senest før faktisk oppstart for byggearbeidene. I tilfeller hvor kjøper er profesjonell iht. bustadoppføringslova, dvs. gjør kjøper som ledd i næringsvirksomhet, kan selger kreve at avtalen reguleres av avhendingslova. Kjøp etter bustadoppføringslova innebærer en avbestillingsrett for kjøper. Dersom denne retten benyttes vil kjøper bli holdt ansvarlig for selgers merkostnader og tap som følge av en eventuell avbestilling. Kontakt megler for nærmere informasjon dersom avbestilling vurderes. Bestilte endrings og tilleggsarbeider betales i slike tilfeller i sin helhet. Garantier: Det stilles garantier i henhold til Bustadoppføringslovas bestemmelser. Garanti etter § 12 vil bli stilt i forbindelse med avtaleinngåelse. Garantien skal være pålydende 3% av kjøpesummen i byggetiden og 5% i 5 år etter overlevering av boligene til kjøper. Garanti etter § 47 forutsettes stilt om selger ønsker utbetalt forskudd/delinnbetaling/sluttoppgjør før hjemmelsovergang. Eventuelle påkrevde endringer av garantier ved eventuelle videresalg/transporter utføres ikke og bekostes ikke av selger.
Boligkjøperforsikring
I samarbeid med Storebrand og HELP tilbyr Nordvik Boligkjøperpakke til våre boligkjøpere. Boligkjøperpakken er et gunstig forsikringskonsept som inneholder alle de forsikringene du trenger til den nye boligen din. Boligkjøperpakke hytte inneholder: Boligkjøperforsikring fra HELP, flytteforsikring, innboforsikring Super og hytteforsikring Super fra Storebrand. Boligkjøperforsikring er en rettshjelpsforsikring som gir trygghet og profesjonell juridisk hjelp dersom det oppdages uventede feil eller mangler ved boligen. Forsikringen gjelder i 5 år fra overtakelsen. Flytteforsikring dekker skade på eiendeler under flytting ved plutselig og uforutsett hendelse som oppstår under transport eller i forbindelse med bæring mellom bolig, bil eller lagringssted. Forsikringen varer i 1 år fra overtakelsen. Innboforsikring Super dekker tingene dine ved blant annet tyveri, brann eller vannskader. Vår beste innboforsikring Super inkluderer blant annet uflaksforsikring, bistand ved ID-tyveri og psykologhjelp ved alvorlige hendelser hjemme. Forsikringen gjelder i 3 måneder fra overtakelsesdatoen av ny bolig. Hytteforsikring Super dekker alt fra brann og vannskader til naturskader og bekjempelse av rotter og mus. I tillegg inkluderer Super-dekningen vannskader fra våtrom, sopp- og råteskader, og følgeskader på bygningen som skyldes håndverkerfeil. Forsikringen gjelder i 3 måneder fra overtakelsesdatoen av ny bolig. Boligkjøperforsikring fra HELP kan også kjøpes separat og inkluderer da flytteforsikring fra Storebrand. Boligkjøperpakke/Boligkjøperforsikring må tegnes senest ved kontraktsignering og gjelder fra overtakelsen. Kjøper blir kontaktet av Storebrand med et tilbud på videre forsikring av hus og innbo. Se pris og mer informasjon om forsikringene i produktarket vedlagt salgsoppgaven, eller ta kontakt med megler.
Betalingsbetingelser
Oppgjør skal betales i en samlet innbetaling fra norsk bank. Betaling fra utlandet tillates kun i unntakstilfeller og dersom det er avklart med megler i anledning avtaleinngåelse (budaksept).
Viktig informasjon om budgivning
Alle bud skal inngis skriftlig til megler, som formidler disse videre til selger. Kravet til skriftlighet gjelder også budforhøyelser og motbud, aksept eller avslag fra selger. Bud kan legges inn på eiendommens finn-annonse ved å trykke på knappen «gi bud» eller via vår hjemmeside. Ved elektronisk budgivning legges bud inn ved å benytte BankID. Bud kan også inngis på budskjema vedlagt i salgsoppgaven. Før megler formidler bud til selger, skal megler innhente gyldig legitimasjon og signatur fra budgiver. Kravet til legitimasjon og signatur er oppfylt for budgivere som benytter e-signatur, eksempelvis BankID eller MinID. Senere bud kan inngis per e-post eller SMS til megler. Et bud bør inneholde eiendommens adresse (eventuelt gnr/bnr), kjøpesum, budgivers kontaktinformasjon, finansieringsplan, akseptfrist, overtakelsesdato og eventuelle forbehold som for eksempel usikker finansiering, salg av nåværende bolig ol. Normalt vil ikke et bud med forbehold bli akseptert før forbeholdet er avklart. Konferer gjerne med megler før bud avgis. Megler skal legge til rette for en forsvarlig avvikling av budrunden. I forbrukerforhold (dvs. der selger er forbruker) skal megleren ikke formidle bud med kortere akseptfrist enn kl. 12.00 første virkedag etter siste annonserte visning. Senere bud må ha en tilstrekkelig lang akseptfrist til at megler, så langt det er nødvendig og mulig, kan videreformidle budet og eventuelle forbehold til alle involverte parter og legge til rette for at disse får tid til å områ seg, jf. forskrift om eiendomsmegling § 6-3. Akseptfrist bør derfor være på minimum 30 minutter, og budforhøyelser bør skje senest 10 minutter før fristens utløp. Dersom bud inngis med en frist som åpenbart er for kort til at megleren kan avvikle budrunden på en forsvarlig måte, vil megler fraråde budgiver å stille slik frist. Megleren vil uoppfordret gi sin vurdering av det enkelte bud overfor selgeren, når budet er gitt innenfor akseptfristene ovenfor. Megler skal så snart som mulig bekrefte skriftlig overfor budgivere at budene deres er mottatt. Etter at handel har kommet i stand, eller dersom en budrunde avsluttes uten at handel er kommet i stand, kan en budgiver kreve kopi av budjournalen i anonymisert form. Kopi av budjournal skal gis til kjøper og selger uten ugrunnet opphold etter at handel er kommet i stand. Dersom det er viktig for budgiver å bevare sin anonymitet, bør budet fremmes gjennom fullmektig. For mer informasjon om budgivningsprosessen, se «Forbrukerinformasjon om budgivning», som er vedlagt salgsoppgaven, eller ta kontakt med megler.
Tilbud på finansiering
Du kan søke om boliglån hos vår samarbeidspartner Storebrand, og få svar på dagen. Med boliglån i Storebrand kan du være trygg på at du til enhver tid har blant markedets mest konkurransedyktige renter. Du vil bli tatt godt vare på av et av Norges beste servicemiljøer innen bank. Som kunde i Storebrand Bank får du en fast kontaktperson å forholde deg til, som vil gi deg gode råd og god hjelp med kort svartid. Søk om boliglån i Storebrand og få • Enkel søknad - og etableringsprosess • Svar på dagen • Fast kontaktperson å forholde deg til • Trygghet for at du alltid har konkurransedyktige betingelser Ta kontakt på telefon 22 31 22 21 eller nordvik@storebrand.no. Les mer på storebrand.no/nordvik. Meglerforetaket kan motta provisjon ved formidling av finansielle tjenester.
Hvitvasking
Eiendomsmeglere er underlagt lov om hvitvasking og tilhørende forskrift. Etter hvitvaskingsloven er eiendomsmegler pålagt å gjennomføre kundetiltak av både selger og kjøper. Hvis kjøper ikke bidrar til at megler får gjennomført kundetiltak, og dette fører til at transaksjonen ikke kan gjennomføres eller blir forsinket, misligholder kjøper avtalen. Etter 30 dager anses misligholdet vesentlig, og selger har rett til å heve avtalen og gjennomføre dekningssalg for kjøpers regning. Dersom det er selger som ikke bidrar til at megler får gjennomført løpende kundetiltak underveis i oppdraget må eiendomsmegler stanse gjennomføringen av transaksjonen. Selger vil i et slikt tilfelle ha misligholdt sine forpliktelser, og kjøper vil kunne ha et krav mot selger etter avhendingsloven. Hvis kundetiltak ikke lar seg gjennomføre, vil Nordvik Eiendomsmegling ikke kunne bistå med handelen eller foreta oppgjør.
Personopplysningsloven
Personopplysninger blir behandlet i samsvar med personopplysningsloven.
Om oppdraget
Vedlegg til salgsoppgaven
Vedleggene er en del av den komplette salgsoppgaven. Det er viktig at interessenter setter seg godt inn i vedleggene og kontakter megler med eventuelle spørsmål før bud inngis.
Ansvarlig megler
Martin Ruud, Salgsleder / Eiendomsmegler MNEF / Partner
414 08 858
m.ruud@nordvikbolig.no
Meglerforetaket
Juridisk navn: Majorstuen Eiendomsmegling AS
Org. nr.: 914449936
Sørkedalsveien 8C, 0369 OSLO
Samarbeidspartnere og foretak med tilknytning til Nordvik
Meglerforetaket og Nordvik-kjeden samarbeider med en rekke foretak som tilbyr produkter eller tjenester i forbindelse med megleroppdraget. - Storebrand leverer boligselgerforsikring, finansieringsløsninger og forsikringer til kjøper - Help forsikring leverer boligkjøperforsikring - Flytte- og lagringstjenester gjennom Loyalty, oppussing gjennom Steddy, brebånd levert av Telenor, alarm levert av Sector alarm, strøm levert av Fjordkraft og Fortum og utleietjenester levert av Utleiemegleren. Hvilke tilbud kjøper og selger får i forbindelse med oppdraget kan variere ut fra hvor i landet eiendommen ligger. Nordvik bolig AS, som er franchisegiver for Nordvik-kjeden, eier aksjer i Bomega AS (Hjem.no). Majorstuen Eiendomsmegling AS har indirekte eierskap i Bomega AS.
Trygg bolighandel med Nordvik
Forsikringer
Hos oss i Nordvik har vi for gode forsikringer til både deg som skal selge og deg som skal kjøpe.
Boligforsikring
Bilder






Martin Ruud
Salgsleder / Eiendomsmegler MNEF / Partner
Majorstuen
Selge bolig?
Slik hjelper jeg deg til
et godt salg
Er du klar til budrunde?
































