Laster visningspåmelding...

Nedre Movei 2Nesodden

Alle bilder (73)

1/73

Utvalgte bilder

Nesodden
Nedre Movei 2
Prisantydning
17 900 000,-
Totalpris
18 348 880,-
Kommunale avg.
52 674,- per år
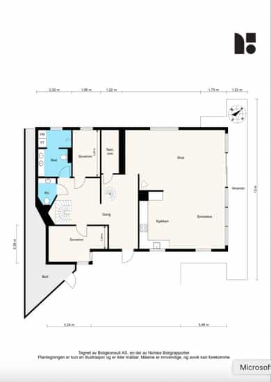
BRA-i
244 m2

Rålekker enebolig over 3 plan med spektakulær utsikt over Oslofjorden og hovedstaden -Strandparsell - Renovert i 23/24

Anders Kanck har gleden av å presentere denne flotte eneboligen over tre etasjer, attraktivt beliggende på en høyde med både skjermet beliggenhet og utsyn. Hovedinngangen ligger i første etasje, med adkomst videre til underetasje 1 som utgjør boligens hoveddel, samt underetasje 2. Boligen har en gjennomtenkt planløsning med praktisk romfordeling, og alle etasjer kan by på en imponerende utsikt. Eiendommen inkluderer en romslig garasje samt en egen strandparsell med mulighet for både båtliv og bading – et sjeldent og svært ettertraktet gode for deg som ønsker nærhet til sjøen. Strandparsell på 20 kvm! Panoramautsikt over Oslofjorden og hovedstaden Renovert i 2023/2024 Lekkert kjøkken fra Strai Stor garasje fra 2007 på 37 kvm Barnevennlig område med sjøen som nær

Solforhold

Sommerstid er det sol fra tidlig morgen til sen kveld, mens det om vinteren hovedsakelig er sol midt på dagen på de sørvendte flatene. Når man står på eiendommen og ser mot Oslofjorden, oppleves morgensolen fra sørøst som særlig fin på hage og uteplasser vendt mot vannet. Utover dagen beveger solen seg over himmelen mot sør, og det er godt med sol på terrasser og sørvendte fasader. På ettermiddagen og kvelden faller solen mot sørvest, og man kan oppleve sol helt til solnedgang på vestvendte deler av eiendommen.

Nøkkelinformasjon

Boligtype:
Enebolig
Byggeår:
1938
Soverom:
4
Prisantydning:
17 900 000,-
Omkostninger:
448 880,-
Totalpris:
18 348 880,-
Kommunale avgifter:
52 674,- per år
Totalt BRA:
275 m2
Tomteareal:
2 052,1 m2 (eiet)
Energimerking:
C - oransje
Garasje:
Ja
Veranda:
Ja

Visninger

Gi bud

Har du finanseringsbevis på plass?

I samarbeid med

En personlig rådgiver fra vår samarbeidspartner Storebrand Bank vil hjelpe deg å gjøre deg klar til budrunden.


Trygg bolighandel med Nordvik

Forsikringer

Hos oss i Nordvik har vi for gode forsikringer til både deg som skal selge og deg som skal kjøpe.

Boligforsikring