Laster visningspåmelding...

Utsynet 24Moss

Alle bilder (38)

1/38

Utvalgte bilder

Moss
Utsynet 24
Prisantydning
9 500 000,-
Totalpris
9 738 880,-
Kommunale avg.
14 909,- per år
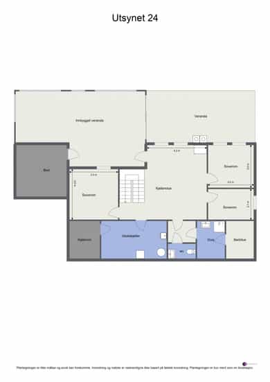
BRA-i
234 m2

Toppen av Jeløy

Skap din drømmebolig på Jeløys vestside - 2 stuer og 4 sov - Gode løsninger og spennende potensial - Tomt på 1 646 m²

Velkommen til Utsynet 24!

  • Sjelden mulighet i et svært ettertraktet område.
  • Oppussingsobjekt med familievennlige løsninger fordelt over to plan.
  • Fjordutsikt og flotte solforhold.
  • Skjermet tomt som grenser til friområde i vest.
  • 2 stuer med peis, 1 bad og 2 separate toalettrom.
  • 4 soverom. Hovedsoverom med eget bad, bod og utgang til veranda.
  • Stor vaskekjeller, kjølerom og badstue.
  • Montert elbil-lader i 2023.
  • Garasje med innvendig adkomst til bod.
  • Sykkelavstand til togstasjon - kun 30 min. med tog til Oslo S.
  • Eiendommen ligger i et rolig og veletablert nabolag på naturskjønne Jeløy, med kort vei til fjorden, flere badestrender og flotte turområder. Området byr på et godt og trygt bomiljø med nærhet til både barnehager og skoler.

    Nøkkelinformasjon

    Boligtype:
    Enebolig
    Byggeår:
    1979
    Etasje:
    2
    Soverom:
    4
    Prisantydning:
    9 500 000,-
    Omkostninger:
    238 880,-
    Totalpris:
    9 738 880,-
    Kommunale avgifter:
    14 909,- per år
    Totalt BRA:
    290 m2
    Tomteareal:
    1 645,9 m2 (eiet)
    Garasje:
    Ja
    Veranda:
    Ja

    Visninger

    Gi bud

    Har du finanseringsbevis på plass?

    I samarbeid med

    En personlig rådgiver fra vår samarbeidspartner Storebrand Bank vil hjelpe deg å gjøre deg klar til budrunden.


    Trygg bolighandel med Nordvik

    Forsikringer

    Hos oss i Nordvik har vi for gode forsikringer til både deg som skal selge og deg som skal kjøpe.

    Boligforsikring

    Ingen kjenner nabolaget bedre!

    Hva sier innbyggerne om Moss?

    Nordvikundersøkelsen gjør deg litt bedre kjent med området boligen ligger i, og får frem fakta, funn og innsikt som vi tror kan være nyttig ved valg av ny bolig.

    Hele undersøkelsen finner du her.

    Trivsel

    90%

    Vil bli boende i Moss dersom de skulle flyttet.

    Søndagsaktivitet

    • Er ute, på tur, ski, trening (68%)
    • Venner, familie, besøk, middag (10%)
    • Slapper av, ser på TV, leser (24%)
    • Jobber i hage/hus (5%)

    Hva er innbyggene mest stolt av i nabolaget?

    Vennlig og hjelpsomme naboer

    77%

    Av alle innbyggene beskriver naboene sine som vennlige og hjelpsomme.

    All data er hentet fra Nordvikundersøkelsen gjennomført våren 2025 i samarbeid med Norstat.