Laster visningspåmelding...

Arnebråtveien 137 (Hus 3)Holmenkollen

Alle bilder (6)

1/6

Utvalgte bilder

Holmenkollen
Arnebråtveien 137 (Hus 3)
Prisantydning
18 900 000,-
Totalpris
19 028 030,-
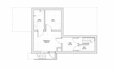
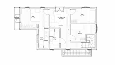
BRA-i
183 m2
Soverom
3

Villa Voksen - Klassisk enebolig under oppføring - Hage - Underjordisk garasje - Peis - Svært barnevennlig

Nøkkelinformasjon

Boligtype:
Ukjent (Eierseksjon)
Byggeår:
2027
Soverom:
3
Prisantydning:
18 900 000,-
Omkostninger:
128 030,-
Totalpris:
19 028 030,-
Totalt BRA:
183 m2

Visninger

Gi bud

Har du finanseringsbevis på plass?

I samarbeid med

En personlig rådgiver fra vår samarbeidspartner Storebrand Bank vil hjelpe deg å gjøre deg klar til budrunden.


Trygg bolighandel med Nordvik

Forsikringer

Hos oss i Nordvik har vi for gode forsikringer til både deg som skal selge og deg som skal kjøpe.

Boligforsikring

Ingen kjenner nabolaget bedre!

Hva sier innbyggerne om Vestre Aker?

Nordvikundersøkelsen gjør deg litt bedre kjent med området boligen ligger i, og får frem fakta, funn og innsikt som vi tror kan være nyttig ved valg av ny bolig.

Hele undersøkelsen finner du her.

Trivsel

88%

Vil bli boende i bydelen dersom de skulle flyttet i dag.

Søndagsaktivitet

  • Er ute, på tur, ski, trening (73%)
  • Venner, familie, besøk, middag (14%)
  • Slapper av, ser på TV, leser (15%)
  • Jobber i hage/hus (13%)

Hva er innbyggene mest stolt av i nabolaget?

Vennlig og hjelpsomme naboer

70%

Av alle innbyggene beskriver naboene sine som vennlige og hjelpsomme.

All data er hentet fra Nordvikundersøkelsen gjennomført våren 2025 i samarbeid med Norstat.