Soltoppen 22
- Soltoppen 22
- Prisantydning
- 5 350 000,-
- Totalpris
- 5 485 100,-
- Kommunale avg.
- 14 350,- per år
- BRA-i
- 126 m2
Soltoppen/ Risør
Solrik og innholdsrik hytte fra 2022 - Nydelig utsikt over skog og sjø - Solrikt - Mulig båtplass* - 5 sov.
Kristoffer Eastwood i Nordvik presenterer Soltoppen 22! Moderne og nyere hytte med god planløsning og fin beliggenhet. Hytta ligger høyt og luftig i fredelige omgivelser med en nydelig utsikt og sol hele dagen. Pent opparbeidet tomt med hyggelige oppholdssoner og lune områder for kveldstimene. Hytta fremstår som innholdsrik og gjennomtenkt med bl.a. 5 soverom og 2 stuer. Soltoppen har nærhet til et fantastisk nærområde med ferskvann, sjøen og flotte turmuligheter til fots eller med sykkel. Kort gangavstand til Jegertunet med servering, basseng, lekeplass, tennisbane m.m. Mulighet for leie av båtplass kort gange fra hytta. Ca. 15-20 min. med Øysang til Risør.
Nøkkelinformasjon
- Boligtype:
- Fritidseiendom
- Byggeår:
- 2022
- Etasje:
- 2
- Soverom:
- 5
- Prisantydning:
- 5 350 000,-
- Omkostninger:
- 135 100,-
- Totalpris:
- 5 485 100,-
- Kommunale avgifter:
- 14 350,- per år
- Totalt BRA:
- 126 m2
- Tomteareal:
- 397 m2 (eiet)
- Energimerking:
- C - oransje
- Veranda:
- Ja
Visninger
Presenteres av
Har du finanseringsbevis på plass?
I samarbeid med
En personlig rådgiver fra vår samarbeidspartner Storebrand Bank vil hjelpe deg å gjøre deg klar til budrunden.
Nøkkelinformasjon
Oppdragsnummer
39-0051/25
Boligtype og eieform
Fritidseiendom (Eiet)
Adresse og betegnelse
Soltoppen 22, 4990 Søndeled
Gnr. 25, bnr. 291 i Risør kommune.
Selger(e)
Morten Moseidjord
Annita Irene Delbekk Moseidjord
Kjøpesum og omkostninger
5 350 000,- (Prisantydning) Omkostninger: 133 750,- (Dokumentavgift) 260,- (Pantattest kjøper) 545,- (Tinglyst pantedokument) 545,- (Tinglyst skjøte) 19 200,- (Boligkjøperpakke* (valgfritt)) -------------------------------------------------------- 135 100,- (Omkostninger totalt (uten Boligkjøperpakke)) 154 300,- (Omkostninger totalt (med Boligkjøperpakke)) -------------------------------------------------------- 5 485 100,- (Totalpris inkl. omkostninger (uten Boligkjøperpakke)) 5 504 300,- (Totalpris inkl. omkostninger (med Boligkjøperpakke)) -------------------------------------------------------- NB: Regnestykket forutsetter at det kun tinglyses ett pantedokument og at eiendommen selges til prisantydning. Dokumentavgiften er 2,5% av salgssummen. Det tas forbehold om endringer i offentlige avgifter/gebyrer.
Om boligen
Byggeår
2022
Arealer
BRA-i: 126 kvm
Totalt BRA: 126 kvm
TBA: 118 kvm
Beskrivelse:
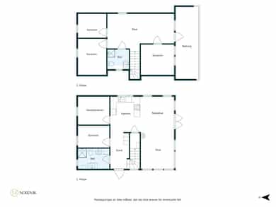
1. etasje:
BRA-i: 72 kvm. Entré, kjøkken, bod, bad/vaskerom og 2 soverom. Teknisk rom.
Totalt BRA: 72 kvm
TBA: 101 kvm.
2. etasje:
BRA-i: 54 kvm. Stue, bad og 3 soverom.
Totalt BRA: 54 kvm
TBA: 17 kvm.
Takstmannens kommentar til arealoppmåling:
Gang og soverom er gjort om til stue og soverom i 2 etasje. Ikke rømningsstige fra soverom i 2 etasje.
Antall soverom
5
Innhold
1. etasje: Entre, kjøkken, bod, teknisk rom, bad/vaskerom og 2 soverom. 2. etasje: Stue, bad og 3 soverom.
Standard
Boligen holder høy standard fra byggeår 2022. Hyttas innvendige flater er av god kvalitet med moderat bruksslitasje. Kjøkkeninnredning med slette fronter og laminat benkeplate. Det er integrerte hvitevarer og ventilator i stål. Kjøkkenet er praktisk utformet med god plass for matlaging og oppbevaring. Badet i 2. etasje har fliser på gulv med oppkant og baderomsplater på vegger, med ventilasjon fra vifte i taket. Badet er innredet med toalett, servant med skuffeinnredning, dusjhjørne og speil. Det er godt fall mot sluken og normal slitasje på overflater og utstyr. Fliser på gulv med 26 mm fall fra dør til sluk. Synlig slukmansjett i sluken, utover det er ikke membran kontrollert. Hulltaking ikke nødvendig, da badet er nytt og det foreligger dokumentasjon. Badet i 1. etasje har fliser på gulv med oppkant og baderomsplater på vegger, med ventilasjon fra vifte i yttervegg. Badet fungerer også som vaskerom og er innredet med opplegg for vaskemaskin, toalett, skap, servant med skuffeinnredning, dusjhjørne og speil. Det er godt fall mot sluken og normal slitasje på overflater og utstyr. Fliser på gulv med 37 mm fall fra dør til sluk. Synlig slukmansjett i sluken, utover det er ikke membran kontrollert. Hulltaking ikke nødvendig, da badet er nytt og det foreligger dokumentasjon samt at det er luke fra boden.
Parkering
Biloppstillingsplasser på egen tomt med plass til ca. 6 biler. Gangavstand til båtplass som nåværende eier leier i Hødnebøkilen. Grunneier har bekreftet at båtplassen kan overdras til ny eier. Prisen for 2025 var på 5.990,-.
Sammendrag selgers egenerklæringsskjema
Selgers egenerklæringsskjema følger vedlagt salgsoppgaven. Interessenter oppfordres til å gjennomgå dette nøye. Følgende opplysninger er spesielt viktig å merke seg: 1. Vet du om det har det blitt utført arbeid på bad/våtrom, enten i din eller tidligere eiertid? Nei Eventuell kommentar: Nybygg 2022. Ingen endringer utført siden bygging. 2. Vet du om det er gjort endringer eller reparasjoner på tak, fasade, pipe/ildsted, terrasse, garasje, bod eller lignende, enten i din eller tidligere eiertid? Nei Eventuell kommentar: Nybygg 2022. Ingen endringer utført siden bygging. 3. Vet du om det er gjort arbeid med drenering, enten i din eller tidligere eiertid? Nei Eventuell kommentar: Nybygg 2022. Ingen endringer utført siden bygging. 4. Vet du om det er gjort arbeid på det elektriske anlegget, enten i din eller tidligere eiertid? Nei Eventuell kommentar: Nybygg 2022. Ingen endringer utført siden bygging. 5. Vet du om det er gjort arbeid på vann og avløp, enten i din eller tidligere eiertid? Nei Eventuell kommentar: Nybygg 2022. Ingen endringer utført siden bygging. 6. Vet du om boligen eller eiendommen har blitt endret eller bygget ut etter opprinnelig byggeår, enten av deg eller tidligere eiere, herunder bruksendringer kjeller/loft etc.? Nei Eventuell kommentar: Nybygg 2022. Ingen endringer utført siden bygging. 7. Vet du om eiendommen har privat vannforsyning, septik, pumpekum, avløpskvern eller liknende? Nei Eventuell kommentar: Tilknyttet kommunal vann og avløp. 8. Vet du om det har vært utført kontroll av installasjoner for eksempel oljetank/ sentralfyr/ ventilasjon? Nei Eventuell kommentar: Ingen av ovennevnte installasjoner i fritidsboligen. 32. Vet du om det er noe annet ved eiendommen som det kan være viktig for kjøperen å vite om? Ja Beskriv: I kjøpekontrakten for tomt står det bla.: "Med tomten følger det et tilleggsareal på ca. 100kvm i front av tomta. Denne ligger i dag på gnr.25 brn. 4. Kjøper skal ha vederlagsfri bruksrett til denne delen av eiendommen, eller det kan ved et senere tidspunkt søkes Risør kommune om grensejustering. Bruksretten kan tinglyses på eiendommen".
Byggemåte
Det er i forbindelse med salget utarbeidet en tilstandsrapport fra bygningssakkyndig. Tilstandsrapporten er en teknisk gjennomgang av boligen med oppdagede avvik. Vedlagt salgsoppgaven følger tilstandsrapporten og selgers egenerklæring. Disse må leses nøye av interessenter før bud inngis. Opplysninger gitt i tilstandsrapporten anses å være kjent for kjøper, og det kan derfor ikke reklameres på forhold som fremkommer av tilstandsrapporten. Forhold som har fått TG2 og TG3 må gjennomgås spesielt nøye, da disse indikerer avvik fra normal slitasje og/eller høy alder, med mulig behov for utbedring. Bygningsdeler som har fått TGIU er ikke undersøkt av takstmann. Beskrivelsen av boligen som følger er hentet fra tilstandsrapporten: Utvendig: Undertak av diffusjonsåpent undertak, sløyfer og lekter tekket med betongtakstein. Undersøkelsen er foretatt ved utvendig besiktigelse fra bakkenivå. Undertak, sløyfer og lekter er ikke inspisert. Takrenner, nedløp, takstige, snøfangere og pipebeslag av plastbelagt stål. Veggkonstruksjonen er bindingsverk med utvendig kledning av stående beiset panel. Takkonstruksjonen består av prefabrikkerte takstoler med lufting over tak. Det er vinduer i malt trekonstruksjon med utvendige beslag av aluminium samt to takvinder. Det er dører i malt trekonstruksjon hvor noen er med utvendige beslag av aluminium. Terrassedekke og bjelker i impregnert treverk med rekkverk av metall og glass. Innvendig: Hyttas innvendige flater av god kvalitet. Støpt dekke av betong og etasjeskillere er utført av bjelkelag i tre. Bygget er opplyst utført med radonsperre og dokumentasjon er mottatt. Det er stålpipe med peisovn i stua, som står på skifer. Malt trapp med heltre trinn, mellom etasjene. Malte slette innvendige dører. Tekniske installasjoner: Vannrør av rør-i-rør med fordelingsskap, noe fordelingsrør i kobber. Synlige deler av avløpsledninger er av plast. Naturlig ventilasjon fra ventiler. Varmtvannstanken står i teknisk rom. Sikringsskap fra byggeår med automatsikringer og jordfeilbryter. Brannslokkingsapparat fra byggeår og røykvarsler i tak. Bygningsdeler som har fått TG3: Tomteforhold > Forstøtningsmurer: Vurdering av avvik: Det mangler rekkverk/annen sikring på forstøtningsmuren(e) ut ifra dagens krav. Konsekvens/tiltak: Rekkverk/annen sikring på forstøtningsmur må settes opp/utbedres. Kostnadsestimat: 10 000 - 50 000
Innbo og løsøre
Alle hvitevarer medfølger.
Vedlagt salgsoppgaven følger NEF sin standardliste "Oversikt over løsøre og tilbehør". Med mindre annet fremkommer av salgsoppgaven gjelder denne listen.
Alle fastmonterte gjenstander medfølger.
Dersom det er noe i overnevnte liste som ikke finnes på eiendommen, vil det heller ikke medfølge. Produkter og installasjoner som medfølger overdras uten noen form for garantier, utover eventuell gjenværende leverandørgaranti. Hull og merker etter feste av innredning og utstyr som ikke følger med, aksepteres av kjøper.
Adgang til utleie
Boligen kan leies ut.
Energi og oppvarming
Energimerking
C - oransje
Alle eiendommer som selges/leies ut skal ha energiattest. Unntak gjelder blant annet for frittstående bygninger med bruksareal mindre enn 50 m². Det er eier som plikter å fremlegge energiattest og er selv ansvarlig for at opplysningene er riktig.
Selger har fylt ut fullstendig energiattest som er lagt ved salgsoppgaven. Megler har ikke ansvar for informasjonen som fremgår av energiattesten.
Oppvarming
Varmekabler i stue, kjøkken, gang og 2 bad. Peisovn til vedfyring.
Informasjon om strømforbruk
Selger opplyser å ha et strømforbruk på ca. 10 137 kWh i 2024. Energiforbruket vil variere fra husstand til husstand. Selger har inngått avtale om Norgespris på strøm. Avtalen følger målepunktet, og kjøper er derfor bundet av avtalen om Norgespris til og med 31.12.2026.
Økonomi
Kommunale avgifter
Kr. 14 350,- pr. 2025
Avløp: kr 7468,82,-
Vann: kr 4188,93,-
Renovasjon fritid: kr. 2 692,-
Oppgitt beløp er et estimat for hele året - endelig fakturert beløp kan avvike.
Andre utgifter
Selger opplyser å ha følgende kostnader knyttet til boligen: - Fiberkabel fra Afiber AS (Altibox) kr 679,- pr mnd. - KLP forsikring Fritidshus maks med sopp- og råtedekning (inkludert innboforsikring) kr 6 804,- pr år. - Spleiser med naboene på kostnader for brøyting om vinteren. Regnskap håndteres av naboene på omgang, ett år hver. Det er opp til kjøper å ev. inngå nye avtaler med ønskede tjenesteytere.
Eiendomsskatt
Kr. 1 848,- pr. 2025
Eiendomsskatt på kr 1 848,- er kun for tomta. Full eiendomsskatt vil påløpe etter taksering.
https://www.risor.kommune.no/tjenester/naring-og-bevilling/faktura-skatt-og-gebyrer/eiendomsskatt/generelt-om-eiendomsskatt-i-risor-kommune/
Formuesverdi
Kr. 936 221,- pr. 2023
Formuesverdien for fritidsbolig blir i utgangspunktet satt til prosentandel av eiendommens markedsverdi/byggekostnader inkludert tomt.
For mer informasjon om formuesverdi, se Skatteetatens nettsider.
Tomt
Beskrivelse av tomt
Tomtestørrelse: 397 kvm (eiet)
Utearealet er pent oppgradert med plattinger, gjerder i glass og tre, samt gruset tomt.
Adkomst
Det vil bli skiltet med visningsskilt fra Nordvik under annonserte visninger. Åpner du annonsen på hjem.no eller nordvikbolig.no, finnes kartskisse. Ved å trykke på kartet får du enkelt tilgang til reiserute fra din starts destinasjon til boligen.
Radonmåling
Selger har ikke utført radonmåling. Det er ikke krav om dette med mindre boligen er helt eller delvis utleid.
Områdebeskrivelse
Beskrivelse av nærområdet
Soltoppen 22 ligger høyt og luftig med utsikt, stor uteplass, gode solforhold, og fredelige og rolige omgivelser. Fra eiendommen er det en kort spasertur til både ferskvann, sjøen og båtplass. Her er det mange turer i skog og mark til fots eller med sykkel. Gangavstand til Jegertunet med fasiliteter som restaurant, uteservering, badebasseng, lekeplass, tennis, sandvolleyball bane mm. Tur med Øysang til Risør. Øysang er Norges eneste bilferje i tre! Turen tar 15-20 minutter.
Offentlige forhold
Ferdigattest / brukstillatelse
Det er avvik fra dagens rombruk/rombenevnelser sammenlignet med det som er byggemeldt/godkjent. Gang og soverom er gjort om til stue og soverom i 2 etasje. Se vedlagte byggetegning. Det foreligger ferdigattest for eiendommen datert 06.10.2022. Ferdigattesten gjelder for ny hytte slik det er beskrevet i tillatelse 21/4209. Ferdigattest utstedes av bygningsmyndighetene på grunnlag av mottatt dokumentasjon fra kontrollansvarlige når et søknadspliktig tiltak er utført i samsvar med tillatelsen og øvrige krav etter plan- og bygningslovgivningen. At ferdigattest eksisterer, gir ingen garanti for bygget er oppført i henhold til tillatelsen og gjeldende regelverk eller at det senere er utført arbeid på bygget som ikke er byggemeldt eller godkjent.
Vei, vann og avløp
Vann og avløp: Eiendommen er tilknyttet offentlig vann og avløp. Stikkledninger fra eiendommen og ut til kommunalt nett er private, vedlikeholdsansvaret påhviler eier. Vei: Felles adkomstvei med naboene. Det vil påløpe vedlikeholdskostnader etter hvert. Hyttene er nye i 2022, så det har ikke påløpt noe ennå. Det fremkommer av kjøpekontrakten for tomta at "tomten leveres med bruksrett til veg fra riksvei 351 og frem til tomtegensen i samsvar med vedlagt kartskisse." Det er ikke installert vannmåler.
Regulerings- og arealplaner
Reguleringsplaner ID: 2005004 Navn: Storeplass hytteområde Plantype: Eldre reguleringsplan Status: Endelig vedtatt arealplan Ikrafttredelse: 25.08.2005 Bestemmelser - https://www.arealplaner.no/4201/dokumenter/55/Reguleringsbestemmelser.pdf Delareal 35 kvm Formål: Jord- og skogbruk Feltnavn J2 ID: 2010006 Navn: Del av Storeplass, felt FB8-10 Plantype: Detaljregulering Status: Endelig vedtatt arealplan Ikrafttredelse: 23.09.2010 Bestemmelser - https://www.arealplaner.no/4201/dokumenter/2901/Regbest%2010.11.21.pdf Delareal: 356 kvm Formål Fritidsbebyggelse-frittliggende Feltnavn BFF Delareal: 6 kvm Formål: Annen veggrunn - tekniske anlegg Feltnavn f_SVT2 Kommuneplaner: ID: 2019001 Navn: Arealdel av kommuneplanen Plantype: Kommuneplanens arealdel Status: Endelig vedtatt arealplan Ikrafttredelse 29.11.2019 Bestemmelser - https://www.arealplaner.no/4201/dokumenter/687/Planbestemmelser.pdf Delareal: 397 kvm Arealbruk: Fritidsbebyggelse, Nåværende Planer under arbeid Kommuneplanens arealdel ble offisielt åpnet for innspill 13.06.24. Høringsfrist for planprogrammet og for å komme med innspill var 16.09.24. Arbeidet med kommuneplanens arealdel er et stort og viktig arbeid og kommer til å pågå i resten av 2024 og utover i 2025. Besøk kommunens hjemmeside for mer informasjon.
Tinglyste heftelser og forpliktelser
På eiendommen er det tinglyst følgende heftelser og rettigheter som følger eiendommens matrikkel ved overskjøting til ny hjemmelshaver: 4201/25/291: 23.04.2025 - Dokumentnr: 447303 - Registerenheten kan ikke disponeres over uten samtykke fra rettighetshaver Rettighetshaver: Nordvik Oppgjør AS Org.nr: 814 449 912 Elektronisk innsendt 09.12.2021 - Dokumentnr: 1551939 - Registrering av grunn Denne matrikkelenhet opprettet fra: Knr:4201 Gnr:25 Bnr:215 Elektronisk innsendt Fra hovedbølet som eiendommen er fradelt fra, kan det være tinglyst heftelser i form av erklæringer/avtaler som ikke fremgår av grunnboken for denne eiendommen. Det gjøres oppmerksom på at grunnboken er endret, slik at det ikke lenger er mulig for kjøpers bank å forutsette 1. prioritets pant der hvor det er tinglyste heftelser, som ikke skal slettes for selgers regning. Eiendommen blir overdratt fri for rene pengeheftelser med mindre annet er oppgitt.
Legalpant
Kommunen har legalpant som sikkerhet for betaling av kommunale avgifter og eventuell eiendomsskatt. Legalpant er pant som ikke kommer frem av grunnboksutskriften, og har bedre prioritet enn for eksempel lån til bank som er tinglyst på eiendommen.
Øvrige kjøpsforhold
Diverse
Kjøper og selger er forpliktet til å undertegne standard kjøpekontrakt utarbeidet av Nordvik i forbindelse med eiendomstransaksjonen. Kjøpekontrakt kan besiktiges hos eiendomsmegler før bud inngis. Kontakt eiendomsmegler for spørsmål. Selger leverer eiendommen i ryddig og rengjort stand.
Overtagelse
Overtakelse skjer etter avtale med selger. Før boligen overleveres kjøper, skal fullt oppgjør og omkostninger være mottatt på meglers klientkonto.
Sentrale lover
Generelle bestemmelser Alle innvendige og utvendige arealangivelser, samt beskrivelser av bygningen er hentet fra vedlagte tilstandsrapport/boligsalgsrapport. Salgsoppgaven er basert på de opplysningene selger har gitt til megler, den bygningssakkyndiges tilstandsrapport, samt opplysninger innhentet fra kommunen, Kartverket og andre tilgjengelige kilder. Det er viktig at kjøper setter seg grundig inn i alle salgsdokumentene, herunder salgsoppgave, tilstandsrapport og selgers egenerklæring. Kjøper anses kjent med forhold som er tydelig beskrevet i salgsdokumentene, og slike forhold kan ikke påberopes som mangler. Dette gjelder uavhengig av om kjøper har lest dokumentene. Det kan være avvik fra dagens rombruk/rombenevnelser sammenlignet med det som er byggemeldt/godkjent. Alle interessenter oppfordres til å undersøke eiendommen nøye, gjerne sammen med fagkyndig før bud inngis. Kjøper som velger å kjøpe usett kan ikke gjøre gjeldende som mangel noe han burde blitt kjent med ved undersøkelsen. Dersom det er behov for avklaringer, anbefaler vi at interessenter rådfører seg med eiendomsmegler eller egne rådgivere før det legges inn bud. En bolig som har blitt brukt i en viss tid, har vanligvis blitt utsatt for slitasje og skader kan ha oppstått. Slik bruksslitasje må kjøper regne med, og det kan avdekkes enkelte forhold etter overtakelse som nødvendiggjør utbedringer. Normal slitasje og skader som nødvendiggjør utbedring, er innenfor hva kjøper må forvente og vil ikke utgjøre en mangel. Kjøper og selgers rettigheter og plikter reguleres av avtalen mellom partene, samt informasjonen som har vært tilgjengelig for kjøperen i forbindelse med handelen. Avtalen utfylles av avhendingsloven, og det gjelder ulike avtalevilkår avhengig av om kjøper er forbrukerkjøper eller ikke. Dette er nærmere beskrevet nedenfor. På grunn av ulike avtalevilkår kan selger vurdere bud fra en som ikke er forbruker, ulikt fra en forbrukers bud. Dersom kjøper ikke er forbruker, er selger sitt mulige mangelsansvar begrenset fordi eiendommen selges "som den er". Selger kan ikke ta «som den er» forbehold ovenfor en forbrukerkjøper. Selv et lavere bud fra en som ikke er forbruker kan foretrekkes fordi begrensningen i mulig mangelsansvar kan ha egenverdi for selger. Selger står fritt til å forkaste eller akseptere ethvert bud, og er for eksempel ikke forpliktet til å akseptere høyeste bud. Budgiver skal i budskjema avgi egenerklæring om budgiver er forbruker eller næringsdrivende/ person som hovedsakelig handler som ledd i næringsvirksomhet. Budgivere får informasjon dersom andre bud er inngitt av en som ikke er forbruker. Forbrukerkjøp - definisjon Med forbrukerkjøp menes kjøp av eiendom når kjøperen er en fysisk person som ikke hovedsakelig handler som ledd i næringsvirksomhet. Forbruker – avtalevilkår Eiendommen har en mangel dersom den ikke er i samsvar med kravene som følger av avtalen, eller det foreligger brudd på bestemmelsene i avhendingsloven §§ 3-2 til 3-8. Hvis eiendommen ikke er i samsvar med det kjøperen må kunne forvente ut ifra alder, type og synlig tilstand, kan det være grunnlag for mangelskrav. Det samme gjelder hvis det er holdt tilbake eller gitt uriktige opplysninger om eiendommen. Dette gjelder likevel bare dersom man kan gå ut ifra at det virket inn på avtalen at opplysningen ikke ble gitt eller at feil uriktige opplysninger ikke blir rettet i tide på en tydelig måte. Boligen kan ha en mangel etter avhendingsloven § 3-3 dersom det er avvik mellom opplyst og faktisk innvendig areal, forutsatt at avviket er på 2% eller mer og minimum 1 kvm. Ved beregning av et eventuelt prisavslag eller erstatning må kjøper selv dekke tap/kostnader opptil et beløp på kr 10 000 (egenandel). Ikke-forbruker (næringsdrivende) – definisjon Hvis kjøper er en juridisk person, eller en fysisk person som hovedsakelig handler som ledd i næringsvirksomhet, vil kjøpet ikke anses som et forbrukerkjøp. Ikke-forbruker – avtalevilkår Eiendommen har en mangel dersom den ikke er i samsvar med kravene som følger av avtalen. Eiendommen selges «som den er», og selgers ansvar utover det konkret avtalte er da begrenset etter avhendingsloven § 3-9, første ledd andre setning. Avhendingsloven § 3-3 andre ledd fravikes, og hvorvidt boligens arealsvikt utgjør en mangel vurderes etter avhendingsloven § 3-8. Informasjon om kjøpers undersøkelsesplikt, herunder oppfordringen om å undersøke eiendommen nøye, gjelder også for kjøpere som ikke anses som forbrukere.
Boligselgerforsikring
Selger har tegnet boligselgerforsikring. Se selgers egenerklæringsskjema vedlagt salgsoppgaven.
Boligkjøperforsikring
I samarbeid med Storebrand og HELP tilbyr Nordvik Boligkjøperpakke til våre boligkjøpere. Boligkjøperpakken er et gunstig forsikringskonsept som inneholder alle de forsikringene du trenger til den nye boligen din. Boligkjøperpakke hytte inneholder: Boligkjøperforsikring fra HELP, flytteforsikring, innboforsikring Super og hytteforsikring Super fra Storebrand. Boligkjøperforsikring er en rettshjelpsforsikring som gir trygghet og profesjonell juridisk hjelp dersom det oppdages uventede feil eller mangler ved boligen. Forsikringen gjelder i 5 år fra overtakelsen. Flytteforsikring dekker skade på eiendeler under flytting ved plutselig og uforutsett hendelse som oppstår under transport eller i forbindelse med bæring mellom bolig, bil eller lagringssted. Forsikringen varer i 1 år fra overtakelsen. Innboforsikring Super dekker tingene dine ved blant annet tyveri, brann eller vannskader. Vår beste innboforsikring Super inkluderer blant annet uflaksforsikring, bistand ved ID-tyveri og psykologhjelp ved alvorlige hendelser hjemme. Forsikringen gjelder i 3 måneder fra overtakelsesdatoen av ny bolig. Hytteforsikring Super dekker alt fra brann og vannskader til naturskader og bekjempelse av rotter og mus. I tillegg inkluderer Super-dekningen vannskader fra våtrom, sopp- og råteskader, og følgeskader på bygningen som skyldes håndverkerfeil. Forsikringen gjelder i 3 måneder fra overtakelsesdatoen av ny bolig. Boligkjøperforsikring fra HELP kan også kjøpes separat og inkluderer da flytteforsikring fra Storebrand. Boligkjøperpakke/Boligkjøperforsikring må tegnes senest ved kontraktsignering og gjelder fra overtakelsen. Kjøper blir kontaktet av Storebrand med et tilbud på videre forsikring av hus og innbo. Se pris og mer informasjon om forsikringene i produktarket vedlagt salgsoppgaven, eller ta kontakt med megler.
Betalingsbetingelser
Oppgjør skal betales i en samlet innbetaling fra norsk bank. Betaling fra utlandet tillates kun i unntakstilfeller og dersom det er avklart med megler i anledning avtaleinngåelse (budaksept).
Viktig informasjon om budgivning
Alle bud skal inngis skriftlig til megler, som formidler disse videre til selger. Kravet til skriftlighet gjelder også budforhøyelser og motbud, aksept eller avslag fra selger. Bud kan legges inn på eiendommens finn-annonse ved å trykke på knappen «gi bud» eller via vår hjemmeside. Ved elektronisk budgivning legges bud inn ved å benytte BankID. Bud kan også inngis på budskjema vedlagt i salgsoppgaven. Før megler formidler bud til selger, skal megler innhente gyldig legitimasjon og signatur fra budgiver. Kravet til legitimasjon og signatur er oppfylt for budgivere som benytter e-signatur, eksempelvis BankID eller MinID. Senere bud kan inngis per e-post eller SMS til megler. Dersom budgiver skal by på eiendommen i henhold til kjøpsfullmakt må megler kontaktes i forkant av budgivning. Ved bruk av kjøpsfullmakt, må fullmakten oversendes til megler i forkant av budgivning. Et bud bør inneholde eiendommens adresse (eventuelt gnr/bnr), kjøpesum, budgivers kontaktinformasjon, finansieringsplan, akseptfrist, overtakelsesdato og eventuelle forbehold som for eksempel usikker finansiering, salg av nåværende bolig ol. Normalt vil ikke et bud med forbehold bli akseptert før forbeholdet er avklart. Konferer gjerne med megler før bud avgis. Megler skal legge til rette for en forsvarlig avvikling av budrunden. I forbrukerforhold (dvs. der selger er forbruker) skal megleren ikke formidle bud med kortere akseptfrist enn kl. 12.00 første virkedag etter siste annonserte visning. Senere bud må ha en tilstrekkelig lang akseptfrist til at megler, så langt det er nødvendig og mulig, kan videreformidle budet og eventuelle forbehold til alle involverte parter og legge til rette for at disse får tid til å områ seg, jf. forskrift om eiendomsmegling § 6-3. Akseptfrist bør derfor være på minimum 30 minutter, og budforhøyelser bør skje senest 10 minutter før fristens utløp. Dersom bud inngis med en frist som åpenbart er for kort til at megleren kan avvikle budrunden på en forsvarlig måte, vil megler fraråde budgiver å stille slik frist. Megleren vil uoppfordret gi sin vurdering av det enkelte bud overfor selgeren, når budet er gitt innenfor akseptfristene ovenfor. Megler skal så snart som mulig bekrefte skriftlig overfor budgivere at budene deres er mottatt. Etter at handel har kommet i stand, eller dersom en budrunde avsluttes uten at handel er kommet i stand, kan en budgiver kreve kopi av budjournalen i anonymisert form. Kopi av budjournal skal gis til kjøper og selger uten ugrunnet opphold etter at handel er kommet i stand. Dersom det er viktig for budgiver å bevare sin anonymitet, bør budet fremmes gjennom fullmektig. For mer informasjon om budgivningsprosessen, se «Forbrukerinformasjon om budgivning», som er vedlagt salgsoppgaven, eller ta kontakt med megler.
Tilbud på finansiering
Du kan søke om boliglån hos vår samarbeidspartner Storebrand, og få svar på dagen. Med boliglån i Storebrand kan du være trygg på at du til enhver tid har blant markedets mest konkurransedyktige renter. Du vil bli tatt godt vare på av et av Norges beste servicemiljøer innen bank. Som kunde i Storebrand Bank får du en fast kontaktperson å forholde deg til, som vil gi deg gode råd og god hjelp med kort svartid. Søk om boliglån i Storebrand og få • Enkel søknad - og etableringsprosess • Svar på dagen • Fast kontaktperson å forholde deg til • Trygghet for at du alltid har konkurransedyktige betingelser Ta kontakt på telefon 22 31 22 21 eller nordvik@storebrand.no. Les mer på storebrand.no/nordvik. Meglerforetaket kan motta provisjon ved formidling av finansielle tjenester.
Hvitvasking
Eiendomsmeglere er underlagt lov om hvitvasking og tilhørende forskrift. Etter hvitvaskingsloven er eiendomsmegler pålagt å gjennomføre kundetiltak av både selger og kjøper. Hvis kjøper ikke bidrar til at megler får gjennomført kundetiltak, og dette fører til at transaksjonen ikke kan gjennomføres eller blir forsinket, misligholder kjøper avtalen. Etter 30 dager anses misligholdet vesentlig, og selger har rett til å heve avtalen og gjennomføre dekningssalg for kjøpers regning. Dersom det er selger som ikke bidrar til at megler får gjennomført løpende kundetiltak underveis i oppdraget må eiendomsmegler stanse gjennomføringen av transaksjonen. Selger vil i et slikt tilfelle ha misligholdt sine forpliktelser, og kjøper vil kunne ha et krav mot selger etter avhendingsloven. Hvis kundetiltak ikke lar seg gjennomføre, vil Nordvik Eiendomsmegling ikke kunne bistå med handelen eller foreta oppgjør.
Personopplysningsloven
Personopplysninger blir behandlet i samsvar med personopplysningsloven.
Om oppdraget
Eiendomsmeglers vederlag
Vederlag: Provisjon: 0,95% av salgssum – estimert til kr. 50 825,- Grunnpakke Fritid kr. 12 900,- Markedspakke Basis inkl. trykket salgsoppgave kr. 23 900,- Oppgjørshonorar** kr. 7 990,- Tilrettelegging kr. 13 900,- Visningshonorar/overtagelseshonorar per stk. kr. 1 950,- Utlegg: Selger skal betale utlegg i samsvar med oppdragsavtalen, stipulert til ca. 5 500,- Samlet skal selger betale kr. 116 965,- for vederlag og utlegg ved salg til prisantydning. Dersom oppdraget utløper eller blir sagt opp, uten at handel er kommet i stand, har megler krav på et rimelig vederlag for medgått tid/utført arbeid og avtalte utgifter (tilrettelegging, markedsføring og avholdte visninger) samt eventuelle utlegg. Ved beregningen av vederlaget skal det tas utgangspunkt i timeprisen som er kr. 3 625,-.
Vedlegg til salgsoppgaven
Vedleggene er en del av den komplette salgsoppgaven. Det er viktig at interessenter setter seg godt inn i vedleggene og kontakter megler med eventuelle spørsmål før bud inngis.
Ansvarlig megler
Kristoffer Eastwood, Daglig leder / Eiendomsmegler MNEF / Partner
485 02 050
k.eastwood@nordvikbolig.no
Meglerforetaket
Juridisk navn: Arendal Eiendomsmegling AS
Org. nr.: 932433192
Kirkegaten 5, 4836 ARENDAL
Samarbeidspartnere og foretak med tilknytning til Nordvik
Meglerforetaket og Nordvik-kjeden samarbeider med en rekke foretak som tilbyr produkter eller tjenester i forbindelse med megleroppdraget. - Storebrand leverer boligselgerforsikring, finansieringsløsninger og forsikringer til kjøper - Help forsikring leverer boligkjøperforsikring - Flytte- og lagringstjenester gjennom Loyalty, oppussing gjennom Steddy, brebånd levert av Telenor, alarm levert av Sector alarm, strøm levert av Fjordkraft og Fortum og utleietjenester levert av Utleiemegleren. Hvilke tilbud kjøper og selger får i forbindelse med oppdraget kan variere ut fra hvor i landet eiendommen ligger. Nordvik bolig AS, som er franchisegiver for Nordvik-kjeden, eier aksjer i Bomega AS (Hjem.no). Arendal Eiendomsmegling AS har indirekte eierskap i Bomega AS.
Trygg bolighandel med Nordvik
Forsikringer
Hos oss i Nordvik har vi for gode forsikringer til både deg som skal selge og deg som skal kjøpe.
BoligforsikringBilder
Kristoffer Eastwood
Daglig leder / Eiendomsmegler MNEF / Partner
Arendal
Selge bolig?
Slik hjelper jeg deg til
et godt salg
Er du klar til budrunde?