Hvordan tenker arkitektene? To tomter - to filosofier
Inspirasjon
— 26. september 2019

Hvordan bygger man gode boliger for barnefamilier i 2019? Og hvordan tenker arkitektene når de skal gjøre dette i et fortettingsområde?
Vi har sett på to prosjekter på Oslo Vest, med ganske like forutsetninger, men med veldig ulikt resultat. På den ene siden tradisjonelt og klassisk på Ullern, på den andre siden moderne og funkisinspirert på Røa/Huseby. Vi tok en prat med arkitektene for å finne ut hvordan de tenker når de skaper våre nye boliger.
Moderne med respekt for det opprinnelige
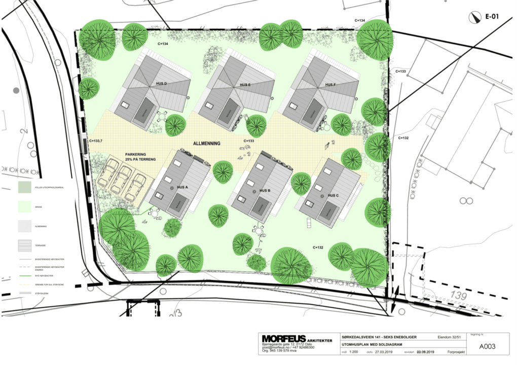
Først til Villa Huseby. Mellom Husebygrenda og stjerneblokkene sto det tidligere et hus som nå skal erstattes av seks moderne eneboliger. Oppgaven med å tegne disse husene var det Morfeus Arkitekter som fikk. Men hvordan tenker de når det skal skapes helt ny arkitektur blant noe gammelt og etablert?
– Vi må ta hensyn til både den eksisterende bebyggelsen og naturen som omgir tomten. Det innebærer ofte at man må velge mellom å tegne boliger som bryter helt med det eksisterende, eller å gjenbruke arkitektoniske elementer fra boligene rundt, sier Cecilie Wille, som sammen med Caroline Støvring fra Morfeus Arkitekter, står bak byhusprosjektet.
– Får man til dette, klarer man å unngå at det ser ut som eneboligene er seks sukkerbiter som er sluppet tilfeldig ned i terrenget, legger hun til.

Og nettopp dette er Morfeus arkitekter svært opptatt av. I 2016 førte deres fokus på å tilpasse nye boliger i eksisterende bebyggelsesstruktur, til en nominasjon til Oslo bys arkitekturpris. Da samarbeidet de også med Byhus, den samme ansvarlige utbyggeren som i dette prosjektet på Huseby.
Moderne med en tradisjonell vri
Arkitektene begynte arbeidet med å se etter hvilke elementer fra boligene rundt de kunne ta med seg til tegnebrettet. Gjennomgående for nabohusene er for eksempel spisse saltak og et tradisjonelt uttrykk. Her har Morfeus valgt å videreføre, men uten å kopiere:

– De nye husene har ikke flate tak, som mange forbinder med moderne funkis. De har bjelker som danner et spisst takparti, med delvis åpne sider som gir solrike takterrasser. Det gjør at husene passer godt inn i omgivelsene, sier Caroline.
– Så går alle mønene i samme retning som den eksisterende bebyggelsen. Det skaper en fin helhet med boligene som allerede finnes på stedet, viser arkitektene.
– Den bakerste raden med hus har en “knekk” i planen, som er hentet fra stjerneblokkene ved siden av. Denne raden med hus har også litt større volum enn de tre forreste, noe som er med på å skape en bedre overgang fra stjerneblokkene med store volum, til småhusene i Husebygrenda. Den fremste raden med hus ligner derfor mer på strukturen til Husebygrenda. Det er også fint at ikke alle husene er like i et boligprosjekt, men at alle har litt egenart og samtidig en arkitektonisk sammenheng, viser Caroline.

– Vi mener det er litt rart å bygge hus som ser ut som de er gamle. Måten vi bor i dag, all teknologien rundt oss, internett, telefoner og biler, alt tilsier at vi trenger en moderne bolig. Det er ingen grunn til at hus ikke skal følge sin tid!
I et fortettingsområde blir fargevalget også viktig.
– På de nye husene har vi valgt en mørkere farge, som gjerne gjør at husene fremstår nettere og mindre. Så mener vi den brunsorte, nøytrale naturfargen vil stå veldig fint til de grønne hagene og friområdene bak, uten å konkurrere med de gul- og oransjetonene man finner i bebyggelsen rundt. Alle seks eneboliger har samme farge for å skape en homogenitet, forklarer Cecilie.

Cecilie Wille og Caroline Støvring fra Morfeus Arkitekter
Seks eneboliger skal nå erstatte en, på samme tomt. Det er så mange hus som reguleringen tillater, men hvordan skaper man da gode bokvaliteter?
Tidløse elementer
I følge Morfeus er bra arkitektur, og en bolig som er god å bo i, kjennetegnet av at den kan brukes på forskjellige måter gjennom livet. Den bør være fleksibel og tåle at det kommer et ekstra familiemedlem, eller at barn flytter ut. Kanskje noen har med seg et flygel de gjerne vil ha plass til? Dette har arkitektene allerede tenkt på.
– Det må planlegges godt når alle seks boenheter skal få høy bokvalitet. Det betyr planløsninger som gir redusert gangareal inne, solrike uteområder, god utsikt og så lite innsyn som mulig.

– For å få til dette på denne tomten, tegnet vi alle eneboligene forskutt. Det vil si at alle husene ligger litt skrått på tomten, som fører til at alle kan nyte morgensolen på kjøkken og soverom, og ettermiddagssolen fra stue og takterrasse. Det gir godt med lys på alle takterrasser, og inn i loftstuene.
Ved å tegne boligene forskutt, er alle terrasseområder vendt bort fra naboer som gjør dem skjermet og uten innsyn.
– Ikke bare er det fint for beboerne å ha utsikt over Husebyskogen, sydvestvendt takterrasse og hage. Man unngår også at alle beboerne må finne en måte å sette opp egne levegger for skjerming, noe som gir et rotete uttrykk. Det gir rett og slett bedre arkitektur at vi allerede har tatt hensyn til dette i planløsningen.

At dette er svært viktig for nærmest alle kjøpergrupper, bekrefter Jens Christian Killengreen fra Nordvik Bygdøy Allé, som er ansvarlig eiendomsmegler på dette prosjektet:

– Godt lysinnslipp og hyggelig utsyn er viktig for alle. Selv om boligene er lagt nokså tett ved siden av hverandre, er det likevel begrenset innsyn. Dette er så viktig for folk at det kan utgjøre forskjellen på om det blir budkrig, eller ikke, forteller Killengreen.
Vinduene har litt ulike bredder og høyder, noe som har vært bestemt av hva som skjer på innsiden. De mindre soverommene har mindre vinduer som ikke går helt til gulv, da dette begrenser møbleringsmulighetene.
– I de større soverommene hvor vi har hatt muligheten, har vi valgt å lage vinduer fra gulv til tak. Da er rommet også mer fleksibelt, og kan brukes både soverom og stue, alt ettersom hva eier ønsker selv, sier Cecilie.
Det er noe ansvarlig eiendomsmegler, Jens Christian Killengreen, vet at potensielle kjøpere setter stor pris på:
– Disse husene er jo tegnet for barnefamilien, som gjerne ønsker å bo samme sted over tid. Men da er det også viktig for boligkjøpere å kunne tilpasse boligen etter hvert som behovene endres, noe dette boligprosjektet i aller høyeste grad tillater, forteller Jens Christian.
– Ikke bare kan de gjøre tilvalg etter egen smak, men planløsningen er så gjennomtenkt at en kjøper kan velge å samle alle soverom på ett plan, eller fordele dem over etasjene. Kjelleren kan brukes som bod/kjeller, eller brukes som utleiedel. Når arkitektene har tenkt på dette fra start, gir det kjøpere den fleksibiliteten de trenger, konkluderer han.
– Hva blir det beste med å bo akkurat her?
– Vi jobber mye med å skape glidende overganger mellom ute og inne. Ved å bruke store glassfelt og skyvedører, klarer vi å bryte ned dette skillet. Vi tror derfor forholdet mellom inne og ute blir det beste med å bo her, sier Cecilie.
Og arealene utenfor husenes vegger er like gjennomtenkte som det innenfor.
– Området mellom alle hagene skal fungere som et trivelig friareal der spontane møter kan oppstå blant naboer. Vi har derfor vært opptatt av at det ikke bør asfalteres her, vi ønsker minst mulig kjøring og parkering i dette området. Det kan for eksempel legges fin elvegrus, og gjerne noe variert vegetasjon, som bøkehekker og ripsbusker framfor tujahekker!, sier arkitektene.
– Så er vi stolte av at det har blitt god arkitektur ut av dette. Det kommer til å bli fine hus, de skiller seg fra det vi har tegnet før og fra sine omgivelser. Samtidig passer de godt inn. Vi streber alltid etter å tilføre noe nytt til hvert boligprosjekt, at alle har sin egen identitet og arkitektur, avslutter de.
Klassisk i Ullernchausséen

Selv om det bare er noen minutter med bil fra Morfeus sitt boligprosjekt på Huseby, til de snart nyoppførte eneboligene i Ullernchausséen, kommer vi til en litt annen verden innen arkitektur. Fordi for mange er det nettopp det klassiske og tradisjonelle som er utgangspunktet når ny arkitektur skal reises.
I Ullernchausséen 109 B bygges det snart seks klassiske eneboliger tegnet av arkitekt Lorentz Gedde-Dahl, med Stegg Eiendom som ansvarlig utbygger.
– Jeg studerte i Canada, og der er det ganske mye amerikansk-inspirert arkitektur, og svært få funkishus. Og bakgrunnen min ser man nok godt både i dette prosjektet, men også i tidligere eneboliger jeg har tegnet, viser Lorentz.
Lorentz husker riktignok at han tegnet noen hus med flatt tak i begynnelsen av karrieren, men han skiftet fort over til skråtak igjen. Noe han har foretrukket siden.
– Jeg er en tradisjonell arkitekt og liker godt klassisk design. Jeg prøver ikke å lage noe spesielt som ingen har sett før, og jeg tegner hus som gjerne blir fort solgt. For meg er det viktigst at huset er pent rent utseendemessig. Et hus bør tegnes slik at det er tidløst, og uten for mye “dill”. Man må ikke gjøre det unødvendig vanskelig, forklarer han.
For å få til dette, er det derfor viktig for Lorentz å tenke nøye gjennom bruk av former, geometri og symmetri.
– Jeg jobber mye med detaljer, for eksempel når det kommer til vinduene. Når man tegner smårutete vinduer skal de være like store, og det må være kontinuitet. Det betyr at rutene må være i samme dimensjoner, inkludert rutene på dører. I tillegg mener jeg det absolutt peneste er når vinduene er sidehengslet, og at sprossene skal være rette og på linje. De skal ikke variere høydemessig, viser Lorentz på tegningen.
– Selv om det skal være pent utenfra jobber vi hele tiden tredimensjonalt. Det er jo inne i huset man skal bo, så man må ta hensyn til symmetri fra utsiden og fornuftige planløsninger på innsiden, legger han til.
For selv om husene fra utsiden kan se veldig tradisjonelle ut, er planløsningene alt annet enn det.
Moderne i et tradisjonelt skall
I tradisjonelle og eldre hus har man gjerne mange små rom, med kjøkken, spisestue og stue er tre separate rom. Siden de nye husene er spesiallagde for den moderne barnefamilien har arkitekten valgt å gå for andre planløsninger:

1200 kvm tumleplass
Hver boenhet har sitt private uteområde som egner seg godt for ulike aktiviteter. I tillegg er det et fellesområde på hele 300 kvm som er tilgjengelig for alle beboerne:
– Det skraverte feltet syd på eiendommen representerer fellesområdet, som har eksepsjonelt gode solforhold og to nydelige løvtrær som skjermer godt fra annen bebyggelse. Fellesarealet har derfor en trygg beliggenhet uten mye trafikk og støy. Det mørkegrønne feltet representerer kun minstekravet for størrelse på uteareal, så til sammen med de private hagene vil beboerne ha mye plass å boltre seg på, sier Lorentz.
Ved å legge adkomst/inngangsparti på den ene siden av boligen, og rekreasjonsareal på andre siden, skapes gode skiller mellom de som kommer og går og de som sitter ved grillen eller middagsbordet.
– Hva blir det beste med å bo her?
– Dette er velfungerende familieboliger med effektive planløsninger, midt i blinken for moderne barnefamilier. På tross av relativt små grunnflater har det blitt flotte og innholdsrike boliger, forklarer Lorentz.
– Så er det seks svært barnevennlige hus, sentralt i et veletablert boligområde. Det er nærhet til skole, barnehage, butikker og kollektivt, og store opparbeidede utearealer. Også er det pene eneboliger, det kommer nok eierne til å sette pris på!, legger Lorentz til.
For enhver smak
– På den ene siden har vi da eneboligene på Huseby, med et særegent og spesielt uttrykk som nok mange kunder ser etter. Den mørkere fargen passer husene godt inn i naturen og oppleves kanskje mer kunstnerisk. På den andre siden har vi boligene i Ullernchausséen som passer inn i den eksisterende bebyggelsen ved at husene likner mye på det som finnes av eneboliger rundt, forklarer Jens Christian Killengreen.
– Uansett er begge boligprosjektene tegnet for barnefamiliene, som de begge er svært egnet for, med tilgang på grøntområder og fleksible romløsninger. Så vil nok prisklassen og uttrykket gjøre at disse to prosjektene appellerer til litt ulike målgrupper, avslutter Jens Christian.
Har du spørsmål rundt et av boligprosjektene? Ta kontakt med Eiendomsmegler Jens Christian Killengreen ved Nordvik Bygdøy Allé her.
Se flere bilder og mer informasjon om eneboligene i Ullernchausséen her, og Villa Huseby her.